
お気軽にお問い合わせください!
物件情報・周辺環境・契約手続きについてなどお気軽にお問い合わせください。
設備・条件
|
|
---|---|
|
|
|
|
|
|
|
|
|
|
|
|
|
|
物件概要
物件種別
部屋種別 | マンション | ||
---|---|---|---|
建物名称 | パークアクシス豊洲(907) | ||
所在地 | 東京都江東区豊洲1丁目 MAP | ||
築年月 | 2008年3月 | 階数 | 20階建ての9階 |
建物構造 | 鉄筋コンクリート造 | 総戸数 | - |
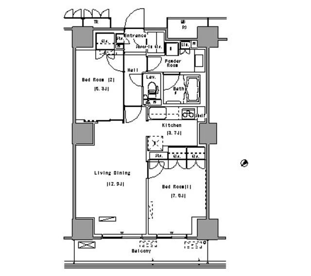
間取り | 2LDK | 専有面積 | 69.74㎡ |
向き | 南東 | バルコニー面積 | 8.00㎡ |
その他 | 管理形態:常務管理 |
費用
賃料 |
32.9万円
初期費用の確認をする
|
共益費 | 10,000円 |
---|---|---|---|
礼金 | 32.9万円 | 敷金 | 32.9万円 |
保証金 | - | 償却金 | - |
その他一時金 | 室内清掃費:130413円 / 鍵交換費:16500円 | ||
その他月額費用 | 口座振替事務手数料:110円/月 | ||
住宅保険 | 要加入 | ||
保証会社 | 必須 | ||
保証会社補足 | 初回保証委託料(最低20,000円):月額賃料等の50%、 2年目以降:9,600円/年 | ||
更新料 | 更新後賃料:1ヶ月 | 更新事務手数料 | - |
契約条件
貸家契約区分 | 普通賃貸借 | 契約期間 | 2年 |
---|---|---|---|
入居可能日 |
2025年12月22日予定
空室状況を確認をする
|
引渡時期相談内容 | - |
フリーレント | - | ||
クレジットカード決済 | - |
駐車場
駐車場 |
有り 月額27,500円
駐車場について質問する
|
||
---|---|---|---|
駐車場契約形態 | - | ||
駐車場備考 | - | ||
バイク置き場 | - | ||
駐輪場 | - |
備考
その他 | |||
---|---|---|---|
関連リンク | |||
取引態様 | 媒介 | 管理コード | 3571000 |
情報登録(更新)日 | 2025年10月10日 | 次回更新予定日 | 2025年10月19日 |
周辺環境
-
石川島記念病院:1692m
- コンビニ
-
セブンイレブン豊洲3丁目店240m
- 買物
-
まいばすけっと豊洲1丁目店40m
- ショッピング施設
-
松屋銀座3646m
- ドラッグストア
-
くすりの福太郎豊洲1丁目店40m
- ホームセンター
-
Francfrancアーバンドッ708m
- 病院
-
石川島記念病院1692m
- 役所
-
中央区役所2774m
- 郵便局
-
江東豊洲郵便局720m
- 図書館
-
芝浦工業大学豊洲図書館445m
- 交番
-
月島警察署1715m
- 公園
-
新月島公園702m
- 銀行
-
山口銀行豊洲支店704m
- 幼稚園
-
MIWAシンフォニア保育園233m
- 小学校
-
江東区立豊洲北小学校809m
- 中学校
-
中央区立晴海中学校872m
- 高校
-
東京都立第三商業高校509m
取扱店舗

ピタットハウス茅場町店
株式会社ビスポーク
- 交通
- 東京メトロ日比谷線「茅場町駅」徒歩1分/東京メトロ日比谷線「八丁堀駅」徒歩8分
- 営業時間
- 10:00 〜 17:00
- 定休日
- 水・土・日・祝祭日・夏季休業・8月9日から8月17日
ピタットハウスでは信頼されるサイトを目指して、物件情報の精度向上に努めています。
掲載物件に誤りがある場合は
こちら からご連絡ください。現状と異なる場合は、現状を優先させていただきます。
取引態様の欄に「媒介」と表示された物件は「仲介物件」です。ご成約の際には仲介手数料を申し受けます。
その他の取扱店舗
不動産会社毎に募集条件等が異なる場合があります。詳細は各店の物件詳細ページにてご確認ください。- 交通
- JR山手線「新宿」駅徒歩6分都営大江戸線「新宿西口」駅徒歩2分
- 営業時間
- 09:30 〜 18:30
- 定休日
- 毎週水曜日・2月・3月は無休、夏季休暇無し・年末年始
- 交通
- つくばエクスプレス浅草駅A2出口を出まして左隣のビルの1階に店舗ございます。
- 営業時間
- 10:00 〜 18:00
- 定休日
- 毎週水曜日・日曜日・夏季休業・8/10~8/17
- 交通
- JR総武線 亀戸駅
- 営業時間
- 10:00 〜 18:00
- 定休日
- 毎週水曜日、木曜日・GW休業・夏季休業・年末年始休業・冬季休業:12/28(日)〜1/3(土)
- 交通
- JR総武線、総武中央線「錦糸町駅」北口より徒歩約2分 東京メトロ半蔵門線「錦糸町駅」3番出口より徒歩約1分
- 営業時間
- 10:00 〜 18:00
- 定休日
- 水曜日、第2・3木曜日・GW休業、夏季休業、冬季休業・冬季休業:12/28(日)〜1/3(土)
- 交通
- JR中央線「阿佐ヶ谷駅」南口徒歩1分ロータリーに面した駅直結の店舗です。
- 営業時間
- 10:00 〜 19:00
- 定休日
- 毎週火・水曜日・1月から3月は毎日営業・夏季休業8/12から8/20まで
生活情報
江東区の暮らしデータ
江東区は、1947年に深川・城東の2区が合併し生まれました。現在の江東区は、水辺と緑に恵まれた自然的特性をいかしながら、「みんなでつくる伝統、未来 水彩都市・江東」を目指して、発展しています。中でも、臨海部の発展は著しく、2024年4月には人口54万人を突破しました。また、2021年開催の東京オリンピック・パラリンピック競技大会では、江東区に多くの競技場が配置され、更なる大きな発展の可能性を秘めています。
基本データ
市区役所所在地 | 江東区東陽4-11-28 |
---|---|
公式ホームページURL | https://www.city.koto.lg.jp/ |
総人口 | 524,310人 |
人口増減率(2015年/2020年) | 105.3% |
地域のおすすめ情報ブログ
一覧を見る
-
リフォーム産業フェア&賃貸住宅フェア9月17日・18日の2日間、東京ビッグサイトで開催された「リフォーム産業フェア」&「賃貸住宅フェア2025東京」に参加してきまし...続きを読む
-
ボリューム満点!!本場韓国料理こんにちは!亀戸店新人の木村です!今回ご紹介させていただくところは、JR総武線亀戸駅徒歩4分にあります『韓ビビンバ石焼家』さんで...続きを読む
-
自然がいっぱい!亀戸中央公園こんにちは!亀戸店新人の木村です!今回ご紹介させていただくところは、JR総武線亀戸駅徒歩12分にあります『亀戸中央公園』です!施...続きを読む
-
【深川芭蕉通り】平成20年3月23日に新たに命名された「深川芭蕉通り」は、江東区深川の歴史と文化を感じられる風情ある通りです。俳聖・松尾芭蕉にゆ...続きを読む
豊洲駅近隣の駅から探す
江東区の近隣エリアから探す
FAQ
-
A. パークアクシス豊洲(AFF3571000_734)の内見は、見学予約でお問い合わせいただくか、直接茅場町店(0037-6001-09150)までご連絡ください。
-
A. 可能です。パークアクシス豊洲(AFF3571000_734)周辺の情報は、ピタットハウスの地域情報ブログ「街ピタ」や住みたい街の暮らしデータをご活用ください。
-
A. パークアクシス豊洲(AFF3571000_734)の費用は、こちらよりお問い合わせいただくか、直接茅場町店(0037-6001-09150)までご連絡ください。
-
A. はい、可能です。賃貸希望物件リクエストをご利用ください。パークアクシス豊洲(AFF3571000_734)に似た物件も合わせてご紹介させていただきます。