2025年4月竣工★礼金0ヶ月★床暖房★

お気軽にお問い合わせください!
物件情報・周辺環境・契約手続きについてなどお気軽にお問い合わせください。
設備・条件
|
|
---|---|
|
|
|
|
|
|
|
|
|
|
|
|
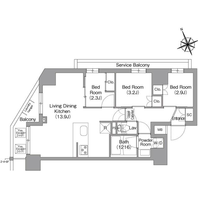
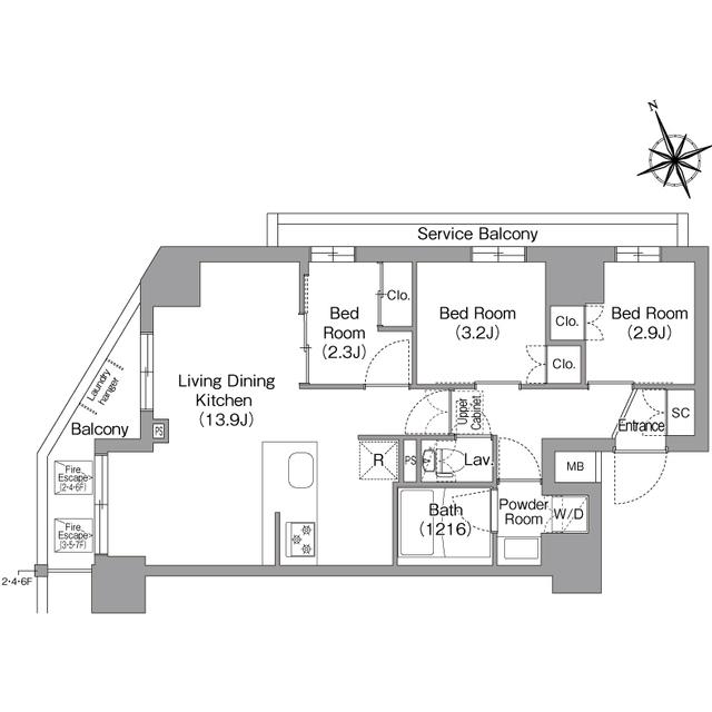
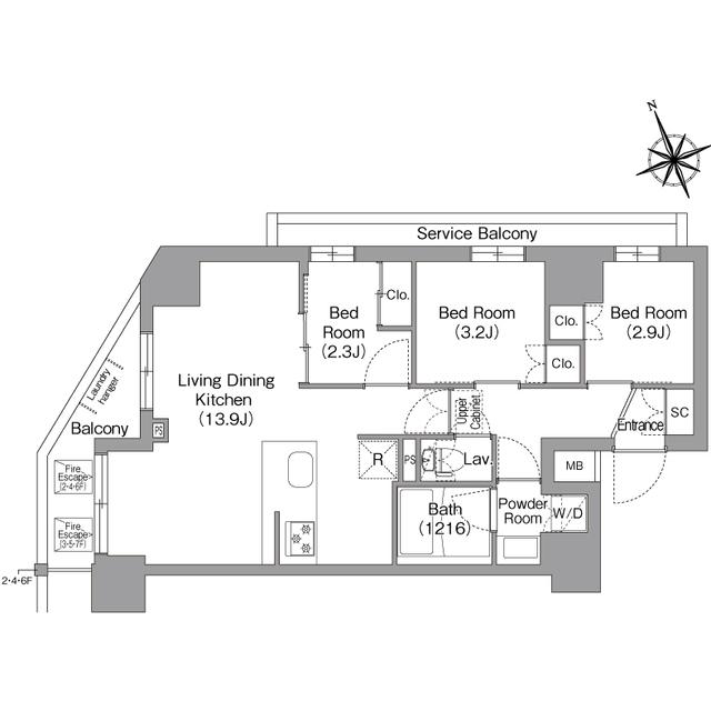
物件概要
物件種別
部屋種別 | マンション | ||
---|---|---|---|
建物名称 | コンフォリア東葛西(701) | ||
所在地 | 東京都江戸川区東葛西6丁目 | ||
築年月 | 2025年4月 | 階数 | 9階建ての7階 |
建物構造 | 鉄筋コンクリート造 | 総戸数 | 84戸 |
間取り | 3LDK(LDK13.9帖 洋3.2帖 洋2.9帖 洋2.3帖) | 専有面積 | 50.22㎡ |
向き | 北西 | バルコニー面積 | - |
その他 | - |
費用
賃料 |
21.2万円
初期費用の確認をする
|
共益費 | 15,000円 |
---|---|---|---|
礼金 | - | 敷金 | 21.2万円 |
保証金 | - | 償却金 | - |
その他一時金 | 清掃費:53900円 / エアコン清掃費:44000円 | ||
その他月額費用 | - | ||
住宅保険 | 要加入(2年16550円) | ||
保証会社 | 必須 | ||
保証会社補足 | エポスカード(RP) 保証料:賃料等の50%(最低2万)、月額保証料:賃料等の1%(更新料無) | ||
更新料 | 更新後賃料:1ヶ月 | 更新事務手数料 | - |
契約条件
貸家契約区分 | 普通賃貸借 | 契約期間 | 2年 |
---|---|---|---|
入居可能日 |
相談
空室状況を確認をする
|
引渡時期相談内容 | - |
フリーレント | - | ||
クレジットカード決済 | - |
駐車場
駐車場 |
なし
駐車場について質問する
|
||
---|---|---|---|
駐車場契約形態 | - | ||
駐車場備考 | - | ||
バイク置き場 | - | ||
駐輪場 | - |
備考
その他 | 海外審査・留学生:エポスカードGTN利用必須【賃料等の100%(最低3万)◆指定保証会社利用必須※一部法人契約除く・敷金積増1ヶ月◆礼金0ヶ月※1年以内解約時賃料1ヶ月分違約金あり◆退居時、エアコン清掃費・室内清掃費かかります◆楽器演奏、SOHO利用不可◆ペット飼育時敷金1ヶ月積増・使用細則遵守・小型犬1匹もしくは猫2匹まで◆スマート置き配(ライナフ) | ||
---|---|---|---|
関連リンク | |||
取引態様 | 媒介 | 管理コード | 4561759 |
情報登録(更新)日 | 2025年10月2日 | 次回更新予定日 | 2025年10月8日 |
取扱店舗

ピタットハウス茅場町店
株式会社ビスポーク
- 交通
- 東京メトロ日比谷線「茅場町駅」徒歩1分/東京メトロ日比谷線「八丁堀駅」徒歩8分
- 営業時間
- 10:00 〜 17:00
- 定休日
- 水・土・日・祝祭日・夏季休業・8月9日から8月17日
ピタットハウスでは信頼されるサイトを目指して、物件情報の精度向上に努めています。
掲載物件に誤りがある場合は
こちら からご連絡ください。現状と異なる場合は、現状を優先させていただきます。
取引態様の欄に「媒介」と表示された物件は「仲介物件」です。ご成約の際には仲介手数料を申し受けます。
その他の取扱店舗
不動産会社毎に募集条件等が異なる場合があります。詳細は各店の物件詳細ページにてご確認ください。- 交通
- JR山手線「新宿」駅徒歩6分都営大江戸線「新宿西口」駅徒歩2分
- 営業時間
- 09:30 〜 18:30
- 定休日
- 毎週水曜日・2月・3月は無休、夏季休暇無し・年末年始
- 交通
- JR総武線 亀戸駅
- 営業時間
- 10:00 〜 18:00
- 定休日
- 毎週水曜日、木曜日・GW休業・夏季休業・年末年始休業・冬季休業:12/28(日)〜1/3(土)
- 交通
- JR中央線 『武蔵境駅』 南口より 徒歩30秒 駐車場有
- 営業時間
- 10:00 〜 19:00
- 定休日
- 毎週水曜日・夏季休業・8/12から8/20まで
- 交通
- つくばエクスプレス浅草駅A2出口を出まして左隣のビルの1階に店舗ございます。
- 営業時間
- 10:00 〜 18:00
- 定休日
- 毎週水曜日・日曜日・夏季休業・8/10~8/17
- 交通
- 総武線本八幡駅南口から徒歩2分(南口商店街沿いの1階です)
- 営業時間
- 10:00 〜 18:00
- 定休日
- 毎週水曜日・木曜日・GW休業・年末年始休業・冬季休業:12/28(日)〜1/3(土)
- 交通
- JR中央線「阿佐ヶ谷駅」南口徒歩1分ロータリーに面した駅直結の店舗です。
- 営業時間
- 10:00 〜 19:00
- 定休日
- 毎週火・水曜日・1月から3月は毎日営業・夏季休業8/12から8/20まで
- 交通
- 東西線西葛西駅南口 徒歩1分
- 営業時間
- 10:00 〜 18:00
- 定休日
- 毎週水曜日・GW休業・夏季休業・年末年始休業・冬季休業:12/28(日)〜1/3(土)
生活情報
江戸川区の暮らしデータ
江戸川区は、東京の東端に位置し、総面積は49.09km2で、水と緑に恵まれた快適環境都市、熟年者・子育て施策が充実した福祉先進都市です。また、活発な産業と豊かな文化・コミュニティ活動を基盤とした活気あふれるまちです。
基本データ
市区役所所在地 | 江戸川区中央1-4-1 |
---|---|
公式ホームページURL | https://www.city.edogawa.tokyo.jp/ |
総人口 | 697,932人 |
人口増減率(2015年/2020年) | 102.4% |
地域のおすすめ情報ブログ
一覧を見る
-
ボリューム満点唐揚げ弁当こんにちは!ピタットハウス葛西店です^^葛西のグルメ紹介コーナーです!【唐揚げ専門あげあげ商店】さんをご紹介します!葛西駅徒歩2...続きを読む
-
居酒屋さんのご飯が進むランチこんにちは!ピタットハウス葛西店です^^葛西のグルメ紹介コーナーです?【大衆酒場かんぱい家葛西店】さんをご紹介します!以前もご紹...続きを読む
-
行列が絶えない≪からし麺≫のお店こんにちは!ピタットハウス葛西店です^^葛西のグルメ紹介コーナーです?【からしや】さんをご紹介します!ランチタイムでなくても列が...続きを読む
-
定番遊具のある公園!こんにちは!ピタットハウス葛西店です。葛西の街紹介コーナーです〜【江戸川区立千種児童遊園】を紹介します!東葛西3丁目にある細長い...続きを読む
葛西駅近隣の駅から探す
江戸川区の近隣エリアから探す
FAQ
-
A. コンフォリア東葛西(AFF4561759_297)の内見は、見学予約でお問い合わせいただくか、直接茅場町店(0037-6001-09150)までご連絡ください。
-
A. 可能です。コンフォリア東葛西(AFF4561759_297)周辺の情報は、ピタットハウスの地域情報ブログ「街ピタ」や住みたい街の暮らしデータをご活用ください。
-
A. コンフォリア東葛西(AFF4561759_297)の費用は、こちらよりお問い合わせいただくか、直接茅場町店(0037-6001-09150)までご連絡ください。
-
A. はい、可能です。賃貸希望物件リクエストをご利用ください。コンフォリア東葛西(AFF4561759_297)に似た物件も合わせてご紹介させていただきます。