前へ
次へ
前へ
次へ
マンション

豊島区駒込マンション

NEW
27.4 万円
共益費 15,000
1ヶ月
1ヶ月
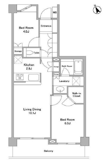
間取り
2LDK
専有面積
56.73㎡
所在階
地下1階・地上7階建ての7階
向き
南西
  • アイコン: 住所 東京都豊島区駒込4丁目
  • アイコン: 交通 JR山手線 「巣鴨駅」 徒歩5分 / 東京メトロ南北線 「駒込駅」 徒歩8分 / 都営三田線 「千石駅」 徒歩14分
簡単無料
アイコン: お電話 0037-6001-06556
IP電話ご利用のお客様 : 03-4329-1394
ピタットハウス
四谷店
point!
当物件はオンラインまたは店舗でご相談お申込を承ります
室内見学承ります・お客様のご都合に合わせてオンラインまたはお近くの店舗でご提案可・初期費用分割払い可・クレジットカード利用可・引越業者割引・初期費用のお見積や入居日のご相談もお気軽にお問合せください
お気軽にお問い合わせください!
簡単無料
お気軽にお問い合わせください!
物件情報・周辺環境・契約手続きについてなどお気軽にお問い合わせください。

設備・条件

建物・立地
  • 最上階
  • 角部屋
  • 分譲マンションタイプ
  • エレベータ
  • 宅配ボックス
  • 敷地内駐車場
  • 駐輪場
  • 都市ガス
  • 敷地内ごみ置き場
  • 公営水道
  • 下水
通信
  • CATV
  • BSアンテナ
  • CSアンテナ
  • 光回線
  • その他インターネット
  • BS・CS
セキュリティ
  • オートロック
  • TVモニター付きインターホン
  • ピッキング対策キー
  • ダブルロックドア
  • 防犯カメラ
部屋設備
  • フローリング
  • バルコニー
  • 室内洗濯機置場
  • 下駄箱
  • クローゼット
  • 全居室フローリング
  • 全居室収納
  • 南面バルコニー
  • 玄関収納
  • 24時間換気システム
  • 2面採光
  • 南西向き
冷暖房
  • エアコン
  • 床暖房
  • エアコン2台以上
キッチン
  • システムキッチン
  • ガスコンロ(3口)
  • 独立型キッチン
バス・トイレ
  • バス・トイレ別
  • 浴室乾燥機
  • 追い焚き風呂
  • 独立洗面台
  • 温水洗浄便座
  • 脱衣所
特徴
  • ペット相談可
  • 保証会社利用可
  • 二人入居可
  • 二人入居相談
  • 保証人不要
  • 初期費用カード決済可

物件概要

物件種別

部屋種別 マンション
建物名称 豊島区駒込マンション
所在地 東京都豊島区駒込4丁目 MAP
築年月 2007年3月 階数 地下1階・地上7階建ての7階
建物構造 鉄筋コンクリート造 総戸数 72戸
間取り 2LDK(洋6.2帖 洋4.7帖 LD10.2帖 K3.2帖) 専有面積 56.73㎡
向き 南西 バルコニー面積 -
その他 -

費用

賃料 27.4万円 初期費用の確認をする 初期費用の確認をする 共益費 15,000円
礼金 1ヶ月 敷金 1ヶ月 + ペット積み増し(1ヶ月)
保証金 - 償却金 -
その他一時金 鍵交換代(税込):33000円
その他月額費用 -
住宅保険 要加入(2年16550円)
保証会社 必須/クレディセゾン
保証会社補足 保証料:賃料等の50%〜
更新料 更新後賃料:1ヶ月 更新事務手数料 -

契約条件

貸家契約区分 普通賃貸借 契約期間 2年
入居可能日 2026年6月1日予定 空室状況を確認をする 空室状況を確認をする 引渡時期相談内容 -
フリーレント -
クレジットカード決済 -

駐車場

駐車場 有り 月額38,500円 駐車場について質問する 駐車場について質問する
駐車場契約形態 -
駐車場備考 空き状況要確認
バイク置き場 -
駐輪場 -

備考

その他 リライフは首都圏23店舗のネットワークで豊富な物件情報をお客様へご提供します。当物件に類似した未公開物件なども合わせてご提案可能です。お気軽にお問合せください。
関連リンク
取引態様 媒介 管理コード 4654263
情報登録(更新)日 2026年4月17日 次回更新予定日 2026年4月24日
備考 めやす賃料:

めやす賃料とは賃料、共益費・管理費、敷引金、更新料を含み、賃料等条件の改定がないものと仮定して4年間賃借した場合(定期借家の場合は契約期間)の1ヶ月当たりの金額です。

※敷引金は、敷金の償却、保証金の償却など、預かった金額から必ず引くものをいいます。
※めやす賃料は、消費者に適切な情報を提供するための表示であり事業者に一時金を推奨するものではありません。
※めやす賃料は、実際の総支払額と異なる場合があります。詳しくは不動産会社にご確認ください。  

周辺環境

  • 西友 巣鴨店:200m
    西友 巣鴨店:200m
  • サミットストア 巣鴨店:244m
    サミットストア 巣鴨店:244m
  • ファミリーマート巣鴨スポーツセンター前店:201m
    ファミリーマート巣鴨スポーツセンター前店:201m
  • セブンイレブン 巣鴨駅北口店:366m
    セブンイレブン 巣鴨駅北口店:366m
  • スギ薬局巣鴨駅前店:437m
    スギ薬局巣鴨駅前店:437m
  • 白洋舎 ミスターミニット白洋舍巣鴨駅前店:354m
    白洋舎 ミスターミニット白洋舍巣鴨駅前店:354m
  • 三井住友銀行巣鴨支店:432m
    三井住友銀行巣鴨支店:432m
  • 六義園:672m
    六義園:672m
コンビニ
ファミリーマート巣鴨スポーツセンター前店
201m
買物
西友 巣鴨店
200m
ドラッグストア
スギ薬局巣鴨駅前店
437m
ホームセンター
コーナンPRO 王子堀船店
2099m
病院
西ヶ原病院
1257m
公園
六義園
672m
銀行
三井住友銀行巣鴨支店
432m

取扱店舗

ピタットハウス四谷店
ピタットハウス四谷店
株式会社リライフ
交通
四ツ谷駅 徒歩3分JR中央総武線・東京メトロ丸ノ内線・東京メトロ南北線四谷三丁目駅 徒歩9分東京メトロ丸ノ内線
営業時間
10:00 〜 18:30
定休日
毎週火水曜日(1月〜3月を除く)
お電話 0037-6001-06556 無料
メール お問い合わせ
  • お問い合わせ区分

  • 内見希望日時

    第一希望

    第二希望

  • お名前

    全角
  • ご希望の連絡方法

    メールアドレス

    電話番号

    半角
    半角
  • その他ご希望等

ピタットハウスの個人情報の取り扱いについて

ピタットハウスでは信頼されるサイトを目指して、物件情報の精度向上に努めています。
掲載物件に誤りがある場合は こちら からご連絡ください。現状と異なる場合は、現状を優先させていただきます。
取引態様の欄に「媒介」と表示された物件は「仲介物件」です。ご成約の際には仲介手数料を申し受けます。

生活情報

豊島区の暮らしデータ

豊島区は、ソメイヨシノ発祥の地駒込、「おばあちゃんの原宿」の巣鴨、東京で唯一の都電が街中を走る大塚、巨大ターミナルを有する池袋、歴史と文化が香る雑司が谷、緑豊かで格調ある目白、「トキワ荘のあった街」南長崎、池袋モンパルナスの面影残る長崎・要町・千早など、さまざまな顔を持っています。2025年3月、区政の最高指針であり、まちづくりの羅針盤でもある新たな「基本構想・基本計画」を策定。区民とまちの将来像を共有し、「出会いと笑顔が咲きほこる、憧れのまち」の実現を目指しています。

基本データ

市区役所所在地 豊島区南池袋2-45-1
公式ホームページURL https://www.city.toshima.lg.jp/
総人口 301,599人
人口増減率(2015年/2020年) 103.6%
豊島区の生活情報を詳しくみる

地域のおすすめ情報ブログ

一覧を見る

巣鴨駅近隣の駅から探す

豊島区の近隣エリアから探す

FAQ

  • A. 豊島区駒込マンション(AJN4654263_5)の内見は、見学予約でお問い合わせいただくか、直接四谷店(0037-6001-06556)までご連絡ください。
  • A. 可能です。豊島区駒込マンション(AJN4654263_5)周辺の情報は、ピタットハウスの地域情報ブログ「街ピタ」住みたい街の暮らしデータをご活用ください。
  • A. 豊島区駒込マンション(AJN4654263_5)の費用は、こちらよりお問い合わせいただくか、直接四谷店(0037-6001-06556)までご連絡ください。
  • A. はい、可能です。賃貸希望物件リクエストをご利用ください。豊島区駒込マンション(AJN4654263_5)に似た物件も合わせてご紹介させていただきます。