当物件はオンラインまたはお近くの店舗でご相談お申込を承ります
室内見学承ります・お客様のご都合に合わせてオンラインまたはお近くの店舗でご提案可・初期費用分割払い可・クレジットカード利用可・引越業者割引・初期費用のお見積や入居日のご相談もお気軽にお問合せください

お気軽にお問い合わせください!
物件情報・周辺環境・契約手続きについてなどお気軽にお問い合わせください。
設備・条件
|
|
---|---|
|
|
|
|
|
|
|
|
|
|
|
|
|
|
物件概要
物件種別
部屋種別 | マンション | ||
---|---|---|---|
建物名称 | 台東区下谷マンション | ||
所在地 | 東京都台東区下谷1丁目 MAP | ||
築年月 | 2013年3月 | 階数 | 地下1階・地上14階建ての4階 |
建物構造 | 鉄筋コンクリート造 | 総戸数 | 99戸 |
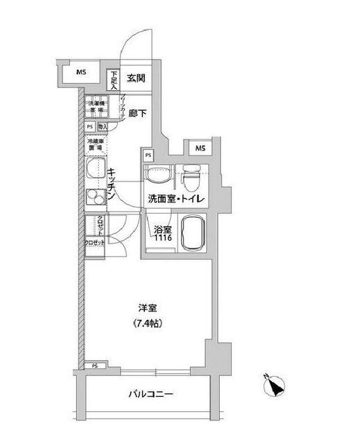
間取り | 1K(洋7.4帖) | 専有面積 | 25.67㎡ |
向き | 南西 | バルコニー面積 | - |
その他 | 管理形態:日勤管理 |
費用
賃料 |
10.9万円
初期費用の確認をする
|
共益費 | 8,000円 |
---|---|---|---|
礼金 | 1ヶ月 | 敷金 | 1ヶ月 |
保証金 | - | 償却金 | - |
その他一時金 | 鍵交換代(税込):33000円 | ||
その他月額費用 | - | ||
住宅保険 | 要加入(2年16550円) | ||
保証会社 | 必須 | ||
保証会社補足 | 初回:月額総家賃の50%〜 | ||
更新料 | 更新後賃料:1ヶ月 | 更新事務手数料 | - |
契約条件
貸家契約区分 | 普通賃貸借 | 契約期間 | 2年 |
---|---|---|---|
入居可能日 |
2025年11月1日予定
空室状況を確認をする
|
引渡時期相談内容 | - |
フリーレント | - | ||
クレジットカード決済 | - |
駐車場
駐車場 |
なし
駐車場について質問する
|
||
---|---|---|---|
駐車場契約形態 | - | ||
駐車場備考 | 空き状況要確認 | ||
バイク置き場 | - | ||
駐輪場 | - |
備考
その他 | 当物件は「住まいのリライフ」で取り扱っております。リライフは首都圏25店舗のネットワークで豊富な物件情報をお客様へご提供します。当物件に類似した未公開物件なども合わせてご提案可能です。お気軽にお問合せください。 | ||
---|---|---|---|
関連リンク | |||
取引態様 | 媒介 | 管理コード | 4655302 |
情報登録(更新)日 | 2025年10月2日 | 次回更新予定日 | 2025年10月9日 |
周辺環境
-
マルエツ東上野店:501m
-
まいばすけっと根岸うぐいす通り店:519m
-
セブンイレブン台東北上野1丁目店:69m
-
ローソン台東北上野一丁目店:142m
-
ウエルシア台東入谷店:570m
-
ホワイト急便北上野2丁目店:541m
-
永寿総合病院:1009m
-
みずほ銀行稲荷町支店:696m
- コンビニ
-
セブンイレブン台東北上野1丁目店69m
- 買物
-
マルエツ東上野店501m
- ドラッグストア
-
ウエルシア台東入谷店570m
- ホームセンター
-
オフィスバスターズ上野店1244m
- 病院
-
永寿総合病院1009m
- 公園
-
山伏公園280m
- 銀行
-
みずほ銀行稲荷町支店696m
取扱店舗

ピタットハウス四谷店
株式会社リライフ
- 交通
- 四ツ谷駅 徒歩3分JR中央総武線・東京メトロ丸ノ内線・東京メトロ南北線四谷三丁目駅 徒歩9分東京メトロ丸ノ内線
- 営業時間
- 10:00 〜 18:30
- 定休日
- 毎週水曜日
ピタットハウスでは信頼されるサイトを目指して、物件情報の精度向上に努めています。
掲載物件に誤りがある場合は
こちら からご連絡ください。現状と異なる場合は、現状を優先させていただきます。
取引態様の欄に「媒介」と表示された物件は「仲介物件」です。ご成約の際には仲介手数料を申し受けます。
生活情報
台東区の暮らしデータ
台東区は、東京23区のほぼ中心に位置し、面積10.11km2、西は上野の山、東は隅田川に接した典型的な下町で、面積は23区中で最も小さい区です。東京の北の玄関として交通の要所になっているほか、伝統、歴史、芸術などの豊かな文化資源を有し、四季折々の多彩な行事を通じて多くの来街者があります。
基本データ
市区役所所在地 | 台東区東上野4-5-6 |
---|---|
公式ホームページURL | https://www.city.taito.lg.jp/ |
総人口 | 211,444人 |
人口増減率(2015年/2020年) | 106.8% |
地域のおすすめ情報ブログ
一覧を見る
-
下町の商店街こんにちは!ピタットハウス浅草橋店の井澤です。今回ご紹介させていただくのは、鳥越神社のすぐそばにある「おかず横丁」です!今でも長...続きを読む
-
西口駅前の人気パン屋さんこんにちは!ピタットハウス浅草橋店の井澤です!今回ご紹介させていただくのは、浅草橋西口駅前の「東京メロンパン」さんです!こちらの...続きを読む
-
下町のハンドメイド雑貨屋さんこんにちは!ピタットハウス浅草橋店の井澤です。今回ご紹介させていただくのは、浅草駅から徒歩2分の「ArtsquareAsakus...続きを読む
-
蔵前の人気ケーキ屋さんこんにちは!ピタットハウス浅草橋店の井澤です。今回ご紹介させていただくのは、蔵前駅から徒歩3分の「patisserieFOBS(...続きを読む
上野駅近隣の駅から探す
台東区の近隣エリアから探す
FAQ
-
A. 台東区下谷マンション(AJN4655302_4)の内見は、見学予約でお問い合わせいただくか、直接四谷店(0037-6001-06556)までご連絡ください。
-
A. 可能です。台東区下谷マンション(AJN4655302_4)周辺の情報は、ピタットハウスの地域情報ブログ「街ピタ」や住みたい街の暮らしデータをご活用ください。
-
A. 台東区下谷マンション(AJN4655302_4)の費用は、こちらよりお問い合わせいただくか、直接四谷店(0037-6001-06556)までご連絡ください。
-
A. はい、可能です。賃貸希望物件リクエストをご利用ください。台東区下谷マンション(AJN4655302_4)に似た物件も合わせてご紹介させていただきます。