前へ
次へ
前へ
次へ
マンション

千代田区東神田マンション

NEW
22.6 万円
共益費 15,000
-
-
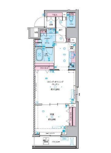
間取り
1LDK
専有面積
42.66㎡
所在階
12階建ての12階
向き
  • アイコン: 住所 東京都千代田区東神田2丁目
  • アイコン: 交通 JR総武本線 「馬喰町駅」 徒歩4分 / JR総武・中央緩行線 「浅草橋駅」 徒歩6分 / 都営新宿線 「岩本町駅」 徒歩7分
簡単無料
アイコン: お電話 0037-6001-06556
IP電話ご利用のお客様 : 03-4329-1394
ピタットハウス
四谷店
point!
当物件はオンラインまたは店舗でご相談お申込を承ります
室内見学承ります・お客様のご都合に合わせてオンラインまたはお近くの店舗でご提案可・初期費用分割払い可・クレジットカード利用可・引越業者割引・初期費用のお見積や入居日のご相談もお気軽にお問合せください
お気軽にお問い合わせください!
簡単無料
お気軽にお問い合わせください!
物件情報・周辺環境・契約手続きについてなどお気軽にお問い合わせください。

設備・条件

建物・立地
  • 最上階
  • 角部屋
  • 分譲マンションタイプ
  • エレベータ
  • 宅配ボックス
  • 駐輪場
  • 都市ガス
  • 敷地内ごみ置き場
  • 常時ゴミ出し可能
  • デザイナーズ
  • エレベーター2基以上
  • 公営水道
  • 下水
通信
  • インターネット無料
  • BSアンテナ
  • CSアンテナ
  • 光回線
  • BS・CS
セキュリティ
  • オートロック
  • TVモニター付きインターホン
  • ダブルロックドア
  • 防犯カメラ
部屋設備
  • フローリング
  • バルコニー
  • 室内洗濯機置場
  • 下駄箱
  • クローゼット
  • 全居室フローリング
  • 全居室収納
  • 南面バルコニー
  • 玄関収納
  • 24時間換気システム
  • 南向き
  • クロゼット2ヶ所
  • 高層階
  • 上階無し
  • 2面採光
  • 通風良好
冷暖房
  • エアコン
キッチン
  • システムキッチン
  • ガスコンロ(2口)
バス・トイレ
  • バス・トイレ別
  • 浴室乾燥機
  • 追い焚き風呂
  • 洗髪洗面化粧台
  • 独立洗面台
  • 温水洗浄便座
  • 脱衣所
特徴
  • ペット相談可
  • 保証会社利用可
  • コンビニ近く
  • 二人入居可
  • 二人入居相談
  • 保証人不要
  • 初期費用カード決済可

物件概要

物件種別

部屋種別 マンション
建物名称 千代田区東神田マンション
所在地 東京都千代田区東神田2丁目 MAP
築年月 2020年5月 階数 12階建ての12階
建物構造 鉄筋コンクリート造 総戸数 -
間取り 1LDK 専有面積 42.66㎡
向き バルコニー面積 -
その他 -

費用

賃料 22.6万円 初期費用の確認をする 初期費用の確認をする 共益費 15,000円
礼金 - 敷金 ペット積み増し(1ヶ月)
保証金 - 償却金 -
その他一時金 鍵交換代(税込):26400円
その他月額費用 -
住宅保険 要加入(2年23000円)
保証会社 必須
保証会社補足 初回保証料:月額総賃料の40%〜
更新料 更新後賃料:1ヶ月 更新事務手数料 -

契約条件

貸家契約区分 普通賃貸借 契約期間 2年
入居可能日 2026年2月28日予定 空室状況を確認をする 空室状況を確認をする 引渡時期相談内容 -
フリーレント -
クレジットカード決済 -

駐車場

駐車場 なし 駐車場について質問する 駐車場について質問する
駐車場契約形態 -
駐車場備考 要空き確認
バイク置き場 -
駐輪場 -

備考

その他 リライフは首都圏23店舗のネットワークで豊富な物件情報をお客様へご提供します。当物件に類似した未公開物件なども合わせてご提案可能です。お気軽にお問合せください。違約金有:1年未満解約時賃料1ヶ月分
関連リンク
取引態様 媒介 管理コード 4657567
情報登録(更新)日 2026年2月19日 次回更新予定日 2026年2月26日
備考 めやす賃料:

めやす賃料とは賃料、共益費・管理費、敷引金、更新料を含み、賃料等条件の改定がないものと仮定して4年間賃借した場合(定期借家の場合は契約期間)の1ヶ月当たりの金額です。

※敷引金は、敷金の償却、保証金の償却など、預かった金額から必ず引くものをいいます。
※めやす賃料は、消費者に適切な情報を提供するための表示であり事業者に一時金を推奨するものではありません。
※めやす賃料は、実際の総支払額と異なる場合があります。詳しくは不動産会社にご確認ください。  

周辺環境

  • まいばすけっと 浅草橋1丁目店:329m
    まいばすけっと 浅草橋1丁目店:329m
  • まいばすけっと 岩本町3丁目店:369m
    まいばすけっと 岩本町3丁目店:369m
  • ファミリーマート東神田二丁目店:36m
    ファミリーマート東神田二丁目店:36m
  • セブンイレブン東神田2丁目店:153m
    セブンイレブン東神田2丁目店:153m
  • スギ薬局岩本町店:375m
    スギ薬局岩本町店:375m
  • ポニークリーニング鞍掛橋店:340m
    ポニークリーニング鞍掛橋店:340m
  • 三井住友銀行浅草橋支店:327m
    三井住友銀行浅草橋支店:327m
コンビニ
ファミリーマート東神田二丁目店
36m
買物
まいばすけっと 浅草橋1丁目店
329m
ドラッグストア
スギ薬局岩本町店
375m
ホームセンター
生活道具屋surou n.n
1529m
病院
三井記念病院
670m
公園
和泉公園
570m
銀行
三井住友銀行浅草橋支店
327m

取扱店舗

ピタットハウス四谷店
ピタットハウス四谷店
株式会社リライフ
交通
四ツ谷駅 徒歩3分JR中央総武線・東京メトロ丸ノ内線・東京メトロ南北線四谷三丁目駅 徒歩9分東京メトロ丸ノ内線
営業時間
10:00 〜 18:30
定休日
毎週水曜日(1月〜3月を除く)
お電話 0037-6001-06556 無料
メール お問い合わせ
  • お問い合わせ区分

  • 内見希望日時

    第一希望

    第二希望

  • お名前

    全角
  • ご希望の連絡方法

    メールアドレス

    電話番号

    半角
    半角
  • その他ご希望等

ピタットハウスの個人情報の取り扱いについて

ピタットハウスでは信頼されるサイトを目指して、物件情報の精度向上に努めています。
掲載物件に誤りがある場合は こちら からご連絡ください。現状と異なる場合は、現状を優先させていただきます。
取引態様の欄に「媒介」と表示された物件は「仲介物件」です。ご成約の際には仲介手数料を申し受けます。

生活情報

千代田区の暮らしデータ

千代田区は、1947年3月15日に麹町区と神田区が統合されて誕生しました。千代田という区名は、江戸城の別名「千代田城」にちなんだものです。区の中央には、区の面積の約12%を占める皇居(1.43km2)があります。

基本データ

市区役所所在地 千代田区九段南1-2-1
公式ホームページURL https://www.city.chiyoda.lg.jp/
総人口 66,680人
人口増減率(2015年/2020年) 114.2%
千代田区の生活情報を詳しくみる

地域のおすすめ情報ブログ

一覧を見る

馬喰町駅近隣の駅から探す

千代田区の近隣エリアから探す

FAQ

  • A. 千代田区東神田マンション(AJN4657567_20)の内見は、見学予約でお問い合わせいただくか、直接四谷店(0037-6001-06556)までご連絡ください。
  • A. 可能です。千代田区東神田マンション(AJN4657567_20)周辺の情報は、ピタットハウスの地域情報ブログ「街ピタ」住みたい街の暮らしデータをご活用ください。
  • A. 千代田区東神田マンション(AJN4657567_20)の費用は、こちらよりお問い合わせいただくか、直接四谷店(0037-6001-06556)までご連絡ください。
  • A. はい、可能です。賃貸希望物件リクエストをご利用ください。千代田区東神田マンション(AJN4657567_20)に似た物件も合わせてご紹介させていただきます。