前へ
次へ
前へ
次へ
マンション

新宿区大京町マンション

NEW
16.9 万円
共益費 10,000
-
-
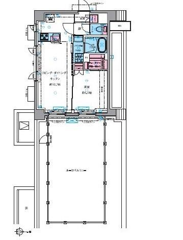
間取り
1K
専有面積
25.59㎡
所在階
10階建ての10階
向き
西
  • アイコン: 住所 東京都新宿区大京町
  • アイコン: 交通 東京メトロ丸ノ内線 「四谷三丁目駅」 徒歩8分 / 東京メトロ南北線 「四ツ谷駅」 徒歩19分 / JR総武・中央緩行線 「千駄ケ谷駅」 徒歩10分
簡単無料
アイコン: お電話 0037-6001-06556
IP電話ご利用のお客様 : 03-4329-1394
ピタットハウス
四谷店
point!
当物件はオンラインまたはお近くの店舗でご相談お申込を承ります
室内見学承ります・お客様のご都合に合わせてオンラインまたはお近くの店舗でご提案可・初期費用分割払い可・クレジットカード利用可・引越業者割引・初期費用のお見積や入居日のご相談もお気軽にお問合せください
お気軽にお問い合わせください!
簡単無料
お気軽にお問い合わせください!
物件情報・周辺環境・契約手続きについてなどお気軽にお問い合わせください。

設備・条件

建物・立地
  • 最上階
  • エレベータ
  • 宅配ボックス
  • 駐輪場
  • 都市ガス
  • 敷地内ごみ置き場
  • 常時ゴミ出し可能
  • デザイナーズ
  • バイク置場
  • 下水
通信
  • BSアンテナ
  • CSアンテナ
  • その他インターネット
  • BS・CS
  • LAN
セキュリティ
  • オートロック
  • TVモニター付きインターホン
  • 防犯カメラ
部屋設備
  • フローリング
  • バルコニー
  • 室内洗濯機置場
  • 下駄箱
  • クローゼット
  • 全居室フローリング
  • 24時間換気システム
  • 上階無し
冷暖房
  • エアコン
キッチン
  • システムキッチン
  • ガスコンロ(2口)
バス・トイレ
  • バス・トイレ別
  • 浴室乾燥機
  • 追い焚き風呂
  • 独立洗面台
  • 温水洗浄便座
  • 脱衣所
特徴
  • ペット相談可
  • 二人入居可
  • 二人入居相談
  • 事務所利用不可

物件概要

物件種別

部屋種別 マンション
建物名称 新宿区大京町マンション
所在地 東京都新宿区大京町 MAP
築年月 2020年6月 階数 10階建ての10階
建物構造 鉄筋コンクリート造 総戸数 -
間取り 1K 専有面積 25.59㎡
向き 西 バルコニー面積 -
その他 管理形態:巡回管理 

費用

賃料 16.9万円 初期費用の確認をする 初期費用の確認をする 共益費 10,000円
礼金 - 敷金 ペット積み増し(1ヶ月)
保証金 - 償却金 -
その他一時金 鍵交換代(税込):26400円 / 室内清掃費用(税込):39600円
その他月額費用 -
住宅保険 要加入(2年18000円)
保証会社 必須
保証会社補足 40%
更新料 更新後賃料:1ヶ月 更新事務手数料 -

契約条件

貸家契約区分 普通賃貸借 契約期間 2年
入居可能日 2026年3月26日予定 空室状況を確認をする 空室状況を確認をする 引渡時期相談内容 -
フリーレント -
クレジットカード決済 -

駐車場

駐車場 なし 駐車場について質問する 駐車場について質問する
駐車場契約形態 -
駐車場備考 -
バイク置き場 -
駐輪場 -

備考

その他 当物件は「住まいのリライフ」で取り扱っております。リライフは首都圏24店舗のネットワークで豊富な物件情報をお客様へご提供します。当物件に類似した未公開物件なども合わせてご提案可能です。お気軽にお問合せください。
関連リンク
取引態様 媒介 管理コード 4658343
情報登録(更新)日 2026年1月30日 次回更新予定日 2026年2月6日
備考 めやす賃料:

めやす賃料とは賃料、共益費・管理費、敷引金、更新料を含み、賃料等条件の改定がないものと仮定して4年間賃借した場合(定期借家の場合は契約期間)の1ヶ月当たりの金額です。

※敷引金は、敷金の償却、保証金の償却など、預かった金額から必ず引くものをいいます。
※めやす賃料は、消費者に適切な情報を提供するための表示であり事業者に一時金を推奨するものではありません。
※めやす賃料は、実際の総支払額と異なる場合があります。詳しくは不動産会社にご確認ください。  

周辺環境

  • 丸正 総本店:456m
    丸正 総本店:456m
  • ビオセボン 四谷三丁目店:667m
    ビオセボン 四谷三丁目店:667m
  • ミニストップ 新宿大京町店:53m
    ミニストップ 新宿大京町店:53m
  • ファミリーマート 四谷四丁目店:139m
    ファミリーマート 四谷四丁目店:139m
  • クスリの龍生堂 四谷三丁目店:456m
    クスリの龍生堂 四谷三丁目店:456m
  • マスカット:213m
    マスカット:213m
  • 慶應義塾大学病院:635m
    慶應義塾大学病院:635m
  • 四谷大木戸郵便局:72m
    四谷大木戸郵便局:72m
  • 新宿区立新左門児童遊園:555m
    新宿区立新左門児童遊園:555m
  • みずほ銀行 四谷支店:804m
    みずほ銀行 四谷支店:804m
コンビニ
ミニストップ 新宿大京町店
53m
買物
丸正 総本店
456m
ドラッグストア
クスリの龍生堂 四谷三丁目店
456m
病院
慶應義塾大学病院
635m
郵便局
四谷大木戸郵便局
72m
公園
新宿区立新左門児童遊園
555m
銀行
みずほ銀行 四谷支店
804m

取扱店舗

ピタットハウス四谷店
ピタットハウス四谷店
株式会社リライフ
交通
四ツ谷駅 徒歩3分JR中央総武線・東京メトロ丸ノ内線・東京メトロ南北線四谷三丁目駅 徒歩9分東京メトロ丸ノ内線
営業時間
10:00 〜 18:30
定休日
毎週水曜日(1月〜3月を除く)
お電話 0037-6001-06556 無料
メール お問い合わせ
  • お問い合わせ区分

  • 内見希望日時

    第一希望

    第二希望

  • お名前

    全角
  • ご希望の連絡方法

    メールアドレス

    電話番号

    半角
    半角
  • その他ご希望等

ピタットハウスの個人情報の取り扱いについて

ピタットハウスでは信頼されるサイトを目指して、物件情報の精度向上に努めています。
掲載物件に誤りがある場合は こちら からご連絡ください。現状と異なる場合は、現状を優先させていただきます。
取引態様の欄に「媒介」と表示された物件は「仲介物件」です。ご成約の際には仲介手数料を申し受けます。

生活情報

新宿区の暮らしデータ

新宿区は、1947年3月15日に旧四谷・旧牛込・旧淀橋の3区が統合し発足しました。東京23区のほぼ中央に位置し、面積は18.22km2。23区中13番目の広さです。歌舞伎町や西新宿などの繁華街を有する一方、緑豊かな新宿御苑や、情緒ある神楽坂、住宅街の落合など様々な特色を持つ都市です。

基本データ

市区役所所在地 新宿区歌舞伎町1-4-1
公式ホームページURL https://www.city.shinjuku.lg.jp/
総人口 349,385人
人口増減率(2015年/2020年) 104.7%
新宿区の生活情報を詳しくみる

地域のおすすめ情報ブログ

一覧を見る

四谷三丁目駅近隣の駅から探す

新宿区の近隣エリアから探す

FAQ

  • A. 新宿区大京町マンション(AJN4658343_15)の内見は、見学予約でお問い合わせいただくか、直接四谷店(0037-6001-06556)までご連絡ください。
  • A. 可能です。新宿区大京町マンション(AJN4658343_15)周辺の情報は、ピタットハウスの地域情報ブログ「街ピタ」住みたい街の暮らしデータをご活用ください。
  • A. 新宿区大京町マンション(AJN4658343_15)の費用は、こちらよりお問い合わせいただくか、直接四谷店(0037-6001-06556)までご連絡ください。
  • A. はい、可能です。賃貸希望物件リクエストをご利用ください。新宿区大京町マンション(AJN4658343_15)に似た物件も合わせてご紹介させていただきます。