前へ
次へ
前へ
次へ
アパート

江戸川区東小松川アパート

NEW
6.5 万円
共益費 5,000
-
-
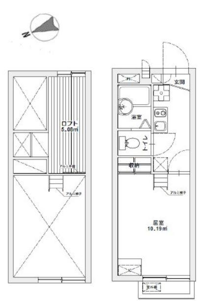
間取り
1K
専有面積
19.87㎡
所在階
2階建ての1階
向き
北西
  • アイコン: 住所 東京都江戸川区東小松川4丁目
  • アイコン: 交通 都営新宿線 「船堀駅」 徒歩10分 / 都営新宿線 「東大島駅」 徒歩20分 / 都営新宿線 「一之江駅」 徒歩28分
簡単無料
アイコン: お電話 0037-6001-06556
IP電話ご利用のお客様 : 03-4329-1394
ピタットハウス
四谷店
point!
当物件はオンラインまたは店舗でご相談お申込を承ります
室内見学承ります・お客様のご都合に合わせてオンラインまたはお近くの店舗でご提案可・初期費用分割払い可・クレジットカード利用可・引越業者割引・初期費用のお見積や入居日のご相談もお気軽にお問合せください
お気軽にお問い合わせください!
簡単無料
お気軽にお問い合わせください!
物件情報・周辺環境・契約手続きについてなどお気軽にお問い合わせください。

設備・条件

建物・立地
  • 駐輪場
  • プロパンガス
  • 敷地内ごみ置き場
  • 常時ゴミ出し可能
  • 公営水道
  • 下水
通信
  • その他インターネット
  • LAN
セキュリティ
  • TVモニター付きインターホン
部屋設備
  • フローリング
  • バルコニー
  • ロフト
  • 室内洗濯機置場
  • 下駄箱
  • クローゼット
  • 玄関収納
  • 24時間換気システム
  • 上階無し
  • 2面採光
  • 通風良好
冷暖房
  • エアコン
キッチン
  • システムキッチン
  • IHコンロ
バス・トイレ
  • バス・トイレ別
  • 浴室乾燥機
  • 温水洗浄便座
特徴
  • 保証会社利用可
  • 保証人不要
  • 初期費用カード決済可

物件概要

物件種別

部屋種別 アパート
建物名称 江戸川区東小松川アパート
所在地 東京都江戸川区東小松川4丁目 MAP
築年月 2003年12月 階数 2階建ての1階
建物構造 重量鉄骨造 総戸数 30戸
間取り 1K 専有面積 19.87㎡
向き 北西 バルコニー面積 -
その他 管理形態:巡回管理 

費用

賃料 6.5万円 初期費用の確認をする 初期費用の確認をする 共益費 5,000円
礼金 - 敷金 -
保証金 - 償却金 -
その他一時金 鍵交換代(税込):22000円 / ステッカー発行手数料(初回のみ):1100円
その他月額費用 駆け付けサービス(月額):1100円/月
住宅保険 要加入(2年20560円)
保証会社 必須
保証会社補足 初回:賃料等総額の50%〜
更新料 更新後賃料:1ヶ月 更新事務手数料 -

契約条件

貸家契約区分 普通賃貸借 契約期間 2年
入居可能日 相談 空室状況を確認をする 空室状況を確認をする 引渡時期相談内容 -
フリーレント -
クレジットカード決済 -

駐車場

駐車場 なし 駐車場について質問する 駐車場について質問する
駐車場契約形態 -
駐車場備考 -
バイク置き場 -
駐輪場 -

備考

その他 リライフは首都圏23店舗のネットワークで豊富な物件情報をお客様へご提供します。当物件に類似した未公開物件なども合わせてご提案可能です。お気軽にお問合せください。
関連リンク
取引態様 媒介 管理コード 4662002
情報登録(更新)日 2026年4月19日 次回更新予定日 2026年4月26日
備考 めやす賃料:

めやす賃料とは賃料、共益費・管理費、敷引金、更新料を含み、賃料等条件の改定がないものと仮定して4年間賃借した場合(定期借家の場合は契約期間)の1ヶ月当たりの金額です。

※敷引金は、敷金の償却、保証金の償却など、預かった金額から必ず引くものをいいます。
※めやす賃料は、消費者に適切な情報を提供するための表示であり事業者に一時金を推奨するものではありません。
※めやす賃料は、実際の総支払額と異なる場合があります。詳しくは不動産会社にご確認ください。  

周辺環境

  • まいばすけっと 東小松川2丁目店:716m
    まいばすけっと 東小松川2丁目店:716m
  • イオンフードスタイル 船堀店:831m
    イオンフードスタイル 船堀店:831m
  • ローソン BOAT RACE江戸川前店:186m
    ローソン BOAT RACE江戸川前店:186m
  • セブンイレブン 江戸川松江南店:403m
    セブンイレブン 江戸川松江南店:403m
  • ツルハドラッグ 船堀店:798m
    ツルハドラッグ 船堀店:798m
  • ポニークリーニング 船堀駅前店:866m
    ポニークリーニング 船堀駅前店:866m
  • 三菱UFJ銀行 船堀駅前支店:971m
    三菱UFJ銀行 船堀駅前支店:971m
コンビニ
ローソン BOAT RACE江戸川前店
186m
買物
まいばすけっと 東小松川2丁目店
716m
ドラッグストア
ツルハドラッグ 船堀店
798m
ホームセンター
ホームセンターコーナン 江戸川中
2755m
病院
松江病院
1324m
公園
大島小松川公園
1730m
銀行
三菱UFJ銀行 船堀駅前支店
971m

取扱店舗

ピタットハウス四谷店
ピタットハウス四谷店
株式会社リライフ
交通
四ツ谷駅 徒歩3分JR中央総武線・東京メトロ丸ノ内線・東京メトロ南北線四谷三丁目駅 徒歩9分東京メトロ丸ノ内線
営業時間
10:00 〜 18:30
定休日
毎週火水曜日(1月〜3月を除く)
お電話 0037-6001-06556 無料
メール お問い合わせ
  • お問い合わせ区分

  • 内見希望日時

    第一希望

    第二希望

  • お名前

    全角
  • ご希望の連絡方法

    メールアドレス

    電話番号

    半角
    半角
  • その他ご希望等

ピタットハウスの個人情報の取り扱いについて

ピタットハウスでは信頼されるサイトを目指して、物件情報の精度向上に努めています。
掲載物件に誤りがある場合は こちら からご連絡ください。現状と異なる場合は、現状を優先させていただきます。
取引態様の欄に「媒介」と表示された物件は「仲介物件」です。ご成約の際には仲介手数料を申し受けます。

生活情報

江戸川区の暮らしデータ

江戸川区は、東京の東端に位置し、総面積は49.09km2で、水と緑に恵まれた快適環境都市、高齢者・子育て施策が充実した福祉先進都市です。また、活発な産業と豊かな文化・コミュニティ活動を基盤とした活気あふれるまちです。

基本データ

市区役所所在地 江戸川区中央1-4-1
公式ホームページURL https://www.city.edogawa.tokyo.jp/
総人口 697,932人
人口増減率(2015年/2020年) 102.4%
江戸川区の生活情報を詳しくみる

地域のおすすめ情報ブログ

一覧を見る

船堀駅近隣の駅から探す

江戸川区の近隣エリアから探す

FAQ

  • A. 江戸川区東小松川アパート(AJN4662002_6)の内見は、見学予約でお問い合わせいただくか、直接四谷店(0037-6001-06556)までご連絡ください。
  • A. 可能です。江戸川区東小松川アパート(AJN4662002_6)周辺の情報は、ピタットハウスの地域情報ブログ「街ピタ」住みたい街の暮らしデータをご活用ください。
  • A. 江戸川区東小松川アパート(AJN4662002_6)の費用は、こちらよりお問い合わせいただくか、直接四谷店(0037-6001-06556)までご連絡ください。
  • A. はい、可能です。賃貸希望物件リクエストをご利用ください。江戸川区東小松川アパート(AJN4662002_6)に似た物件も合わせてご紹介させていただきます。