当物件はオンラインまたはお近くの店舗でご相談お申込を承ります
室内見学承ります・お客様のご都合に合わせてオンラインまたはお近くの店舗でご提案可・初期費用分割払い可・クレジットカード利用可・引越業者割引・初期費用のお見積や入居日のご相談もお気軽にお問合せください

お気軽にお問い合わせください!
物件情報・周辺環境・契約手続きについてなどお気軽にお問い合わせください。
設備・条件
|
|
---|---|
|
|
|
|
|
|
|
|
|
|
|
|
|
|
物件概要
物件種別
部屋種別 | マンション | ||
---|---|---|---|
建物名称 | 目黒区東山マンション | ||
所在地 | 東京都目黒区東山3丁目 MAP | ||
築年月 | 2005年4月 | 階数 | 5階建ての1階 |
建物構造 | 鉄筋コンクリート造 | 総戸数 | 56戸 |
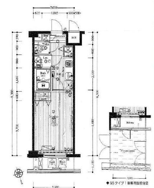
間取り | 1K | 専有面積 | 22.16㎡ |
向き | 南西 | バルコニー面積 | 2.95㎡ |
その他 | 管理形態:日勤管理 |
費用
賃料 |
9.1万円
初期費用の確認をする
|
共益費 | 9,000円 |
---|---|---|---|
礼金 | 2ヶ月 | 敷金 | 1ヶ月 |
保証金 | - | 償却金 | - |
その他一時金 | 鍵交換代(税込):23100円 | ||
その他月額費用 | - | ||
住宅保険 | 要加入(2年20000円) | ||
保証会社 | 必須 | ||
保証会社補足 | 賃料等の0.5ヶ月分(最低保証料2万円)/月額保証料800円 | ||
更新料 | 更新後賃料:1ヶ月 | 更新事務手数料 | - |
契約条件
貸家契約区分 | 普通賃貸借 | 契約期間 | 2年 |
---|---|---|---|
入居可能日 |
即可
空室状況を確認をする
|
引渡時期相談内容 | - |
フリーレント | - | ||
クレジットカード決済 | - |
駐車場
駐車場 |
なし
駐車場について質問する
|
||
---|---|---|---|
駐車場契約形態 | - | ||
駐車場備考 | - | ||
バイク置き場 | - | ||
駐輪場 | - |
備考
その他 | 当物件は「住まいのリライフ」で取り扱っております。リライフは首都圏25店舗のネットワークで豊富な物件情報をお客様へご提供します。当物件に類似した未公開物件なども合わせてご提案可能です。お気軽にお問合せください。退室料:5.17万円 | ||
---|---|---|---|
関連リンク | |||
取引態様 | 媒介 | 管理コード | 4665401 |
情報登録(更新)日 | 2025年10月5日 | 次回更新予定日 | 2025年10月12日 |
周辺環境
-
成城石井 池尻大橋店:288m
-
成城石井 池尻大橋店:297m
-
ファミリーマート 東山三丁目店:172m
-
ポプラ 池尻大橋店:186m
-
スワローチェーン 池尻大橋店:126m
-
みずほ銀行 池尻大橋支店:200m
-
東山貝塚公園:95m
- コンビニ
-
ファミリーマート 東山三丁目店172m
- 買物
-
成城石井 池尻大橋店288m
- ドラッグストア
-
ココカラファイン 池尻大橋店149m
- ホームセンター
-
ケユカ青山店3890m
- 病院
-
東邦大学医療センター 大橋病院552m
- 公園
-
東山貝塚公園95m
- 銀行
-
みずほ銀行 池尻大橋支店200m
取扱店舗

ピタットハウス四谷店
株式会社リライフ
- 交通
- 四ツ谷駅 徒歩3分JR中央総武線・東京メトロ丸ノ内線・東京メトロ南北線四谷三丁目駅 徒歩9分東京メトロ丸ノ内線
- 営業時間
- 10:00 〜 18:30
- 定休日
- 毎週水曜日
ピタットハウスでは信頼されるサイトを目指して、物件情報の精度向上に努めています。
掲載物件に誤りがある場合は
こちら からご連絡ください。現状と異なる場合は、現状を優先させていただきます。
取引態様の欄に「媒介」と表示された物件は「仲介物件」です。ご成約の際には仲介手数料を申し受けます。
生活情報
目黒区の暮らしデータ
目黒区は、東京23区の南西部にあり、区内は台地の中を二つの川の谷が走り、起伏の多い地形です。1932年に目黒町と碑衾町が合併し誕生した、山の手の緑ある良好な住宅地です。世論調査でも、「住み続けたい」という人が90%を超える、良好な住環境が特徴です。
基本データ
市区役所所在地 | 目黒区上目黒2-19-15 |
---|---|
公式ホームページURL | https://www.city.meguro.tokyo.jp/ |
総人口 | 288,088人 |
人口増減率(2015年/2020年) | 103.8% |
地域のおすすめ情報ブログ
一覧を見る
-
〜小さなスイーツで大きな笑顔を〜今日は、都立大学駅で人気のスイーツ店「とよんちのたまご都立大学駅前店」のご紹介です!駅から歩いて2分!卵好きにはたまらないスイー...続きを読む
-
〜食の楽しさを求めて〜こんにちは!ピタットハウス都立大学店の佐藤です。本日ご紹介するのは、都立大学駅徒歩2分にお店を構える、『freefromstyl...続きを読む
-
味良しコスパ良しの焼肉屋さん『大統領』〜お久しぶりです!都立大学店の佐藤です。本日は弊社の男性スタッフに大人気のお店『大統領』さんをご紹介します♪都立大学駅から徒歩5分...続きを読む
-
ママの元気を貰いに行こう!愛される名店こんにちは!新人の須田です!記念すべき私の初投稿でご紹介させていただくのは、地元に愛される隠れた名店『ママズキッチン』さんです!...続きを読む
池尻大橋駅近隣の駅から探す
目黒区の近隣エリアから探す
FAQ
-
A. 目黒区東山マンション(AJN4665401_3)の内見は、見学予約でお問い合わせいただくか、直接四谷店(0037-6001-06556)までご連絡ください。
-
A. 可能です。目黒区東山マンション(AJN4665401_3)周辺の情報は、ピタットハウスの地域情報ブログ「街ピタ」や住みたい街の暮らしデータをご活用ください。
-
A. 目黒区東山マンション(AJN4665401_3)の費用は、こちらよりお問い合わせいただくか、直接四谷店(0037-6001-06556)までご連絡ください。
-
A. はい、可能です。賃貸希望物件リクエストをご利用ください。目黒区東山マンション(AJN4665401_3)に似た物件も合わせてご紹介させていただきます。