当物件はオンラインまたはお近くの店舗でご相談お申込を承ります
室内見学承ります・お客様のご都合に合わせてオンラインまたはお近くの店舗でご提案可・初期費用分割払い可・クレジットカード利用可・引越業者割引・初期費用のお見積や入居日のご相談もお気軽にお問合せください

お気軽にお問い合わせください!
物件情報・周辺環境・契約手続きについてなどお気軽にお問い合わせください。
設備・条件
|
|
---|---|
|
|
|
|
|
|
|
|
|
|
|
|
|
|
物件概要
物件種別
部屋種別 | マンション | ||
---|---|---|---|
建物名称 | 中野区東中野マンション | ||
所在地 | 東京都中野区東中野5丁目 MAP | ||
築年月 | 2023年11月 | 階数 | 5階建ての3階 |
建物構造 | 鉄筋コンクリート造 | 総戸数 | - |
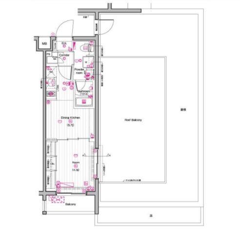
間取り | 2K | 専有面積 | 25.98㎡ |
向き | 南東 | バルコニー面積 | - |
その他 | - |
費用
賃料 |
14万円
初期費用の確認をする
|
共益費 | 15,000円 |
---|---|---|---|
礼金 | 1ヶ月 | 敷金 | 1ヶ月 + ペット積み増し(1ヶ月) |
保証金 | - | 償却金 | 1.00ヶ月(解約時) |
その他一時金 | 鍵交換代(税込):22000円 / 入居中サポート(年額):21450円 / 抗菌代(初回のみ):17600円 / 事務手数料(初回のみ):11000円 | ||
その他月額費用 | - | ||
住宅保険 | 要加入(2年23000円) | ||
保証会社 | 必須 | ||
保証会社補足 | 初回:月額総家賃の50%〜 | ||
更新料 | 更新後賃料:1.5ヶ月 | 更新事務手数料 | - |
契約条件
貸家契約区分 | 普通賃貸借 | 契約期間 | 2年 |
---|---|---|---|
入居可能日 |
2025年11月10日予定
空室状況を確認をする
|
引渡時期相談内容 | - |
フリーレント | - | ||
クレジットカード決済 | - |
駐車場
駐車場 |
なし
駐車場について質問する
|
||
---|---|---|---|
駐車場契約形態 | - | ||
駐車場備考 | - | ||
バイク置き場 | - | ||
駐輪場 | - |
備考
その他 | 当物件は「住まいのリライフ」で取り扱っております。リライフは首都圏25店舗のネットワークで豊富な物件情報をお客様へご提供します。当物件に類似した未公開物件なども合わせてご提案可能です。お気軽にお問合せください。ペット飼育可(共益費+3500円追加、2匹の場合共益費+3500円追加及び敷金1ヶ月追加(償却))違約金有:1年未満解約時:賃料1ヶ月分 | ||
---|---|---|---|
関連リンク | |||
取引態様 | 媒介 | 管理コード | 4667063 |
情報登録(更新)日 | 2025年10月10日 | 次回更新予定日 | 2025年10月17日 |
周辺環境
-
いなげや 新宿小滝橋店:305m
-
まいばすけっと 上落合店:343m
-
ローソン 小滝橋店:338m
-
ミニストップ 北新宿4丁目店:366m
-
ココカラファイン 東中野5丁目店:304m
-
ポニークリーニング 小滝橋店:445m
-
聖母病院:1571m
-
オリンピック 中落合店:1338m
-
三菱UFJ銀行 東中野支店:893m
-
中野区立けやき公園:138m
- コンビニ
-
ローソン 小滝橋店338m
- 買物
-
いなげや 新宿小滝橋店305m
- ドラッグストア
-
ココカラファイン 東中野5丁目店304m
- ホームセンター
-
オリンピック 中落合店1338m
- 病院
-
聖母病院1571m
- 公園
-
中野区立けやき公園138m
- 銀行
-
三菱UFJ銀行 東中野支店893m
取扱店舗

ピタットハウス四谷店
株式会社リライフ
- 交通
- 四ツ谷駅 徒歩3分JR中央総武線・東京メトロ丸ノ内線・東京メトロ南北線四谷三丁目駅 徒歩9分東京メトロ丸ノ内線
- 営業時間
- 10:00 〜 18:30
- 定休日
- 毎週水曜日
ピタットハウスでは信頼されるサイトを目指して、物件情報の精度向上に努めています。
掲載物件に誤りがある場合は
こちら からご連絡ください。現状と異なる場合は、現状を優先させていただきます。
取引態様の欄に「媒介」と表示された物件は「仲介物件」です。ご成約の際には仲介手数料を申し受けます。
生活情報
中野区の暮らしデータ
中野区は、1889年、甲武鉄道(現・中央線)の開通で中野駅が開設され、近郊住宅地として発展しました。その後、西武新宿線や地下鉄丸の内線の開通により人口増加と宅地化が一層進行しました。人口密度は東京23区の中でも上位に位置し、世帯の6割以上は単身世帯、また、65歳以上の人口は、年々増加しており20.1%を占めています。最も多い年齢層は、25〜29歳となっています(2023年1月現在)。中野駅周辺のまちづくりの進展により、2012年にオープンした「中野四季の都市(まち)」に大学や企業が集積し、占めている昼間人口が増えました。さらに、中野駅新北口の整備や駅周辺各地区の再開発により、中野が「東京の新たなエネルギーを生み出す活動拠点」となることを目指しています。
基本データ
市区役所所在地 | 中野区中野4-11-19 |
---|---|
公式ホームページURL | https://www.city.tokyo-nakano.lg.jp/ |
総人口 | 344,880人 |
人口増減率(2015年/2020年) | 105.1% |
地域のおすすめ情報ブログ
一覧を見る
-
新築 1フロア1世帯1LDK 希少ですグループ650店舗のネットワークでお客様のお部屋探しをサポートする方南町唯一の大手不動産会社ピタットハウス方南町店です。方南町駅...続きを読む
-
For stable revenuePitatHouseHonanchoBranch:Yourtrustedrealestatepartnersupportingy...続きを読む
-
安定的な収益が見込める一棟ホテルグループ650店舗のネットワークでお客様のお部屋探しをサポートする方南町唯一の大手不動産会社ピタットハウス方南町店です。3階低層...続きを読む
-
都市の暮らしを彩るデザイナーズマンショングループ650店舗のネットワークでお客様のお部屋探しをサポートする方南町唯一の大手不動産会社ピタットハウス方南町店です。【新築一...続きを読む
落合駅近隣の駅から探す
中野区の近隣エリアから探す
FAQ
-
A. 中野区東中野マンション(AJN4667063_4)の内見は、見学予約でお問い合わせいただくか、直接四谷店(0037-6001-06556)までご連絡ください。
-
A. 可能です。中野区東中野マンション(AJN4667063_4)周辺の情報は、ピタットハウスの地域情報ブログ「街ピタ」や住みたい街の暮らしデータをご活用ください。
-
A. 中野区東中野マンション(AJN4667063_4)の費用は、こちらよりお問い合わせいただくか、直接四谷店(0037-6001-06556)までご連絡ください。
-
A. はい、可能です。賃貸希望物件リクエストをご利用ください。中野区東中野マンション(AJN4667063_4)に似た物件も合わせてご紹介させていただきます。