前へ
次へ
前へ
次へ
マンション
即入居可

渋谷区代々木マンション

NEW
24 万円
共益費 20,000
1ヶ月
1ヶ月
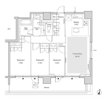
間取り
1LDK
専有面積
33.76㎡
所在階
地下1階・地上9階建ての5階
向き
  • アイコン: 住所 東京都渋谷区代々木3丁目
  • アイコン: 交通 小田急小田原線 「南新宿駅」 徒歩6分 / 京王線 「初台駅」 徒歩13分 / JR山手線 「代々木駅」 徒歩8分
簡単無料
アイコン: お電話 0037-6001-06556
IP電話ご利用のお客様 : 03-4329-1394
ピタットハウス
四谷店
point!
当物件はオンラインまたはお近くの店舗でご相談お申込を承ります
室内見学承ります・お客様のご都合に合わせてオンラインまたはお近くの店舗でご提案可・初期費用分割払い可・クレジットカード利用可・引越業者割引・初期費用のお見積や入居日のご相談もお気軽にお問合せください
お気軽にお問い合わせください!
簡単無料
お気軽にお問い合わせください!
物件情報・周辺環境・契約手続きについてなどお気軽にお問い合わせください。

設備・条件

建物・立地
  • エレベータ
  • 宅配ボックス
  • 駐輪場
  • 都市ガス
  • 敷地内ごみ置き場
  • バイク置場
  • 公営水道
  • 下水
通信
  • インターネット無料
  • その他インターネット
  • LAN
セキュリティ
  • オートロック
  • TVモニター付きインターホン
  • 防犯カメラ
部屋設備
  • フローリング
  • バルコニー
  • 室内洗濯機置場
  • 下駄箱
  • クローゼット
  • ウォークインクロゼット
  • 玄関収納
  • 24時間換気システム
  • 2面採光
冷暖房
  • エアコン
キッチン
  • システムキッチン
  • ガスコンロ(2口)
バス・トイレ
  • バス・トイレ別
  • 浴室乾燥機
  • 追い焚き風呂
  • 独立洗面台
  • 脱衣所
特徴
  • 新築
  • ペット相談可
  • ピアノ相談可
  • 保証会社利用可
  • 二人入居可
  • 二人入居相談
  • SOHO向き
  • 保証人不要
  • 初期費用カード決済可

物件概要

物件種別

部屋種別 マンション
建物名称 渋谷区代々木マンション
所在地 東京都渋谷区代々木3丁目 MAP
築年月 2025年11月 階数 地下1階・地上9階建ての5階
建物構造 鉄筋コンクリート造 総戸数 -
間取り 1LDK(LDK8.5帖 洋4.5帖) 専有面積 33.76㎡
向き バルコニー面積 7.93㎡
その他 -

費用

賃料 24万円 初期費用の確認をする 初期費用の確認をする 共益費 20,000円
礼金 1ヶ月 敷金 1ヶ月 + ペット積み増し(1ヶ月)
保証金 - 償却金 -
その他一時金 駆付けサポート24(初回のみ):16500円
その他月額費用 駐輪場(月額):550円/月 バイク置き場(月額):11000円/月
住宅保険 要加入
保証会社 必須
保証会社補足 初回:月額総家賃の50%〜
更新料 更新後賃料:1ヶ月 更新事務手数料 -

契約条件

貸家契約区分 普通賃貸借 契約期間 2年
入居可能日 即可 空室状況を確認をする 空室状況を確認をする 引渡時期相談内容 -
フリーレント -
クレジットカード決済 -

駐車場

駐車場 なし 駐車場について質問する 駐車場について質問する
駐車場契約形態 -
駐車場備考 -
バイク置き場 -
駐輪場 -

備考

その他 当物件は「住まいのリライフ」で取り扱っております。リライフは首都圏25店舗のネットワークで豊富な物件情報をお客様へご提供します。当物件に類似した未公開物件なども合わせてご提案可能です。お気軽にお問合せください。
関連リンク
取引態様 媒介 管理コード 4677455
情報登録(更新)日 2025年11月14日 次回更新予定日 2025年11月21日
備考 めやす賃料:

めやす賃料とは賃料、共益費・管理費、敷引金、更新料を含み、賃料等条件の改定がないものと仮定して4年間賃借した場合(定期借家の場合は契約期間)の1ヶ月当たりの金額です。

※敷引金は、敷金の償却、保証金の償却など、預かった金額から必ず引くものをいいます。
※めやす賃料は、消費者に適切な情報を提供するための表示であり事業者に一時金を推奨するものではありません。
※めやす賃料は、実際の総支払額と異なる場合があります。詳しくは不動産会社にご確認ください。  

周辺環境

  • miniピアゴ 代々木1丁目店:173m
    miniピアゴ 代々木1丁目店:173m
  • マルマンストア南新宿店:516m
    マルマンストア南新宿店:516m
  • ローソン 代々木一丁目店:219m
    ローソン 代々木一丁目店:219m
  • ローソン 代々木西参道店:264m
    ローソン 代々木西参道店:264m
  • ウエルシア 代々木三丁目店:256m
    ウエルシア 代々木三丁目店:256m
  • ポニークリーニング 代々木1丁目店:272m
    ポニークリーニング 代々木1丁目店:272m
  • 東海大学医学部付属東京病院:634m
    東海大学医学部付属東京病院:634m
  • 新宿日曜大工センター:2993m
    新宿日曜大工センター:2993m
  • みずほ銀行 新宿南口支店:1101m
    みずほ銀行 新宿南口支店:1101m
コンビニ
ローソン 代々木一丁目店
219m
買物
miniピアゴ 代々木1丁目店
173m
ドラッグストア
ウエルシア 代々木三丁目店
256m
ホームセンター
新宿日曜大工センター
2993m
病院
東海大学医学部付属東京病院
634m
公園
渋谷区立参宮橋公園
581m
銀行
みずほ銀行 新宿南口支店
1101m

取扱店舗

ピタットハウス四谷店
ピタットハウス四谷店
株式会社リライフ
交通
四ツ谷駅 徒歩3分JR中央総武線・東京メトロ丸ノ内線・東京メトロ南北線四谷三丁目駅 徒歩9分東京メトロ丸ノ内線
営業時間
10:00 〜 18:30
定休日
毎週水曜日
お電話 0037-6001-06556 無料
メール お問い合わせ
  • お問い合わせ区分

  • 内見希望日時

    第一希望

    第二希望

  • お名前

    全角
  • ご希望の連絡方法

    メールアドレス

    電話番号

    半角
    半角
  • その他ご希望等

ピタットハウスの個人情報の取り扱いについて

ピタットハウスでは信頼されるサイトを目指して、物件情報の精度向上に努めています。
掲載物件に誤りがある場合は こちら からご連絡ください。現状と異なる場合は、現状を優先させていただきます。
取引態様の欄に「媒介」と表示された物件は「仲介物件」です。ご成約の際には仲介手数料を申し受けます。

生活情報

渋谷区の暮らしデータ

渋谷区は、1932年10月1日に渋谷町・千駄ヶ谷町・代々幡町が合併し、ほかの79町村とともに大東京35区の一環として誕生しました。渋谷や原宿周辺の都市部は、ファッション関係の店舗をはじめ、表参道ヒルズ、渋谷ヒカリエ、渋谷ストリーム、渋谷スクランブルスクエア、WITH HARAJUKU、MIYASHITA PARKなどさまざまな商業ビル・施設があり、区民だけでなく多くの来街者が集まるエリアです。また、都心でありながらも明治神宮や代々木公園など自然豊かな場所にも恵まれている区です。

基本データ

市区役所所在地 渋谷区宇田川町1-1
公式ホームページURL https://www.city.shibuya.tokyo.jp/
総人口 243,883人
人口増減率(2015年/2020年) 108.6%
渋谷区の生活情報を詳しくみる

地域のおすすめ情報ブログ

一覧を見る

南新宿駅近隣の駅から探す

渋谷区の近隣エリアから探す

FAQ

  • A. 渋谷区代々木マンション(AJN4677455_6)の内見は、見学予約でお問い合わせいただくか、直接四谷店(0037-6001-06556)までご連絡ください。
  • A. 可能です。渋谷区代々木マンション(AJN4677455_6)周辺の情報は、ピタットハウスの地域情報ブログ「街ピタ」住みたい街の暮らしデータをご活用ください。
  • A. 渋谷区代々木マンション(AJN4677455_6)の費用は、こちらよりお問い合わせいただくか、直接四谷店(0037-6001-06556)までご連絡ください。
  • A. はい、可能です。賃貸希望物件リクエストをご利用ください。渋谷区代々木マンション(AJN4677455_6)に似た物件も合わせてご紹介させていただきます。