当物件はオンラインまたはお近くの店舗でご相談お申込を承ります
室内見学承ります・お客様のご都合に合わせてオンラインまたはお近くの店舗でご提案可・初期費用分割払い可・クレジットカード利用可・引越業者割引・初期費用のお見積や入居日のご相談もお気軽にお問合せください

お気軽にお問い合わせください!
物件情報・周辺環境・契約手続きについてなどお気軽にお問い合わせください。
設備・条件
|
|
---|---|
|
|
|
|
|
|
|
|
|
|
|
|
|
|
物件概要
物件種別
部屋種別 | マンション | ||
---|---|---|---|
建物名称 | 葛飾区新小岩マンション | ||
所在地 | 東京都葛飾区新小岩1丁目 MAP | ||
築年月 | 2022年11月 | 階数 | 14階建ての6階 |
建物構造 | 鉄筋コンクリート造 | 総戸数 | 112戸 |
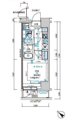
間取り | 1K(洋6.1帖) | 専有面積 | 20.68㎡ |
向き | 南西 | バルコニー面積 | - |
その他 | - |
費用
賃料 |
9.15万円
初期費用の確認をする
|
共益費 | 20,000円 |
---|---|---|---|
礼金 | - | 敷金 | ペット積み増し(1ヶ月) |
保証金 | - | 償却金 | - |
その他一時金 | AMLクラブサポート費用(契約時請求)(初回のみ):16500円 | ||
その他月額費用 | - | ||
住宅保険 | 要加入(2年16000円) | ||
保証会社 | 必須 | ||
保証会社補足 | 初回:月額総家賃の50%〜 | ||
更新料 | 更新後賃料:1.5ヶ月 | 更新事務手数料 | - |
契約条件
貸家契約区分 | 普通賃貸借 | 契約期間 | 2年 |
---|---|---|---|
入居可能日 |
2025年11月1日予定
空室状況を確認をする
|
引渡時期相談内容 | - |
フリーレント | - | ||
クレジットカード決済 | - |
駐車場
駐車場 |
なし
駐車場について質問する
|
||
---|---|---|---|
駐車場契約形態 | - | ||
駐車場備考 | - | ||
バイク置き場 | - | ||
駐輪場 | - |
備考
その他 | 当物件は「住まいのリライフ」で取り扱っております。リライフは首都圏25店舗のネットワークで豊富な物件情報をお客様へご提供します。当物件に類似した未公開物件なども合わせてご提案可能です。お気軽にお問合せください。 違約金有:1年未満=1ヶ月、半年未満=2ヶ月 | ||
---|---|---|---|
関連リンク | |||
取引態様 | 媒介 | 管理コード | 4687803 |
情報登録(更新)日 | 2025年10月17日 | 次回更新予定日 | 2025年10月24日 |
周辺環境
-
コープみらい ミニコープ江戸川中央店:274m
-
まいばすけっと 松島4丁目店:365m
-
セブンイレブン 葛飾新小岩1丁目店:290m
-
セブンイレブン 江戸川中央4丁目店:322m
-
ホワイト急便 新小岩1丁目店:20m
-
三井住友銀行 新小岩支店:685m
- コンビニ
-
セブンイレブン 葛飾新小岩1丁目店290m
- 買物
-
コープみらい ミニコープ江戸川中274m
- ドラッグストア
-
ココカラファイン 新小岩店189m
- ホームセンター
-
生活快館スゴー399m
- 病院
-
江戸川区医療法人社団 同愛会病院1205m
- 公園
-
西井堀せせらぎパーク1421m
- 銀行
-
三井住友銀行 新小岩支店685m
取扱店舗

ピタットハウス四谷店
株式会社リライフ
- 交通
- 四ツ谷駅 徒歩3分JR中央総武線・東京メトロ丸ノ内線・東京メトロ南北線四谷三丁目駅 徒歩9分東京メトロ丸ノ内線
- 営業時間
- 10:00 〜 18:30
- 定休日
- 毎週水曜日
ピタットハウスでは信頼されるサイトを目指して、物件情報の精度向上に努めています。
掲載物件に誤りがある場合は
こちら からご連絡ください。現状と異なる場合は、現状を優先させていただきます。
取引態様の欄に「媒介」と表示された物件は「仲介物件」です。ご成約の際には仲介手数料を申し受けます。
生活情報
葛飾区の暮らしデータ
葛飾区は、東京の北東部に位置し、荒川、江戸川、中川など河川に囲まれた自然豊かな、下町人情溢れるまちです。映画『男はつらいよ』の舞台となり、都内では初の国の重要文化的景観に選定された柴又や『こちら葛飾区亀有公園前派出所』で有名な亀有、世界的に有名なサッカー漫画『キャプテン翼』ゆかりの地である立石・四つ木、6月に区の花・花菖蒲が咲き誇る堀切菖蒲園や広大な水郷景観のある水元公園などには、多くの観光客の方にお越しいただいています。代表的な区ゆかりの玩具である「リカちゃん」「トミカ」「人生ゲーム」「モンチッチ」などを活用したPRやイベントも好評です。区では現在、子育てや教育、福祉、健康施策、SDGsにも力を入れています。
基本データ
市区役所所在地 | 葛飾区立石5-13-1 |
---|---|
公式ホームページURL | https://www.city.katsushika.lg.jp/ |
総人口 | 453,093人 |
人口増減率(2015年/2020年) | 102.3% |
地域のおすすめ情報ブログ
一覧を見る
-
地域に愛されるお豆腐屋さん!こんにちは!ピタットハウス新小岩店の小林です!今回は葛飾区立石にある『黒須豆腐店』さんのご紹介です!こちらのお店は、京成立石駅か...続きを読む
-
ケーキもお食事も楽しめるお店!こんにちは!ピタットハウス新小岩店の小林です!今回は葛飾区立石にあるスイーツ店『MinoRumiマルキ』さんのご紹介です。こちら...続きを読む
-
平和橋のご紹介こんにちは!ピタットハウス新小岩店の小林です!今回は平和橋通りにかかる『平和橋』のご紹介です!平和橋通りは、足立区の日光街道の千...続きを読む
-
夜までやってるアイス屋さん!こんにちは!ピタットハウス新小岩店の小林です!今回は『アイスは別腹』さんのご紹介です!こちらのお店は新小岩駅北口から徒歩2分ほど...続きを読む
新小岩駅近隣の駅から探す
葛飾区の近隣エリアから探す
FAQ
-
A. 葛飾区新小岩マンション(AJN4687803_11)の内見は、見学予約でお問い合わせいただくか、直接四谷店(0037-6001-06556)までご連絡ください。
-
A. 可能です。葛飾区新小岩マンション(AJN4687803_11)周辺の情報は、ピタットハウスの地域情報ブログ「街ピタ」や住みたい街の暮らしデータをご活用ください。
-
A. 葛飾区新小岩マンション(AJN4687803_11)の費用は、こちらよりお問い合わせいただくか、直接四谷店(0037-6001-06556)までご連絡ください。
-
A. はい、可能です。賃貸希望物件リクエストをご利用ください。葛飾区新小岩マンション(AJN4687803_11)に似た物件も合わせてご紹介させていただきます。