前へ
次へ
前へ
次へ
マンション

大田区大森東マンション

NEW
18.6 万円
共益費 20,000
1ヶ月
1ヶ月
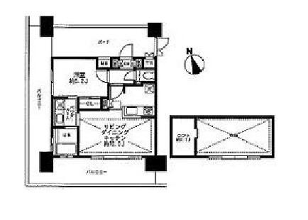
間取り
1LDK
専有面積
42.43㎡
所在階
10階建ての10階
向き
西
  • アイコン: 住所 東京都大田区大森東1丁目
  • アイコン: 交通 京急本線 「平和島駅」 徒歩3分 / 東京モノレール羽田線 「流通センター駅」 徒歩19分 / JR京浜東北・根岸線 「大森駅」 徒歩24分
簡単無料
アイコン: お電話 0037-6001-06556
IP電話ご利用のお客様 : 03-4329-1394
ピタットハウス
四谷店
point!
当物件はオンラインまたはお近くの店舗でご相談お申込を承ります
室内見学承ります・お客様のご都合に合わせてオンラインまたはお近くの店舗でご提案可・初期費用分割払い可・クレジットカード利用可・引越業者割引・初期費用のお見積や入居日のご相談もお気軽にお問合せください
お気軽にお問い合わせください!
簡単無料
お気軽にお問い合わせください!
物件情報・周辺環境・契約手続きについてなどお気軽にお問い合わせください。

設備・条件

建物・立地
  • 最上階
  • 角部屋
  • エレベータ
  • 宅配ボックス
  • 駐輪場
  • 都市ガス
  • 敷地内ごみ置き場
  • バイク置場
  • 公営水道
  • 下水
通信
  • BSアンテナ
  • その他インターネット
  • LAN
セキュリティ
  • オートロック
  • TVモニター付きインターホン
  • 防犯カメラ
部屋設備
  • フローリング
  • バルコニー
  • 室内洗濯機置場
  • 下駄箱
  • クローゼット
  • 全居室フローリング
  • 南面バルコニー
  • 陽当り良好
  • 玄関収納
  • 2面バルコニー
  • 24時間換気システム
  • 眺望良好
  • L字型バルコニー
  • 上階無し
  • 2面採光
  • 通風良好
冷暖房
  • エアコン
キッチン
  • システムキッチン
  • ガスコンロ(3口)
バス・トイレ
  • バス・トイレ別
  • 浴室乾燥機
  • 独立洗面台
  • 温水洗浄便座
  • 脱衣所
特徴
  • 保証会社利用可
  • コンビニ近く
  • 楽器不可
  • 事務所利用不可
  • 保証人不要
  • 初期費用カード決済可

物件概要

物件種別

部屋種別 マンション
建物名称 大田区大森東マンション
所在地 東京都大田区大森東1丁目 MAP
築年月 2007年8月 階数 10階建ての10階
建物構造 鉄筋コンクリート造 総戸数 80戸
間取り 1LDK(LD8.1帖 洋8.2帖 K2.2帖) 専有面積 42.43㎡
向き 西 バルコニー面積 -
その他 -

費用

賃料 18.6万円 初期費用の確認をする 初期費用の確認をする 共益費 20,000円
礼金 1ヶ月 敷金 1ヶ月
保証金 - 償却金 -
その他一時金 鍵交換代(税込):23100円 / 入居者限定会員サービス会費(年額):11000円
その他月額費用 町内会費(月額):100円/月
住宅保険 要加入(2年21500円)
保証会社 必須
保証会社補足 初回契約時:40%〜
更新料 更新後賃料:1ヶ月 更新事務手数料 -

契約条件

貸家契約区分 普通賃貸借 契約期間 2年
入居可能日 2026年3月1日予定 空室状況を確認をする 空室状況を確認をする 引渡時期相談内容 -
フリーレント -
クレジットカード決済 -

駐車場

駐車場 なし 駐車場について質問する 駐車場について質問する
駐車場契約形態 -
駐車場備考 -
バイク置き場 -
駐輪場 -

備考

その他 当物件は「住まいのリライフ」で取り扱っております。リライフは首都圏24店舗のネットワークで豊富な物件情報をお客様へご提供します。当物件に類似した未公開物件なども合わせてご提案可能です。お気軽にお問合せください。違約金有:1年未満解約時、賃料1ヶ月分
関連リンク
取引態様 媒介 管理コード 4711121
情報登録(更新)日 2026年1月16日 次回更新予定日 2026年1月23日
備考 めやす賃料:

めやす賃料とは賃料、共益費・管理費、敷引金、更新料を含み、賃料等条件の改定がないものと仮定して4年間賃借した場合(定期借家の場合は契約期間)の1ヶ月当たりの金額です。

※敷引金は、敷金の償却、保証金の償却など、預かった金額から必ず引くものをいいます。
※めやす賃料は、消費者に適切な情報を提供するための表示であり事業者に一時金を推奨するものではありません。
※めやす賃料は、実際の総支払額と異なる場合があります。詳しくは不動産会社にご確認ください。  

周辺環境

  • 京急ストア 平和島店:280m
    京急ストア 平和島店:280m
  • まいばすけつと 平和島駅北店:460m
    まいばすけつと 平和島駅北店:460m
  • セブンイレブン 大田区美原通り店:14m
    セブンイレブン 大田区美原通り店:14m
  • スギ薬局 大森町店:564m
    スギ薬局 大森町店:564m
  • ポニークリーニング オオゼキ大森北店:1202m
    ポニークリーニング オオゼキ大森北店:1202m
  • りそな銀行 大森支店:1739m
    りそな銀行 大森支店:1739m
コンビニ
セブンイレブン 大田区美原通り店
14m
買物
京急ストア 平和島店
280m
ドラッグストア
スギ薬局 大森町店
564m
ホームセンター
DCMホーマック 大井競馬場前店
2936m
病院
大田病院
1052m
公園
平和の森公園
545m
銀行
りそな銀行 大森支店
1739m

取扱店舗

ピタットハウス四谷店
ピタットハウス四谷店
株式会社リライフ
交通
四ツ谷駅 徒歩3分JR中央総武線・東京メトロ丸ノ内線・東京メトロ南北線四谷三丁目駅 徒歩9分東京メトロ丸ノ内線
営業時間
10:00 〜 18:30
定休日
毎週水曜日(1月〜3月を除く)
お電話 0037-6001-06556 無料
メール お問い合わせ
  • お問い合わせ区分

  • 内見希望日時

    第一希望

    第二希望

  • お名前

    全角
  • ご希望の連絡方法

    メールアドレス

    電話番号

    半角
    半角
  • その他ご希望等

ピタットハウスの個人情報の取り扱いについて

ピタットハウスでは信頼されるサイトを目指して、物件情報の精度向上に努めています。
掲載物件に誤りがある場合は こちら からご連絡ください。現状と異なる場合は、現状を優先させていただきます。
取引態様の欄に「媒介」と表示された物件は「仲介物件」です。ご成約の際には仲介手数料を申し受けます。

生活情報

大田区の暮らしデータ

大田区は、1947年3月15日に当時の大森区と蒲田区が合併して誕生しました。東京都の東南部に位置し、海と川に臨み、昔から人が住みやすく、交通の要路として栄えてきました。江戸期は農漁村で、海岸の大森・糀谷・羽田地区では1963年頃まで海苔の養殖が盛んに行われました。大正期以降、中小工場が進出し、低地部は住宅や工場が密集する商業・工業地域を形成し、京浜工業地帯の一部となっています。また、台地部は、田園調布、雪谷、久が原など比較的緑の多い住宅地です。臨海部は埋め立て地で、羽田空港をはじめトラックターミナルや市場など物流施設のほか、工場団地、野鳥公園など都市機能施設が整備されています。

基本データ

市区役所所在地 大田区蒲田5-13-14
公式ホームページURL https://www.city.ota.tokyo.jp/
総人口 748,081人
人口増減率(2015年/2020年) 104.3%
大田区の生活情報を詳しくみる

地域のおすすめ情報ブログ

一覧を見る

平和島駅近隣の駅から探す

大田区の近隣エリアから探す

FAQ

  • A. 大田区大森東マンション(AJN4711121_4)の内見は、見学予約でお問い合わせいただくか、直接四谷店(0037-6001-06556)までご連絡ください。
  • A. 可能です。大田区大森東マンション(AJN4711121_4)周辺の情報は、ピタットハウスの地域情報ブログ「街ピタ」住みたい街の暮らしデータをご活用ください。
  • A. 大田区大森東マンション(AJN4711121_4)の費用は、こちらよりお問い合わせいただくか、直接四谷店(0037-6001-06556)までご連絡ください。
  • A. はい、可能です。賃貸希望物件リクエストをご利用ください。大田区大森東マンション(AJN4711121_4)に似た物件も合わせてご紹介させていただきます。