前へ
次へ
前へ
次へ
マンション
即入居可

江東区塩浜マンション

15.3 万円
共益費 20,000
1ヶ月
-
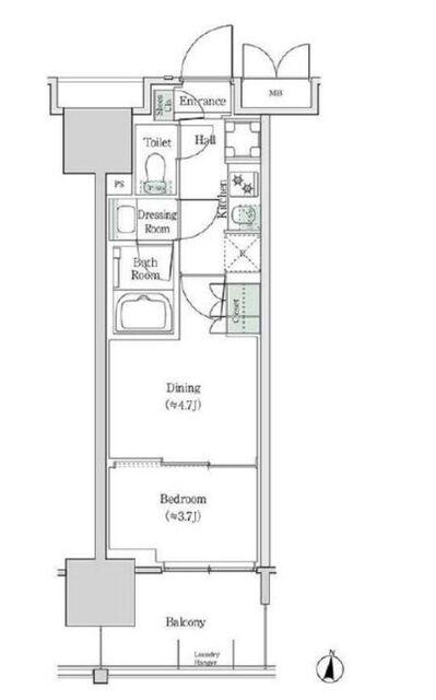
間取り
1DK
専有面積
27.90㎡
所在階
18階建ての9階
向き
  • アイコン: 住所 東京都江東区塩浜2丁目
  • アイコン: 交通 東京メトロ東西線 「木場駅」 徒歩9分 / JR京葉線 「越中島駅」 徒歩19分 / 東京メトロ東西線 「門前仲町駅」 徒歩19分
簡単無料
アイコン: お電話 0037-6001-06556
IP電話ご利用のお客様 : 03-4329-1394
ピタットハウス
四谷店
point!
当物件はオンラインまたは店舗でご相談お申込を承ります
室内見学承ります・お客様のご都合に合わせてオンラインまたはお近くの店舗でご提案可・初期費用分割払い可・クレジットカード利用可・引越業者割引・初期費用のお見積や入居日のご相談もお気軽にお問合せください
お気軽にお問い合わせください!
簡単無料
お気軽にお問い合わせください!
物件情報・周辺環境・契約手続きについてなどお気軽にお問い合わせください。

設備・条件

建物・立地
  • エレベータ
  • 宅配ボックス
  • 都市ガス
  • 敷地内ごみ置き場
  • 常時ゴミ出し可能
  • エレベーター2基以上
  • 公営水道
  • 下水
通信
  • CATV
セキュリティ
  • オートロック
部屋設備
  • フローリング
  • バルコニー
  • 室内洗濯機置場
  • 下駄箱
  • クローゼット
  • 全居室フローリング
  • 南面バルコニー
  • 玄関収納
  • 24時間換気システム
  • 南向き
冷暖房
  • エアコン
キッチン
  • システムキッチン
  • ガスコンロ(2口)
バス・トイレ
  • バス・トイレ別
  • 浴室乾燥機
  • 追い焚き風呂
  • 独立洗面台
  • 温水洗浄便座
  • 脱衣所
特徴
  • ペット相談可
  • 保証会社利用可
  • 保証人不要
  • 初期費用カード決済可

物件概要

物件種別

部屋種別 マンション
建物名称 江東区塩浜マンション
所在地 東京都江東区塩浜2丁目 MAP
築年月 2026年3月 階数 18階建ての9階
建物構造 鉄筋コンクリート造 総戸数 563戸
間取り 1DK(DK5.8帖 洋4.5帖) 専有面積 27.90㎡
向き バルコニー面積 -
その他 管理形態:常務管理 

費用

賃料 15.3万円 初期費用の確認をする 初期費用の確認をする 共益費 20,000円
礼金 - 敷金 1ヶ月 + ペット積み増し(1ヶ月)
保証金 - 償却金 -
その他一時金 鍵交換代(税込):33000円
その他月額費用 口座振替手数料(月額):110円/月
住宅保険 要加入(2年20000円)
保証会社 必須
保証会社補足 初回:月額賃料等の50%〜
更新料 更新後賃料:1ヶ月 更新事務手数料 -
その他 本物件は、「仲介物件」です。ご成約の際には仲介手数料を申し受けます。

契約条件

貸家契約区分 普通賃貸借 契約期間 2年
入居可能日 相談 空室状況を確認をする 空室状況を確認をする 引渡時期相談内容 -
フリーレント -
クレジットカード決済 -

駐車場

駐車場 なし 駐車場について質問する 駐車場について質問する
駐車場契約形態 -
駐車場備考 空き状況要確認
バイク置き場 -
駐輪場 -

備考

その他 リライフは首都圏23店舗のネットワークで豊富な物件情報をお客様へご提供します。当物件に類似した未公開物件なども合わせてご提案可能です。お気軽にお問合せください。違約金有:1年未満解約時、賃料+共益費1ヶ月
関連リンク
取引態様 媒介 管理コード 4767152
情報登録(更新)日 2026年5月19日 次回更新予定日 2026年5月26日
備考 めやす賃料:

めやす賃料とは賃料、共益費・管理費、敷引金、更新料を含み、賃料等条件の改定がないものと仮定して4年間賃借した場合(定期借家の場合は契約期間)の1ヶ月当たりの金額です。

※敷引金は、敷金の償却、保証金の償却など、預かった金額から必ず引くものをいいます。
※めやす賃料は、消費者に適切な情報を提供するための表示であり事業者に一時金を推奨するものではありません。
※めやす賃料は、実際の総支払額と異なる場合があります。詳しくは不動産会社にご確認ください。  

江東区塩浜マンション の他の空室物件

47
建物の空室物件一覧 次へ

周辺環境

  • まいばすけっと 塩浜2丁目店:395m
    まいばすけっと 塩浜2丁目店:395m
  • まいばすけっと 東陽1丁目店:886m
    まいばすけっと 東陽1丁目店:886m
  • ファミリーマート 江東塩浜二丁目店:242m
    ファミリーマート 江東塩浜二丁目店:242m
  • ローソン 江東木場店:454m
    ローソン 江東木場店:454m
  • くすりの福太郎 木場駅前店:744m
    くすりの福太郎 木場駅前店:744m
  • ポニークリーニング 塩浜2丁目店:311m
    ポニークリーニング 塩浜2丁目店:311m
  • りそな銀行 東京本社出張所:535m
    りそな銀行 東京本社出張所:535m
コンビニ
ファミリーマート 江東塩浜二丁目店
242m
買物
まいばすけっと 塩浜2丁目店
395m
ドラッグストア
くすりの福太郎 木場駅前店
744m
ホームセンター
スーパービバホーム 豊洲店
1490m
病院
鈴木病院
187m
公園
木場公園
1479m
銀行
りそな銀行 東京本社出張所
535m

取扱店舗

ピタットハウス四谷店
ピタットハウス四谷店
株式会社リライフ
交通
四ツ谷駅 徒歩3分JR中央総武線・東京メトロ丸ノ内線・東京メトロ南北線四谷三丁目駅 徒歩9分東京メトロ丸ノ内線
営業時間
10:00 〜 18:30
定休日
毎週火水曜日(1月〜3月を除く)
お電話 0037-6001-06556 無料
メール お問い合わせ
  • お問い合わせ区分

  • 内見希望日時

    第一希望

    第二希望

  • お名前

    全角
  • ご希望の連絡方法

    メールアドレス

    電話番号

    半角
    半角
  • その他ご希望等

ピタットハウスの個人情報の取り扱いについて

ピタットハウスでは信頼されるサイトを目指して、物件情報の精度向上に努めています。
掲載物件に誤りがある場合は こちら からご連絡ください。現状と異なる場合は、現状を優先させていただきます。
取引態様の欄に「媒介」と表示された物件は「仲介物件」です。ご成約の際には仲介手数料を申し受けます。

生活情報

江東区の暮らしデータ

江東区は、1947年に深川・城東の2区が合併し生まれました。現在の江東区は、水辺と緑に恵まれた自然的特性をいかしながら、「みんなでつくる伝統、未来 水彩都市・江東」を目指して、発展しています。中でも、臨海部の発展は著しく、2024年4月には人口54万人を突破しました。2021年開催の東京オリンピック・パラリンピック競技大会では、江東区に多くの競技場が配置され、また、2025年3月には海の森公園が開設する等、更なる大きな発展の可能性を秘めています。

基本データ

市区役所所在地 江東区東陽4-11-28
公式ホームページURL https://www.city.koto.lg.jp/
総人口 524,310人
人口増減率(2015年/2020年) 105.3%
江東区の生活情報を詳しくみる

地域のおすすめ情報ブログ

一覧を見る

木場駅近隣の駅から探す

江東区の近隣エリアから探す

FAQ

  • A. 江東区塩浜マンション(AJN4767152_63)の内見は、見学予約でお問い合わせいただくか、直接四谷店(0037-6001-06556)までご連絡ください。
  • A. 可能です。江東区塩浜マンション(AJN4767152_63)周辺の情報は、ピタットハウスの地域情報ブログ「街ピタ」住みたい街の暮らしデータをご活用ください。
  • A. 江東区塩浜マンション(AJN4767152_63)の費用は、こちらよりお問い合わせいただくか、直接四谷店(0037-6001-06556)までご連絡ください。
  • A. はい、可能です。賃貸希望物件リクエストをご利用ください。江東区塩浜マンション(AJN4767152_63)に似た物件も合わせてご紹介させていただきます。