前へ
次へ
前へ
次へ
マンション
即入居可

豊島区千早マンション

13.4 万円
共益費 20,000
-
-
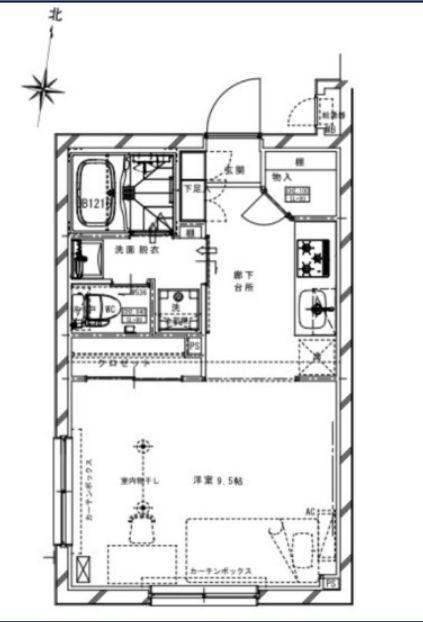
間取り
1R
専有面積
32.76㎡
所在階
4階建ての4階
向き
  • アイコン: 住所 東京都豊島区千早2丁目
  • アイコン: 交通 東京メトロ副都心線 「要町駅」 徒歩9分 / 東京メトロ副都心線 「千川駅」 徒歩9分 / 西武池袋・豊島線 「東長崎駅」 徒歩12分
簡単無料
アイコン: お電話 0037-6001-06556
IP電話ご利用のお客様 : 03-4329-1394
ピタットハウス
四谷店
point!
当物件はオンラインまたは店舗でご相談お申込を承ります
室内見学承ります・お客様のご都合に合わせてオンラインまたはお近くの店舗でご提案可・初期費用分割払い可・クレジットカード利用可・引越業者割引・初期費用のお見積や入居日のご相談もお気軽にお問合せください
お気軽にお問い合わせください!
簡単無料
お気軽にお問い合わせください!
物件情報・周辺環境・契約手続きについてなどお気軽にお問い合わせください。

設備・条件

建物・立地
  • 最上階
  • 宅配ボックス
  • 駐輪場
  • 都市ガス
  • 敷地内ごみ置き場
  • バイク置場
  • 公営水道
  • 下水
セキュリティ
  • オートロック
  • TVモニター付きインターホン
  • 防犯カメラ
部屋設備
  • フローリング
  • 室内洗濯機置場
  • 24時間換気システム
  • 南向き
  • 上階無し
冷暖房
  • エアコン
キッチン
  • システムキッチン
  • ガスコンロ(3口)
バス・トイレ
  • バス・トイレ別
  • 浴室乾燥機
  • 独立洗面台
  • 温水洗浄便座
  • 脱衣所
特徴
  • 新築
  • ペット相談可
  • 二人入居可
  • 二人入居相談
  • 初期費用カード決済可

物件概要

物件種別

部屋種別 マンション
建物名称 豊島区千早マンション
所在地 東京都豊島区千早2丁目 MAP
築年月 2026年1月 階数 4階建ての4階
建物構造 鉄筋コンクリート造 総戸数 -
間取り 1R(洋9.5帖) 専有面積 32.76㎡
向き バルコニー面積 -
その他 -

費用

賃料 13.4万円 初期費用の確認をする 初期費用の確認をする 共益費 20,000円
礼金 - 敷金 ペット積み増し(1ヶ月)
保証金 1ヶ月 償却金 1.00ヶ月(解約時)
その他一時金 室内清掃費用(税込):60500円 / 契約事務手数料(初回のみ):11000円
その他月額費用 24時間生活サポート(月額):1650円/月
住宅保険 要加入(2年20000円)
保証会社 必須
保証会社補足 初回:月額総賃料80%〜
更新料 更新後賃料:1ヶ月 更新事務手数料 -
その他 本物件は、「仲介物件」です。ご成約の際には仲介手数料を申し受けます。

契約条件

貸家契約区分 普通賃貸借 契約期間 2年
入居可能日 相談 空室状況を確認をする 空室状況を確認をする 引渡時期相談内容 -
フリーレント -
クレジットカード決済 -

駐車場

駐車場 なし 駐車場について質問する 駐車場について質問する
駐車場契約形態 -
駐車場備考 -
バイク置き場 -
駐輪場 -

備考

その他 リライフは首都圏23店舗のネットワークで豊富な物件情報をお客様へご提供します。当物件に類似した未公開物件なども合わせてご提案可能です。お気軽にお問合せください。違約金有:短期解約時
関連リンク
取引態様 媒介 管理コード 4781210
情報登録(更新)日 2026年5月29日 次回更新予定日 2026年6月5日
備考 めやす賃料:

めやす賃料とは賃料、共益費・管理費、敷引金、更新料を含み、賃料等条件の改定がないものと仮定して4年間賃借した場合(定期借家の場合は契約期間)の1ヶ月当たりの金額です。

※敷引金は、敷金の償却、保証金の償却など、預かった金額から必ず引くものをいいます。
※めやす賃料は、消費者に適切な情報を提供するための表示であり事業者に一時金を推奨するものではありません。
※めやす賃料は、実際の総支払額と異なる場合があります。詳しくは不動産会社にご確認ください。  

周辺環境

  • まいばすけっと 要町駅西店:521m
    まいばすけっと 要町駅西店:521m
  • まいばすけっと 要町1丁目店:590m
    まいばすけっと 要町1丁目店:590m
  • セブンイレブン 豊島要町1丁目店:456m
    セブンイレブン 豊島要町1丁目店:456m
  • ファミリーマート豊島要町二丁目店:485m
    ファミリーマート豊島要町二丁目店:485m
  • ぱぱす薬局 要町店:688m
    ぱぱす薬局 要町店:688m
  • うさちゃんクリーニング 池袋店:821m
    うさちゃんクリーニング 池袋店:821m
  • 三菱UFJ銀行東長崎支店:1113m
    三菱UFJ銀行東長崎支店:1113m
コンビニ
セブンイレブン 豊島要町1丁目店
456m
買物
まいばすけっと 要町駅西店
521m
ドラッグストア
ぱぱす薬局 要町店
688m
ホームセンター
しまむら椎名町店
1087m
病院
(医)敬悠会 副都心病院
659m
公園
千早フラワー公園
426m
銀行
三菱UFJ銀行東長崎支店
1113m

取扱店舗

ピタットハウス四谷店
ピタットハウス四谷店
株式会社リライフ
交通
四ツ谷駅 徒歩3分JR中央総武線・東京メトロ丸ノ内線・東京メトロ南北線四谷三丁目駅 徒歩9分東京メトロ丸ノ内線
営業時間
10:00 〜 18:30
定休日
毎週火水曜日(1月〜3月を除く)
お電話 0037-6001-06556 無料
メール お問い合わせ
  • お問い合わせ区分

  • 内見希望日時

    第一希望

    第二希望

  • お名前

    全角
  • ご希望の連絡方法

    メールアドレス

    電話番号

    半角
    半角
  • その他ご希望等

ピタットハウスの個人情報の取り扱いについて

ピタットハウスでは信頼されるサイトを目指して、物件情報の精度向上に努めています。
掲載物件に誤りがある場合は こちら からご連絡ください。現状と異なる場合は、現状を優先させていただきます。
取引態様の欄に「媒介」と表示された物件は「仲介物件」です。ご成約の際には仲介手数料を申し受けます。

生活情報

豊島区の暮らしデータ

豊島区は、ソメイヨシノ発祥の地駒込、「おばあちゃんの原宿」の巣鴨、東京で唯一の都電が街中を走る大塚、巨大ターミナルを有する池袋、歴史と文化が香る雑司が谷、緑豊かで格調ある目白、「トキワ荘のあった街」南長崎、池袋モンパルナスの面影残る長崎・要町・千早など、さまざまな顔を持っています。2025年3月、区政の最高指針であり、まちづくりの羅針盤でもある新たな「基本構想・基本計画」を策定。区民とまちの将来像を共有し、「出会いと笑顔が咲きほこる、憧れのまち」の実現を目指しています。

基本データ

市区役所所在地 豊島区南池袋2-45-1
公式ホームページURL https://www.city.toshima.lg.jp/
総人口 301,599人
人口増減率(2015年/2020年) 103.6%
豊島区の生活情報を詳しくみる

地域のおすすめ情報ブログ

一覧を見る

要町駅近隣の駅から探す

豊島区の近隣エリアから探す

FAQ

  • A. 豊島区千早マンション(AJN4781210_5)の内見は、見学予約でお問い合わせいただくか、直接四谷店(0037-6001-06556)までご連絡ください。
  • A. 可能です。豊島区千早マンション(AJN4781210_5)周辺の情報は、ピタットハウスの地域情報ブログ「街ピタ」住みたい街の暮らしデータをご活用ください。
  • A. 豊島区千早マンション(AJN4781210_5)の費用は、こちらよりお問い合わせいただくか、直接四谷店(0037-6001-06556)までご連絡ください。
  • A. はい、可能です。賃貸希望物件リクエストをご利用ください。豊島区千早マンション(AJN4781210_5)に似た物件も合わせてご紹介させていただきます。