前へ
次へ
前へ
次へ
マンション

渋谷区代々木マンション

NEW
30.3 万円
共益費 20,000
1ヶ月
-
間取り
2LDK
専有面積
50.03㎡
所在階
5階建ての2階
向き
南東
  • アイコン: 住所 東京都渋谷区代々木1丁目
  • アイコン: 交通 小田急小田原線 「南新宿駅」 徒歩5分 / 都営大江戸線 「代々木駅」 徒歩7分 / 都営新宿線 「新宿駅」 徒歩10分
簡単無料
アイコン: お電話 0037-6001-06556
IP電話ご利用のお客様 : 03-4329-1394
ピタットハウス
四谷店
point!
リライフは全ての物件が仲介料半額です。
室内見学承ります・お客様のご都合に合わせてオンラインまたはお近くの店舗でご提案可・初期費用分割払い可・クレジットカード利用可・引越業者割引・初期費用のお見積や入居日のご相談もお気軽にお問合せください
お気軽にお問い合わせください!
簡単無料
お気軽にお問い合わせください!
物件情報・周辺環境・契約手続きについてなどお気軽にお問い合わせください。

設備・条件

建物・立地
  • エレベータ
  • 宅配ボックス
  • 駐輪場
  • 始発駅
  • 都市ガス
  • 常時ゴミ出し可能
  • デザイナーズ
  • バイク置場
  • 公営水道
  • 下水
通信
  • インターネット無料
  • その他インターネット
  • LAN
セキュリティ
  • オートロック
  • TVモニター付きインターホン
部屋設備
  • フローリング
  • バルコニー
  • 室内洗濯機置場
  • クローゼット
  • 南面バルコニー
  • ウォークインクロゼット
  • シューズIC
  • 24時間換気システム
  • 2面採光
  • 東南向き
  • 通風良好
冷暖房
  • エアコン
キッチン
  • システムキッチン
  • カウンターキッチン
  • ガスコンロ(3口)
バス・トイレ
  • バス・トイレ別
  • 浴室乾燥機
  • 追い焚き風呂
  • 独立洗面台
  • 温水洗浄便座
  • 脱衣所
特徴
  • 新築
  • 保証会社利用可
  • 二人入居可
  • 二人入居相談
  • 保証人不要
  • 初期費用カード決済可

物件概要

物件種別

部屋種別 マンション
建物名称 渋谷区代々木マンション
所在地 東京都渋谷区代々木1丁目 MAP
築年月 2026年2月 階数 5階建ての2階
建物構造 鉄筋コンクリート造 総戸数 21戸
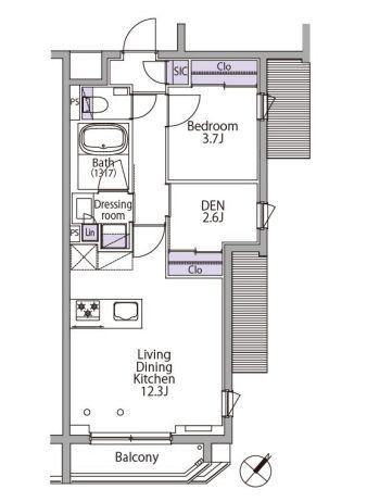
間取り 2LDK(洋5.4帖 洋4.2帖 LDK12.2帖) 専有面積 50.03㎡
向き 南東 バルコニー面積 -
その他 -

費用

賃料 30.3万円 初期費用の確認をする 初期費用の確認をする 共益費 20,000円
礼金 - 敷金 1ヶ月
保証金 - 償却金 -
その他一時金 -
その他月額費用 24時間サポート料(月額):550円/月
住宅保険 要加入(2年22000円)
保証会社 必須
保証会社補足 初回:月額総家賃の20%〜
更新料 更新後賃料:1ヶ月 更新事務手数料 -

契約条件

貸家契約区分 普通賃貸借 契約期間 2年
入居可能日 2026年3月1日予定 空室状況を確認をする 空室状況を確認をする 引渡時期相談内容 -
フリーレント -
クレジットカード決済 -

駐車場

駐車場 なし 駐車場について質問する 駐車場について質問する
駐車場契約形態 -
駐車場備考 要空き確認。
バイク置き場 -
駐輪場 -

備考

その他 当物件は全物件仲介料半額の「住まいのリライフ」で取り扱っております。リライフは首都圏23店舗のネットワークで豊富な物件情報をご提供いたします。当物件に類似した未公開物件のご提案も可能です。お気軽にお問い合わせください。
関連リンク
取引態様 媒介 管理コード 4782844
情報登録(更新)日 2026年2月21日 次回更新予定日 2026年2月28日
備考 めやす賃料:

めやす賃料とは賃料、共益費・管理費、敷引金、更新料を含み、賃料等条件の改定がないものと仮定して4年間賃借した場合(定期借家の場合は契約期間)の1ヶ月当たりの金額です。

※敷引金は、敷金の償却、保証金の償却など、預かった金額から必ず引くものをいいます。
※めやす賃料は、消費者に適切な情報を提供するための表示であり事業者に一時金を推奨するものではありません。
※めやす賃料は、実際の総支払額と異なる場合があります。詳しくは不動産会社にご確認ください。  

周辺環境

  • miniピアゴ 代々木1丁目店:136m
    miniピアゴ 代々木1丁目店:136m
  • マルマンストア南新宿店:286m
    マルマンストア南新宿店:286m
  • ローソン 代々木一丁目店:69m
    ローソン 代々木一丁目店:69m
  • ナチュラルローソン 代々木駅西:265m
    ナチュラルローソン 代々木駅西:265m
  • ココカラファイン JR代々木駅前店:438m
    ココカラファイン JR代々木駅前店:438m
  • ポニークリーニング 代々木1丁目店:78m
    ポニークリーニング 代々木1丁目店:78m
  • 東海大学医学部付属東京病院:370m
    東海大学医学部付属東京病院:370m
  • 新宿日曜大工センター:2763m
    新宿日曜大工センター:2763m
  • みずほ銀行 新宿南口支店:871m
    みずほ銀行 新宿南口支店:871m
  • 代々木みどり公園:366m
    代々木みどり公園:366m
コンビニ
ローソン 代々木一丁目店
69m
買物
miniピアゴ 代々木1丁目店
136m
ドラッグストア
ココカラファイン JR代々木駅前
438m
ホームセンター
新宿日曜大工センター
2763m
病院
東海大学医学部付属東京病院
370m
公園
代々木みどり公園
366m
銀行
みずほ銀行 新宿南口支店
871m

取扱店舗

ピタットハウス四谷店
ピタットハウス四谷店
株式会社リライフ
交通
四ツ谷駅 徒歩3分JR中央総武線・東京メトロ丸ノ内線・東京メトロ南北線四谷三丁目駅 徒歩9分東京メトロ丸ノ内線
営業時間
10:00 〜 18:30
定休日
毎週水曜日(1月〜3月を除く)
お電話 0037-6001-06556 無料
メール お問い合わせ
  • お問い合わせ区分

  • 内見希望日時

    第一希望

    第二希望

  • お名前

    全角
  • ご希望の連絡方法

    メールアドレス

    電話番号

    半角
    半角
  • その他ご希望等

ピタットハウスの個人情報の取り扱いについて

ピタットハウスでは信頼されるサイトを目指して、物件情報の精度向上に努めています。
掲載物件に誤りがある場合は こちら からご連絡ください。現状と異なる場合は、現状を優先させていただきます。
取引態様の欄に「媒介」と表示された物件は「仲介物件」です。ご成約の際には仲介手数料を申し受けます。

生活情報

渋谷区の暮らしデータ

渋谷区は、1932年10月1日に渋谷町・千駄ヶ谷町・代々幡町が合併し、ほかの79町村とともに大東京35区の一環として誕生しました。渋谷や原宿周辺の都市部は、ファッション関係の店舗をはじめ、表参道ヒルズ、渋谷ヒカリエ、渋谷ストリーム、渋谷スクランブルスクエア、WITH HARAJUKU、MIYASHITA PARKなどさまざまな商業ビル・施設があり、区民だけでなく多くの来街者が集まるエリアです。また、都心でありながらも明治神宮や代々木公園など自然豊かな場所にも恵まれている区です。

基本データ

市区役所所在地 渋谷区宇田川町1-1
公式ホームページURL https://www.city.shibuya.tokyo.jp/
総人口 243,883人
人口増減率(2015年/2020年) 108.6%
渋谷区の生活情報を詳しくみる

地域のおすすめ情報ブログ

一覧を見る

南新宿駅近隣の駅から探す

渋谷区の近隣エリアから探す

FAQ

  • A. 渋谷区代々木マンション(AJN4782844_1)の内見は、見学予約でお問い合わせいただくか、直接四谷店(0037-6001-06556)までご連絡ください。
  • A. 可能です。渋谷区代々木マンション(AJN4782844_1)周辺の情報は、ピタットハウスの地域情報ブログ「街ピタ」住みたい街の暮らしデータをご活用ください。
  • A. 渋谷区代々木マンション(AJN4782844_1)の費用は、こちらよりお問い合わせいただくか、直接四谷店(0037-6001-06556)までご連絡ください。
  • A. はい、可能です。賃貸希望物件リクエストをご利用ください。渋谷区代々木マンション(AJN4782844_1)に似た物件も合わせてご紹介させていただきます。