前へ
次へ
前へ
次へ
マンション

墨田区菊川マンション

NEW
11.3 万円
共益費 15,000
1ヶ月
1ヶ月
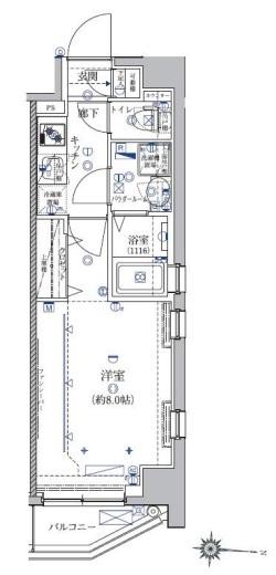
間取り
1K
専有面積
25.37㎡
所在階
7階建ての6階
向き
  • アイコン: 住所 東京都墨田区菊川2丁目
  • アイコン: 交通 都営新宿線 「菊川駅」 徒歩4分 / 都営大江戸線 「森下駅」 徒歩10分 / 東京メトロ半蔵門線 「住吉駅」 徒歩15分
簡単無料
アイコン: お電話 0037-6001-06556
IP電話ご利用のお客様 : 03-4329-1394
ピタットハウス
四谷店
point!
当物件はオンラインまたは店舗でご相談お申込を承ります
室内見学承ります・お客様のご都合に合わせてオンラインまたはお近くの店舗でご提案可・初期費用分割払い可・クレジットカード利用可・引越業者割引・初期費用のお見積や入居日のご相談もお気軽にお問合せください
お気軽にお問い合わせください!
簡単無料
お気軽にお問い合わせください!
物件情報・周辺環境・契約手続きについてなどお気軽にお問い合わせください。

設備・条件

建物・立地
  • 分譲マンションタイプ
  • エレベータ
  • 宅配ボックス
  • 駐輪場
  • 都市ガス
  • 敷地内ごみ置き場
  • 常時ゴミ出し可能
  • バイク置場
  • 公営水道
  • 下水
通信
  • インターネット無料
  • BSアンテナ
  • CSアンテナ
  • その他インターネット
  • BS・CS
  • LAN
セキュリティ
  • オートロック
  • TVモニター付きインターホン
  • ピッキング対策キー
  • 防犯カメラ
部屋設備
  • フローリング
  • バルコニー
  • 室内洗濯機置場
  • 下駄箱
  • クローゼット
  • 玄関収納
  • 24時間換気システム
冷暖房
  • エアコン
キッチン
  • システムキッチン
  • ガスコンロ(2口)
  • グリル
バス・トイレ
  • バス・トイレ別
  • 浴室乾燥機
  • 独立洗面台
  • 温水洗浄便座
  • 脱衣所
特徴
  • 保証会社利用可
  • ペット不可
  • 保証人不要
  • 初期費用カード決済可

物件概要

物件種別

部屋種別 マンション
建物名称 墨田区菊川マンション
所在地 東京都墨田区菊川2丁目 MAP
築年月 2016年1月 階数 7階建ての6階
建物構造 鉄筋コンクリート造 総戸数 -
間取り 1K(洋8帖) 専有面積 25.37㎡
向き バルコニー面積 -
その他 -

費用

賃料 11.3万円 初期費用の確認をする 初期費用の確認をする 共益費 15,000円
礼金 1ヶ月 敷金 1ヶ月
保証金 - 償却金 -
その他一時金 鍵交換代(税込):35200円 / 除菌消臭(初回のみ):8800円
その他月額費用 FAST ASSIST24(月額):1100円/月
住宅保険 要加入(2年20000円)
保証会社 必須
保証会社補足 初回:月額総賃料の60%〜
更新料 更新後賃料:1ヶ月 更新事務手数料 -

契約条件

貸家契約区分 普通賃貸借 契約期間 2年
入居可能日 相談 空室状況を確認をする 空室状況を確認をする 引渡時期相談内容 -
フリーレント -
クレジットカード決済 -

駐車場

駐車場 なし 駐車場について質問する 駐車場について質問する
駐車場契約形態 -
駐車場備考 -
バイク置き場 -
駐輪場 -

備考

その他 リライフは首都圏23店舗のネットワークで豊富な物件情報をお客様へご提供します。当物件に類似した未公開物件なども合わせてご提案可能です。お気軽にお問合せください。違約金有:短期解約時有り
関連リンク
取引態様 媒介 管理コード 4806958
情報登録(更新)日 2026年3月27日 次回更新予定日 2026年4月3日
備考 めやす賃料:

めやす賃料とは賃料、共益費・管理費、敷引金、更新料を含み、賃料等条件の改定がないものと仮定して4年間賃借した場合(定期借家の場合は契約期間)の1ヶ月当たりの金額です。

※敷引金は、敷金の償却、保証金の償却など、預かった金額から必ず引くものをいいます。
※めやす賃料は、消費者に適切な情報を提供するための表示であり事業者に一時金を推奨するものではありません。
※めやす賃料は、実際の総支払額と異なる場合があります。詳しくは不動産会社にご確認ください。  

周辺環境

  • ライフ菊川店:250m
    ライフ菊川店:250m
  • 肉のハナマサ 住吉店:581m
    肉のハナマサ 住吉店:581m
  • ファミリーマート 菊川一丁目店:193m
    ファミリーマート 菊川一丁目店:193m
  • ローソンストア100 江東森下三丁目店:254m
    ローソンストア100 江東森下三丁目店:254m
  • くすりの福太郎菊川店:313m
    くすりの福太郎菊川店:313m
  • 白洋舎菊川店:114m
    白洋舎菊川店:114m
  • 東京東信用金庫 森下駅前支店:759m
    東京東信用金庫 森下駅前支店:759m
  • 森下三丁目第一児童遊園:395m
    森下三丁目第一児童遊園:395m
コンビニ
ファミリーマート 菊川一丁目店
193m
買物
ライフ菊川店
250m
ドラッグストア
くすりの福太郎菊川店
313m
ホームセンター
島忠 江東猿江店
1637m
病院
あそか病院
824m
公園
森下三丁目第一児童遊園
395m
銀行
東京東信用金庫 森下駅前支店
759m

取扱店舗

ピタットハウス四谷店
ピタットハウス四谷店
株式会社リライフ
交通
四ツ谷駅 徒歩3分JR中央総武線・東京メトロ丸ノ内線・東京メトロ南北線四谷三丁目駅 徒歩9分東京メトロ丸ノ内線
営業時間
10:00 〜 18:30
定休日
毎週水曜日(1月〜3月を除く)
お電話 0037-6001-06556 無料
メール お問い合わせ
  • お問い合わせ区分

  • 内見希望日時

    第一希望

    第二希望

  • お名前

    全角
  • ご希望の連絡方法

    メールアドレス

    電話番号

    半角
    半角
  • その他ご希望等

ピタットハウスの個人情報の取り扱いについて

ピタットハウスでは信頼されるサイトを目指して、物件情報の精度向上に努めています。
掲載物件に誤りがある場合は こちら からご連絡ください。現状と異なる場合は、現状を優先させていただきます。
取引態様の欄に「媒介」と表示された物件は「仲介物件」です。ご成約の際には仲介手数料を申し受けます。

生活情報

墨田区の暮らしデータ

墨田区は、東京の母なる川、隅田川に沿って発展してきた、下町情緒が色濃く残る商工業の町です。この町には伝統に培われた確かな技術や物が溢れています。そして、歴史と文化に育まれた様々な行事が四季を通じて行われ、区の内外の皆さんに楽しんでいただいています。

基本データ

市区役所所在地 墨田区吾妻橋1-23-20
公式ホームページURL https://www.city.sumida.lg.jp/
総人口 272,085人
人口増減率(2015年/2020年) 106.2%
墨田区の生活情報を詳しくみる

地域のおすすめ情報ブログ

一覧を見る

菊川駅近隣の駅から探す

墨田区の近隣エリアから探す

FAQ

  • A. 墨田区菊川マンション(AJN4806958_1)の内見は、見学予約でお問い合わせいただくか、直接四谷店(0037-6001-06556)までご連絡ください。
  • A. 可能です。墨田区菊川マンション(AJN4806958_1)周辺の情報は、ピタットハウスの地域情報ブログ「街ピタ」住みたい街の暮らしデータをご活用ください。
  • A. 墨田区菊川マンション(AJN4806958_1)の費用は、こちらよりお問い合わせいただくか、直接四谷店(0037-6001-06556)までご連絡ください。
  • A. はい、可能です。賃貸希望物件リクエストをご利用ください。墨田区菊川マンション(AJN4806958_1)に似た物件も合わせてご紹介させていただきます。