前へ
次へ
前へ
次へ
マンション

豊島区上池袋マンション

NEW
13.4 万円
共益費 8,000
-
1ヶ月
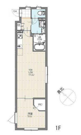
間取り
1LDK
専有面積
36.66㎡
所在階
4階建ての1階
向き
南西
  • アイコン: 住所 東京都豊島区上池袋1丁目
  • アイコン: 交通 JR山手線 「大塚駅」 徒歩8分 / 東武東上線 「北池袋駅」 徒歩13分 / 都営三田線 「西巣鴨駅」 徒歩15分
簡単無料
アイコン: お電話 0037-6001-06556
IP電話ご利用のお客様 : 03-4329-1394
ピタットハウス
四谷店
point!
当物件はオンラインまたは店舗でご相談お申込を承ります
室内見学承ります・お客様のご都合に合わせてオンラインまたはお近くの店舗でご提案可・初期費用分割払い可・クレジットカード利用可・引越業者割引・初期費用のお見積や入居日のご相談もお気軽にお問合せください
お気軽にお問い合わせください!
簡単無料
お気軽にお問い合わせください!
物件情報・周辺環境・契約手続きについてなどお気軽にお問い合わせください。

設備・条件

建物・立地
  • 角部屋
  • 宅配ボックス
  • 都市ガス
  • 敷地内ごみ置き場
  • 公営水道
  • 下水
通信
  • インターネット無料
  • BSアンテナ
  • CSアンテナ
  • その他インターネット
  • BS・CS
  • LAN
セキュリティ
  • オートロック
  • TVモニター付きインターホン
部屋設備
  • フローリング
  • 室内洗濯機置場
  • 下駄箱
  • クローゼット
  • 全居室フローリング
  • 陽当り良好
  • 玄関収納
  • 24時間換気システム
  • 2面採光
  • 南西向き
  • 通風良好
冷暖房
  • エアコン
  • 全居室エアコン
  • エアコン2台以上
キッチン
  • システムキッチン
  • ガスコンロ(2口)
バス・トイレ
  • バス・トイレ別
  • 浴室乾燥機
  • 追い焚き風呂
  • 独立洗面台
  • 温水洗浄便座
  • 脱衣所
特徴
  • 保証会社利用可
  • 保証人不要
  • 初期費用カード決済可

物件概要

物件種別

部屋種別 マンション
建物名称 豊島区上池袋マンション
所在地 東京都豊島区上池袋1丁目 MAP
築年月 2022年7月 階数 4階建ての1階
建物構造 鉄筋コンクリート造 総戸数 -
間取り 1LDK 専有面積 36.66㎡
向き 南西 バルコニー面積 -
その他 -

費用

賃料 13.4万円 初期費用の確認をする 初期費用の確認をする 共益費 8,000円
礼金 1ヶ月 敷金 -
保証金 - 償却金 -
その他一時金 鍵交換代(税込):19800円 / 室内清掃費用(税込):55000円
その他月額費用 Meiho Plus24(月額):1320円/月
住宅保険 要加入(2年20000円)
保証会社 必須/オリコフォレントインシュア
保証会社補足 初回:月額総家賃100%〜
更新料 更新後賃料:1ヶ月 更新事務手数料 -

契約条件

貸家契約区分 普通賃貸借 契約期間 2年
入居可能日 2026年6月1日予定 空室状況を確認をする 空室状況を確認をする 引渡時期相談内容 -
フリーレント -
クレジットカード決済 -

駐車場

駐車場 なし 駐車場について質問する 駐車場について質問する
駐車場契約形態 -
駐車場備考 -
バイク置き場 -
駐輪場 -

備考

その他 リライフは首都圏23店舗のネットワークで豊富な物件情報をお客様へご提供します。当物件に類似した未公開物件なども合わせてご提案可能です。お気軽にお問合せください。
関連リンク
取引態様 媒介 管理コード 4810264
情報登録(更新)日 2026年4月29日 次回更新予定日 2026年5月6日
備考 めやす賃料:

めやす賃料とは賃料、共益費・管理費、敷引金、更新料を含み、賃料等条件の改定がないものと仮定して4年間賃借した場合(定期借家の場合は契約期間)の1ヶ月当たりの金額です。

※敷引金は、敷金の償却、保証金の償却など、預かった金額から必ず引くものをいいます。
※めやす賃料は、消費者に適切な情報を提供するための表示であり事業者に一時金を推奨するものではありません。
※めやす賃料は、実際の総支払額と異なる場合があります。詳しくは不動産会社にご確認ください。  

周辺環境

  • ピーコックストア 上池袋店:229m
    ピーコックストア 上池袋店:229m
  • ピーコックストア 上池袋店:265m
    ピーコックストア 上池袋店:265m
  • セブンイレブン 豊島巣鴨新田店:306m
    セブンイレブン 豊島巣鴨新田店:306m
  • セブンイレブン 豊島北大塚3丁目店:333m
    セブンイレブン 豊島北大塚3丁目店:333m
  • 白洋舎 大塚店:181m
    白洋舎 大塚店:181m
  • みずほ銀行大塚支店:776m
    みずほ銀行大塚支店:776m
コンビニ
セブンイレブン 豊島巣鴨新田店
306m
買物
ピーコックストア 上池袋店
229m
ドラッグストア
ココカラファイン上池袋店
501m
ホームセンター
東急ハンズ 池袋店
1375m
病院
豊島中央病院
662m
公園
西巣鴨公園
166m
銀行
みずほ銀行大塚支店
776m

取扱店舗

ピタットハウス四谷店
ピタットハウス四谷店
株式会社リライフ
交通
四ツ谷駅 徒歩3分JR中央総武線・東京メトロ丸ノ内線・東京メトロ南北線四谷三丁目駅 徒歩9分東京メトロ丸ノ内線
営業時間
10:00 〜 18:30
定休日
毎週火水曜日(1月〜3月を除く)
お電話 0037-6001-06556 無料
メール お問い合わせ
  • お問い合わせ区分

  • 内見希望日時

    第一希望

    第二希望

  • お名前

    全角
  • ご希望の連絡方法

    メールアドレス

    電話番号

    半角
    半角
  • その他ご希望等

ピタットハウスの個人情報の取り扱いについて

ピタットハウスでは信頼されるサイトを目指して、物件情報の精度向上に努めています。
掲載物件に誤りがある場合は こちら からご連絡ください。現状と異なる場合は、現状を優先させていただきます。
取引態様の欄に「媒介」と表示された物件は「仲介物件」です。ご成約の際には仲介手数料を申し受けます。

生活情報

豊島区の暮らしデータ

豊島区は、ソメイヨシノ発祥の地駒込、「おばあちゃんの原宿」の巣鴨、東京で唯一の都電が街中を走る大塚、巨大ターミナルを有する池袋、歴史と文化が香る雑司が谷、緑豊かで格調ある目白、「トキワ荘のあった街」南長崎、池袋モンパルナスの面影残る長崎・要町・千早など、さまざまな顔を持っています。2025年3月、区政の最高指針であり、まちづくりの羅針盤でもある新たな「基本構想・基本計画」を策定。区民とまちの将来像を共有し、「出会いと笑顔が咲きほこる、憧れのまち」の実現を目指しています。

基本データ

市区役所所在地 豊島区南池袋2-45-1
公式ホームページURL https://www.city.toshima.lg.jp/
総人口 301,599人
人口増減率(2015年/2020年) 103.6%
豊島区の生活情報を詳しくみる

地域のおすすめ情報ブログ

一覧を見る

大塚駅近隣の駅から探す

豊島区の近隣エリアから探す

FAQ

  • A. 豊島区上池袋マンション(AJN4810264_3)の内見は、見学予約でお問い合わせいただくか、直接四谷店(0037-6001-06556)までご連絡ください。
  • A. 可能です。豊島区上池袋マンション(AJN4810264_3)周辺の情報は、ピタットハウスの地域情報ブログ「街ピタ」住みたい街の暮らしデータをご活用ください。
  • A. 豊島区上池袋マンション(AJN4810264_3)の費用は、こちらよりお問い合わせいただくか、直接四谷店(0037-6001-06556)までご連絡ください。
  • A. はい、可能です。賃貸希望物件リクエストをご利用ください。豊島区上池袋マンション(AJN4810264_3)に似た物件も合わせてご紹介させていただきます。