前へ
次へ
前へ
次へ
マンション
即入居可

中野区南台マンション

NEW
34.6 万円
共益費 18,000
1ヶ月
1ヶ月
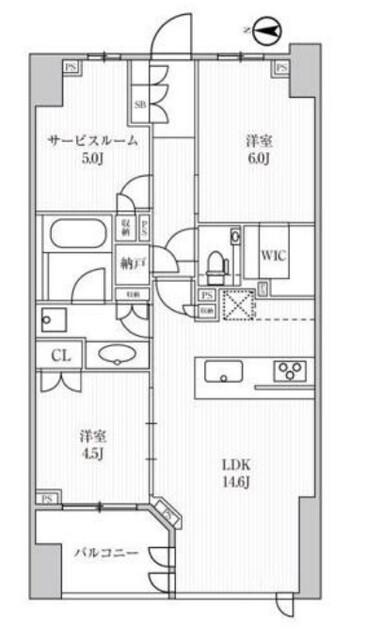
間取り
3LDK
専有面積
78.13㎡
所在階
13階建ての2階
向き
西
  • アイコン: 住所 東京都中野区南台5丁目
  • アイコン: 交通 東京メトロ丸ノ内方南支線 「方南町駅」 徒歩2分 / 東京メトロ丸ノ内方南支線 「中野富士見町駅」 徒歩13分 / 京王線 「代田橋駅」 徒歩23分
簡単無料
アイコン: お電話 0037-6001-06556
IP電話ご利用のお客様 : 03-4329-1394
ピタットハウス
四谷店
point!
当物件はオンラインまたは店舗でご相談お申込を承ります
室内見学承ります・お客様のご都合に合わせてオンラインまたはお近くの店舗でご提案可・初期費用分割払い可・クレジットカード利用可・引越業者割引・初期費用のお見積や入居日のご相談もお気軽にお問合せください
お気軽にお問い合わせください!
簡単無料
お気軽にお問い合わせください!
物件情報・周辺環境・契約手続きについてなどお気軽にお問い合わせください。

設備・条件

建物・立地
  • エレベータ
  • 宅配ボックス
  • 始発駅
  • 都市ガス
  • 敷地内ごみ置き場
  • 常時ゴミ出し可能
  • バイク置場
  • 公営水道
  • 下水
通信
  • インターネット無料
  • CATV
  • BSアンテナ
  • CSアンテナ
  • 光回線
  • BS・CS
セキュリティ
  • オートロック
  • TVモニター付きインターホン
部屋設備
  • フローリング
  • バルコニー
  • 室内洗濯機置場
  • 下駄箱
  • クローゼット
  • ウォークインクローゼット
  • 全居室フローリング
  • 陽当り良好
  • 玄関収納
  • 2面バルコニー
  • 24時間換気システム
  • 眺望良好
  • 両面バルコニー
  • 高層階
  • 2面採光
  • 3面採光
  • 通風良好
冷暖房
  • エアコン
  • 床暖房
  • エアコン2台以上
キッチン
  • システムキッチン
  • ガスコンロ(3口)
バス・トイレ
  • バス・トイレ別
  • 浴室乾燥機
  • 追い焚き風呂
  • 独立洗面台
  • 温水洗浄便座
  • 脱衣所
特徴
  • ペット相談可
  • 保証会社利用可
  • 高齢者歓迎
  • ルームシェア不可

物件概要

物件種別

部屋種別 マンション
建物名称 中野区南台マンション
所在地 東京都中野区南台5丁目 MAP
築年月 2019年11月 階数 13階建ての2階
建物構造 鉄筋コンクリート造 総戸数 -
間取り 3LDK(LDK16.3帖 洋7帖 洋5帖 洋5帖) 専有面積 78.13㎡
向き 西 バルコニー面積 9.00㎡
その他 管理形態:巡回管理 

費用

賃料 34.6万円 初期費用の確認をする 初期費用の確認をする 共益費 18,000円
礼金 1ヶ月 敷金 1ヶ月
保証金 - 償却金 -
その他一時金 鍵交換代(税込):22000円 / 24時間サポート(初回のみ):12100円 / 登録料(初回のみ):2200円
その他月額費用 -
住宅保険 -
保証会社 必須
保証会社補足 詳細はお問合わせください。
更新料 - 更新事務手数料 -

契約条件

貸家契約区分 定期賃貸借 契約期間 2年
入居可能日 相談 空室状況を確認をする 空室状況を確認をする 引渡時期相談内容 -
フリーレント -
クレジットカード決済 -

駐車場

駐車場 なし 駐車場について質問する 駐車場について質問する
駐車場契約形態 -
駐車場備考 -
バイク置き場 -
駐輪場 -

備考

その他 リライフは首都圏23店舗のネットワークで豊富な物件情報をお客様へご提供します。当物件に類似した未公開物件なども合わせてご提案可能です。お気軽にお問合せください。違約金有:詳細はお問い合わせください
関連リンク
取引態様 媒介 管理コード 4817694
情報登録(更新)日 2026年4月17日 次回更新予定日 2026年4月24日
備考 めやす賃料:

めやす賃料とは賃料、共益費・管理費、敷引金、更新料を含み、賃料等条件の改定がないものと仮定して4年間賃借した場合(定期借家の場合は契約期間)の1ヶ月当たりの金額です。

※敷引金は、敷金の償却、保証金の償却など、預かった金額から必ず引くものをいいます。
※めやす賃料は、消費者に適切な情報を提供するための表示であり事業者に一時金を推奨するものではありません。
※めやす賃料は、実際の総支払額と異なる場合があります。詳しくは不動産会社にご確認ください。  

周辺環境

  • サミットストア 中野南台店:242m
    サミットストア 中野南台店:242m
  • まいばすけっと方南町店:409m
    まいばすけっと方南町店:409m
  • ローソン 中野南台五丁目店:88m
    ローソン 中野南台五丁目店:88m
  • セブンイレブン方南店:138m
    セブンイレブン方南店:138m
  • ココカラファイン方南町店:183m
    ココカラファイン方南町店:183m
  • ポニークリーニング方南町店:337m
    ポニークリーニング方南町店:337m
  • 救世軍ブース記念病院:736m
    救世軍ブース記念病院:736m
  • みずほ銀行方南町支店:254m
    みずほ銀行方南町支店:254m
コンビニ
ローソン 中野南台五丁目店
88m
買物
サミットストア 中野南台店
242m
ドラッグストア
ココカラファイン方南町店
183m
ホームセンター
島忠・ホームズ 中野本店
175m
病院
救世軍ブース記念病院
736m
公園
渋谷区立幡ヶ谷新道公園
1558m
銀行
みずほ銀行方南町支店
254m

取扱店舗

ピタットハウス四谷店
ピタットハウス四谷店
株式会社リライフ
交通
四ツ谷駅 徒歩3分JR中央総武線・東京メトロ丸ノ内線・東京メトロ南北線四谷三丁目駅 徒歩9分東京メトロ丸ノ内線
営業時間
10:00 〜 18:30
定休日
毎週火水曜日(1月〜3月を除く)
お電話 0037-6001-06556 無料
メール お問い合わせ
  • お問い合わせ区分

  • 内見希望日時

    第一希望

    第二希望

  • お名前

    全角
  • ご希望の連絡方法

    メールアドレス

    電話番号

    半角
    半角
  • その他ご希望等

ピタットハウスの個人情報の取り扱いについて

ピタットハウスでは信頼されるサイトを目指して、物件情報の精度向上に努めています。
掲載物件に誤りがある場合は こちら からご連絡ください。現状と異なる場合は、現状を優先させていただきます。
取引態様の欄に「媒介」と表示された物件は「仲介物件」です。ご成約の際には仲介手数料を申し受けます。

生活情報

中野区の暮らしデータ

中野区は、1889年、甲武鉄道(現・中央線)の開通で中野駅が開設され、近郊住宅地として発展しました。その後、西武新宿線や地下鉄丸の内線の開通により人口増加と宅地化が一層進行しました。人口密度は東京23区の中でも上位に位置し、世帯の6割以上は単身世帯、また、65歳以上の人口は、約19.4%を占めています。最も多い年齢層は、25〜29歳となっています(2025年6月現在)。中野駅周辺のまちづくりの進展により、2012年にオープンした「中野四季の都市(まち)」に大学や企業が集積し、占めている昼間人口が増えました。さらに、中野駅周辺各地区の再開発により、中野が「東京の新たなエネルギーを生み出す活動拠点」となることを目指しています。

基本データ

市区役所所在地 中野区中野4-11-19
公式ホームページURL https://www.city.tokyo-nakano.lg.jp/
総人口 344,880人
人口増減率(2015年/2020年) 105.1%
中野区の生活情報を詳しくみる

地域のおすすめ情報ブログ

一覧を見る

方南町駅近隣の駅から探す

中野区の近隣エリアから探す

FAQ

  • A. 中野区南台マンション(AJN4817694_2)の内見は、見学予約でお問い合わせいただくか、直接四谷店(0037-6001-06556)までご連絡ください。
  • A. 可能です。中野区南台マンション(AJN4817694_2)周辺の情報は、ピタットハウスの地域情報ブログ「街ピタ」住みたい街の暮らしデータをご活用ください。
  • A. 中野区南台マンション(AJN4817694_2)の費用は、こちらよりお問い合わせいただくか、直接四谷店(0037-6001-06556)までご連絡ください。
  • A. はい、可能です。賃貸希望物件リクエストをご利用ください。中野区南台マンション(AJN4817694_2)に似た物件も合わせてご紹介させていただきます。