前へ
次へ
前へ
次へ
マンション

プレジオ西新井

NEW
15.4 万円
共益費 15,000
-
15.4万円
間取り
1LDK
専有面積
41.04㎡
所在階
15階建ての11階
向き
  • アイコン: 住所 東京都足立区西新井7丁目21-5
  • アイコン: 交通 日暮里舎人ライナー 「西新井大師西駅」 徒歩1分 / 日暮里舎人ライナー 「谷在家駅」 徒歩10分 / 日暮里舎人ライナー 「江北駅」 徒歩11分
簡単無料
アイコン: お電話 0037-6001-09591
IP電話ご利用のお客様 : 03-3883-2092
ピタットハウス
竹の塚店
point!
ピタットハウス竹の塚店おすすめ、新築物件!
インターネット無料、ペット相談、浴室テレビetc...
お気軽にお問い合わせください!
簡単無料
お気軽にお問い合わせください!
物件情報・周辺環境・契約手続きについてなどお気軽にお問い合わせください。

設備・条件

建物・立地
  • 角部屋
  • エレベータ
  • 宅配ボックス
  • 敷地内駐車場
  • 駐輪場
  • 都市ガス
  • 敷地内ごみ置き場
  • 都市ガス給湯
  • バイク置場
  • 公営水道
  • 下水
通信
  • インターネット対応
  • インターネット無料
セキュリティ
  • TVモニター付きインターホン
部屋設備
  • バルコニー
  • 室内洗濯機置場
  • 下駄箱
  • クローゼット
  • 照明器具
冷暖房
  • エアコン
  • エアコン2台以上
キッチン
  • システムキッチン
  • ガスコンロ(2口)
バス・トイレ
  • バス・トイレ別
  • 浴室乾燥機
  • 追い焚き風呂
  • 独立洗面台
  • 温水洗浄便座
  • シャワー
  • 洗面化粧台
  • 洗面所
  • トイレ
  • 洗面台
  • 脱衣所
特徴
  • 新築
  • ペット相談可
  • 二人入居可
  • 二人入居相談
  • 敷金不要
  • ルームシェア不可
  • 保証人不要

物件概要

物件種別

部屋種別 マンション
建物名称 プレジオ西新井
所在地 東京都足立区西新井7丁目21-5 MAP
築年月 2025年11月 階数 15階建ての11階
建物構造 鉄筋コンクリート造 総戸数 84戸
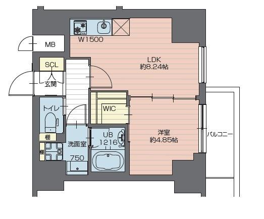
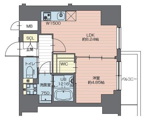
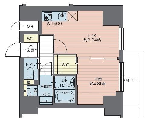
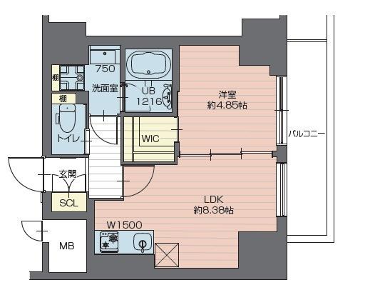
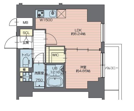
間取り 1LDK(洋13.21帖 LDK5.01帖) 専有面積 41.04㎡
向き バルコニー面積 -
その他 -

費用

賃料 15.4万円 初期費用の確認をする 初期費用の確認をする 共益費 15,000円
礼金 15.4万円 敷金 -
保証金 - 償却金 -
その他一時金 -
その他月額費用 -
住宅保険 要加入(2年20000円)
保証会社 必須
保証会社補足 個人初回:総賃料の20%、更新料:1%/月 法人初回:総賃料の50%、更新料:1万円/年
更新料 更新後賃料:1ヶ月 更新事務手数料 -

契約条件

貸家契約区分 普通賃貸借 契約期間 2年
入居可能日 2025年11月30日予定 空室状況を確認をする 空室状況を確認をする 引渡時期相談内容 -
フリーレント -
クレジットカード決済 -

駐車場

駐車場 有り 月額23,100円 駐車場について質問する 駐車場について質問する
駐車場契約形態 -
駐車場備考 -
バイク置き場 -
駐輪場 有り 550円/月

備考

その他 火災保険2年契約(A〜Dタイプ:20000円、E・Fタイプ:18000円) 退去時クリーニング代:66000円(A〜Dタイプ)、60500円(E・Fタイプ) バイク置き場利用料:5500円(全6台)、2200円(全5台※原付) ☆短期違約金有り:共益費込みの賃料1ヵ月分(1年未満) ペット飼育の場合、共益費3000円増+敷金1ヵ月
関連リンク
取引態様 媒介 管理コード 4717656
情報登録(更新)日 2025年11月23日 次回更新予定日 2025年11月30日
備考 めやす賃料:

めやす賃料とは賃料、共益費・管理費、敷引金、更新料を含み、賃料等条件の改定がないものと仮定して4年間賃借した場合(定期借家の場合は契約期間)の1ヶ月当たりの金額です。

※敷引金は、敷金の償却、保証金の償却など、預かった金額から必ず引くものをいいます。
※めやす賃料は、消費者に適切な情報を提供するための表示であり事業者に一時金を推奨するものではありません。
※めやす賃料は、実際の総支払額と異なる場合があります。詳しくは不動産会社にご確認ください。  

周辺環境

  • 上沼田東公園:446m
    上沼田東公園:446m
  • スギ薬局西新井店:262m
    スギ薬局西新井店:262m
コンビニ
ローソン江北六丁目店
231m
買物
ベルクス西新井西店
118m
ショッピング施設
北千住マルイ
5752m
ドラッグストア
スギ薬局西新井店
262m
ホームセンター
ホームセンターコーナンドイト西新
884m
病院
医療法人社団福寿会福寿会舎人病院
593m
役所
足立区役所
3678m
郵便局
足立江北郵便局
210m
図書館
足立区立鹿浜図書館
1397m
交番
西新井警察署
2331m
公園
上沼田東公園
446m
銀行
瀧野川信用金庫江北支店
711m
幼稚園
チェリッシュ西新井
317m
小学校
足立区立鹿浜第一小学校
856m
中学校
足立区立西新井中学校
241m
高校
東京都立足立西高校
809m

取扱店舗

ピタットハウス竹の塚店
ピタットハウス竹の塚店
インターナショナル岩田企画株式会社
交通
東武伊勢崎線「竹ノ塚」東口下車、徒歩3分
営業時間
10:00 〜 18:00
定休日
毎週水曜日・年末年始休業・12/26(金)〜1/5(月)
  • 駐車場あり/キッズスペースあり
お電話 0037-6001-09591 無料
メール お問い合わせ
  • お問い合わせ区分

  • 内見希望日時

    第一希望

    第二希望

  • お名前

    全角
  • ご希望の連絡方法

    メールアドレス

    電話番号

    半角
    半角
  • その他ご希望等

ピタットハウスの個人情報の取り扱いについて

ピタットハウスでは信頼されるサイトを目指して、物件情報の精度向上に努めています。
掲載物件に誤りがある場合は こちら からご連絡ください。現状と異なる場合は、現状を優先させていただきます。
取引態様の欄に「媒介」と表示された物件は「仲介物件」です。ご成約の際には仲介手数料を申し受けます。

生活情報

足立区の暮らしデータ

足立区は、荒川をはじめとした水辺や区内に点在する公園の緑などの自然環境が豊かな街で、江戸四宿の一つである千住や西新井大師などの古き良き時代の香りが今なお残っています。近年は、駅前などの拠点整備や大学の開設が進み、伝統と新しさが融合した新たな魅力が生まれ、若者を中心に多くの人々で賑わう活気あふれる都市へと進化しています。

基本データ

市区役所所在地 足立区中央本町1-17-1
公式ホームページURL https://www.city.adachi.tokyo.jp/
総人口 695,043人
人口増減率(2015年/2020年) 103.7%
足立区の生活情報を詳しくみる

地域のおすすめ情報ブログ

一覧を見る

西新井大師西駅近隣の駅から探す

足立区の近隣エリアから探す

FAQ

  • A. プレジオ西新井(BB4717656_8)の内見は、見学予約でお問い合わせいただくか、直接竹の塚店(0037-6001-09591)までご連絡ください。
  • A. 可能です。プレジオ西新井(BB4717656_8)周辺の情報は、ピタットハウスの地域情報ブログ「街ピタ」住みたい街の暮らしデータをご活用ください。
  • A. プレジオ西新井(BB4717656_8)の費用は、こちらよりお問い合わせいただくか、直接竹の塚店(0037-6001-09591)までご連絡ください。
  • A. はい、可能です。賃貸希望物件リクエストをご利用ください。プレジオ西新井(BB4717656_8)に似た物件も合わせてご紹介させていただきます。