前へ
次へ
前へ
次へ
マンション
即入居可

プロスタイルウェルス亀戸水神(301)

12.4 万円
共益費 10,000
12.4万円
-
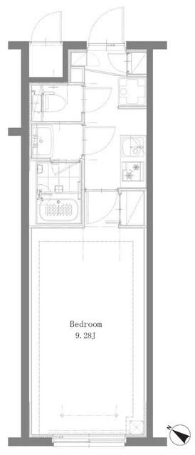
間取り
1R
専有面積
26.68㎡
所在階
4階建ての3階
向き
北西
  • アイコン: 住所 東京都江東区亀戸9丁目
  • アイコン: 交通 東武亀戸線 「亀戸水神駅」 徒歩11分 / JR総武・中央緩行線 「亀戸駅」 徒歩16分
簡単無料
アイコン: お電話 0037-6001-01684
IP電話ご利用のお客様 : 03-5836-3633
ピタットハウス
東大島店
point!
新築!カウンターキッチンの1R!
■ライフ亀戸店まで徒歩約4分!
お気軽にお問い合わせください!
簡単無料
お気軽にお問い合わせください!
物件情報・周辺環境・契約手続きについてなどお気軽にお問い合わせください。

設備・条件

建物・立地
  • エレベータ
  • 宅配ボックス
  • 敷地内ごみ置き場
  • バイク置場
セキュリティ
  • オートロック
部屋設備
  • フローリング
  • 室内洗濯機置場
  • ウォークインクローゼット
冷暖房
  • エアコン
キッチン
  • システムキッチン
バス・トイレ
  • バス・トイレ別
  • 浴室乾燥機
  • 独立洗面台
特徴
  • 新築
  • 事務所利用不可

物件概要

物件種別

部屋種別 マンション
建物名称 プロスタイルウェルス亀戸水神(301)
所在地 東京都江東区亀戸9丁目 MAP
築年月 2026年3月 階数 4階建ての3階
建物構造 鉄筋コンクリート造 総戸数 -
間取り 1R 専有面積 26.68㎡
向き 北西 バルコニー面積 -
その他 管理形態:日勤管理 

費用

賃料 12.4万円 初期費用の確認をする 初期費用の確認をする 共益費 10,000円
礼金 - 敷金 12.4万円
保証金 - 償却金 -
その他一時金 室内清掃費:44000円
その他月額費用 口座振替事務手数料:220円/月
住宅保険 要加入
保証会社 必須
保証会社補足 初回保証委託料(最低15,000円):月額賃料等の50%、 2年目以降:10,000円/年
更新料 更新後賃料:1ヶ月 更新事務手数料 -
その他 本物件は、「仲介物件」です。ご成約の際には仲介手数料を申し受けます。

契約条件

貸家契約区分 普通賃貸借 契約期間 2年
入居可能日 相談 空室状況を確認をする 空室状況を確認をする 引渡時期相談内容 -
フリーレント -
クレジットカード決済 -

駐車場

駐車場 なし 駐車場について質問する 駐車場について質問する
駐車場契約形態 -
駐車場備考 -
バイク置き場 -
駐輪場 -

備考

その他 ◇1年未満の解約の場合、違約金あり(賃料+共益費1ヶ月分) ◇大手法人名義敷1積増 ◇退去時ACクリーニング費借主
関連リンク
取引態様 媒介 管理コード 4783702
情報登録(更新)日 2026年4月12日 次回更新予定日 2026年6月6日
備考 めやす賃料:

めやす賃料とは賃料、共益費・管理費、敷引金、更新料を含み、賃料等条件の改定がないものと仮定して4年間賃借した場合(定期借家の場合は契約期間)の1ヶ月当たりの金額です。

※敷引金は、敷金の償却、保証金の償却など、預かった金額から必ず引くものをいいます。
※めやす賃料は、消費者に適切な情報を提供するための表示であり事業者に一時金を推奨するものではありません。
※めやす賃料は、実際の総支払額と異なる場合があります。詳しくは不動産会社にご確認ください。  

周辺環境

  • 江東区立浅間竪川小学校:293m
    江東区立浅間竪川小学校:293m
  • 江東区立亀戸中学校:788m
    江東区立亀戸中学校:788m
  • 私立中央学院大学中央高校:601m
    私立中央学院大学中央高校:601m
  • 江東区役所:4814m
    江東区役所:4814m
  • 江東亀戸七郵便局:186m
    江東亀戸七郵便局:186m
  • 江東区立亀戸図書館:277m
    江東区立亀戸図書館:277m
  • 城東警察署:3344m
    城東警察署:3344m
  • 亀戸九丁目緑道公園:749m
    亀戸九丁目緑道公園:749m
  • 独立行政法人地域医療機能推進機構東京城東病院:868m
    独立行政法人地域医療機能推進機構東京城東病院:868m
  • ライフ亀戸店:267m
    ライフ亀戸店:267m
  • 丸井錦糸町店:2621m
    丸井錦糸町店:2621m
  • 東京情報デザイン専門職大学:1589m
    東京情報デザイン専門職大学:1589m
  • すし銚子丸亀戸店:449m
    すし銚子丸亀戸店:449m
  • ベビー・子供用品バースデイダイエー東大島店:1272m
    ベビー・子供用品バースデイダイエー東大島店:1272m
コンビニ
ファミリーマート江東亀戸九丁目店
355m
買物
ライフ亀戸店
267m
ショッピング施設
丸井錦糸町店
2621m
ドラッグストア
ドラッグセイムス平井4丁目店
1117m
ホームセンター
島忠ホームズ平井店
1181m
病院
独立行政法人地域医療機能推進機構
868m
役所
江東区役所
4814m
郵便局
江東亀戸七郵便局
186m
図書館
江東区立亀戸図書館
277m
交番
城東警察署
3344m
公園
亀戸九丁目緑道公園
749m
銀行
小松川信用金庫亀戸支店
1076m
幼稚園
亀戸浅間保育園
144m
小学校
江東区立浅間竪川小学校
293m
中学校
江東区立亀戸中学校
788m
高校
私立中央学院大学中央高校
601m

取扱店舗

ピタットハウス東大島店
ピタットハウス東大島店
株式会社ドリームジャパン
交通
都営新宿線「東大島」駅 大島口を出て徒歩1分
営業時間
10:00 〜 18:00
定休日
毎週水曜日
お電話 0037-6001-01684 無料
メール お問い合わせ
  • お問い合わせ区分

  • 内見希望日時

    第一希望

    第二希望

  • お名前

    全角
  • ご希望の連絡方法

    メールアドレス

    電話番号

    半角
    半角
  • その他ご希望等

ピタットハウスの個人情報の取り扱いについて

ピタットハウスでは信頼されるサイトを目指して、物件情報の精度向上に努めています。
掲載物件に誤りがある場合は こちら からご連絡ください。現状と異なる場合は、現状を優先させていただきます。
取引態様の欄に「媒介」と表示された物件は「仲介物件」です。ご成約の際には仲介手数料を申し受けます。

その他の取扱店舗

不動産会社毎に募集条件等が異なる場合があります。詳細は各店の物件詳細ページにてご確認ください。
交通
JR線「新宿」駅西口より徒歩6分、都営大江戸線「新宿西口」駅D5出口より徒歩2分
営業時間
09:30 〜 18:30
定休日
毎週水曜日・2月3月は無休、夏季休暇無し・年末年始
お電話 0037-6001-05237 無料
交通
JR総武線 亀戸駅
営業時間
10:00 〜 18:00
定休日
毎週水曜日、木曜日・GW休業・夏季休業・年末年始休業・夏季休業:8/10(月)〜8/16(日)
お電話 0037-6001-02650 無料
交通
JR総武線、総武中央線「錦糸町駅」北口より徒歩約2分 東京メトロ半蔵門線「錦糸町駅」3番出口より徒歩約1分
営業時間
10:00 〜 18:00
定休日
水曜日、第2・3木曜日・GW休業、夏季休業、冬季休業・夏季休業:8/10(月)〜8/16(日)
  • キッズスペースあり
お電話 0037-6001-08978 無料
交通
東京メトロ丸ノ内線 方南町駅 東改札2番出口を出てから徒歩1分
営業時間
09:00 〜 18:00
定休日
毎週水曜日
お電話 0037-6001-05701 無料
交通
総武線本八幡駅南口から徒歩2分(南口商店街沿いの1階です)
営業時間
10:00 〜 18:00
定休日
毎週水曜日・木曜日・GW休業・年末年始休業・夏季休業:8/10(月)〜8/16(日)
お電話 0037-6001-08988 無料
交通
JR中央線 『武蔵境駅』 南口より 徒歩30秒 駐車場有 
営業時間
10:00 〜 19:00
定休日
毎週水曜日・冬期休業・12/28から1/4まで
  • 近隣駐車場あり/キッズスペースあり
お電話 0037-6001-08163 無料
交通
JR中央線・東京メトロ東西線中野駅南口より徒歩1分
営業時間
10:00 〜 18:00
定休日
毎週水曜日・臨時休業:6/1〜6/3
お電話 0037-6001-06881 無料
交通
東京メトロ東西線 木場駅 4A出口 徒歩1分
営業時間
10:00 〜 17:00
定休日
毎週土日・祝祭日
  • 近隣駐車場あり
お電話 0037-6001-05750 無料

生活情報

江東区の暮らしデータ

江東区は、1947年に深川・城東の2区が合併し生まれました。現在の江東区は、水辺と緑に恵まれた自然的特性をいかしながら、「みんなでつくる伝統、未来 水彩都市・江東」を目指して、発展しています。中でも、臨海部の発展は著しく、2024年4月には人口54万人を突破しました。2021年開催の東京オリンピック・パラリンピック競技大会では、江東区に多くの競技場が配置され、また、2025年3月には海の森公園が開設する等、更なる大きな発展の可能性を秘めています。

基本データ

市区役所所在地 江東区東陽4-11-28
公式ホームページURL https://www.city.koto.lg.jp/
総人口 524,310人
人口増減率(2015年/2020年) 105.3%
江東区の生活情報を詳しくみる

地域のおすすめ情報ブログ

一覧を見る

亀戸水神駅近隣の駅から探す

江東区の近隣エリアから探す

FAQ

  • A. プロスタイルウェルス亀戸水神(BR4783702_126)の内見は、見学予約でお問い合わせいただくか、直接東大島店(0037-6001-01684)までご連絡ください。
  • A. 可能です。プロスタイルウェルス亀戸水神(BR4783702_126)周辺の情報は、ピタットハウスの地域情報ブログ「街ピタ」住みたい街の暮らしデータをご活用ください。
  • A. プロスタイルウェルス亀戸水神(BR4783702_126)の費用は、こちらよりお問い合わせいただくか、直接東大島店(0037-6001-01684)までご連絡ください。
  • A. はい、可能です。賃貸希望物件リクエストをご利用ください。プロスタイルウェルス亀戸水神(BR4783702_126)に似た物件も合わせてご紹介させていただきます。