リノベーションシェアオフィス!!
2025年1月にリノベーション、2室まとめ借りも可能 大通りに面しているのでロケーションバッチリです! 駐車場複数台契約可能! お気軽にお問い合わせください!

お気軽にお問い合わせください!
物件情報・周辺環境・契約手続きについてなどお気軽にお問い合わせください。
設備・条件
|
|
---|---|
|
|
|
|
物件概要
物件種別
部屋種別 | 事務所 | ||
---|---|---|---|
建物名称 | 山之内ビル(201) | ||
所在地 | 兵庫県川西市中央町 MAP | ||
築年月 | 1975年1月 | 階数 | 3階建ての2階 |
建物構造 | 鉄筋コンクリート造 | 総戸数 | - |
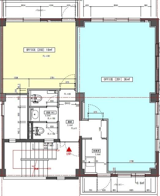
間取り | 事務所 | 専有面積 | 36.00㎡ |
その他 | - |
費用
賃料 |
17.6万円
初期費用の確認をする
|
共益費 | 11,000円 |
---|---|---|---|
礼金 | 52.8万円 | 敷金 | 16万円 |
保証金 | - | 償却金 | - |
その他一時金 | - | ||
その他月額費用 | - | ||
住宅保険 | 要加入(2年20000円) | ||
保証会社 | 必須 | ||
保証会社補足 | 初回総額の100%年10% | ||
更新料 | - | 更新事務手数料 | - |
契約条件
貸家契約区分 | 普通賃貸借 | 契約期間 | 2年 |
---|---|---|---|
入居可能日 |
相談
空室状況を確認をする
|
||
フリーレント | - | ||
クレジットカード決済 | - |
駐車場
駐車場 |
有り 月額13,200円
駐車場について質問する
|
||
---|---|---|---|
駐車場契約形態 | - | ||
駐車場備考 | - | ||
バイク置き場 | - | ||
駐輪場 | - |
リフォーム
リノベーション | 2025年01月:リノベーションオフィス | ||
---|---|---|---|
内装 | (2025年01月):内装全面 |
備考
その他 | |||
---|---|---|---|
関連リンク | |||
取引態様 | 媒介 | 管理コード | 3026774 |
情報登録(更新)日 | 2025年9月22日 | 次回更新予定日 | 2025年10月10日 |
山之内ビル の他の空室物件
1
件
周辺環境
-
ファミリーマート川西能勢口駅北店:304m
-
CRAZY PANTRYモザイク:474m
-
川西阪急:685m
-
川西郵便局:384m
-
ダイコクドラッグモザイクボックス:483m
-
ニトリデコホーム西友川西店:549m
- コンビニ
-
ファミリーマート川西能勢口駅北店304m
- 買物
-
CRAZY PANTRYモザイク474m
- ショッピング施設
-
川西阪急685m
- ドラッグストア
-
ダイコクドラッグモザイクボックス483m
- ホームセンター
-
ニトリデコホーム西友川西店549m
- 病院
-
医療法人協和会第二協立病院535m
- 役所
-
川西市役所546m
- 郵便局
-
川西郵便局384m
- 図書館
-
川西市立中央図書館674m
- 交番
-
川西警察署908m
- 公園
-
中央公園539m
- 銀行
-
ゆうちょ銀行川西店385m
- 幼稚園
-
かわにしひよし保育園131m
- 小学校
-
川西市立桜が丘小学校434m
- 中学校
-
川西市立川西中学校790m
- 高校
-
私立雲雀丘学園高校1969m
取扱店舗

ピタットハウス阪急伊丹店
株式会社フィット
- 交通
- 阪急伊丹線伊丹駅徒歩1分JR福知山線伊丹駅徒歩8分
- 営業時間
- 10:00 〜 19:00
- 定休日
- 水曜日・年末年始・第1・第3・第5火曜日・夏季休暇8/13(水)〜8/15(金)
ピタットハウスでは信頼されるサイトを目指して、物件情報の精度向上に努めています。
掲載物件に誤りがある場合は
こちら からご連絡ください。現状と異なる場合は、現状を優先させていただきます。
取引態様の欄に「媒介」と表示された物件は「仲介物件」です。ご成約の際には仲介手数料を申し受けます。
生活情報
川西市の暮らしデータ
川西市は、兵庫県の東南部に位置し、大阪や神戸を通勤圏とする自然環境に恵まれたまちとして発展しており、広域的に利便性の高い地域となっています。川西市では「心地よさ 息づくまち 川西 〜ジブンイロ 叶う未来へ〜」をめざす都市像とし、住宅都市としての高い価値を大切にしながら、安心して子育てができ、質の高い教育が受けられ、身近に働く場所がある環境などの新たな価値をかけあわせ、日常生活で感じられる幸せや心地よさを大切にしたまちづくりを進めます。
基本データ
市区役所所在地 | 川西市中央町12-1 |
---|---|
公式ホームページURL | https://www.city.kawanishi.hyogo.jp/ |
総人口 | 152,321人 |
人口増減率(2015年/2020年) | 97.4% |
川西能勢口駅近隣の駅から探す
川西市の近隣エリアから探す
FAQ
-
A. 山之内ビル(CB3026774_1)の内見は、見学予約でお問い合わせいただくか、直接阪急伊丹店(0037-6001-06951)までご連絡ください。
-
A. 可能です。山之内ビル(CB3026774_1)周辺の情報は、ピタットハウスの地域情報ブログ「街ピタ」や住みたい街の暮らしデータをご活用ください。
-
A. 山之内ビル(CB3026774_1)の費用は、こちらよりお問い合わせいただくか、直接阪急伊丹店(0037-6001-06951)までご連絡ください。
-
A. はい、可能です。賃貸希望物件リクエストをご利用ください。山之内ビル(CB3026774_1)に似た物件も合わせてご紹介させていただきます。