前へ
次へ
前へ
次へ
マンション
即入居可

ジェノヴィア練馬春日町スカイガーデン(408)

10.8 万円
共益費 10,000
-
-
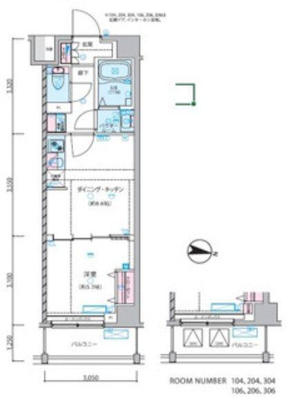
間取り
1K
専有面積
25.40㎡
所在階
6階建ての4階
向き
  • アイコン: 住所 東京都練馬区春日町2丁目
  • アイコン: 交通 都営大江戸線 「練馬春日町駅」 徒歩7分 / 東京メトロ有楽町線 「平和台駅」 徒歩11分 / 都営大江戸線 「豊島園駅」 徒歩20分
簡単無料
アイコン: お電話 0037-6001-04986
IP電話ご利用のお客様 : 03-5920-2522
ピタットハウス
氷川台店
point!
築浅・鉄筋コンクリート♪宅配ボックス付きで便利♪防犯カメラ・オートロックなど、セキュリティ面も充実♪
お気軽にお問い合わせください!
簡単無料
お気軽にお問い合わせください!
物件情報・周辺環境・契約手続きについてなどお気軽にお問い合わせください。

設備・条件

建物・立地
  • エレベータ
  • 宅配ボックス
  • 都市ガス
通信
  • CATV
セキュリティ
  • オートロック
  • TVモニター付きインターホン
部屋設備
  • フローリング
  • 室内洗濯機置場
  • 下駄箱
  • クローゼット
冷暖房
  • エアコン
キッチン
  • システムキッチン
  • ガスコンロ(2口)
バス・トイレ
  • バス・トイレ別
  • 浴室乾燥機
  • 温水洗浄便座
  • シャワー
特徴
  • ペット相談可
  • フリーレント1ヶ月 詳細はお問い合わせください。

物件概要

物件種別

部屋種別 マンション
建物名称 ジェノヴィア練馬春日町スカイガーデン(408)
所在地 東京都練馬区春日町2丁目 MAP
築年月 2021年4月 階数 6階建ての4階
建物構造 鉄筋コンクリート造 総戸数 91戸
間取り 1K(洋7.7帖) 専有面積 25.40㎡
向き バルコニー面積 -
その他 -

費用

賃料 10.8万円 初期費用の確認をする 初期費用の確認をする 共益費 10,000円
礼金 - 敷金 -
保証金 - 償却金 -
その他一時金 -
その他月額費用 -
住宅保険 要加入(15000円)
保証会社 必須
保証会社補足 初回保証料:<保証人有>(賃料+共益費)30% <保証人なし>(賃料+共益費)の40%更新保証料14,000円〜/年
更新料 更新後賃料:1ヶ月 更新事務手数料 -

契約条件

貸家契約区分 普通賃貸借 契約期間 2年
入居可能日 即可 空室状況を確認をする 空室状況を確認をする 引渡時期相談内容 -
フリーレント あり 1ヶ月 詳細はお問い合わせください。
クレジットカード決済 -

駐車場

駐車場 なし 駐車場について質問する 駐車場について質問する
駐車場契約形態 -
駐車場備考 -
バイク置き場 -
駐輪場 -

備考

その他 鍵交換代:27500円 室内清掃費用:38500円  退去時エアコンクリーニング代16,500円(税込)(退去時)1年未満の解約は総額賃料の2ヶ月分の違約金※フリーレント適用の場合は違約金3カ月分
関連リンク
取引態様 媒介 管理コード 4586248
情報登録(更新)日 2026年1月26日 次回更新予定日 2026年2月2日
備考 めやす賃料:

めやす賃料とは賃料、共益費・管理費、敷引金、更新料を含み、賃料等条件の改定がないものと仮定して4年間賃借した場合(定期借家の場合は契約期間)の1ヶ月当たりの金額です。

※敷引金は、敷金の償却、保証金の償却など、預かった金額から必ず引くものをいいます。
※めやす賃料は、消費者に適切な情報を提供するための表示であり事業者に一時金を推奨するものではありません。
※めやす賃料は、実際の総支払額と異なる場合があります。詳しくは不動産会社にご確認ください。  

ジェノヴィア練馬春日町スカイガーデン の他の空室物件

1
建物の空室物件一覧 次へ

周辺環境

  • セブンイレブン 練馬春日町4丁目店:321m
    セブンイレブン 練馬春日町4丁目店:321m
コンビニ
セブンイレブン 練馬春日町4丁目店
321m
買物
マルヤス平和台店
430m
病院
春日町くりクリニック
439m
郵便局
練馬春日二郵便局
262m

取扱店舗

ピタットハウス氷川台店
ピタットハウス氷川台店
株式会社正久保不動産
交通
東京メトロ有楽町線・副都心線「氷川台」駅より徒歩1分。緑の看板が目印です。
営業時間
10:00 〜 18:00
定休日
毎週火曜日・水曜日・年末年始休業:12月27日〜1月3日
お電話 0037-6001-04986 無料
メール お問い合わせ
  • お問い合わせ区分

  • 内見希望日時

    第一希望

    第二希望

  • お名前

    全角
  • ご希望の連絡方法

    メールアドレス

    電話番号

    半角
    半角
  • その他ご希望等

ピタットハウスの個人情報の取り扱いについて

ピタットハウスでは信頼されるサイトを目指して、物件情報の精度向上に努めています。
掲載物件に誤りがある場合は こちら からご連絡ください。現状と異なる場合は、現状を優先させていただきます。
取引態様の欄に「媒介」と表示された物件は「仲介物件」です。ご成約の際には仲介手数料を申し受けます。

生活情報

練馬区の暮らしデータ

練馬区は、1947年8月1日に東京都の23番目の特別区として板橋区から分離独立し、農村から都市へと変貌を遂げてきました。みどり豊かな環境と都心に近い利便性が両立する、良好な住宅都市となっています。

基本データ

市区役所所在地 練馬区豊玉北6-12-1
公式ホームページURL https://www.city.nerima.tokyo.jp/
総人口 752,608人
人口増減率(2015年/2020年) 104.3%
練馬区の生活情報を詳しくみる

地域のおすすめ情報ブログ

一覧を見る

練馬春日町駅近隣の駅から探す

練馬区の近隣エリアから探す

FAQ

  • A. ジェノヴィア練馬春日町スカイガーデン(CY4586248_6)の内見は、見学予約でお問い合わせいただくか、直接氷川台店(0037-6001-04986)までご連絡ください。
  • A. 可能です。ジェノヴィア練馬春日町スカイガーデン(CY4586248_6)周辺の情報は、ピタットハウスの地域情報ブログ「街ピタ」住みたい街の暮らしデータをご活用ください。
  • A. ジェノヴィア練馬春日町スカイガーデン(CY4586248_6)の費用は、こちらよりお問い合わせいただくか、直接氷川台店(0037-6001-04986)までご連絡ください。
  • A. はい、可能です。賃貸希望物件リクエストをご利用ください。ジェノヴィア練馬春日町スカイガーデン(CY4586248_6)に似た物件も合わせてご紹介させていただきます。