前へ
次へ
前へ
次へ
マンション
即入居可

リアルワン要町(304)

NEW
14.1 万円
共益費 20,000
-
-
間取り
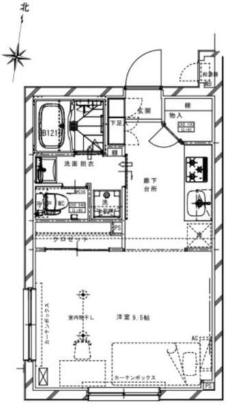
1R
専有面積
32.76㎡
所在階
4階建ての3階
向き
  • アイコン: 住所 東京都豊島区千早2丁目
  • アイコン: 交通 東京メトロ有楽町線 「千川駅」 徒歩9分 / 東京メトロ有楽町線 「要町駅」 徒歩9分
簡単無料
アイコン: お電話 0037-6001-04986
IP電話ご利用のお客様 : 03-5920-2522
ピタットハウス
氷川台店
point!
ペットと一緒に暮らせるお部屋♪忙しい時にも便利な宅配ボックス付き!料理好きに嬉しいグリル付きのキッチン♪
お気軽にお問い合わせください!
簡単無料
お気軽にお問い合わせください!
物件情報・周辺環境・契約手続きについてなどお気軽にお問い合わせください。

設備・条件

建物・立地
  • 角部屋
  • 宅配ボックス
  • 都市ガス
セキュリティ
  • オートロック
  • TVモニター付きインターホン
部屋設備
  • フローリング
  • 室内洗濯機置場
  • 下駄箱
  • クローゼット
冷暖房
  • エアコン
キッチン
  • システムキッチン
  • ガスコンロ(3口)
バス・トイレ
  • バス・トイレ別
  • 浴室乾燥機
  • 温水洗浄便座
  • シャワー
特徴
  • 新築
  • ペット相談可

物件概要

物件種別

部屋種別 マンション
建物名称 リアルワン要町(304)
所在地 東京都豊島区千早2丁目 MAP
築年月 2026年1月 階数 4階建ての3階
建物構造 鉄筋コンクリート造 総戸数 -
間取り 1R 専有面積 32.76㎡
向き バルコニー面積 -
その他 -

費用

賃料 14.1万円 初期費用の確認をする 初期費用の確認をする 共益費 20,000円
礼金 - 敷金 -
保証金 14.1万円 償却金 -
その他一時金 -
その他月額費用 -
住宅保険 要加入(2年20000円)
保証会社 必須
保証会社補足 利用必須初回契約時:80%、月額:1.5%
更新料 更新後賃料:1ヶ月 更新事務手数料 -

契約条件

貸家契約区分 普通賃貸借 契約期間 2年
入居可能日 即可 空室状況を確認をする 空室状況を確認をする 引渡時期相談内容 -
フリーレント -
クレジットカード決済 -

駐車場

駐車場 なし 駐車場について質問する 駐車場について質問する
駐車場契約形態 -
駐車場備考 -
バイク置き場 -
駐輪場 -

備考

その他 ハウスクリーニング:60500円 エアコン分解清掃:16500円 契約事務手数料:11000円 24時間生活サポート:1650円  1年未満の解約で総賃料の2ヶ月分、1年以上2年以内の解約で総賃料の1ヶ月分保証金契約時償却
関連リンク
取引態様 媒介 管理コード 4805079
情報登録(更新)日 2026年3月26日 次回更新予定日 2026年4月6日
備考 めやす賃料:

めやす賃料とは賃料、共益費・管理費、敷引金、更新料を含み、賃料等条件の改定がないものと仮定して4年間賃借した場合(定期借家の場合は契約期間)の1ヶ月当たりの金額です。

※敷引金は、敷金の償却、保証金の償却など、預かった金額から必ず引くものをいいます。
※めやす賃料は、消費者に適切な情報を提供するための表示であり事業者に一時金を推奨するものではありません。
※めやす賃料は、実際の総支払額と異なる場合があります。詳しくは不動産会社にご確認ください。  

周辺環境

コンビニ
セブンイレブン 豊島要町1丁目店
474m
買物
ミニコープ要町店
523m
病院
武藤クリニック
504m
郵便局
豊島千早郵便局
290m

取扱店舗

ピタットハウス氷川台店
ピタットハウス氷川台店
株式会社正久保不動産
交通
東京メトロ有楽町線・副都心線「氷川台」駅より徒歩1分。緑の看板が目印です。
営業時間
10:00 〜 18:00
定休日
毎週火曜日・水曜日
お電話 0037-6001-04986 無料
メール お問い合わせ
  • お問い合わせ区分

  • 内見希望日時

    第一希望

    第二希望

  • お名前

    全角
  • ご希望の連絡方法

    メールアドレス

    電話番号

    半角
    半角
  • その他ご希望等

ピタットハウスの個人情報の取り扱いについて

ピタットハウスでは信頼されるサイトを目指して、物件情報の精度向上に努めています。
掲載物件に誤りがある場合は こちら からご連絡ください。現状と異なる場合は、現状を優先させていただきます。
取引態様の欄に「媒介」と表示された物件は「仲介物件」です。ご成約の際には仲介手数料を申し受けます。

生活情報

豊島区の暮らしデータ

豊島区は、ソメイヨシノ発祥の地駒込、「おばあちゃんの原宿」の巣鴨、東京で唯一の都電が街中を走る大塚、巨大ターミナルを有する池袋、歴史と文化が香る雑司が谷、緑豊かで格調ある目白、「トキワ荘のあった街」南長崎、池袋モンパルナスの面影残る長崎・要町・千早など、さまざまな顔を持っています。2025年3月、区政の最高指針であり、まちづくりの羅針盤でもある新たな「基本構想・基本計画」を策定。区民とまちの将来像を共有し、「出会いと笑顔が咲きほこる、憧れのまち」の実現を目指しています。

基本データ

市区役所所在地 豊島区南池袋2-45-1
公式ホームページURL https://www.city.toshima.lg.jp/
総人口 301,599人
人口増減率(2015年/2020年) 103.6%
豊島区の生活情報を詳しくみる

地域のおすすめ情報ブログ

一覧を見る

千川駅近隣の駅から探す

豊島区の近隣エリアから探す

FAQ

  • A. リアルワン要町(CY4805079_1)の内見は、見学予約でお問い合わせいただくか、直接氷川台店(0037-6001-04986)までご連絡ください。
  • A. 可能です。リアルワン要町(CY4805079_1)周辺の情報は、ピタットハウスの地域情報ブログ「街ピタ」住みたい街の暮らしデータをご活用ください。
  • A. リアルワン要町(CY4805079_1)の費用は、こちらよりお問い合わせいただくか、直接氷川台店(0037-6001-04986)までご連絡ください。
  • A. はい、可能です。賃貸希望物件リクエストをご利用ください。リアルワン要町(CY4805079_1)に似た物件も合わせてご紹介させていただきます。