前へ
次へ
前へ
次へ
マンション

パークアクシス豊洲(419)

27.9 万円
共益費 7,000
27.9万円
27.9万円
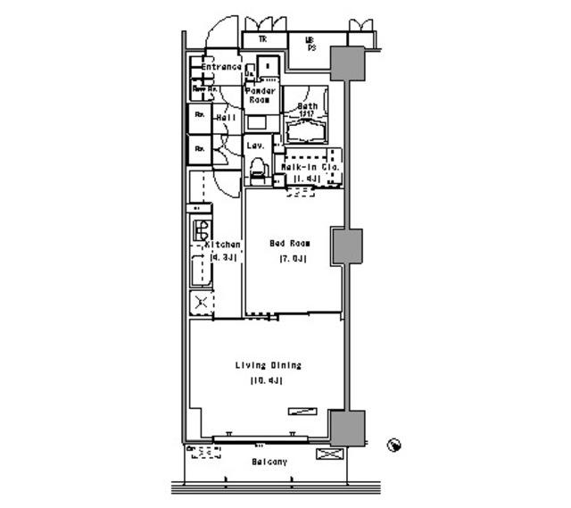
間取り
1LDK
専有面積
58.21㎡
所在階
20階建ての4階
向き
北西
  • アイコン: 住所 東京都江東区豊洲1丁目
  • アイコン: 交通 東京メトロ有楽町線 「豊洲駅」 徒歩8分 / 東京メトロ有楽町線 「月島駅」 徒歩16分 / ゆりかもめ 「豊洲駅」 徒歩11分
簡単無料
アイコン: お電話 0037-6001-08163
IP電話ご利用のお客様 : 0422-39-3966
ピタットハウス
武蔵境店
お気軽にお問い合わせください!
簡単無料
お気軽にお問い合わせください!
物件情報・周辺環境・契約手続きについてなどお気軽にお問い合わせください。

設備・条件

建物・立地
  • エレベータ
  • 宅配ボックス
  • 敷地内駐車場
  • フロントサービス
  • 耐震構造
  • 敷地内ごみ置き場
  • 常時ゴミ出し可能
  • バイク置場
  • コインランドリー
通信
  • インターネット対応
  • CATV
  • BSアンテナ
  • CSアンテナ
セキュリティ
  • オートロック
  • モニタ付オートロック
部屋設備
  • フローリング
  • バルコニー
  • 室内洗濯機置場
冷暖房
  • エアコン
キッチン
  • システムキッチン
  • IHコンロ
  • グリル
バス・トイレ
  • バス・トイレ別
  • 浴室乾燥機
  • 独立洗面台
特徴
  • ペット相談可
  • ピアノ相談可
  • 事務所利用不可

物件概要

物件種別

部屋種別 マンション
建物名称 パークアクシス豊洲(419)
所在地 東京都江東区豊洲1丁目 MAP
築年月 2008年3月 階数 20階建ての4階
建物構造 鉄筋コンクリート造 総戸数 -
間取り 1LDK 専有面積 58.21㎡
向き 北西 バルコニー面積 8.00㎡
その他 管理形態:常務管理 

費用

賃料 27.9万円 初期費用の確認をする 初期費用の確認をする 共益費 7,000円
礼金 27.9万円 敷金 27.9万円
保証金 - 償却金 -
その他一時金 室内清掃費:108852円 / 鍵交換費:16500円
その他月額費用 口座振替事務手数料:110円/月
住宅保険 要加入
保証会社 必須
保証会社補足 初回保証委託料(最低20,000円):月額賃料等の50%、 2年目以降:9,600円/年
更新料 更新後賃料:1ヶ月 更新事務手数料 -

契約条件

貸家契約区分 普通賃貸借 契約期間 2年
入居可能日 2026年1月16日予定 空室状況を確認をする 空室状況を確認をする 引渡時期相談内容 -
フリーレント -
クレジットカード決済 -

駐車場

駐車場 有り 月額27,500円 駐車場について質問する 駐車場について質問する
駐車場契約形態 -
駐車場備考 -
バイク置き場 -
駐輪場 -

備考

その他
関連リンク
取引態様 媒介 管理コード 3571000
情報登録(更新)日 2025年11月21日 次回更新予定日 2025年12月1日
備考 めやす賃料:

めやす賃料とは賃料、共益費・管理費、敷引金、更新料を含み、賃料等条件の改定がないものと仮定して4年間賃借した場合(定期借家の場合は契約期間)の1ヶ月当たりの金額です。

※敷引金は、敷金の償却、保証金の償却など、預かった金額から必ず引くものをいいます。
※めやす賃料は、消費者に適切な情報を提供するための表示であり事業者に一時金を推奨するものではありません。
※めやす賃料は、実際の総支払額と異なる場合があります。詳しくは不動産会社にご確認ください。  

パークアクシス豊洲 の他の空室物件

22
建物の空室物件一覧 次へ

取扱店舗

ピタットハウス武蔵境店
ピタットハウス武蔵境店
株式会社東洋リーベスト
交通
JR中央線 『武蔵境駅』 南口より 徒歩30秒 駐車場有 
営業時間
10:00 〜 19:00
定休日
毎週水曜日・夏季休業・8/12から8/20まで
  • 近隣駐車場あり/キッズスペースあり
お電話 0037-6001-08163 無料
メール お問い合わせ
  • お問い合わせ区分

  • 内見希望日時

    第一希望

    第二希望

  • お名前

    全角
  • ご希望の連絡方法

    メールアドレス

    電話番号

    半角
    半角
  • その他ご希望等

ピタットハウスの個人情報の取り扱いについて

ピタットハウスでは信頼されるサイトを目指して、物件情報の精度向上に努めています。
掲載物件に誤りがある場合は こちら からご連絡ください。現状と異なる場合は、現状を優先させていただきます。
取引態様の欄に「媒介」と表示された物件は「仲介物件」です。ご成約の際には仲介手数料を申し受けます。

その他の取扱店舗

不動産会社毎に募集条件等が異なる場合があります。詳細は各店の物件詳細ページにてご確認ください。
交通
東京メトロ日比谷線「茅場町駅」徒歩1分/東京メトロ日比谷線「八丁堀駅」徒歩8分
営業時間
10:00 〜 17:00
定休日
水・土・日・祝祭日・夏季休業・8月9日から8月17日
お電話 0037-6001-09150 無料
交通
つくばエクスプレス浅草駅A2出口を出まして左隣のビルの1階に店舗ございます。
営業時間
10:00 〜 18:00
定休日
毎週水曜日・日曜日・夏季休業・8/10~8/17
お電話 0037-6001-04127 無料
交通
JR総武線、総武中央線「錦糸町駅」北口より徒歩約2分 東京メトロ半蔵門線「錦糸町駅」3番出口より徒歩約1分
営業時間
10:00 〜 18:00
定休日
水曜日、第2・3木曜日・GW休業、夏季休業、冬季休業・冬季休業:12/28(日)〜1/3(土)
お電話 0037-6001-08978 無料
交通
JR総武線 亀戸駅
営業時間
10:00 〜 18:00
定休日
毎週水曜日、木曜日・GW休業・夏季休業・年末年始休業・冬季休業:12/28(日)〜1/3(土)
お電話 0037-6001-02650 無料
交通
JR山手線「新宿」駅徒歩6分都営大江戸線「新宿西口」駅徒歩2分
営業時間
09:30 〜 18:30
定休日
毎週水曜日・2月・3月は無休、夏季休暇無し・年末年始
お電話 0037-6001-05237 無料
交通
JR中央線「阿佐ヶ谷駅」南口徒歩1分ロータリーに面した駅直結の店舗です。
営業時間
10:00 〜 19:00
定休日
毎週火・水曜日・1月から3月は毎日営業・夏季休業8/12から8/20まで
  • キッズスペースあり
お電話 0037-6001-07674 無料

生活情報

江東区の暮らしデータ

江東区は、1947年に深川・城東の2区が合併し生まれました。現在の江東区は、水辺と緑に恵まれた自然的特性をいかしながら、「みんなでつくる伝統、未来 水彩都市・江東」を目指して、発展しています。中でも、臨海部の発展は著しく、2024年4月には人口54万人を突破しました。また、2021年開催の東京オリンピック・パラリンピック競技大会では、江東区に多くの競技場が配置され、更なる大きな発展の可能性を秘めています。

基本データ

市区役所所在地 江東区東陽4-11-28
公式ホームページURL https://www.city.koto.lg.jp/
総人口 524,310人
人口増減率(2015年/2020年) 105.3%
江東区の生活情報を詳しくみる

地域のおすすめ情報ブログ

一覧を見る

豊洲駅近隣の駅から探す

江東区の近隣エリアから探す

FAQ

  • A. パークアクシス豊洲(GC3571000_839)の内見は、見学予約でお問い合わせいただくか、直接武蔵境店(0037-6001-08163)までご連絡ください。
  • A. 可能です。パークアクシス豊洲(GC3571000_839)周辺の情報は、ピタットハウスの地域情報ブログ「街ピタ」住みたい街の暮らしデータをご活用ください。
  • A. パークアクシス豊洲(GC3571000_839)の費用は、こちらよりお問い合わせいただくか、直接武蔵境店(0037-6001-08163)までご連絡ください。
  • A. はい、可能です。賃貸希望物件リクエストをご利用ください。パークアクシス豊洲(GC3571000_839)に似た物件も合わせてご紹介させていただきます。