前へ
次へ
前へ
次へ
マンション
即入居可

パークスフィア牛込神楽坂(808)

21.4 万円
共益費 15,000
21.4万円
21.4万円
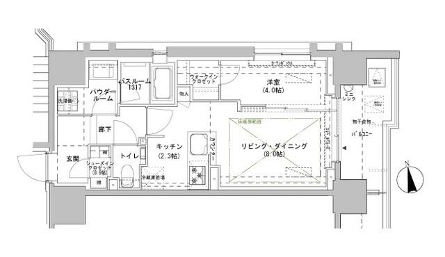
間取り
1R
専有面積
40.01㎡
所在階
13階建ての8階
向き
  • アイコン: 住所 東京都新宿区南山伏町
  • アイコン: 交通 都営大江戸線 「牛込柳町駅」 徒歩4分 / 東京メトロ東西線 「神楽坂駅」 徒歩13分 / 都営大江戸線 「牛込神楽坂駅」 徒歩7分
簡単無料
アイコン: お電話 0037-6001-07674
IP電話ご利用のお客様 : 03-6276-9920
ピタットハウス
阿佐ヶ谷店
お気軽にお問い合わせください!
簡単無料
お気軽にお問い合わせください!
物件情報・周辺環境・契約手続きについてなどお気軽にお問い合わせください。

設備・条件

建物・立地
  • エレベータ
  • 宅配ボックス
  • 敷地内ごみ置き場
  • 常時ゴミ出し可能
  • バイク置場
通信
  • CATV
  • BSアンテナ
  • CSアンテナ
セキュリティ
  • オートロック
  • モニタ付オートロック
部屋設備
  • フローリング
  • バルコニー
  • 室内洗濯機置場
  • ウォークインクローゼット
冷暖房
  • エアコン
  • 床暖房
キッチン
  • システムキッチン
  • 食器乾燥機
  • 食器洗浄乾燥機
  • グリル
バス・トイレ
  • バス・トイレ別
  • 浴室乾燥機
  • 独立洗面台
特徴
  • ペット相談可
  • ピアノ相談可
  • 事務所利用不可

物件概要

物件種別

部屋種別 マンション
建物名称 パークスフィア牛込神楽坂(808)
所在地 東京都新宿区南山伏町 MAP
築年月 2021年7月 階数 13階建ての8階
建物構造 鉄筋コンクリート造 総戸数 -
間取り 1R 専有面積 40.01㎡
向き バルコニー面積 7.00㎡
その他 管理形態:日勤管理 

費用

賃料 21.4万円 初期費用の確認をする 初期費用の確認をする 共益費 15,000円
礼金 21.4万円 敷金 21.4万円
保証金 - 償却金 -
その他一時金 室内清掃費:61615円 / 鍵交換費:16500円
その他月額費用 口座振替事務手数料:220円/月
住宅保険 要加入
保証会社 必須/リクルートフォレントインシュア
保証会社補足 初回保証委託料(最低20,000円):月額賃料等の50%、2年目以降:10,000円/年
更新料 更新後賃料:1ヶ月 更新事務手数料 -

契約条件

貸家契約区分 普通賃貸借 契約期間 2年
入居可能日 相談 空室状況を確認をする 空室状況を確認をする 引渡時期相談内容 -
フリーレント -
クレジットカード決済 -

駐車場

駐車場 なし 駐車場について質問する 駐車場について質問する
駐車場契約形態 -
駐車場備考 -
バイク置き場 -
駐輪場 -

備考

その他
関連リンク
取引態様 媒介 管理コード 3571586
情報登録(更新)日 2026年3月27日 次回更新予定日 2026年4月4日
備考 めやす賃料:

めやす賃料とは賃料、共益費・管理費、敷引金、更新料を含み、賃料等条件の改定がないものと仮定して4年間賃借した場合(定期借家の場合は契約期間)の1ヶ月当たりの金額です。

※敷引金は、敷金の償却、保証金の償却など、預かった金額から必ず引くものをいいます。
※めやす賃料は、消費者に適切な情報を提供するための表示であり事業者に一時金を推奨するものではありません。
※めやす賃料は、実際の総支払額と異なる場合があります。詳しくは不動産会社にご確認ください。  

取扱店舗

ピタットハウス阿佐ヶ谷店
ピタットハウス阿佐ヶ谷店
株式会社東洋リーベスト
交通
JR中央線「阿佐ヶ谷駅」南口徒歩1分ロータリーに面した駅直結の店舗です。
営業時間
10:00 〜 19:00
定休日
毎週火・水曜日・1月から3月は毎日営業・冬期休業12/28から1/4まで
  • キッズスペースあり
お電話 0037-6001-07674 無料
メール お問い合わせ
  • お問い合わせ区分

  • 内見希望日時

    第一希望

    第二希望

  • お名前

    全角
  • ご希望の連絡方法

    メールアドレス

    電話番号

    半角
    半角
  • その他ご希望等

ピタットハウスの個人情報の取り扱いについて

ピタットハウスでは信頼されるサイトを目指して、物件情報の精度向上に努めています。
掲載物件に誤りがある場合は こちら からご連絡ください。現状と異なる場合は、現状を優先させていただきます。
取引態様の欄に「媒介」と表示された物件は「仲介物件」です。ご成約の際には仲介手数料を申し受けます。

その他の取扱店舗

不動産会社毎に募集条件等が異なる場合があります。詳細は各店の物件詳細ページにてご確認ください。
交通
JR山手線「新宿」駅徒歩6分都営大江戸線「新宿西口」駅徒歩2分
営業時間
09:30 〜 18:30
定休日
毎週水曜日・2月・3月は無休、夏季休暇無し
お電話 0037-6001-05237 無料
交通
JR総武線 亀戸駅
営業時間
10:00 〜 18:00
定休日
毎週水曜日、木曜日・GW休業・夏季休業・年末年始休業・GW休業:5/3(日)〜5/7(木)
お電話 0037-6001-02650 無料
交通
JR中央線・東京メトロ東西線中野駅南口より徒歩1分
営業時間
10:00 〜 18:00
定休日
毎週水曜日
お電話 0037-6001-06881 無料
交通
京急本線平和島駅より徒歩2分。改札を出て左側、第一京浜沿いを150mほど品川方面へお進みください。1階に当店がございます。
営業時間
10:00 〜 18:00
定休日
水曜日(月末、祝日を除く)
お電話 0037-6001-07302 無料
交通
潮見駅西口から徒歩2分の立地にございます。
営業時間
10:00 〜 19:00
定休日
毎週水曜日・GW休業・夏季休業・年末年始休業
  • 駐車場あり/近隣駐車場あり
お電話 0037-6001-06934 無料
交通
東京メトロ東西線 木場駅 4A出口 徒歩1分
営業時間
10:00 〜 17:00
定休日
毎週土日・祝祭日
  • 近隣駐車場あり
お電話 0037-6001-05750 無料
交通
JR中央線 『武蔵境駅』 南口より 徒歩30秒 駐車場有 
営業時間
10:00 〜 19:00
定休日
毎週水曜日・冬期休業・12/28から1/4まで
  • 近隣駐車場あり/キッズスペースあり
お電話 0037-6001-08163 無料
交通
つくばエクスプレス浅草駅A2出口を出まして左隣のビルの1階に店舗ございます。
営業時間
10:00 〜 18:00
定休日
毎週水曜日・日曜日・冬季休業・12/27から1/4
  • 近隣駐車場あり
お電話 0037-6001-04127 無料
交通
東西線西葛西駅南口 徒歩1分
営業時間
10:00 〜 18:00
定休日
毎週水曜日・GW休業・夏季休業・年末年始休業・GW休業:5/3(日)〜5/6(水)
  • キッズスペースあり
お電話 0037-6001-06249 無料

生活情報

新宿区の暮らしデータ

新宿区は、1947年3月15日に旧四谷・旧牛込・旧淀橋の3区が統合し発足しました。東京23区のほぼ中央に位置し、面積は18.22km2。23区中13番目の広さです。歌舞伎町や西新宿などの繁華街を有する一方、緑豊かな新宿御苑や、情緒ある神楽坂、住宅街の落合など様々な特色を持つ都市です。

基本データ

市区役所所在地 新宿区歌舞伎町1-4-1
公式ホームページURL https://www.city.shinjuku.lg.jp/
総人口 349,385人
人口増減率(2015年/2020年) 104.7%
新宿区の生活情報を詳しくみる

地域のおすすめ情報ブログ

一覧を見る

牛込柳町駅近隣の駅から探す

新宿区の近隣エリアから探す

FAQ

  • A. パークスフィア牛込神楽坂(GC3571586_501)の内見は、見学予約でお問い合わせいただくか、直接阿佐ヶ谷店(0037-6001-07674)までご連絡ください。
  • A. 可能です。パークスフィア牛込神楽坂(GC3571586_501)周辺の情報は、ピタットハウスの地域情報ブログ「街ピタ」住みたい街の暮らしデータをご活用ください。
  • A. パークスフィア牛込神楽坂(GC3571586_501)の費用は、こちらよりお問い合わせいただくか、直接阿佐ヶ谷店(0037-6001-07674)までご連絡ください。
  • A. はい、可能です。賃貸希望物件リクエストをご利用ください。パークスフィア牛込神楽坂(GC3571586_501)に似た物件も合わせてご紹介させていただきます。