
お気軽にお問い合わせください!
物件情報・周辺環境・契約手続きについてなどお気軽にお問い合わせください。
設備・条件
|
|
---|---|
|
|
|
|
|
|
|
|
|
|
|
|
|
|
物件概要
物件種別
部屋種別 | マンション | ||
---|---|---|---|
建物名称 | パークアクシス住吉(708) | ||
所在地 | 東京都墨田区江東橋5丁目 MAP | ||
築年月 | 2009年5月 | 階数 | 7階建ての7階 |
建物構造 | 鉄筋コンクリート造 | 総戸数 | - |
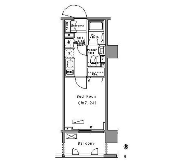
間取り | 1K | 専有面積 | 24.40㎡ |
向き | 北 | バルコニー面積 | 5.00㎡ |
その他 | 管理形態:日勤管理 |
費用
賃料 |
11.9万円
初期費用の確認をする
|
共益費 | 8,000円 |
---|---|---|---|
礼金 | 11.9万円 | 敷金 | 11.9万円 |
保証金 | - | 償却金 | - |
その他一時金 | 室内清掃費:55000円 / 鍵交換費:16500円 | ||
その他月額費用 | 口座振替事務手数料:110円/月 | ||
住宅保険 | 要加入 | ||
保証会社 | 必須 | ||
保証会社補足 | 初回保証委託料(最低20,000円):月額賃料等の50%、 2年目以降:9,600円/年 | ||
更新料 | 更新後賃料:1ヶ月 | 更新事務手数料 | - |
契約条件
貸家契約区分 | 普通賃貸借 | 契約期間 | 2年 |
---|---|---|---|
入居可能日 |
2025年11月13日予定
空室状況を確認をする
|
引渡時期相談内容 | - |
フリーレント | - | ||
クレジットカード決済 | - |
駐車場
駐車場 |
なし
駐車場について質問する
|
||
---|---|---|---|
駐車場契約形態 | - | ||
駐車場備考 | - | ||
バイク置き場 | - | ||
駐輪場 | - |
備考
その他 | |||
---|---|---|---|
関連リンク | |||
取引態様 | 媒介 | 管理コード | 3571794 |
情報登録(更新)日 | 2025年10月6日 | 次回更新予定日 | 2025年10月16日 |
取扱店舗

ピタットハウス阿佐ヶ谷店
株式会社東洋リーベスト
- 交通
- JR中央線「阿佐ヶ谷駅」南口徒歩1分ロータリーに面した駅直結の店舗です。
- 営業時間
- 10:00 〜 19:00
- 定休日
- 毎週火・水曜日・1月から3月は毎日営業・夏季休業8/12から8/20まで
ピタットハウスでは信頼されるサイトを目指して、物件情報の精度向上に努めています。
掲載物件に誤りがある場合は
こちら からご連絡ください。現状と異なる場合は、現状を優先させていただきます。
取引態様の欄に「媒介」と表示された物件は「仲介物件」です。ご成約の際には仲介手数料を申し受けます。
その他の取扱店舗
不動産会社毎に募集条件等が異なる場合があります。詳細は各店の物件詳細ページにてご確認ください。- 交通
- JR山手線「新宿」駅徒歩6分都営大江戸線「新宿西口」駅徒歩2分
- 営業時間
- 09:30 〜 18:30
- 定休日
- 毎週水曜日・2月・3月は無休、夏季休暇無し・年末年始
- 交通
- JR総武線、総武中央線「錦糸町駅」北口より徒歩約2分 東京メトロ半蔵門線「錦糸町駅」3番出口より徒歩約1分
- 営業時間
- 10:00 〜 18:00
- 定休日
- 水曜日、第2・3木曜日・GW休業、夏季休業、冬季休業・冬季休業:12/28(日)〜1/3(土)
- 交通
- 都営大江戸線 勝どき駅『A3b出口』より豊海町方面へ徒歩3分・都営大江戸線、月島駅『10番出口』より勝どき方面へ徒歩12分。
- 営業時間
- 10:00 〜 17:00
- 定休日
- 毎週水曜日・木曜日
- 交通
- JR中央線 『武蔵境駅』 南口より 徒歩30秒 駐車場有
- 営業時間
- 10:00 〜 19:00
- 定休日
- 毎週水曜日・夏季休業・8/12から8/20まで
- 交通
- JR総武線 亀戸駅
- 営業時間
- 10:00 〜 18:00
- 定休日
- 毎週水曜日、木曜日・GW休業・夏季休業・年末年始休業・冬季休業:12/28(日)〜1/3(土)
- 交通
- 総武線本八幡駅南口から徒歩2分(南口商店街沿いの1階です)
- 営業時間
- 10:00 〜 18:00
- 定休日
- 毎週水曜日・木曜日・GW休業・年末年始休業・冬季休業:12/28(日)〜1/3(土)
生活情報
墨田区の暮らしデータ
墨田区は、東京の母なる川、隅田川に沿って発展してきた、下町情緒が色濃く残る商工業の町です。この町には伝統に培われた確かな技術や物が溢れています。そして、歴史と文化に育まれた様々な行事が四季を通じて行われ、区の内外の皆さんに楽しんでいただいています。
基本データ
市区役所所在地 | 墨田区吾妻橋1-23-20 |
---|---|
公式ホームページURL | https://www.city.sumida.lg.jp/ |
総人口 | 272,085人 |
人口増減率(2015年/2020年) | 106.2% |
地域のおすすめ情報ブログ
一覧を見る
-
緑町公園こんにちは!ピタットハウス錦糸町北口店新人の末信です!!両国駅から徒歩約10分、墨田区にある「緑町公園」は、子どもたちに大人気の...続きを読む
-
【本所松坂町公園(吉良邸跡)】こんにちは!ピタットハウス錦糸町北口店新人の末信です!両国駅から歩いて6分ほど、静かな街角に「本所松坂町公園(吉良邸跡)」があり...続きを読む
-
両国橋両国橋は、1659年に創架されたとされる隅田川最古の橋で、当時は封建時代の二つの領土を結ぶ重要な役割を担っていました。その歴史的...続きを読む
-
墨田区立 両国橋児童遊園こんにちは!ピタットハウス錦糸町北口店新人の末信です!!両国駅から徒歩7分、「墨田区立両国児童遊園」は、昭和44年6月30日に開...続きを読む
住吉駅近隣の駅から探す
墨田区の近隣エリアから探す
FAQ
-
A. パークアクシス住吉(GC3571794_84)の内見は、見学予約でお問い合わせいただくか、直接阿佐ヶ谷店(0037-6001-07674)までご連絡ください。
-
A. 可能です。パークアクシス住吉(GC3571794_84)周辺の情報は、ピタットハウスの地域情報ブログ「街ピタ」や住みたい街の暮らしデータをご活用ください。
-
A. パークアクシス住吉(GC3571794_84)の費用は、こちらよりお問い合わせいただくか、直接阿佐ヶ谷店(0037-6001-07674)までご連絡ください。
-
A. はい、可能です。賃貸希望物件リクエストをご利用ください。パークアクシス住吉(GC3571794_84)に似た物件も合わせてご紹介させていただきます。