【ルフォンプログレシリーズ】・ビジネスラウンジ実装

お気軽にお問い合わせください!
物件情報・周辺環境・契約手続きについてなどお気軽にお問い合わせください。
設備・条件
|
|
---|---|
|
|
|
|
|
|
|
|
|
|
|
|
物件概要
物件種別
部屋種別 | マンション | ||
---|---|---|---|
建物名称 | ルフォンプログレ門前仲町マークス(0703) | ||
所在地 | 東京都江東区深川2丁目 | ||
築年月 | 2021年6月 | 階数 | 13階建ての7階 |
建物構造 | 鉄筋コンクリート造 | 総戸数 | 48戸 |
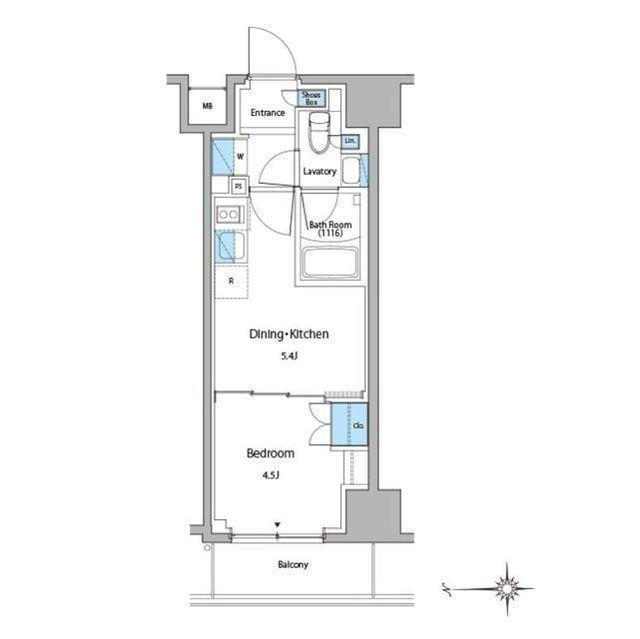
間取り | 1DK(DK5.4帖 洋4.5帖) | 専有面積 | 25.23㎡ |
向き | 西 | バルコニー面積 | - |
その他 | - |
費用
賃料 |
14.5万円
初期費用の確認をする
|
共益費 | 15,000円 |
---|---|---|---|
礼金 | 14.5万円 | 敷金 | 14.5万円 |
保証金 | - | 償却金 | - |
その他一時金 | 鍵交換代:33000円 / 清掃費:38500円 / エアコン清掃費:11000円 | ||
その他月額費用 | - | ||
住宅保険 | 要加入(2年16550円) | ||
保証会社 | 必須 | ||
保証会社補足 | レジデンシャルパートナーズ 保証料:賃料等の50%(最低2万)、月額保証・事務手数料:賃料等の1%(更新料無) | ||
更新料 | 更新後賃料:1ヶ月 | 更新事務手数料 | - |
契約条件
貸家契約区分 | 普通賃貸借 | 契約期間 | 2年 |
---|---|---|---|
入居可能日 |
2025年12月31日予定
空室状況を確認をする
|
引渡時期相談内容 | - |
フリーレント | - | ||
クレジットカード決済 | - |
駐車場
駐車場 |
なし
駐車場について質問する
|
||
---|---|---|---|
駐車場契約形態 | - | ||
駐車場備考 | - | ||
バイク置き場 | - | ||
駐輪場 | - |
備考
その他 | ■法人契約等保証会社利用不可の場合:敷金賃料2ヶ月分■ペット飼育の場合:敷金賃料2ヶ月分■ペット飼育時使用細則遵守・小型犬又は猫1匹迄■解約時室内及びエアコンクリーニング費用借主負担■楽器演奏不可■2人入居可能■解約予告2ヶ月前。 | ||
---|---|---|---|
関連リンク | |||
取引態様 | 媒介 | 管理コード | 3614539 |
情報登録(更新)日 | 2025年10月11日 | 次回更新予定日 | 2025年10月17日 |
取扱店舗

ピタットハウス武蔵境店
株式会社東洋リーベスト
- 交通
- JR中央線 『武蔵境駅』 南口より 徒歩30秒 駐車場有
- 営業時間
- 10:00 〜 19:00
- 定休日
- 毎週水曜日・夏季休業・8/12から8/20まで
ピタットハウスでは信頼されるサイトを目指して、物件情報の精度向上に努めています。
掲載物件に誤りがある場合は
こちら からご連絡ください。現状と異なる場合は、現状を優先させていただきます。
取引態様の欄に「媒介」と表示された物件は「仲介物件」です。ご成約の際には仲介手数料を申し受けます。
その他の取扱店舗
不動産会社毎に募集条件等が異なる場合があります。詳細は各店の物件詳細ページにてご確認ください。- 交通
- JR山手線「新宿」駅徒歩6分都営大江戸線「新宿西口」駅徒歩2分
- 営業時間
- 09:30 〜 18:30
- 定休日
- 毎週水曜日・2月・3月は無休、夏季休暇無し・年末年始
- 交通
- JR中央線「阿佐ヶ谷駅」南口徒歩1分ロータリーに面した駅直結の店舗です。
- 営業時間
- 10:00 〜 19:00
- 定休日
- 毎週火・水曜日・1月から3月は毎日営業・夏季休業8/12から8/20まで
- 交通
- JR総武線 亀戸駅
- 営業時間
- 10:00 〜 18:00
- 定休日
- 毎週水曜日、木曜日・GW休業・夏季休業・年末年始休業・冬季休業:12/28(日)〜1/3(土)
生活情報
江東区の暮らしデータ
江東区は、1947年に深川・城東の2区が合併し生まれました。現在の江東区は、水辺と緑に恵まれた自然的特性をいかしながら、「みんなでつくる伝統、未来 水彩都市・江東」を目指して、発展しています。中でも、臨海部の発展は著しく、2024年4月には人口54万人を突破しました。また、2021年開催の東京オリンピック・パラリンピック競技大会では、江東区に多くの競技場が配置され、更なる大きな発展の可能性を秘めています。
基本データ
市区役所所在地 | 江東区東陽4-11-28 |
---|---|
公式ホームページURL | https://www.city.koto.lg.jp/ |
総人口 | 524,310人 |
人口増減率(2015年/2020年) | 105.3% |
地域のおすすめ情報ブログ
一覧を見る
-
リフォーム産業フェア&賃貸住宅フェア9月17日・18日の2日間、東京ビッグサイトで開催された「リフォーム産業フェア」&「賃貸住宅フェア2025東京」に参加してきまし...続きを読む
-
ボリューム満点!!本場韓国料理こんにちは!亀戸店新人の木村です!今回ご紹介させていただくところは、JR総武線亀戸駅徒歩4分にあります『韓ビビンバ石焼家』さんで...続きを読む
-
自然がいっぱい!亀戸中央公園こんにちは!亀戸店新人の木村です!今回ご紹介させていただくところは、JR総武線亀戸駅徒歩12分にあります『亀戸中央公園』です!施...続きを読む
-
【深川芭蕉通り】平成20年3月23日に新たに命名された「深川芭蕉通り」は、江東区深川の歴史と文化を感じられる風情ある通りです。俳聖・松尾芭蕉にゆ...続きを読む
門前仲町駅近隣の駅から探す
江東区の近隣エリアから探す
FAQ
-
A. ルフォンプログレ門前仲町マークス(GC3614539_66)の内見は、見学予約でお問い合わせいただくか、直接武蔵境店(0037-6001-08163)までご連絡ください。
-
A. 可能です。ルフォンプログレ門前仲町マークス(GC3614539_66)周辺の情報は、ピタットハウスの地域情報ブログ「街ピタ」や住みたい街の暮らしデータをご活用ください。
-
A. ルフォンプログレ門前仲町マークス(GC3614539_66)の費用は、こちらよりお問い合わせいただくか、直接武蔵境店(0037-6001-08163)までご連絡ください。
-
A. はい、可能です。賃貸希望物件リクエストをご利用ください。ルフォンプログレ門前仲町マークス(GC3614539_66)に似た物件も合わせてご紹介させていただきます。