前へ
次へ
前へ
次へ
店舗

上町グランドラインビル(2F)

27.5 万円
共益費 7,700
150万円
-
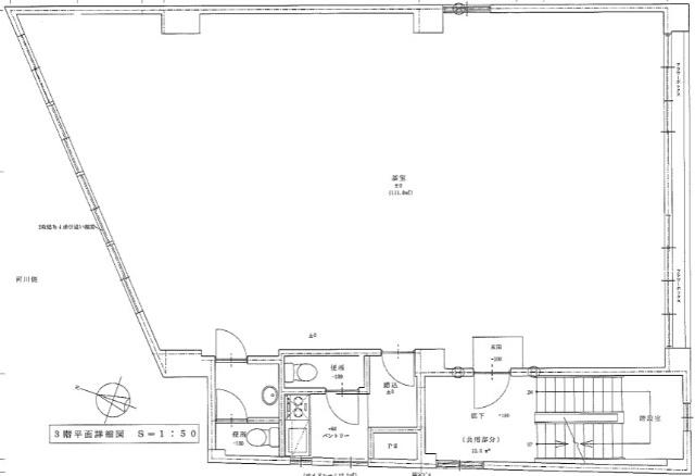
間取り
店舗
専有面積
123.11㎡
所在階
4階建ての2階
  • アイコン: 住所 長崎県長崎市上町1-28
  • アイコン: 交通 長崎電軌桜町支線 「桜町駅」 徒歩1分 / 長崎電軌本線 「長崎駅前駅」 徒歩7分 / 長崎電軌桜町支線 「長崎駅前駅」 徒歩7分
簡単無料
アイコン: お電話 0037-6001-03247
IP電話ご利用のお客様 : 095-841-7700
ピタットハウス
浦上店
お気軽にお問い合わせください!
簡単無料
お気軽にお問い合わせください!
物件情報・周辺環境・契約手続きについてなどお気軽にお問い合わせください。

設備・条件

建物・立地
  • 敷地内駐車場
  • 車寄せスペース
  • 都市ガス
特徴
  • 法人契約希望

物件概要

物件種別

部屋種別 店舗
建物名称 上町グランドラインビル(2F)
所在地 長崎県長崎市上町1-28 MAP
築年月 1978年6月 階数 4階建ての2階
建物構造 鉄筋コンクリート造 総戸数 -
間取り 店舗 専有面積 123.11㎡
その他 -

費用

賃料 27.5万円 初期費用の確認をする 初期費用の確認をする 共益費 7,700円
礼金 - 敷金 150万円
保証金 - 償却金 -
その他一時金 -
その他月額費用 -
住宅保険 要加入
保証会社 必須
保証会社補足 保証料:初回月額総賃料の100%
更新料 - 更新事務手数料 -

契約条件

貸家契約区分 普通賃貸借 契約期間 2年
入居可能日 相談 空室状況を確認をする 空室状況を確認をする
フリーレント -
クレジットカード決済 -

駐車場

駐車場 有り 月額37,400円 駐車場について質問する 駐車場について質問する
駐車場契約形態 -
駐車場備考 駐3台可
バイク置き場 -
駐輪場 -

備考

その他
関連リンク
取引態様 媒介 管理コード 4643819
情報登録(更新)日 2026年2月13日 次回更新予定日 2026年2月24日
備考 めやす賃料:

めやす賃料とは賃料、共益費・管理費、敷引金、更新料を含み、賃料等条件の改定がないものと仮定して4年間賃借した場合(定期借家の場合は契約期間)の1ヶ月当たりの金額です。

※敷引金は、敷金の償却、保証金の償却など、預かった金額から必ず引くものをいいます。
※めやす賃料は、消費者に適切な情報を提供するための表示であり事業者に一時金を推奨するものではありません。
※めやす賃料は、実際の総支払額と異なる場合があります。詳しくは不動産会社にご確認ください。  

取扱店舗

ピタットハウス浦上店
ピタットハウス浦上店
スターツ長崎株式会社
交通
長崎電気軌道 茂里町電停下車 徒歩1分JR浦上駅 徒歩3分
営業時間
09:30 〜 18:00
定休日
毎週水曜日・GW、夏季・年末年始(12/28〜1/4)
  • 駐車場あり
お電話 0037-6001-03247 無料
メール お問い合わせ
  • お問い合わせ区分

  • 内見希望日時

    第一希望

    第二希望

  • お名前

    全角
  • ご希望の連絡方法

    メールアドレス

    電話番号

    半角
    半角
  • その他ご希望等

ピタットハウスの個人情報の取り扱いについて

ピタットハウスでは信頼されるサイトを目指して、物件情報の精度向上に努めています。
掲載物件に誤りがある場合は こちら からご連絡ください。現状と異なる場合は、現状を優先させていただきます。
取引態様の欄に「媒介」と表示された物件は「仲介物件」です。ご成約の際には仲介手数料を申し受けます。

生活情報

長崎市の暮らしデータ

長崎市は、江戸時代には西欧に開かれた唯一の窓口として、近代以降は海運国を支える造船都市として発展してきました。1945年の原爆投下から復興を遂げ、現在は核兵器廃絶と恒久平和を世界に訴える国際平和文化都市として重要な役割を担っています。1997年に中核市となった長崎県の県庁所在地で、2つの世界文化遺産「明治日本の産業革命遺産」(2015年)と「長崎と天草地方の潜伏キリシタン関連遺産」(2018年)を有します。現在、西九州新幹線の開業や長崎駅周辺の再整備、長崎スタジアムシティの開業など、100年に一度といわれるまちの変革期を迎えています。豊かな自然環境と利便性、多様な文化が共存する住みよい街です。

基本データ

市区役所所在地 長崎市魚の町4-1
公式ホームページURL https://www.city.nagasaki.lg.jp/
総人口 409,118人
人口増減率(2015年/2020年) 95.3%
長崎市の生活情報を詳しくみる

桜町駅近隣の駅から探す

長崎市の近隣エリアから探す

FAQ

  • A. 上町グランドラインビル(GD4643819_1)の内見は、見学予約でお問い合わせいただくか、直接浦上店(0037-6001-03247)までご連絡ください。
  • A. 可能です。上町グランドラインビル(GD4643819_1)周辺の情報は、ピタットハウスの地域情報ブログ「街ピタ」住みたい街の暮らしデータをご活用ください。
  • A. 上町グランドラインビル(GD4643819_1)の費用は、こちらよりお問い合わせいただくか、直接浦上店(0037-6001-03247)までご連絡ください。
  • A. はい、可能です。賃貸希望物件リクエストをご利用ください。上町グランドラインビル(GD4643819_1)に似た物件も合わせてご紹介させていただきます。