前へ
次へ
前へ
次へ
マンション
即入居可

西宮市苦楽園三番町マンション

27 万円
共益費 18,000
27万円
27万円
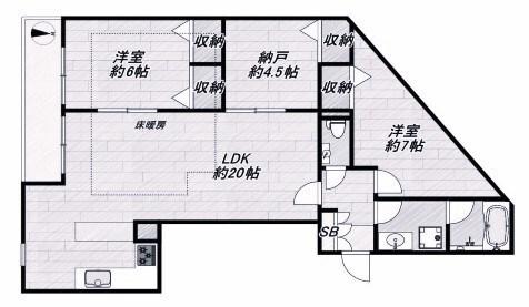
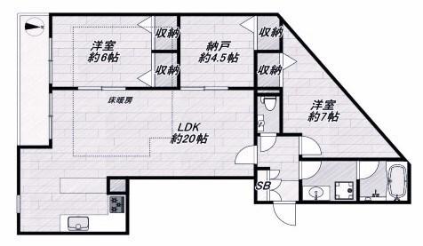
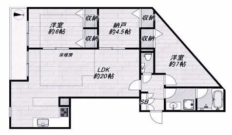
間取り
4LDK
専有面積
101.25㎡
所在階
3階建ての1階
向き
  • アイコン: 住所 兵庫県西宮市苦楽園三番町
  • アイコン: 交通 阪急電鉄甲陽線 「苦楽園口駅」 徒歩28分 / 阪急電鉄甲陽線 「甲陽園駅」 徒歩28分 / 阪急電鉄神戸線 「夙川駅」 徒歩37分
簡単無料
アイコン: お電話 0037-6001-03015
IP電話ご利用のお客様 : 078-272-2255
ピタットハウス
三宮店
point!
小型犬飼育可!インターネット使用料無料です♪
お気軽にお問い合わせください!
簡単無料
お気軽にお問い合わせください!
物件情報・周辺環境・契約手続きについてなどお気軽にお問い合わせください。

設備・条件

建物・立地
  • エレベータ
  • 宅配ボックス
  • 都市ガス
通信
  • CATV
  • BSアンテナ
  • CSアンテナ
  • 光回線
セキュリティ
  • オートロック
  • TVモニター付きインターホン
部屋設備
  • フローリング
  • 室内洗濯機置場
  • 下駄箱
  • クローゼット
冷暖房
  • エアコン
  • 床暖房
キッチン
  • システムキッチン
  • ガスコンロ(3口)
バス・トイレ
  • バス・トイレ別
  • 浴室乾燥機
  • 追い焚き風呂
  • 洗髪洗面化粧台
  • 温水洗浄便座
  • シャワー
特徴
  • ペット相談可

物件概要

物件種別

部屋種別 マンション
建物名称 西宮市苦楽園三番町マンション
所在地 兵庫県西宮市苦楽園三番町 MAP
築年月 2022年9月 階数 3階建ての1階
建物構造 鉄筋コンクリート造 総戸数 12戸
間取り 4LDK(洋6帖 洋6帖 洋5.2帖 LDK25.57帖 洋7帖) 専有面積 101.25㎡
向き バルコニー面積 -
その他 -

費用

賃料 27万円 初期費用の確認をする 初期費用の確認をする 共益費 18,000円
礼金 27万円 敷金 27万円
保証金 - 償却金 -
その他一時金 鍵交換費用:22000円
その他月額費用 -
住宅保険 -
保証会社 必須
保証会社補足 初回保証料:総賃料50%
更新料 - 更新事務手数料 -

契約条件

貸家契約区分 普通賃貸借 契約期間 2年
入居可能日 即可 空室状況を確認をする 空室状況を確認をする 引渡時期相談内容 -
フリーレント -
クレジットカード決済 -

駐車場

駐車場 なし 駐車場について質問する 駐車場について質問する
駐車場契約形態 -
駐車場備考 -
バイク置き場 -
駐輪場 -

備考

その他 小型犬飼育時、礼金1ヶ月要
関連リンク
取引態様 媒介 管理コード 4708433
情報登録(更新)日 2025年11月20日 次回更新予定日 2025年11月27日
備考 めやす賃料:

めやす賃料とは賃料、共益費・管理費、敷引金、更新料を含み、賃料等条件の改定がないものと仮定して4年間賃借した場合(定期借家の場合は契約期間)の1ヶ月当たりの金額です。

※敷引金は、敷金の償却、保証金の償却など、預かった金額から必ず引くものをいいます。
※めやす賃料は、消費者に適切な情報を提供するための表示であり事業者に一時金を推奨するものではありません。
※めやす賃料は、実際の総支払額と異なる場合があります。詳しくは不動産会社にご確認ください。  

周辺環境

  • まつたに公園:1732m
    まつたに公園:1732m
  • 朝日ヶ丘幼稚園:2076m
    朝日ヶ丘幼稚園:2076m
  • 甲南高校:2076m
    甲南高校:2076m
  • 市立芦屋病院:2076m
    市立芦屋病院:2076m
  • ikari(イカリ) 芦屋店:2097m
    ikari(イカリ) 芦屋店:2097m
  • 白洋舎:2654m
    白洋舎:2654m
買物
ikari(イカリ) 芦屋店
2097m
病院
市立芦屋病院
2076m
公園
まつたに公園
1732m
幼稚園
朝日ヶ丘幼稚園
2076m
高校
甲南高校
2076m

取扱店舗

ピタットハウス三宮店
ピタットハウス三宮店
株式会社ライブデザイン
交通
全線三宮駅北側 徒歩1分 フラワーロード東沿いです。
営業時間
09:00 〜 19:00
定休日
年末年始
お電話 0037-6001-03015 無料
メール お問い合わせ
  • お問い合わせ区分

  • 内見希望日時

    第一希望

    第二希望

  • お名前

    全角
  • ご希望の連絡方法

    メールアドレス

    電話番号

    半角
    半角
  • その他ご希望等

ピタットハウスの個人情報の取り扱いについて

ピタットハウスでは信頼されるサイトを目指して、物件情報の精度向上に努めています。
掲載物件に誤りがある場合は こちら からご連絡ください。現状と異なる場合は、現状を優先させていただきます。
取引態様の欄に「媒介」と表示された物件は「仲介物件」です。ご成約の際には仲介手数料を申し受けます。

生活情報

西宮市の暮らしデータ

西宮市は、1925年の市制施行後、2025年に市制100周年を迎えます。大阪と神戸のほぼ中間に位置する人口約48.5万人の中核市で、山・川・海などの豊かな自然や、多くの文化・教育施設など文教住宅都市としての優れた特性を有しており、若い子育て世代を中心に「住みたいまち」として評価されています。六甲山からの伏流水である「宮水」を使った酒造りや、阪神甲子園球場、えべっさんでにぎわう西宮神社などがあるまちとしても有名です。

基本データ

市区役所所在地 西宮市六湛寺町10-3
公式ホームページURL https://www.nishi.or.jp/
総人口 485,587人
人口増減率(2015年/2020年) 99.5%
西宮市の生活情報を詳しくみる

苦楽園口駅近隣の駅から探す

西宮市の近隣エリアから探す

FAQ

  • A. 西宮市苦楽園三番町マンション(GH4708433_3)の内見は、見学予約でお問い合わせいただくか、直接三宮店(0037-6001-03015)までご連絡ください。
  • A. 可能です。西宮市苦楽園三番町マンション(GH4708433_3)周辺の情報は、ピタットハウスの地域情報ブログ「街ピタ」住みたい街の暮らしデータをご活用ください。
  • A. 西宮市苦楽園三番町マンション(GH4708433_3)の費用は、こちらよりお問い合わせいただくか、直接三宮店(0037-6001-03015)までご連絡ください。
  • A. はい、可能です。賃貸希望物件リクエストをご利用ください。西宮市苦楽園三番町マンション(GH4708433_3)に似た物件も合わせてご紹介させていただきます。