前へ
次へ
前へ
次へ
マンション

ビューライフ六甲

6.7 万円
共益費 5,000
-
-
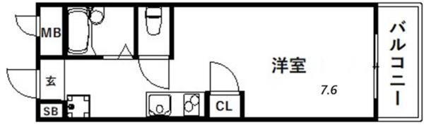
間取り
1K
専有面積
22.55㎡
所在階
5階建ての5階
向き
  • アイコン: 住所 兵庫県神戸市灘区篠原南町4丁目
  • アイコン: 交通 阪急電鉄神戸線 「六甲駅」 徒歩7分 / JR東海道本線 「六甲道駅」 徒歩15分 / 阪神電鉄本線 「大石駅」 徒歩15分
簡単無料
アイコン: お電話 0037-6001-03015
IP電話ご利用のお客様 : 078-272-2255
ピタットハウス
三宮店
point!
鉄筋コンクリート造☆宅配ボックス☆二口システムキッチン☆室内洗濯機置き場☆エアコン付き☆バストイレ別☆
お気軽にお問い合わせください!
簡単無料
お気軽にお問い合わせください!
物件情報・周辺環境・契約手続きについてなどお気軽にお問い合わせください。

設備・条件

建物・立地
  • 最上階
  • 角部屋
  • 宅配ボックス
  • 都市ガス
通信
  • CATV
  • BSアンテナ
  • 光回線
セキュリティ
  • TVモニター付きインターホン
部屋設備
  • フローリング
  • 室内洗濯機置場
  • クローゼット
冷暖房
  • エアコン
キッチン
  • システムキッチン
  • ガスコンロ(2口)
バス・トイレ
  • バス・トイレ別
  • 温水洗浄便座
  • シャワー

物件概要

物件種別

部屋種別 マンション
建物名称 ビューライフ六甲
所在地 兵庫県神戸市灘区篠原南町4丁目 MAP
築年月 1988年4月 階数 5階建ての5階
建物構造 鉄筋コンクリート造 総戸数 -
間取り 1K(洋7.6帖) 専有面積 22.55㎡
向き バルコニー面積 -
その他 -

費用

賃料 6.7万円 初期費用の確認をする 初期費用の確認をする 共益費 5,000円
礼金 - 敷金 -
保証金 - 償却金 -
その他一時金 -
その他月額費用 -
住宅保険 要加入
保証会社 必須
保証会社補足 貸主指定
更新料 - 更新事務手数料 -
その他 本物件は、「仲介物件」です。ご成約の際には仲介手数料を申し受けます。

契約条件

貸家契約区分 普通賃貸借 契約期間 2年
入居可能日 相談 空室状況を確認をする 空室状況を確認をする 引渡時期相談内容 -
フリーレント -
クレジットカード決済 -

駐車場

駐車場 なし 駐車場について質問する 駐車場について質問する
駐車場契約形態 -
駐車場備考 -
バイク置き場 -
駐輪場 -

備考

その他
関連リンク
取引態様 媒介 管理コード 4715767
情報登録(更新)日 2026年5月22日 次回更新予定日 2026年5月29日
備考 めやす賃料:

めやす賃料とは賃料、共益費・管理費、敷引金、更新料を含み、賃料等条件の改定がないものと仮定して4年間賃借した場合(定期借家の場合は契約期間)の1ヶ月当たりの金額です。

※敷引金は、敷金の償却、保証金の償却など、預かった金額から必ず引くものをいいます。
※めやす賃料は、消費者に適切な情報を提供するための表示であり事業者に一時金を推奨するものではありません。
※めやす賃料は、実際の総支払額と異なる場合があります。詳しくは不動産会社にご確認ください。  

周辺環境

  • ローソン篠原南町店:147m
    ローソン篠原南町店:147m
  • 篠原温泉:147m
    篠原温泉:147m
  • セブンイレブン 神戸篠原南町4丁目店:245m
    セブンイレブン 神戸篠原南町4丁目店:245m
  • 灘署:376m
    灘署:376m
  • 神戸篠原郵便局:326m
    神戸篠原郵便局:326m
  • ファミリーマート 灘神前町店:434m
    ファミリーマート 灘神前町店:434m
コンビニ
ローソン篠原南町店
147m
郵便局
神戸篠原郵便局
326m
交番
灘署
376m

取扱店舗

ピタットハウス三宮店
ピタットハウス三宮店
株式会社ライブデザイン
交通
全線三宮駅北側 徒歩1分 フラワーロード東沿いです。
営業時間
09:00 〜 18:00
定休日
年末年始
お電話 0037-6001-03015 無料
メール お問い合わせ
  • お問い合わせ区分

  • 内見希望日時

    第一希望

    第二希望

  • お名前

    全角
  • ご希望の連絡方法

    メールアドレス

    電話番号

    半角
    半角
  • その他ご希望等

ピタットハウスの個人情報の取り扱いについて

ピタットハウスでは信頼されるサイトを目指して、物件情報の精度向上に努めています。
掲載物件に誤りがある場合は こちら からご連絡ください。現状と異なる場合は、現状を優先させていただきます。
取引態様の欄に「媒介」と表示された物件は「仲介物件」です。ご成約の際には仲介手数料を申し受けます。

生活情報

神戸市の暮らしデータ

神戸市は、兵庫県南部に位置し、南には瀬戸内海、北には六甲の山々や里山農村地域等、豊かな自然に恵まれた都市です。陸・海・空の交通ネットワークを有し、開港以来育まれてきた国際性や多様性、芸術・文化は、様々な人々を惹きつけ、新たな価値を生み出し続けてきました。阪神淡路大震災を乗り越えてきたまちとして、経験や教訓を活かしながら、人々が幸せを実感できるとともに、広く世界に貢献するまちを目指しています。

基本データ

市区役所所在地 神戸市中央区加納町6-5-1
公式ホームページURL https://www.city.kobe.lg.jp/
総人口 1,525,152人
人口増減率(2015年/2020年) 99.2%
神戸市の生活情報を詳しくみる

地域のおすすめ情報ブログ

一覧を見る

六甲駅近隣の駅から探す

神戸市灘区の近隣エリアから探す

FAQ

  • A. ビューライフ六甲(GH4715767_2)の内見は、見学予約でお問い合わせいただくか、直接三宮店(0037-6001-03015)までご連絡ください。
  • A. 可能です。ビューライフ六甲(GH4715767_2)周辺の情報は、ピタットハウスの地域情報ブログ「街ピタ」住みたい街の暮らしデータをご活用ください。
  • A. ビューライフ六甲(GH4715767_2)の費用は、こちらよりお問い合わせいただくか、直接三宮店(0037-6001-03015)までご連絡ください。
  • A. はい、可能です。賃貸希望物件リクエストをご利用ください。ビューライフ六甲(GH4715767_2)に似た物件も合わせてご紹介させていただきます。