前へ
次へ
前へ
次へ
マンション

スタイリオ池上SOUTH(304)

20.9 万円
共益費 14,000
20.9万円
-
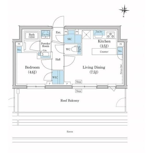
間取り
2LDK
専有面積
45.36㎡
所在階
5階建ての3階
向き
  • アイコン: 住所 東京都大田区池上6丁目
  • アイコン: 交通 東急池上線 「池上駅」 徒歩4分
簡単無料
アイコン: お電話 0037-6001-02068
IP電話ご利用のお客様 : 03-5731-5690
ピタットハウス
都立大学店
point!
★新築★インターネット無料※J:COMに限る
お気軽にお問い合わせください!
簡単無料
お気軽にお問い合わせください!
物件情報・周辺環境・契約手続きについてなどお気軽にお問い合わせください。

設備・条件

建物・立地
  • エレベータ
  • 宅配ボックス
  • 駐輪場
  • 常時ゴミ出し可能
  • バイク置場
通信
  • インターネット無料
  • CATV
セキュリティ
  • オートロック
  • 防犯カメラ
部屋設備
  • ウォークインクロゼット
冷暖房
  • エアコン
キッチン
  • システムキッチン
バス・トイレ
  • 浴室乾燥機
  • 追い焚き風呂
  • 独立洗面台
  • 温水洗浄便座
特徴
  • 新築
  • 定期借家権
  • フリーレント1ヶ月 賃料のみ

物件概要

物件種別

部屋種別 マンション
建物名称 スタイリオ池上SOUTH(304)
所在地 東京都大田区池上6丁目
築年月 2025年10月 階数 5階建ての3階
建物構造 鉄筋コンクリート造 総戸数 49戸
間取り 2LDK(LDK10.2帖 洋4.3帖 洋2.8帖) 専有面積 45.36㎡
向き バルコニー面積 -
その他 -

費用

賃料 20.9万円 初期費用の確認をする 初期費用の確認をする 共益費 14,000円
礼金 - 敷金 20.9万円
保証金 - 償却金 -
その他一時金 清掃費:48950円 / エアコン清掃費:22000円
その他月額費用 -
住宅保険 要加入(2年16550円)
保証会社 必須
保証会社補足 あんしんQ−Rent 初回保証料:賃料等の50%(最低2万)、月次保証料:賃料等の1%、口座振替手数料借主負担
更新料 - 更新事務手数料 -

契約条件

貸家契約区分 定期賃貸借 契約期間 2年
入居可能日 2025年11月20日予定 空室状況を確認をする 空室状況を確認をする 引渡時期相談内容 -
フリーレント あり 1ヶ月 賃料のみ
クレジットカード決済 -

駐車場

駐車場 なし 駐車場について質問する 駐車場について質問する
駐車場契約形態 -
駐車場備考 -
バイク置き場 -
駐輪場 -

備考

その他 ■ご入居時、引越し幹事会社・指定引越し会社有■定借2年■一部法人契約:普通借相談可(担当者に要相談)■指定保証会社利用必須※一部法人契約除く・敷金積増1ヶ月■礼金0ヶ月※2年未満解約時賃料1ヶ月分違約金有■フリーレント1ヶ月(賃料のみ)2年未満解約時賃料1ヶ月分違約金有■禁止事項(ペット飼育・楽器演奏・SOHO利用)■再契約は貸主・借主協議の上相談可(再契約時:再契約料1ヶ月)
関連リンク
取引態様 媒介 管理コード 4671317
情報登録(更新)日 2025年11月16日 次回更新予定日 2025年11月22日
備考 めやす賃料:

めやす賃料とは賃料、共益費・管理費、敷引金、更新料を含み、賃料等条件の改定がないものと仮定して4年間賃借した場合(定期借家の場合は契約期間)の1ヶ月当たりの金額です。

※敷引金は、敷金の償却、保証金の償却など、預かった金額から必ず引くものをいいます。
※めやす賃料は、消費者に適切な情報を提供するための表示であり事業者に一時金を推奨するものではありません。
※めやす賃料は、実際の総支払額と異なる場合があります。詳しくは不動産会社にご確認ください。  

スタイリオ池上SOUTH の他の空室物件

21
建物の空室物件一覧 次へ

取扱店舗

ピタットハウス都立大学店
ピタットハウス都立大学店
カーサ・プラスワン株式会社
交通
東横線「都立大学駅」の改札を出て左へ。1Fにラーメン屋さんがあるビルの3Fです。
営業時間
10:00 〜 18:30
定休日
毎週火曜日・水曜日
  • 近隣駐車場あり
お電話 0037-6001-02068 無料
メール お問い合わせ
  • お問い合わせ区分

  • 内見希望日時

    第一希望

    第二希望

  • お名前

    全角
  • ご希望の連絡方法

    メールアドレス

    電話番号

    半角
    半角
  • その他ご希望等

ピタットハウスの個人情報の取り扱いについて

ピタットハウスでは信頼されるサイトを目指して、物件情報の精度向上に努めています。
掲載物件に誤りがある場合は こちら からご連絡ください。現状と異なる場合は、現状を優先させていただきます。
取引態様の欄に「媒介」と表示された物件は「仲介物件」です。ご成約の際には仲介手数料を申し受けます。

その他の取扱店舗

不動産会社毎に募集条件等が異なる場合があります。詳細は各店の物件詳細ページにてご確認ください。
交通
JR山手線「新宿」駅徒歩6分都営大江戸線「新宿西口」駅徒歩2分
営業時間
09:30 〜 18:30
定休日
毎週水曜日・2月・3月は無休、夏季休暇無し・年末年始
お電話 0037-6001-05237 無料
交通
東急多摩川線 鵜の木駅より徒歩1分
営業時間
10:00 〜 18:30
定休日
毎週水曜日・第1第3火曜日
  • 近隣駐車場あり
お電話 0037-6001-04596 無料
交通
JR中央線 『武蔵境駅』 南口より 徒歩30秒 駐車場有 
営業時間
10:00 〜 19:00
定休日
毎週水曜日・夏季休業・8/12から8/20まで
  • 近隣駐車場あり/キッズスペースあり
お電話 0037-6001-08163 無料

生活情報

大田区の暮らしデータ

大田区は、1947年3月15日に当時の大森区と蒲田区が合併して誕生しました。東京都の東南部に位置し、海と川に臨み、昔から人が住みやすく、交通の要路として栄えてきました。江戸期は農漁村で、海岸の大森・糀谷・羽田地区では1963年頃まで海苔の養殖が盛んに行われました。大正期以降、中小工場が進出し、低地部は住宅や工場が密集する商業・工業地域を形成し、京浜工業地帯の一部となっています。また、台地部は、田園調布、雪谷、久が原など比較的緑の多い住宅地です。臨海部は埋め立て地で、羽田空港をはじめトラックターミナルや市場など物流施設のほか、工場団地、野鳥公園など都市機能施設が整備されています。

基本データ

市区役所所在地 大田区蒲田5-13-14
公式ホームページURL https://www.city.ota.tokyo.jp/
総人口 748,081人
人口増減率(2015年/2020年) 104.3%
大田区の生活情報を詳しくみる

地域のおすすめ情報ブログ

一覧を見る

池上駅近隣の駅から探す

大田区の近隣エリアから探す

FAQ

  • A. スタイリオ池上SOUTH(HM4671317_120)の内見は、見学予約でお問い合わせいただくか、直接都立大学店(0037-6001-02068)までご連絡ください。
  • A. 可能です。スタイリオ池上SOUTH(HM4671317_120)周辺の情報は、ピタットハウスの地域情報ブログ「街ピタ」住みたい街の暮らしデータをご活用ください。
  • A. スタイリオ池上SOUTH(HM4671317_120)の費用は、こちらよりお問い合わせいただくか、直接都立大学店(0037-6001-02068)までご連絡ください。
  • A. はい、可能です。賃貸希望物件リクエストをご利用ください。スタイリオ池上SOUTH(HM4671317_120)に似た物件も合わせてご紹介させていただきます。