前へ
次へ
前へ
次へ
マンション
即入居可

コンフォリア・リヴ渋谷本町(503)

28.5 万円
共益費 20,000
28.5万円
-
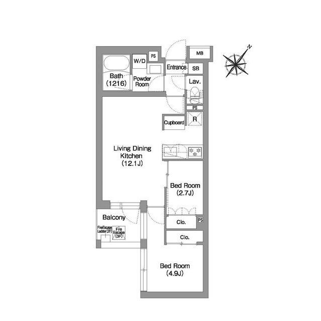
間取り
1LDK
専有面積
47.26㎡
所在階
5階建ての5階
向き
南西
  • アイコン: 住所 東京都渋谷区本町5丁目
  • アイコン: 交通 都営大江戸線 「西新宿五丁目駅」 徒歩10分 / 京王線 「初台駅」 徒歩14分
簡単無料
アイコン: お電話 0037-6001-02068
IP電話ご利用のお客様 : 03-5731-5690
ピタットハウス
都立大学店
point!
◇礼金0か月 駐輪場(無料 各部屋1台まで)
お気軽にお問い合わせください!
簡単無料
お気軽にお問い合わせください!
物件情報・周辺環境・契約手続きについてなどお気軽にお問い合わせください。

設備・条件

建物・立地
  • エレベータ
  • 宅配ボックス
  • 駐輪場
  • 常時ゴミ出し可能
  • バイク置場
通信
  • インターネット無料
セキュリティ
  • オートロック
  • 防犯カメラ
部屋設備
  • 室内洗濯機置場
冷暖房
  • エアコン
キッチン
  • システムキッチン
バス・トイレ
  • バス・トイレ別
  • 浴室乾燥機
  • 追い焚き風呂
  • 独立洗面台
  • 温水洗浄便座
特徴
  • 新築
  • ペット相談可

物件概要

物件種別

部屋種別 マンション
建物名称 コンフォリア・リヴ渋谷本町(503)
所在地 東京都渋谷区本町5丁目
築年月 2025年7月 階数 5階建ての5階
建物構造 鉄筋コンクリート造 総戸数 24戸
間取り 1LDK(LDK13.2帖 洋3.8帖) 専有面積 47.26㎡
向き 南西 バルコニー面積 -
その他 -

費用

賃料 28.5万円 初期費用の確認をする 初期費用の確認をする 共益費 20,000円
礼金 - 敷金 28.5万円
保証金 - 償却金 -
その他一時金 清掃費:50930円 / エアコン清掃費:55000円
その他月額費用 -
住宅保険 要加入(2年16550円)
保証会社 必須
保証会社補足 エポスカード(RP) 保証料:賃料等の50%(最低2万)、月額保証料:賃料等の1%(更新料無)
更新料 更新後賃料:1ヶ月 更新事務手数料 -

契約条件

貸家契約区分 普通賃貸借 契約期間 2年
入居可能日 相談 空室状況を確認をする 空室状況を確認をする 引渡時期相談内容 -
フリーレント -
クレジットカード決済 -

駐車場

駐車場 なし 駐車場について質問する 駐車場について質問する
駐車場契約形態 -
駐車場備考 -
バイク置き場 -
駐輪場 -

備考

その他 ◆指定保証会社利用必須※一部法人契約除く・敷金積増1ヶ月◆礼金0ヶ月※1年以内解約時賃料1ヶ月分違約金有◆退居時、エアコン清掃費・室内清掃費かかります◆禁止事項(SOHO・楽器演奏・事務所)◆ペット飼育時敷金1ヶ月積増・使用細則遵守・小型犬1匹又は猫2匹 ◆当該居室の転貸禁止、ただし本建物所有者が本建物内にて第三者への転貸行為を実施する可能性有
関連リンク
取引態様 媒介 管理コード 4683953
情報登録(更新)日 2025年11月5日 次回更新予定日 2025年11月11日
備考 めやす賃料:

めやす賃料とは賃料、共益費・管理費、敷引金、更新料を含み、賃料等条件の改定がないものと仮定して4年間賃借した場合(定期借家の場合は契約期間)の1ヶ月当たりの金額です。

※敷引金は、敷金の償却、保証金の償却など、預かった金額から必ず引くものをいいます。
※めやす賃料は、消費者に適切な情報を提供するための表示であり事業者に一時金を推奨するものではありません。
※めやす賃料は、実際の総支払額と異なる場合があります。詳しくは不動産会社にご確認ください。  

取扱店舗

ピタットハウス都立大学店
ピタットハウス都立大学店
カーサ・プラスワン株式会社
交通
東横線「都立大学駅」の改札を出て左へ。1Fにラーメン屋さんがあるビルの3Fです。
営業時間
10:00 〜 18:30
定休日
毎週火曜日・水曜日
  • 近隣駐車場あり
お電話 0037-6001-02068 無料
メール お問い合わせ
  • お問い合わせ区分

  • 内見希望日時

    第一希望

    第二希望

  • お名前

    全角
  • ご希望の連絡方法

    メールアドレス

    電話番号

    半角
    半角
  • その他ご希望等

ピタットハウスの個人情報の取り扱いについて

ピタットハウスでは信頼されるサイトを目指して、物件情報の精度向上に努めています。
掲載物件に誤りがある場合は こちら からご連絡ください。現状と異なる場合は、現状を優先させていただきます。
取引態様の欄に「媒介」と表示された物件は「仲介物件」です。ご成約の際には仲介手数料を申し受けます。

その他の取扱店舗

不動産会社毎に募集条件等が異なる場合があります。詳細は各店の物件詳細ページにてご確認ください。
交通
JR山手線「新宿」駅徒歩6分都営大江戸線「新宿西口」駅徒歩2分
営業時間
09:30 〜 18:30
定休日
毎週水曜日・2月・3月は無休、夏季休暇無し・年末年始
お電話 0037-6001-05237 無料
交通
都営大江戸線 勝どき駅『A3b出口』より豊海町方面へ徒歩3分・都営大江戸線、月島駅『10番出口』より勝どき方面へ徒歩12分。
営業時間
10:00 〜 17:00
定休日
毎週水曜日・木曜日
お電話 0037-6001-00475 無料
交通
JR中央線 『武蔵境駅』 南口より 徒歩30秒 駐車場有 
営業時間
10:00 〜 19:00
定休日
毎週水曜日・夏季休業・8/12から8/20まで
  • 近隣駐車場あり/キッズスペースあり
お電話 0037-6001-08163 無料

生活情報

渋谷区の暮らしデータ

渋谷区は、1932年10月1日に渋谷町・千駄ヶ谷町・代々幡町が合併し、ほかの79町村とともに大東京35区の一環として誕生しました。渋谷や原宿周辺の都市部は、ファッション関係の店舗をはじめ、表参道ヒルズ、渋谷ヒカリエ、渋谷ストリーム、渋谷スクランブルスクエア、WITH HARAJUKU、MIYASHITA PARKなどさまざまな商業ビル・施設があり、区民だけでなく多くの来街者が集まるエリアです。また、都心でありながらも明治神宮や代々木公園など自然豊かな場所にも恵まれている区です。

基本データ

市区役所所在地 渋谷区宇田川町1-1
公式ホームページURL https://www.city.shibuya.tokyo.jp/
総人口 243,883人
人口増減率(2015年/2020年) 108.6%
渋谷区の生活情報を詳しくみる

地域のおすすめ情報ブログ

一覧を見る

西新宿五丁目駅近隣の駅から探す

渋谷区の近隣エリアから探す

FAQ

  • A. コンフォリア・リヴ渋谷本町(HM4683953_35)の内見は、見学予約でお問い合わせいただくか、直接都立大学店(0037-6001-02068)までご連絡ください。
  • A. 可能です。コンフォリア・リヴ渋谷本町(HM4683953_35)周辺の情報は、ピタットハウスの地域情報ブログ「街ピタ」住みたい街の暮らしデータをご活用ください。
  • A. コンフォリア・リヴ渋谷本町(HM4683953_35)の費用は、こちらよりお問い合わせいただくか、直接都立大学店(0037-6001-02068)までご連絡ください。
  • A. はい、可能です。賃貸希望物件リクエストをご利用ください。コンフォリア・リヴ渋谷本町(HM4683953_35)に似た物件も合わせてご紹介させていただきます。