前へ
次へ
前へ
次へ
マンション

キャッスル常滑(414)

5.5 万円
共益費 6,000
-
-
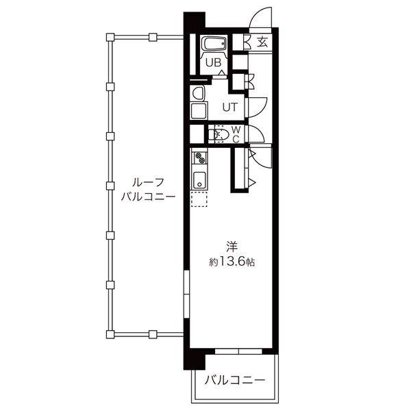
間取り
1LDK
専有面積
39.30㎡
所在階
9階建ての4階
向き
  • アイコン: 住所 愛知県常滑市栄町7丁目184-1
  • アイコン: 交通 名鉄空港線 「常滑駅」 徒歩15分 / 名鉄常滑線 「常滑駅」 徒歩14分 / 名鉄空港線 「りんくう常滑駅」 徒歩26分
簡単無料
アイコン: お電話 0037-6001-01480
IP電話ご利用のお客様 : 0569-84-0080
ピタットハウス
半田店
point!
オートロック付きマンション、便利な立地で単身者にオススメ!
ネット無料・宅配BOX・エアコン・浴室乾燥機など嬉しい設備 たくさんついてます^^ 気になる方は、ピタットハウス半田店までお問い合わせください♪
お気軽にお問い合わせください!
簡単無料
お気軽にお問い合わせください!
物件情報・周辺環境・契約手続きについてなどお気軽にお問い合わせください。

設備・条件

建物・立地
  • エレベータ
  • 宅配ボックス
  • 敷地内駐車場
  • 駐輪場
  • プロパンガス
  • 敷地内ごみ置き場
  • バイク置場
通信
  • インターネット対応
  • インターネット無料
  • CATV
  • 光回線
セキュリティ
  • オートロック
  • TVモニター付きインターホン
  • 防犯カメラ
  • 日勤管理
部屋設備
  • フローリング
  • バルコニー
  • 室内洗濯機置場
  • 下駄箱
  • クローゼット
  • ウォークインクローゼット
  • 全居室洋室
冷暖房
  • エアコン
キッチン
  • システムキッチン
  • ガスコンロ(2口)
バス・トイレ
  • バス・トイレ別
  • 浴室乾燥機
  • 洗髪洗面化粧台
  • 独立洗面台
  • 温水洗浄便座
  • シャワー
  • 洗面化粧台
  • トイレ
特徴
  • オンライン内見可
  • オンライン相談可
  • IT重説対応物件
  • 敷金不要
  • 礼金不要
  • 保証金不要
  • 保証人不要

物件概要

物件種別

部屋種別 マンション
建物名称 キャッスル常滑(414)
所在地 愛知県常滑市栄町7丁目184-1 MAP
築年月 2007年8月 階数 9階建ての4階
建物構造 鉄筋コンクリート造 総戸数 -
間取り 1LDK(LDK9.4帖 洋4.7帖) 専有面積 39.30㎡
向き バルコニー面積 -
その他 管理形態:巡回管理 

費用

賃料 5.5万円 初期費用の確認をする 初期費用の確認をする 共益費 6,000円
礼金 - 敷金 -
保証金 - 償却金 -
その他一時金 消毒費:16500円 / 水道預り金:11000円 / カギ交換費用:16500円
その他月額費用 CATV:1760円/月
住宅保険 要加入(2年20000円)
保証会社 必須
保証会社補足 全保連 毎月プラン:毎月賃料の3.5%(更新料なし)引落手数料込
更新料 - 更新事務手数料 -

契約条件

貸家契約区分 普通賃貸借 契約期間 2年
入居可能日 相談 空室状況を確認をする 空室状況を確認をする 引渡時期相談内容 -
フリーレント -
クレジットカード決済 -

駐車場

駐車場 有り 月額5,500円 駐車場について質問する 駐車場について質問する
駐車場契約形態 -
駐車場備考 -
バイク置き場 有り 2200円/月
駐輪場 -

備考

その他 クリーニング費用 解約時 33,000円(税込)・短期解約違約金特約有(1年未満の解約は賃料等の1ヶ月分)。24時間安心サポート:2年間16,500円(税込)にも入れます。駐車場契約の場合、別途契約手数料がかかります。
関連リンク
取引態様 媒介 管理コード 1048155
情報登録(更新)日 2026年4月30日 次回更新予定日 2026年5月19日
備考 めやす賃料:

めやす賃料とは賃料、共益費・管理費、敷引金、更新料を含み、賃料等条件の改定がないものと仮定して4年間賃借した場合(定期借家の場合は契約期間)の1ヶ月当たりの金額です。

※敷引金は、敷金の償却、保証金の償却など、預かった金額から必ず引くものをいいます。
※めやす賃料は、消費者に適切な情報を提供するための表示であり事業者に一時金を推奨するものではありません。
※めやす賃料は、実際の総支払額と異なる場合があります。詳しくは不動産会社にご確認ください。  

周辺環境

  • 常滑市立常滑西小学校:202m
    常滑市立常滑西小学校:202m
  • 常滑市立常滑中学校:3142m
    常滑市立常滑中学校:3142m
  • 常滑市役所:2309m
    常滑市役所:2309m
  • 常滑警察署:837m
    常滑警察署:837m
  • バロー常滑店:288m
    バロー常滑店:288m
  • ファミリーマート常滑栄町店:631m
    ファミリーマート常滑栄町店:631m
  • スギ薬局常滑陶郷店:390m
    スギ薬局常滑陶郷店:390m
  • DCM常滑店:1301m
    DCM常滑店:1301m
  • イオンモール常滑:2515m
    イオンモール常滑:2515m
コンビニ
ファミリーマート常滑栄町店
631m
買物
バロー常滑店
288m
ドラッグストア
スギ薬局常滑陶郷店
390m
ホームセンター
DCM常滑店
1301m
病院
地方独立行政法人知多半島総合医療
1836m
役所
常滑市役所
2309m
郵便局
常滑市場郵便局
751m
図書館
常滑市立図書館南陵分館
4856m
交番
常滑警察署
837m
公園
北条公園
1580m
銀行
西尾信用金庫常滑支店
565m
幼稚園
常滑市立瀬木保育園
585m
小学校
常滑市立常滑西小学校
202m
中学校
常滑市立常滑中学校
3142m
高校
愛知県立常滑高校
3720m

取扱店舗

ピタットハウス半田店
ピタットハウス半田店
株式会社すまいらんど
交通
名鉄河和線「青山」駅より徒歩6分。駐車場もございます。知多半島道路半田インターより、車で東へ5分。
営業時間
10:00 〜 18:00
定休日
毎週火曜、水曜日
  • 駐車場あり/キッズスペースあり
お電話 0037-6001-01480 無料
メール お問い合わせ
  • お問い合わせ区分

  • 内見希望日時

    第一希望

    第二希望

  • お名前

    全角
  • ご希望の連絡方法

    メールアドレス

    電話番号

    半角
    半角
  • その他ご希望等

ピタットハウスの個人情報の取り扱いについて

ピタットハウスでは信頼されるサイトを目指して、物件情報の精度向上に努めています。
掲載物件に誤りがある場合は こちら からご連絡ください。現状と異なる場合は、現状を優先させていただきます。
取引態様の欄に「媒介」と表示された物件は「仲介物件」です。ご成約の際には仲介手数料を申し受けます。

生活情報

常滑市の暮らしデータ

常滑市は、千年の歴史と伝統を誇る常滑焼の産地であり、2017年4月に日本遺産に認定された日本六古窯の一産地です。一方で、2005年2月に中部国際空港セントレアが開港し、空港島や対岸のりんくうエリアには、ホテルや大型商業施設などが立ち並んでいます。また、空港島では、2018年10月に複合商業施設「フライト・オブ・ドリームズ」がオープンし、2019年8月には愛知県国際展示場が開業しました。今後ますますの発展が期待される、「古き良き伝統と新しい文化が共存するまち」です。

基本データ

市区役所所在地 常滑市飛香台3-3-5
公式ホームページURL https://www.city.tokoname.aichi.jp/
総人口 58,710人
人口増減率(2015年/2020年) 103.8%
常滑市の生活情報を詳しくみる

常滑市の近隣エリアから探す

FAQ

  • A. キャッスル常滑(JD104100_414)の内見は、見学予約でお問い合わせいただくか、直接半田店(0037-6001-01480)までご連絡ください。
  • A. 可能です。キャッスル常滑(JD104100_414)周辺の情報は、ピタットハウスの地域情報ブログ「街ピタ」住みたい街の暮らしデータをご活用ください。
  • A. キャッスル常滑(JD104100_414)の費用は、こちらよりお問い合わせいただくか、直接半田店(0037-6001-01480)までご連絡ください。
  • A. はい、可能です。賃貸希望物件リクエストをご利用ください。キャッスル常滑(JD104100_414)に似た物件も合わせてご紹介させていただきます。