前へ
次へ
前へ
次へ
一戸建

横浜市青葉区藤が丘2丁目貸家

NEW
24.5 万円
共益費 -
49万円
24.5万円
間取り
4LDK
専有面積
99.57㎡
所在階
2階建ての1階
向き
  • アイコン: 住所 神奈川県横浜市青葉区藤が丘2丁目
  • アイコン: 交通 東急田園都市線 「青葉台駅」 徒歩9分 / 東急田園都市線 「藤が丘駅」 徒歩10分 / JR横浜線 「十日市場駅」 徒歩23分
簡単無料
アイコン: お電話 0037-6001-09445
IP電話ご利用のお客様 : 045-264-3311
ピタットハウス
センター南店
point!
青葉台駅徒歩9分の4LDKおすすめ貸戸建住宅 定期借家です!
2006年02月築!99.57㎡の便利な東急田園都市線沿線!
お気軽にお問い合わせください!
簡単無料
お気軽にお問い合わせください!
物件情報・周辺環境・契約手続きについてなどお気軽にお問い合わせください。

設備・条件

建物・立地
  • 分譲マンションタイプ
  • 敷地内駐車場
  • 都市ガス
セキュリティ
  • TVモニター付きインターホン
  • ダブルロックドア
部屋設備
  • フローリング
  • バルコニー
  • ロフト
  • 室内洗濯機置場
  • 下駄箱
  • クローゼット
  • 床下収納
  • 収納スペース
  • 全居室フローリング
  • 複層ガラス
  • 全居室収納
  • 陽当り良好
  • 南向き
  • 眺望良好
  • 2面採光
冷暖房
  • エアコン
  • エアコン2台以上
キッチン
  • システムキッチン
  • ガスコンロ(3口)
  • グリル
バス・トイレ
  • バス・トイレ別
  • 浴室乾燥機
  • 追い焚き風呂
  • 洗髪洗面化粧台
  • 独立洗面台
  • 温水洗浄便座
  • シャワー
  • 洗面所
  • 洗面台
特徴
  • ペット相談可
  • ピアノ相談可
  • オンライン内見可
  • IT重説対応物件
  • 二人入居可
  • 保証金不要
  • 保証人不要
  • 初期費用カード決済可

物件概要

物件種別

部屋種別 一戸建
建物名称 横浜市青葉区藤が丘2丁目貸家
所在地 神奈川県横浜市青葉区藤が丘2丁目 MAP
築年月 2006年2月 階数 2階建ての1階
建物構造 木造 総戸数 -
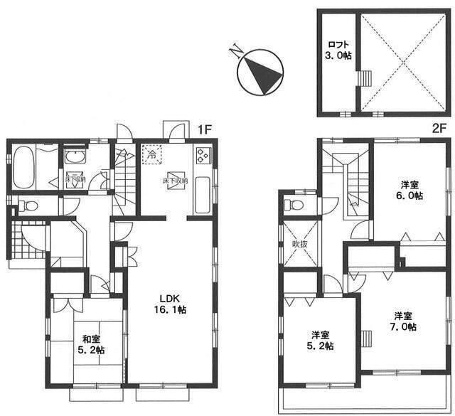
間取り 4LDK(和5.2帖 洋5.2帖 洋6帖 洋7帖 LDK16.1帖) 専有面積 99.57㎡
向き バルコニー面積 -
その他 -

費用

賃料 24.5万円 初期費用の確認をする 初期費用の確認をする 共益費 -
礼金 24.5万円 敷金 49万円 + ペット積み増し(24.5万円)
保証金 - 償却金 -
その他一時金 鍵交換代等:33000円
その他月額費用 口座振替利用料:550円/月
住宅保険 要加入(2年18000円)
保証会社 必須
保証会社補足 加入要 初回保証料賃料等総額50%、2年目以降10,000円〜
更新料 - 更新事務手数料 -

契約条件

貸家契約区分 定期賃貸借 契約期間 2年
入居可能日 2026年1月10日予定 空室状況を確認をする 空室状況を確認をする 引渡時期相談内容 -
フリーレント -
クレジットカード決済 初期費用クレジット決済可

駐車場

駐車場 有り(無料) 駐車場について質問する 駐車場について質問する
駐車場契約形態 -
駐車場備考 -
バイク置き場 なし
駐輪場 なし

備考

その他 ペット飼育相談可の賃貸物件に住む癒しの空間! 楽器相談可の賃貸物件に住んで趣味や練習を満喫! システムキッチンなど収納等の室内設備充実! 当店なら各カード会社で初期費用クレジット決済可能!
関連リンク
取引態様 媒介 管理コード 4700268
情報登録(更新)日 2025年11月2日 次回更新予定日 2025年11月10日
備考 めやす賃料:

めやす賃料とは賃料、共益費・管理費、敷引金、更新料を含み、賃料等条件の改定がないものと仮定して4年間賃借した場合(定期借家の場合は契約期間)の1ヶ月当たりの金額です。

※敷引金は、敷金の償却、保証金の償却など、預かった金額から必ず引くものをいいます。
※めやす賃料は、消費者に適切な情報を提供するための表示であり事業者に一時金を推奨するものではありません。
※めやす賃料は、実際の総支払額と異なる場合があります。詳しくは不動産会社にご確認ください。  

周辺環境

  • 横浜市立藤が丘小学校:611m
    横浜市立藤が丘小学校:611m
  • 横浜市立谷本中学校:420m
    横浜市立谷本中学校:420m
  • しらとり台保育園青葉台:394m
    しらとり台保育園青葉台:394m
  • 横浜市青葉区役所:2499m
    横浜市青葉区役所:2499m
  • 横浜藤が丘郵便局:480m
    横浜藤が丘郵便局:480m
  • 藤が丘公園:430m
    藤が丘公園:430m
  • FOOD PATIOレ・シ・ピ青葉台:872m
    FOOD PATIOレ・シ・ピ青葉台:872m
ショッピング施設
FOOD PATIOレ・シ・ピ青
872m
役所
横浜市青葉区役所
2499m
郵便局
横浜藤が丘郵便局
480m
公園
藤が丘公園
430m
幼稚園
しらとり台保育園青葉台
394m
小学校
横浜市立藤が丘小学校
611m
中学校
横浜市立谷本中学校
420m

取扱店舗

ピタットハウスセンター南店
ピタットハウスセンター南店
株式会社関東住宅流通
交通
センター南駅 出口1から徒歩約3分センター北駅 出口1から徒歩約16分都筑ふれあいの丘駅 出口1から徒歩約17分
営業時間
09:30 〜 18:30
定休日
毎週火曜日・水曜日・夏季休暇(8/12~8/17)
お電話 0037-6001-09445 無料
メール お問い合わせ
  • お問い合わせ区分

  • 内見希望日時

    第一希望

    第二希望

  • お名前

    全角
  • ご希望の連絡方法

    メールアドレス

    電話番号

    半角
    半角
  • その他ご希望等

ピタットハウスの個人情報の取り扱いについて

ピタットハウスでは信頼されるサイトを目指して、物件情報の精度向上に努めています。
掲載物件に誤りがある場合は こちら からご連絡ください。現状と異なる場合は、現状を優先させていただきます。
取引態様の欄に「媒介」と表示された物件は「仲介物件」です。ご成約の際には仲介手数料を申し受けます。

その他の取扱店舗

不動産会社毎に募集条件等が異なる場合があります。詳細は各店の物件詳細ページにてご確認ください。
交通
JR京浜東北根岸線 桜木町駅 徒歩2分みなとみらい線 みなとみらい駅 徒歩14分みなとみらい線 馬車道駅 徒歩7分
営業時間
09:30 〜 18:30
定休日
毎週水曜日・夏季休暇(8/13~8/17)
お電話 0037-6001-05692 無料

生活情報

横浜市の暮らしデータ

横浜市は、神奈川県の東端に位置し、東は東京湾、北は川崎市、西は町田市・大和市・藤沢市、南は鎌倉市・逗子市・横須賀市に接しています。横浜市の中心部から東京都心部までは、約30kmです。国を代表する国際貿易港である横浜港を基盤として、首都圏の中核都市としての役割を担っています。総面積は、約435km2で、これは東京23区の約7割にあたります。

基本データ

市区役所所在地 横浜市中区本町6-50-10
公式ホームページURL https://www.city.yokohama.lg.jp/
総人口 3,777,491人
人口増減率(2015年/2020年) 101.4%
横浜市の生活情報を詳しくみる

地域のおすすめ情報ブログ

一覧を見る

青葉台駅近隣の駅から探す

横浜市青葉区の近隣エリアから探す

FAQ

  • A. 横浜市青葉区藤が丘2丁目貸家(JQ4700268_2)の内見は、見学予約でお問い合わせいただくか、直接センター南店(0037-6001-09445)までご連絡ください。
  • A. 可能です。横浜市青葉区藤が丘2丁目貸家(JQ4700268_2)周辺の情報は、ピタットハウスの地域情報ブログ「街ピタ」住みたい街の暮らしデータをご活用ください。
  • A. 横浜市青葉区藤が丘2丁目貸家(JQ4700268_2)の費用は、こちらよりお問い合わせいただくか、直接センター南店(0037-6001-09445)までご連絡ください。
  • A. はい、可能です。賃貸希望物件リクエストをご利用ください。横浜市青葉区藤が丘2丁目貸家(JQ4700268_2)に似た物件も合わせてご紹介させていただきます。