前へ
次へ
前へ
次へ
マンション

コーポレート東戸塚

NEW
13.7 万円
共益費 10,000
13.7万円
13.7万円
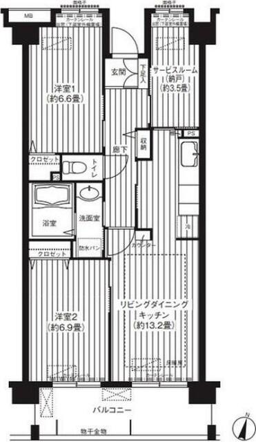
間取り
2SLDK
専有面積
65.97㎡
所在階
地下2階・地上6階建ての4階
向き
  • アイコン: 住所 神奈川県横浜市戸塚区品濃町
  • アイコン: 交通 JR横須賀線 「東戸塚駅」 徒歩15分
簡単無料
アイコン: お電話 0037-6001-05692
IP電話ご利用のお客様 : 045-264-3311
ピタットハウス
桜木町店
point!
東戸塚駅徒歩15分バス6分駅バス停駅境木地蔵尊駅停歩2分の2
2003年12月築!65.97㎡の便利なJR横須賀線沿線!
お気軽にお問い合わせください!
簡単無料
お気軽にお問い合わせください!
物件情報・周辺環境・契約手続きについてなどお気軽にお問い合わせください。

設備・条件

建物・立地
  • エレベータ
  • 宅配ボックス
通信
  • インターネット対応
  • CATV
セキュリティ
  • オートロック
部屋設備
  • バルコニー
  • 室内洗濯機置場
  • 収納スペース
冷暖房
  • エアコン
キッチン
  • ガスコンロ設置可
バス・トイレ
  • バス・トイレ別
  • 浴室乾燥機
  • 追い焚き風呂
  • 独立洗面台
  • トイレ

物件概要

物件種別

部屋種別 マンション
建物名称 コーポレート東戸塚
所在地 神奈川県横浜市戸塚区品濃町 MAP
築年月 2003年12月 階数 地下2階・地上6階建ての4階
建物構造 鉄筋コンクリート造 総戸数 -
間取り 2SLDK 専有面積 65.97㎡
向き バルコニー面積 -
その他 -

費用

賃料 13.7万円 初期費用の確認をする 初期費用の確認をする 共益費 10,000円
礼金 13.7万円 敷金 13.7万円
保証金 - 償却金 -
その他一時金 鍵交換代等:22000円
その他月額費用 -
住宅保険 要加入(2年)
保証会社 必須
保証会社補足 加入要 大和ハウスフィナンシャル:初回総賃料の40% 毎月総賃料の1% 更新時更新料の1% 解約時原状回復費用1%
更新料 更新後賃料:1ヶ月 更新事務手数料 -

契約条件

貸家契約区分 普通賃貸借 契約期間 2年
入居可能日 相談 空室状況を確認をする 空室状況を確認をする 引渡時期相談内容 -
フリーレント -
クレジットカード決済 初期費用クレジット決済可

駐車場

駐車場 なし 駐車場について質問する 駐車場について質問する
駐車場契約形態 -
駐車場備考 -
バイク置き場 なし
駐輪場 有り(無料)

備考

その他 宅配BOX完備で不在がちな方にも、荷物を受取れる便利設備! オートロック設備完備で安心生活をしっかりサポート! 当店なら各カード会社で初期費用クレジット決済可能!
関連リンク
取引態様 媒介 管理コード 4752922
情報登録(更新)日 2026年1月11日 次回更新予定日 2026年1月18日
備考 めやす賃料:

めやす賃料とは賃料、共益費・管理費、敷引金、更新料を含み、賃料等条件の改定がないものと仮定して4年間賃借した場合(定期借家の場合は契約期間)の1ヶ月当たりの金額です。

※敷引金は、敷金の償却、保証金の償却など、預かった金額から必ず引くものをいいます。
※めやす賃料は、消費者に適切な情報を提供するための表示であり事業者に一時金を推奨するものではありません。
※めやす賃料は、実際の総支払額と異なる場合があります。詳しくは不動産会社にご確認ください。  

周辺環境

  • 横浜市立境木小学校:316m
    横浜市立境木小学校:316m
  • 横浜市立境木中学校:377m
    横浜市立境木中学校:377m
  • 特定非営利活動法人育援会東戸塚もえぎ保育室:352m
    特定非営利活動法人育援会東戸塚もえぎ保育室:352m
  • 横浜市保土ケ谷区役所:4345m
    横浜市保土ケ谷区役所:4345m
  • 横浜平戸郵便局:897m
    横浜平戸郵便局:897m
  • 三王山公園:435m
    三王山公園:435m
  • 西武東戸塚S.C.:1311m
    西武東戸塚S.C.:1311m
ショッピング施設
西武東戸塚S.C.
1311m
役所
横浜市保土ケ谷区役所
4345m
郵便局
横浜平戸郵便局
897m
公園
三王山公園
435m
幼稚園
特定非営利活動法人育援会東戸塚も
352m
小学校
横浜市立境木小学校
316m
中学校
横浜市立境木中学校
377m

取扱店舗

ピタットハウス桜木町店
ピタットハウス桜木町店
株式会社関東住宅流通
交通
JR京浜東北根岸線 桜木町駅 徒歩2分みなとみらい線 みなとみらい駅 徒歩14分みなとみらい線 馬車道駅 徒歩7分
営業時間
09:30 〜 18:30
定休日
毎週水曜日・冬季休暇(12/27~1/4)
お電話 0037-6001-05692 無料
メール お問い合わせ
  • お問い合わせ区分

  • 内見希望日時

    第一希望

    第二希望

  • お名前

    全角
  • ご希望の連絡方法

    メールアドレス

    電話番号

    半角
    半角
  • その他ご希望等

ピタットハウスの個人情報の取り扱いについて

ピタットハウスでは信頼されるサイトを目指して、物件情報の精度向上に努めています。
掲載物件に誤りがある場合は こちら からご連絡ください。現状と異なる場合は、現状を優先させていただきます。
取引態様の欄に「媒介」と表示された物件は「仲介物件」です。ご成約の際には仲介手数料を申し受けます。

その他の取扱店舗

不動産会社毎に募集条件等が異なる場合があります。詳細は各店の物件詳細ページにてご確認ください。
交通
センター南駅 出口1から徒歩約3分センター北駅 出口1から徒歩約16分都筑ふれあいの丘駅 出口1から徒歩約17分
営業時間
09:30 〜 18:30
定休日
毎週火曜日・水曜日・冬季休暇(12/27~1/4)
お電話 0037-6001-09445 無料

生活情報

横浜市の暮らしデータ

横浜市は、神奈川県の東端に位置し、東は東京湾、北は川崎市、西は町田市・大和市・藤沢市、南は鎌倉市・逗子市・横須賀市に接しています。横浜市の中心部から東京都心部までは、約30kmです。国を代表する国際貿易港である横浜港を基盤として、首都圏の中核都市としての役割を担っています。総面積は、約435km2で、これは東京23区の約7割にあたります。

基本データ

市区役所所在地 横浜市中区本町6-50-10
公式ホームページURL https://www.city.yokohama.lg.jp/
総人口 3,777,491人
人口増減率(2015年/2020年) 101.4%
横浜市の生活情報を詳しくみる

地域のおすすめ情報ブログ

一覧を見る

東戸塚駅近隣の駅から探す

横浜市戸塚区の近隣エリアから探す

FAQ

  • A. コーポレート東戸塚(JQ4752922_1)の内見は、見学予約でお問い合わせいただくか、直接桜木町店(0037-6001-05692)までご連絡ください。
  • A. 可能です。コーポレート東戸塚(JQ4752922_1)周辺の情報は、ピタットハウスの地域情報ブログ「街ピタ」住みたい街の暮らしデータをご活用ください。
  • A. コーポレート東戸塚(JQ4752922_1)の費用は、こちらよりお問い合わせいただくか、直接桜木町店(0037-6001-05692)までご連絡ください。
  • A. はい、可能です。賃貸希望物件リクエストをご利用ください。コーポレート東戸塚(JQ4752922_1)に似た物件も合わせてご紹介させていただきます。