前へ
次へ
前へ
次へ
マンション

リヴシティ横濱関内弐番館

NEW
11.5 万円
共益費 10,000
-
11.5万円
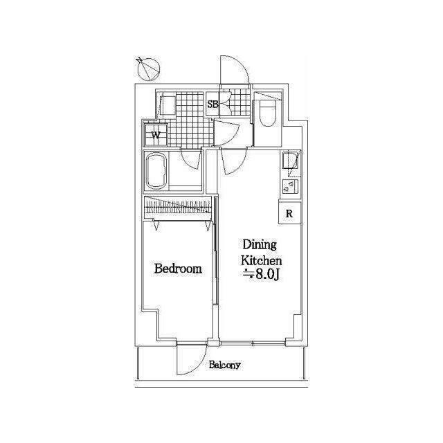
間取り
1LDK
専有面積
31.85㎡
所在階
11階建ての9階
向き
南西
  • アイコン: 住所 神奈川県横浜市中区長者町1丁目
  • アイコン: 交通 横浜市ブルーライン 「伊勢佐木長者町駅」 徒歩5分 / 横浜市ブルーライン 「関内駅」 徒歩10分
簡単無料
アイコン: お電話 0037-6001-05692
IP電話ご利用のお客様 : 045-264-3311
ピタットハウス
桜木町店
point!
伊勢佐木長者町駅徒歩5分の1LDKおすすめ貸マンションです!
2020年01月築!31.85㎡の便利な横浜市ブルーライン沿線!
お気軽にお問い合わせください!
簡単無料
お気軽にお問い合わせください!
物件情報・周辺環境・契約手続きについてなどお気軽にお問い合わせください。

設備・条件

建物・立地
  • エレベータ
  • 宅配ボックス
  • 都市ガス
通信
  • インターネット無料
セキュリティ
  • オートロック
  • TVモニター付きインターホン
  • モニタ付オートロック
  • 防犯カメラ
部屋設備
  • 室内洗濯機置場
冷暖房
  • エアコン
キッチン
  • ガスコンロ(2口)
バス・トイレ
  • バス・トイレ別
  • 浴室乾燥機
  • 追い焚き風呂
  • 温水洗浄便座
  • トイレ
  • 洗面台
特徴
  • ペット相談可

物件概要

物件種別

部屋種別 マンション
建物名称 リヴシティ横濱関内弐番館
所在地 神奈川県横浜市中区長者町1丁目 MAP
築年月 2020年1月 階数 11階建ての9階
建物構造 鉄筋コンクリート造 総戸数 -
間取り 1LDK(LDK8帖 洋4.6帖) 専有面積 31.85㎡
向き 南西 バルコニー面積 -
その他 -

費用

賃料 11.5万円 初期費用の確認をする 初期費用の確認をする 共益費 10,000円
礼金 11.5万円 敷金 ペット積み増し(11.5万円)
保証金 - 償却金 -
その他一時金 鍵交換代等:22000円
その他月額費用 -
住宅保険 要加入(2年18000円)
保証会社 必須
保証会社補足 加入要 全保連 ●保証会社必須(全保連・ジェイリース・GTN) 日本国籍の方:初回保証料【賃料+管理費】の50% 外国籍の方 :初回保証料【賃料+管理費】の70% (更新保証料:1年ごと10,000円
更新料 更新後賃料:1.5ヶ月 更新事務手数料 -

契約条件

貸家契約区分 普通賃貸借 契約期間 2年
入居可能日 2026年2月28日予定 空室状況を確認をする 空室状況を確認をする 引渡時期相談内容 -
フリーレント -
クレジットカード決済 初期費用クレジット決済可

駐車場

駐車場 なし 駐車場について質問する 駐車場について質問する
駐車場契約形態 -
駐車場備考 -
バイク置き場 なし
駐輪場 なし

備考

その他 ペット飼育相談可の賃貸物件に住む癒しの空間! 宅配BOX完備で不在がちな方にも、荷物を受取れる便利設備! オートロック設備完備で安心生活をしっかりサポート! 当店なら各カード会社で初期費用クレジット決済可能!
関連リンク
取引態様 媒介 管理コード 4755993
情報登録(更新)日 2026年1月14日 次回更新予定日 2026年1月22日
備考 めやす賃料:

めやす賃料とは賃料、共益費・管理費、敷引金、更新料を含み、賃料等条件の改定がないものと仮定して4年間賃借した場合(定期借家の場合は契約期間)の1ヶ月当たりの金額です。

※敷引金は、敷金の償却、保証金の償却など、預かった金額から必ず引くものをいいます。
※めやす賃料は、消費者に適切な情報を提供するための表示であり事業者に一時金を推奨するものではありません。
※めやす賃料は、実際の総支払額と異なる場合があります。詳しくは不動産会社にご確認ください。  

周辺環境

  • 横浜市立石川小学校:653m
    横浜市立石川小学校:653m
  • 私立横浜女学院中学校:678m
    私立横浜女学院中学校:678m
  • ヨコハマきぼう保育園:233m
    ヨコハマきぼう保育園:233m
  • 横浜市南区役所:993m
    横浜市南区役所:993m
  • 横浜長者町郵便局:370m
    横浜長者町郵便局:370m
  • 大通り公園:599m
    大通り公園:599m
  • バーニーズニューヨーク横浜店:1734m
    バーニーズニューヨーク横浜店:1734m
ショッピング施設
バーニーズニューヨーク横浜店
1734m
役所
横浜市南区役所
993m
郵便局
横浜長者町郵便局
370m
公園
大通り公園
599m
幼稚園
ヨコハマきぼう保育園
233m
小学校
横浜市立石川小学校
653m
中学校
私立横浜女学院中学校
678m

取扱店舗

ピタットハウス桜木町店
ピタットハウス桜木町店
株式会社関東住宅流通
交通
JR京浜東北根岸線 桜木町駅 徒歩2分みなとみらい線 みなとみらい駅 徒歩14分みなとみらい線 馬車道駅 徒歩7分
営業時間
09:30 〜 18:30
定休日
毎週水曜日・冬季休暇(12/27~1/4)
お電話 0037-6001-05692 無料
メール お問い合わせ
  • お問い合わせ区分

  • 内見希望日時

    第一希望

    第二希望

  • お名前

    全角
  • ご希望の連絡方法

    メールアドレス

    電話番号

    半角
    半角
  • その他ご希望等

ピタットハウスの個人情報の取り扱いについて

ピタットハウスでは信頼されるサイトを目指して、物件情報の精度向上に努めています。
掲載物件に誤りがある場合は こちら からご連絡ください。現状と異なる場合は、現状を優先させていただきます。
取引態様の欄に「媒介」と表示された物件は「仲介物件」です。ご成約の際には仲介手数料を申し受けます。

その他の取扱店舗

不動産会社毎に募集条件等が異なる場合があります。詳細は各店の物件詳細ページにてご確認ください。
交通
センター南駅 出口1から徒歩約3分センター北駅 出口1から徒歩約16分都筑ふれあいの丘駅 出口1から徒歩約17分
営業時間
09:30 〜 18:30
定休日
毎週火曜日・水曜日・冬季休暇(12/27~1/4)
お電話 0037-6001-09445 無料

生活情報

横浜市の暮らしデータ

横浜市は、神奈川県の東端に位置し、東は東京湾、北は川崎市、西は町田市・大和市・藤沢市、南は鎌倉市・逗子市・横須賀市に接しています。横浜市の中心部から東京都心部までは、約30kmです。国を代表する国際貿易港である横浜港を基盤として、首都圏の中核都市としての役割を担っています。総面積は、約435km2で、これは東京23区の約7割にあたります。

基本データ

市区役所所在地 横浜市中区本町6-50-10
公式ホームページURL https://www.city.yokohama.lg.jp/
総人口 3,777,491人
人口増減率(2015年/2020年) 101.4%
横浜市の生活情報を詳しくみる

地域のおすすめ情報ブログ

一覧を見る

伊勢佐木長者町駅近隣の駅から探す

横浜市中区の近隣エリアから探す

FAQ

  • A. リヴシティ横濱関内弐番館(JQ4755993_1)の内見は、見学予約でお問い合わせいただくか、直接桜木町店(0037-6001-05692)までご連絡ください。
  • A. 可能です。リヴシティ横濱関内弐番館(JQ4755993_1)周辺の情報は、ピタットハウスの地域情報ブログ「街ピタ」住みたい街の暮らしデータをご活用ください。
  • A. リヴシティ横濱関内弐番館(JQ4755993_1)の費用は、こちらよりお問い合わせいただくか、直接桜木町店(0037-6001-05692)までご連絡ください。
  • A. はい、可能です。賃貸希望物件リクエストをご利用ください。リヴシティ横濱関内弐番館(JQ4755993_1)に似た物件も合わせてご紹介させていただきます。