前へ
次へ
前へ
次へ
マンション

スペーシア川崎Ⅲ

NEW
15.5 万円
共益費 15,000
15.5万円
15.5万円
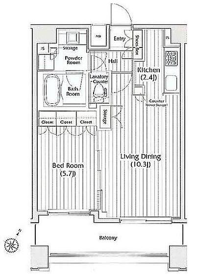
間取り
1LDK
専有面積
44.36㎡
所在階
9階建ての9階
向き
南東
  • アイコン: 住所 神奈川県川崎市川崎区南町
  • アイコン: 交通 JR京浜東北・根岸線 「川崎駅」 徒歩10分 / 京急本線 「京急川崎駅」 徒歩12分 / 京急本線 「八丁畷駅」 徒歩5分
簡単無料
アイコン: お電話 0037-6001-05692
IP電話ご利用のお客様 : 045-264-3311
ピタットハウス
桜木町店
point!
川崎駅徒歩10分の1LDKおすすめ貸マンションです!
2007年09月築!44.36㎡の便利なJR京浜東北・根岸線沿線!
お気軽にお問い合わせください!
簡単無料
お気軽にお問い合わせください!
物件情報・周辺環境・契約手続きについてなどお気軽にお問い合わせください。

設備・条件

建物・立地
  • 最上階
  • 外壁タイル張り
  • エレベータ
  • 宅配ボックス
  • 敷地内駐車場
  • 閑静な住宅街
  • 都市ガス
  • 常時ゴミ出し可能
  • デザイナーズ
  • 都市ガス給湯
通信
  • BSアンテナ
  • CSアンテナ
  • 光回線
セキュリティ
  • オートロック
  • TVモニター付きインターホン
  • 24時間セキュリティー
  • モニタ付オートロック
  • 防犯カメラ
部屋設備
  • フローリング
  • バルコニー
  • 室内洗濯機置場
  • 下駄箱
  • クローゼット
  • 収納スペース
  • 人感センサー付照明
  • ダウンライト
  • 全居室フローリング
  • 複層ガラス
  • 全居室収納
  • 24時間換気システム
冷暖房
  • エアコン
キッチン
  • システムキッチン
  • ガスコンロ(3口)
  • 独立型キッチン
  • グリル
バス・トイレ
  • バス・トイレ別
  • 浴室乾燥機
  • 追い焚き風呂
  • 独立洗面台
  • 温水洗浄便座
  • シャワー
  • 洗面所
  • トイレ
  • 洗面台
特徴
  • ペット相談可
  • 二人入居可

物件概要

物件種別

部屋種別 マンション
建物名称 スペーシア川崎Ⅲ
所在地 神奈川県川崎市川崎区南町 MAP
築年月 2007年9月 階数 9階建ての9階
建物構造 鉄筋コンクリート造 総戸数 -
間取り 1LDK 専有面積 44.36㎡
向き 南東 バルコニー面積 -
その他 -

費用

賃料 15.5万円 初期費用の確認をする 初期費用の確認をする 共益費 15,000円
礼金 15.5万円 敷金 15.5万円 + ペット積み増し(15.5万円)
保証金 - 償却金 -
その他一時金 鍵交換代等:19800円
その他月額費用 -
住宅保険 要加入
保証会社 必須
保証会社補足 加入要 初回家賃の50%?
更新料 - 更新事務手数料 -

契約条件

貸家契約区分 普通賃貸借 契約期間 2年
入居可能日 相談 空室状況を確認をする 空室状況を確認をする 引渡時期相談内容 -
フリーレント -
クレジットカード決済 初期費用クレジット決済可

駐車場

駐車場 有り 月額25,200円 駐車場について質問する 駐車場について質問する
駐車場契約形態 -
駐車場備考 -
バイク置き場 有り 8800円/月
駐輪場 有り(無料)

備考

その他 ペット飼育相談可の賃貸物件に住む癒しの空間! 宅配BOX完備で不在がちな方にも、荷物を受取れる便利設備! オートロック設備完備で安心生活をしっかりサポート! システムキッチンなど収納等の室内設備充実! 当店なら各カード会社で初期費用クレジット決済可能!
関連リンク
取引態様 媒介 管理コード 4756008
情報登録(更新)日 2026年1月14日 次回更新予定日 2026年1月21日
備考 めやす賃料:

めやす賃料とは賃料、共益費・管理費、敷引金、更新料を含み、賃料等条件の改定がないものと仮定して4年間賃借した場合(定期借家の場合は契約期間)の1ヶ月当たりの金額です。

※敷引金は、敷金の償却、保証金の償却など、預かった金額から必ず引くものをいいます。
※めやす賃料は、消費者に適切な情報を提供するための表示であり事業者に一時金を推奨するものではありません。
※めやす賃料は、実際の総支払額と異なる場合があります。詳しくは不動産会社にご確認ください。  

周辺環境

  • 川崎市立川崎小学校:392m
    川崎市立川崎小学校:392m
  • 川崎市立渡田中学校:886m
    川崎市立渡田中学校:886m
  • 社会福祉法人まあれ愛恵会川崎おおぞら保育園:291m
    社会福祉法人まあれ愛恵会川崎おおぞら保育園:291m
  • 川崎市川崎区役所:869m
    川崎市川崎区役所:869m
  • 川崎南町郵便局:292m
    川崎南町郵便局:292m
  • 渡田新町公園:466m
    渡田新町公園:466m
  • グランデュオ蒲田西館:4881m
    グランデュオ蒲田西館:4881m
ショッピング施設
グランデュオ蒲田西館
4881m
役所
川崎市川崎区役所
869m
郵便局
川崎南町郵便局
292m
公園
渡田新町公園
466m
幼稚園
社会福祉法人まあれ愛恵会川崎おお
291m
小学校
川崎市立川崎小学校
392m
中学校
川崎市立渡田中学校
886m

取扱店舗

ピタットハウス桜木町店
ピタットハウス桜木町店
株式会社関東住宅流通
交通
JR京浜東北根岸線 桜木町駅 徒歩2分みなとみらい線 みなとみらい駅 徒歩14分みなとみらい線 馬車道駅 徒歩7分
営業時間
09:30 〜 18:30
定休日
毎週水曜日・冬季休暇(12/27~1/4)
お電話 0037-6001-05692 無料
メール お問い合わせ
  • お問い合わせ区分

  • 内見希望日時

    第一希望

    第二希望

  • お名前

    全角
  • ご希望の連絡方法

    メールアドレス

    電話番号

    半角
    半角
  • その他ご希望等

ピタットハウスの個人情報の取り扱いについて

ピタットハウスでは信頼されるサイトを目指して、物件情報の精度向上に努めています。
掲載物件に誤りがある場合は こちら からご連絡ください。現状と異なる場合は、現状を優先させていただきます。
取引態様の欄に「媒介」と表示された物件は「仲介物件」です。ご成約の際には仲介手数料を申し受けます。

その他の取扱店舗

不動産会社毎に募集条件等が異なる場合があります。詳細は各店の物件詳細ページにてご確認ください。
交通
センター南駅 出口1から徒歩約3分センター北駅 出口1から徒歩約16分都筑ふれあいの丘駅 出口1から徒歩約17分
営業時間
09:30 〜 18:30
定休日
毎週火曜日・水曜日・冬季休暇(12/27~1/4)
お電話 0037-6001-09445 無料

生活情報

川崎市の暮らしデータ

川崎市は、自然豊かな多摩川に面し、市内を縦断するJR南武線に加え5つの私鉄が横断する利便性の高い人口増加が続くまちです。首都圏有数の広さを誇る生田緑地には「藤子・F・不二雄ミュージアム」、川崎駅前には世界有数の音響を誇る「ミューザ川崎シンフォニーホール」、さらに市内に2つの音楽大学や日本初の映画の専科大学が立地するとともに、スポーツではJリーグ川崎フロンターレ等の数多くのトップチームが活躍しています。

基本データ

市区役所所在地 川崎市川崎区宮本町1
公式ホームページURL https://www.city.kawasaki.jp/
総人口 1,538,262人
人口増減率(2015年/2020年) 104.3%
川崎市の生活情報を詳しくみる

地域のおすすめ情報ブログ

一覧を見る

川崎駅近隣の駅から探す

川崎市川崎区の近隣エリアから探す

FAQ

  • A. スペーシア川崎Ⅲ(JQ4756008_1)の内見は、見学予約でお問い合わせいただくか、直接桜木町店(0037-6001-05692)までご連絡ください。
  • A. 可能です。スペーシア川崎Ⅲ(JQ4756008_1)周辺の情報は、ピタットハウスの地域情報ブログ「街ピタ」住みたい街の暮らしデータをご活用ください。
  • A. スペーシア川崎Ⅲ(JQ4756008_1)の費用は、こちらよりお問い合わせいただくか、直接桜木町店(0037-6001-05692)までご連絡ください。
  • A. はい、可能です。賃貸希望物件リクエストをご利用ください。スペーシア川崎Ⅲ(JQ4756008_1)に似た物件も合わせてご紹介させていただきます。