前へ
次へ
前へ
次へ
一戸建

保土ヶ谷区常盤台住戸テラスA

NEW
26.5 万円
共益費 -
53万円
26.5万円
間取り
1LDK
専有面積
92.61㎡
所在階
2階建ての1階
向き
南西
  • アイコン: 住所 神奈川県横浜市保土ケ谷区常盤台
  • アイコン: 交通 相鉄新横浜線 「羽沢横浜国大駅」 徒歩10分 / 相鉄本線 「上星川駅」 徒歩22分 / 横浜市ブルーライン 「三ツ沢上町駅」 徒歩27分
簡単無料
アイコン: お電話 0037-6001-09445
IP電話ご利用のお客様 : 045-264-3311
ピタットハウス
センター南店
point!
羽沢横浜国大駅徒歩10分の1LDKおすすめ貸戸建住宅です!
2024年05月築!92.61㎡の便利な相模鉄道相鉄新横浜線沿線!
お気軽にお問い合わせください!
簡単無料
お気軽にお問い合わせください!
物件情報・周辺環境・契約手続きについてなどお気軽にお問い合わせください。

設備・条件

建物・立地
  • 宅配ボックス
  • 敷地内駐車場
  • 都市ガス
  • デザイナーズ
通信
  • MMコンセント(マルチメディアコンセント)
セキュリティ
  • TVモニター付きインターホン
  • ダブルロックドア
部屋設備
  • フローリング
  • 室内洗濯機置場
  • 下駄箱
  • クローゼット
  • 収納スペース
  • 全居室収納
  • ウォークインクロゼット
  • 24時間換気システム
冷暖房
  • エアコン
  • エアコン2台以上
キッチン
  • IHコンロ
  • アイランドキッチン
  • グリル
バス・トイレ
  • バス・トイレ別
  • 浴室乾燥機
  • 追い焚き風呂
  • 独立洗面台
  • 温水洗浄便座
  • シャワー
  • 浴室暖房
  • オートバス
  • タンクレストイレ
  • 洗面所
  • トイレ
  • 洗面台
特徴
  • ペット相談可

物件概要

物件種別

部屋種別 一戸建
建物名称 保土ヶ谷区常盤台住戸テラスA
所在地 神奈川県横浜市保土ケ谷区常盤台 MAP
築年月 2024年5月 階数 2階建ての1階
建物構造 木造 総戸数 -
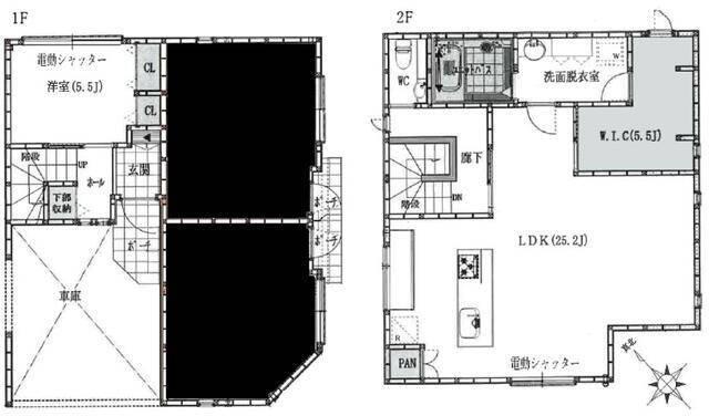
間取り 1LDK(洋5.5帖 LDK25.2帖) 専有面積 92.61㎡
向き 南西 バルコニー面積 -
その他 -

費用

賃料 26.5万円 初期費用の確認をする 初期費用の確認をする 共益費 -
礼金 26.5万円 敷金 53万円 + ペット積み増し(26.5万円)
保証金 - 償却金 -
その他一時金 契約事務手数料:11000円
その他月額費用 Life Assist24:1980円/月
住宅保険 要加入
保証会社 必須/各種保証会社
保証会社補足 加入要 株式会社クレディセゾン(初回保証料:総賃料100% 月次保証料:総賃料1%)
更新料 更新後賃料:1ヶ月 更新事務手数料 -

契約条件

貸家契約区分 普通賃貸借 契約期間 2年
入居可能日 相談 空室状況を確認をする 空室状況を確認をする 引渡時期相談内容 -
フリーレント -
クレジットカード決済 初期費用クレジット決済可

駐車場

駐車場 有り(無料) 駐車場について質問する 駐車場について質問する
駐車場契約形態 -
駐車場備考 -
バイク置き場 なし
駐輪場 なし

備考

その他 ペット飼育相談可の賃貸物件に住む癒しの空間! 宅配BOX完備で不在がちな方にも、荷物を受取れる便利設備! 当店なら各カード会社で初期費用クレジット決済可能!
関連リンク
取引態様 媒介 管理コード 4792631
情報登録(更新)日 2026年3月6日 次回更新予定日 2026年3月13日
備考 めやす賃料:

めやす賃料とは賃料、共益費・管理費、敷引金、更新料を含み、賃料等条件の改定がないものと仮定して4年間賃借した場合(定期借家の場合は契約期間)の1ヶ月当たりの金額です。

※敷引金は、敷金の償却、保証金の償却など、預かった金額から必ず引くものをいいます。
※めやす賃料は、消費者に適切な情報を提供するための表示であり事業者に一時金を推奨するものではありません。
※めやす賃料は、実際の総支払額と異なる場合があります。詳しくは不動産会社にご確認ください。  

周辺環境

  • 横浜市立上星川小学校:1526m
    横浜市立上星川小学校:1526m
  • 横浜市立保土ケ谷中学校:1780m
    横浜市立保土ケ谷中学校:1780m
  • ひかりの風保育園:505m
    ひかりの風保育園:505m
  • 横浜市保土ケ谷区役所:2796m
    横浜市保土ケ谷区役所:2796m
  • 横浜常盤台郵便局:907m
    横浜常盤台郵便局:907m
  • 上星川あおぞら公園:1120m
    上星川あおぞら公園:1120m
  • 横浜ビブレ:4211m
    横浜ビブレ:4211m
ショッピング施設
横浜ビブレ
4211m
役所
横浜市保土ケ谷区役所
2796m
郵便局
横浜常盤台郵便局
907m
公園
上星川あおぞら公園
1120m
幼稚園
ひかりの風保育園
505m
小学校
横浜市立上星川小学校
1526m
中学校
横浜市立保土ケ谷中学校
1780m

取扱店舗

ピタットハウスセンター南店
ピタットハウスセンター南店
株式会社関東住宅流通
交通
センター南駅 出口1から徒歩約3分センター北駅 出口1から徒歩約16分都筑ふれあいの丘駅 出口1から徒歩約17分
営業時間
09:30 〜 18:30
定休日
毎週火曜日・水曜日・冬季休暇(12/27~1/4)
お電話 0037-6001-09445 無料
メール お問い合わせ
  • お問い合わせ区分

  • 内見希望日時

    第一希望

    第二希望

  • お名前

    全角
  • ご希望の連絡方法

    メールアドレス

    電話番号

    半角
    半角
  • その他ご希望等

ピタットハウスの個人情報の取り扱いについて

ピタットハウスでは信頼されるサイトを目指して、物件情報の精度向上に努めています。
掲載物件に誤りがある場合は こちら からご連絡ください。現状と異なる場合は、現状を優先させていただきます。
取引態様の欄に「媒介」と表示された物件は「仲介物件」です。ご成約の際には仲介手数料を申し受けます。

その他の取扱店舗

不動産会社毎に募集条件等が異なる場合があります。詳細は各店の物件詳細ページにてご確認ください。
交通
JR京浜東北根岸線 桜木町駅 徒歩2分みなとみらい線 みなとみらい駅 徒歩14分みなとみらい線 馬車道駅 徒歩7分
営業時間
09:30 〜 18:30
定休日
毎週水曜日・冬季休暇(12/27~1/4)
お電話 0037-6001-05692 無料

生活情報

横浜市の暮らしデータ

横浜市は、神奈川県の東端に位置し、東は東京湾、北は川崎市、西は町田市・大和市・藤沢市、南は鎌倉市・逗子市・横須賀市に接しています。横浜市の中心部から東京都心部までは、約30kmです。国を代表する国際貿易港である横浜港を基盤として、首都圏の中核都市としての役割を担っています。総面積は、約435km2で、これは東京23区の約7割にあたります。

基本データ

市区役所所在地 横浜市中区本町6-50-10
公式ホームページURL https://www.city.yokohama.lg.jp/
総人口 3,777,491人
人口増減率(2015年/2020年) 101.4%
横浜市の生活情報を詳しくみる

地域のおすすめ情報ブログ

一覧を見る

羽沢横浜国大駅近隣の駅から探す

横浜市保土ケ谷区の近隣エリアから探す

FAQ

  • A. 保土ヶ谷区常盤台住戸テラスA(JQ4792631_2)の内見は、見学予約でお問い合わせいただくか、直接センター南店(0037-6001-09445)までご連絡ください。
  • A. 可能です。保土ヶ谷区常盤台住戸テラスA(JQ4792631_2)周辺の情報は、ピタットハウスの地域情報ブログ「街ピタ」住みたい街の暮らしデータをご活用ください。
  • A. 保土ヶ谷区常盤台住戸テラスA(JQ4792631_2)の費用は、こちらよりお問い合わせいただくか、直接センター南店(0037-6001-09445)までご連絡ください。
  • A. はい、可能です。賃貸希望物件リクエストをご利用ください。保土ヶ谷区常盤台住戸テラスA(JQ4792631_2)に似た物件も合わせてご紹介させていただきます。