前へ
次へ
前へ
次へ
一戸建

パークサイド三田

NEW
30 万円
共益費 -
30万円
-
間取り
3LDK
専有面積
114.06㎡
所在階
2階建ての1階
向き
  • アイコン: 住所 神奈川県川崎市多摩区三田3丁目
  • アイコン: 交通 小田急小田原線 「生田駅」 徒歩13分
簡単無料
アイコン: お電話 0037-6001-09445
IP電話ご利用のお客様 : 045-264-3311
ピタットハウス
センター南店
point!
生田駅徒歩13分の3LDKおすすめ貸戸建住宅です!
2024年11月築後未入居築!114.06㎡の便利な小田急小田原線沿線!
お気軽にお問い合わせください!
簡単無料
お気軽にお問い合わせください!
物件情報・周辺環境・契約手続きについてなどお気軽にお問い合わせください。

設備・条件

建物・立地
  • 宅配ボックス
  • 敷地内駐車場
  • 閑静な住宅街
  • 都市ガス
通信
  • インターネット無料
  • CATV
  • CATVインターネット
セキュリティ
  • TVモニター付きインターホン
  • ダブルロックドア
  • 防犯カメラ
部屋設備
  • バルコニー
  • 室内洗濯機置場
  • クローゼット
  • 床下収納
  • 全居室フローリング
  • 複層ガラス
  • 全居室収納
  • シューズIC
  • 3面採光
冷暖房
  • 床暖房
  • エアコン2台以上
キッチン
  • ガスコンロ(3口)
  • 食器洗浄乾燥機
バス・トイレ
  • バス・トイレ別
  • 浴室乾燥機
  • 追い焚き風呂
  • 洗髪洗面化粧台
  • 独立洗面台
  • 温水洗浄便座
  • 浴室暖房
特徴
  • ペット相談可
  • IT重説対応物件
  • 二人入居可

物件概要

物件種別

部屋種別 一戸建
建物名称 パークサイド三田
所在地 神奈川県川崎市多摩区三田3丁目 MAP
築年月 2024年11月 階数 2階建ての1階
建物構造 木造 総戸数 1戸
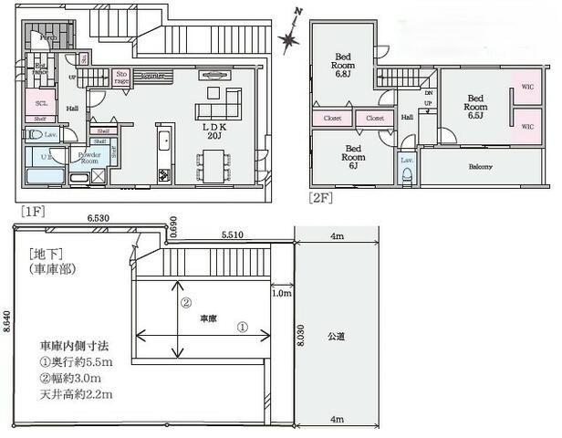
間取り 3LDK(洋6.8帖 洋6.5帖 洋6帖 LDK20帖) 専有面積 114.06㎡
向き バルコニー面積 -
その他 -

費用

賃料 30万円 初期費用の確認をする 初期費用の確認をする 共益費 -
礼金 - 敷金 30万円 + ペット積み増し(30万円)
保証金 - 償却金 30.0万円(解約時)
その他一時金 鍵交換代等:11000円 / コンシェルジュ24:16500円 / 除菌消臭施工:16500円 / 更新事務手数料:22000円
その他月額費用 -
住宅保険 要加入(2年20000円)
保証会社 必須/各種保証会社
保証会社補足 加入要 初回賃料等の合計の50%〜
更新料 更新後賃料:1ヶ月 更新事務手数料 -

契約条件

貸家契約区分 普通賃貸借 契約期間 2年
入居可能日 相談 空室状況を確認をする 空室状況を確認をする 引渡時期相談内容 -
フリーレント -
クレジットカード決済 初期費用クレジット決済可

駐車場

駐車場 有り(無料) 駐車場について質問する 駐車場について質問する
駐車場契約形態 -
駐車場備考 -
バイク置き場 有り(無料)
駐輪場 有り(無料)

備考

その他 ペット飼育相談可の賃貸物件に住む癒しの空間! 宅配BOX完備で不在がちな方にも、荷物を受取れる便利設備! 当店なら各カード会社で初期費用クレジット決済可能!
関連リンク
取引態様 媒介 管理コード 4822013
情報登録(更新)日 2026年4月23日 次回更新予定日 2026年5月1日
備考 めやす賃料:

めやす賃料とは賃料、共益費・管理費、敷引金、更新料を含み、賃料等条件の改定がないものと仮定して4年間賃借した場合(定期借家の場合は契約期間)の1ヶ月当たりの金額です。

※敷引金は、敷金の償却、保証金の償却など、預かった金額から必ず引くものをいいます。
※めやす賃料は、消費者に適切な情報を提供するための表示であり事業者に一時金を推奨するものではありません。
※めやす賃料は、実際の総支払額と異なる場合があります。詳しくは不動産会社にご確認ください。  

周辺環境

  • 川崎市立三田小学校:174m
    川崎市立三田小学校:174m
  • 川崎市立生田中学校:484m
    川崎市立生田中学校:484m
  • 西三田幼稚園:194m
    西三田幼稚園:194m
  • 多摩区役所生田出張所:1291m
    多摩区役所生田出張所:1291m
  • 川崎三田郵便局:390m
    川崎三田郵便局:390m
  • 三田第1公園:445m
    三田第1公園:445m
  • 東急百貨店たまプラーザ店:4518m
    東急百貨店たまプラーザ店:4518m
ショッピング施設
東急百貨店たまプラーザ店
4518m
役所
多摩区役所生田出張所
1291m
郵便局
川崎三田郵便局
390m
公園
三田第1公園
445m
幼稚園
西三田幼稚園
194m
小学校
川崎市立三田小学校
174m
中学校
川崎市立生田中学校
484m

取扱店舗

ピタットハウスセンター南店
ピタットハウスセンター南店
株式会社関東住宅流通
交通
センター南駅 出口1から徒歩約3分センター北駅 出口1から徒歩約16分都筑ふれあいの丘駅 出口1から徒歩約17分
営業時間
09:30 〜 18:30
定休日
毎週火曜日・水曜日・GW休業:5/2(土)〜5/6(水)
お電話 0037-6001-09445 無料
メール お問い合わせ
  • お問い合わせ区分

  • 内見希望日時

    第一希望

    第二希望

  • お名前

    全角
  • ご希望の連絡方法

    メールアドレス

    電話番号

    半角
    半角
  • その他ご希望等

ピタットハウスの個人情報の取り扱いについて

ピタットハウスでは信頼されるサイトを目指して、物件情報の精度向上に努めています。
掲載物件に誤りがある場合は こちら からご連絡ください。現状と異なる場合は、現状を優先させていただきます。
取引態様の欄に「媒介」と表示された物件は「仲介物件」です。ご成約の際には仲介手数料を申し受けます。

その他の取扱店舗

不動産会社毎に募集条件等が異なる場合があります。詳細は各店の物件詳細ページにてご確認ください。
交通
JR京浜東北根岸線 桜木町駅 徒歩2分みなとみらい線 みなとみらい駅 徒歩14分みなとみらい線 馬車道駅 徒歩7分
営業時間
09:30 〜 18:30
定休日
毎週水曜日・GW休業:5/2(土)〜5/6(水)
お電話 0037-6001-05692 無料

生活情報

川崎市の暮らしデータ

川崎市は、自然豊かな多摩川に面し、市内を縦断するJR南武線に加え5つの私鉄が横断する利便性の高い人口増加が続くまちです。首都圏有数の広さを誇る生田緑地には「藤子・F・不二雄ミュージアム」、川崎駅前には世界有数の音響を誇る「ミューザ川崎シンフォニーホール」、さらに市内に2つの音楽大学や日本初の映画の専科大学が立地するとともに、スポーツではJリーグ川崎フロンターレ等の数多くのトップチームが活躍しています。

基本データ

市区役所所在地 川崎市川崎区宮本町1
公式ホームページURL https://www.city.kawasaki.jp/
総人口 1,538,262人
人口増減率(2015年/2020年) 104.3%
川崎市の生活情報を詳しくみる

地域のおすすめ情報ブログ

一覧を見る

生田駅近隣の駅から探す

川崎市多摩区の近隣エリアから探す

FAQ

  • A. パークサイド三田(JQ4822013_2)の内見は、見学予約でお問い合わせいただくか、直接センター南店(0037-6001-09445)までご連絡ください。
  • A. 可能です。パークサイド三田(JQ4822013_2)周辺の情報は、ピタットハウスの地域情報ブログ「街ピタ」住みたい街の暮らしデータをご活用ください。
  • A. パークサイド三田(JQ4822013_2)の費用は、こちらよりお問い合わせいただくか、直接センター南店(0037-6001-09445)までご連絡ください。
  • A. はい、可能です。賃貸希望物件リクエストをご利用ください。パークサイド三田(JQ4822013_2)に似た物件も合わせてご紹介させていただきます。