前へ
次へ
前へ
次へ
マンション
即入居可

パークアクシス駒込HILLTOP(407)

25.9 万円
共益費 15,000
25.9万円
-
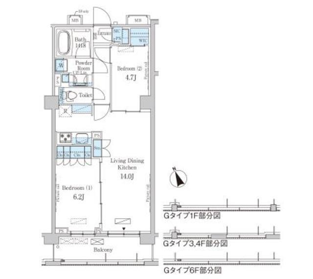
間取り
2LDK
専有面積
55.12㎡
所在階
6階建ての4階
向き
南西
  • アイコン: 住所 東京都北区中里3丁目
  • アイコン: 交通 JR山手線 「駒込駅」 徒歩8分 / JR京浜東北・根岸線 「田端駅」 徒歩12分
簡単無料
アイコン: お電話 0037-6001-01454
IP電話ご利用のお客様 : 03-5615-2666
ピタットハウス
日暮里店
point!
2LDK、高台に建つ住宅街、山手線駒込駅徒歩8分!
人気の山手線沿線、都心へのアクセス良好です!
お気軽にお問い合わせください!
簡単無料
お気軽にお問い合わせください!
物件情報・周辺環境・契約手続きについてなどお気軽にお問い合わせください。

設備・条件

建物・立地
  • エレベータ
  • 宅配ボックス
  • 敷地内ごみ置き場
  • 常時ゴミ出し可能
  • バイク置場
通信
  • CATV
  • BSアンテナ
  • CSアンテナ
セキュリティ
  • オートロック
  • モニタ付オートロック
部屋設備
  • フローリング
  • バルコニー
  • 室内洗濯機置場
  • ウォークインクローゼット
冷暖房
  • エアコン
キッチン
  • システムキッチン
  • グリル
バス・トイレ
  • バス・トイレ別
  • 浴室乾燥機
  • 独立洗面台
特徴
  • ペット相談可
  • ピアノ相談可
  • 事務所利用不可
  • フリーレント1ヶ月

物件概要

物件種別

部屋種別 マンション
建物名称 パークアクシス駒込HILLTOP(407)
所在地 東京都北区中里3丁目 MAP
築年月 2014年12月 階数 6階建ての4階
建物構造 鉄筋コンクリート造 総戸数 -
間取り 2LDK 専有面積 55.12㎡
向き 南西 バルコニー面積 7.00㎡
その他 管理形態:日勤管理 

費用

賃料 25.9万円 初期費用の確認をする 初期費用の確認をする 共益費 15,000円
礼金 - 敷金 25.9万円
保証金 - 償却金 -
その他一時金 室内清掃費:103074円 / 鍵交換費:33000円
その他月額費用 口座振替事務手数料:220円/月
住宅保険 要加入
保証会社 必須
保証会社補足 初回保証委託料(最低20,000円):月額賃料等の50%、 2年目以降:9,600円/年
更新料 更新後賃料:1ヶ月 更新事務手数料 -

契約条件

貸家契約区分 普通賃貸借 契約期間 2年
入居可能日 相談 空室状況を確認をする 空室状況を確認をする 引渡時期相談内容 -
フリーレント あり 1ヶ月
クレジットカード決済 -

駐車場

駐車場 なし 駐車場について質問する 駐車場について質問する
駐車場契約形態 -
駐車場備考 -
バイク置き場 -
駐輪場 -

備考

その他
関連リンク
取引態様 媒介 管理コード 3897367
情報登録(更新)日 2026年5月1日 次回更新予定日 2026年5月12日
備考 めやす賃料:

めやす賃料とは賃料、共益費・管理費、敷引金、更新料を含み、賃料等条件の改定がないものと仮定して4年間賃借した場合(定期借家の場合は契約期間)の1ヶ月当たりの金額です。

※敷引金は、敷金の償却、保証金の償却など、預かった金額から必ず引くものをいいます。
※めやす賃料は、消費者に適切な情報を提供するための表示であり事業者に一時金を推奨するものではありません。
※めやす賃料は、実際の総支払額と異なる場合があります。詳しくは不動産会社にご確認ください。  

周辺環境

  • マルエツ田端五丁目店:475m
    マルエツ田端五丁目店:475m
コンビニ
ローソン中里二丁目店
359m
買物
マルエツ田端五丁目店
475m
ショッピング施設
P’パルコ
4551m
ドラッグストア
どらっぐぱぱす駒込店
582m
ホームセンター
スーパーバリュー西尾久店
2074m
病院
医療法人社団金地病院
733m
役所
北区役所
2308m
郵便局
中里郵便局
543m
図書館
北区立滝野川図書館
607m
交番
滝野川警察署
1240m
公園
滝野川公園
1039m
銀行
城北信用金庫駒込支店
500m
幼稚園
中里保育園
187m
小学校
私立聖学院小学校
398m
中学校
私立女子聖学院中学校
143m
高校
私立女子聖学院高校
132m

取扱店舗

ピタットハウス日暮里店
ピタットハウス日暮里店
株式会社光伸ハウジング
交通
JR山手線・京浜東北線・京成本線・常磐線・日暮里舎人ライナー「日暮里」駅 直結徒歩1分
営業時間
10:00 〜 18:30
定休日
毎週:火曜・水曜日・GW休業:5/2〜5/6
お電話 0037-6001-01454 無料
メール お問い合わせ
  • お問い合わせ区分

  • 内見希望日時

    第一希望

    第二希望

  • お名前

    全角
  • ご希望の連絡方法

    メールアドレス

    電話番号

    半角
    半角
  • その他ご希望等

ピタットハウスの個人情報の取り扱いについて

ピタットハウスでは信頼されるサイトを目指して、物件情報の精度向上に努めています。
掲載物件に誤りがある場合は こちら からご連絡ください。現状と異なる場合は、現状を優先させていただきます。
取引態様の欄に「媒介」と表示された物件は「仲介物件」です。ご成約の際には仲介手数料を申し受けます。

その他の取扱店舗

不動産会社毎に募集条件等が異なる場合があります。詳細は各店の物件詳細ページにてご確認ください。
交通
JR線「新宿」駅西口より徒歩6分、都営大江戸線「新宿西口」駅D5出口より徒歩2分
営業時間
09:30 〜 18:30
定休日
毎週水曜日・GW休暇、5月2日(土)〜5月6日(水)・2月・3月は無休、夏季休暇無し
お電話 0037-6001-05237 無料
交通
JR中央線 『武蔵境駅』 南口より 徒歩30秒 駐車場有 
営業時間
10:00 〜 19:00
定休日
毎週水曜日・冬期休業・12/28から1/4まで
  • 近隣駐車場あり/キッズスペースあり
お電話 0037-6001-08163 無料
交通
JR中央線「阿佐ヶ谷駅」南口徒歩1分ロータリーに面した駅直結の店舗です。
営業時間
10:00 〜 19:00
定休日
毎週火・水曜日・1月から3月は毎日営業・冬期休業12/28から1/4まで
  • キッズスペースあり
お電話 0037-6001-07674 無料
交通
常磐線・日比谷線・つくばEX「南千住駅」より徒歩3分
営業時間
10:00 〜 20:00
定休日
毎週水曜日・※年末年始・GW・夏季に一部休業日有り
お電話 0037-6001-09605 無料
交通
東京メトロ東西線 木場駅 4A出口 徒歩1分
営業時間
10:00 〜 17:00
定休日
毎週土日・祝祭日
  • 近隣駐車場あり
お電話 0037-6001-05750 無料
交通
JR中央線・東京メトロ東西線中野駅南口より徒歩1分
営業時間
10:00 〜 18:00
定休日
毎週水曜日・GW休業:5/2〜5/6
お電話 0037-6001-06881 無料

生活情報

北区の暮らしデータ

北区は、武蔵野台地の縁辺部から東京低地へと連続した地勢を有し、荒川、隅田川、石神井川といった水辺空間に囲まれた、緑豊かな自然が魅力のまちです。これら河川周辺は憩いの空間として整備されており、週末にはスポーツやレジャーを楽しむ多くの人々で賑わっています。一方、JRの駅が都内最多の11駅あり、加えて、地下鉄・都電が区内各所を走り、交通の利便性が抜群です。また、子どもが安心して遊べる公園が数多く設置され、商店街も活気があり、暮らしやすい環境がそろっています。

基本データ

市区役所所在地 北区王子本町1-15-22
公式ホームページURL https://www.city.kita.lg.jp/
総人口 355,213人
人口増減率(2015年/2020年) 104.1%
北区の生活情報を詳しくみる

地域のおすすめ情報ブログ

駒込駅近隣の駅から探す

北区の近隣エリアから探す

FAQ

  • A. パークアクシス駒込HILLTOP(KB3897367_126)の内見は、見学予約でお問い合わせいただくか、直接日暮里店(0037-6001-01454)までご連絡ください。
  • A. 可能です。パークアクシス駒込HILLTOP(KB3897367_126)周辺の情報は、ピタットハウスの地域情報ブログ「街ピタ」住みたい街の暮らしデータをご活用ください。
  • A. パークアクシス駒込HILLTOP(KB3897367_126)の費用は、こちらよりお問い合わせいただくか、直接日暮里店(0037-6001-01454)までご連絡ください。
  • A. はい、可能です。賃貸希望物件リクエストをご利用ください。パークアクシス駒込HILLTOP(KB3897367_126)に似た物件も合わせてご紹介させていただきます。