前へ
次へ
前へ
次へ
マンション

プライムブリス深川住吉(301)

NEW
22.2 万円
共益費 15,000
22.2万円
-
間取り
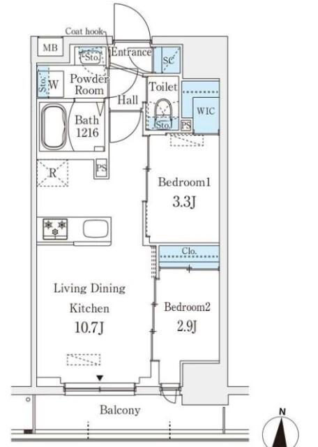
2LDK
専有面積
42.07㎡
所在階
13階建ての3階
向き
  • アイコン: 住所 東京都江東区住吉2丁目25
  • アイコン: 交通 東京メトロ半蔵門線 「住吉駅」 徒歩2分 / 都営新宿線 「西大島駅」 徒歩14分 / 都営新宿線 「菊川駅」 徒歩15分
簡単無料
アイコン: お電話 0037-6001-02071
IP電話ご利用のお客様 : 03-5624-7626
ピタットハウス
住吉店
point!
住吉駅から徒歩2分の好立地★外出時に便利な宅配ボックス付き★
2026年6月完成予定の新築物件★3面採光の角部屋で風通し日当たり◎ お買い物に便利なコンビニ・スーパー徒歩圏内にございます♪ お部屋探しはピタットハウス住吉店へ!!
お気軽にお問い合わせください!
簡単無料
お気軽にお問い合わせください!
物件情報・周辺環境・契約手続きについてなどお気軽にお問い合わせください。

設備・条件

建物・立地
  • 角部屋
  • エレベータ
  • 宅配ボックス
通信
  • インターネット対応
セキュリティ
  • オートロック
  • TVモニター付きインターホン
部屋設備
  • フローリング
  • バルコニー
  • 室内洗濯機置場
  • 下駄箱
  • クローゼット
  • ウォークインクローゼット
  • 全居室フローリング
  • 南面バルコニー
  • 南向き
  • 全居室洋室
  • 2面採光
  • 3面採光
  • 東南角住戸
  • 南面リビング
冷暖房
  • エアコン
キッチン
  • システムキッチン
  • カウンターキッチン
  • ガスコンロ(2口)
  • グリル
バス・トイレ
  • バス・トイレ別
  • 浴室乾燥機
  • 独立洗面台
  • 温水洗浄便座
  • 脱衣所
  • 洗面所にドア
特徴
  • 新築
  • フリーレント
  • 礼金不要
  • フリーレント1ヶ月

物件概要

物件種別

部屋種別 マンション
建物名称 プライムブリス深川住吉(301)
所在地 東京都江東区住吉2丁目25 MAP
築年月 2026年6月 階数 13階建ての3階
建物構造 鉄筋コンクリート造 総戸数 36戸
間取り 2LDK(LDK11.1帖 洋4帖 洋2.3帖) 専有面積 42.07㎡
向き バルコニー面積 -
その他 -

費用

賃料 22.2万円 初期費用の確認をする 初期費用の確認をする 共益費 15,000円
礼金 - 敷金 22.2万円
保証金 - 償却金 -
その他一時金 -
その他月額費用 口座振替手数料:110円/月
住宅保険 要加入
保証会社 必須
保証会社補足 初回保証料:総賃料の50% 2年目以降:10,000円
更新料 更新後賃料:1ヶ月 更新事務手数料 -

契約条件

貸家契約区分 普通賃貸借 契約期間 2年
入居可能日 2026年6月26日予定 空室状況を確認をする 空室状況を確認をする 引渡時期相談内容 -
フリーレント あり 1ヶ月
クレジットカード決済 -

駐車場

駐車場 なし 駐車場について質問する 駐車場について質問する
駐車場契約形態 -
駐車場備考 -
バイク置き場 -
駐輪場 -

備考

その他
関連リンク
取引態様 媒介 管理コード 4825634
情報登録(更新)日 2026年4月30日 次回更新予定日 2026年5月7日
備考 めやす賃料:

めやす賃料とは賃料、共益費・管理費、敷引金、更新料を含み、賃料等条件の改定がないものと仮定して4年間賃借した場合(定期借家の場合は契約期間)の1ヶ月当たりの金額です。

※敷引金は、敷金の償却、保証金の償却など、預かった金額から必ず引くものをいいます。
※めやす賃料は、消費者に適切な情報を提供するための表示であり事業者に一時金を推奨するものではありません。
※めやす賃料は、実際の総支払額と異なる場合があります。詳しくは不動産会社にご確認ください。  

周辺環境

  • 江東区役所:1778m
    江東区役所:1778m
  • まいばすけっと住吉駅前店:165m
    まいばすけっと住吉駅前店:165m
  • 丸井錦糸町店:1158m
    丸井錦糸町店:1158m
  • くすりの福太郎住吉2丁目店:336m
    くすりの福太郎住吉2丁目店:336m
  • ビエラ江東橋:695m
    ビエラ江東橋:695m
コンビニ
ローソン・スリーエフ江東猿江店
155m
買物
まいばすけっと住吉駅前店
165m
ショッピング施設
丸井錦糸町店
1158m
ドラッグストア
くすりの福太郎住吉2丁目店
336m
ホームセンター
ニトリ江東猿江店
395m
病院
社会福祉法人あそか会あそか病院
655m
役所
江東区役所
1778m
郵便局
江東住吉郵便局
275m
図書館
江東区立こどもプラザ図書館
386m
交番
城東警察署
2122m
公園
竪川親水公園
897m
銀行
東京東信用金庫住吉支店
417m
幼稚園
めばえ保育園
75m
小学校
江東区立東川小学校
470m
中学校
江東区立深川第七中学校
560m
高校
東京都立科学技術高校
698m

取扱店舗

ピタットハウス住吉店
ピタットハウス住吉店
株式会社東京PM不動産
交通
東京メトロ半蔵門線『住吉駅』B2出口徒歩2分/都営新宿線『住吉駅』B2出口徒歩2分
営業時間
10:00 〜 18:00
定休日
水曜日・GW休業:5月2日(土)〜5月6日(日)
お電話 0037-6001-02071 無料
メール お問い合わせ
  • お問い合わせ区分

  • 内見希望日時

    第一希望

    第二希望

  • お名前

    全角
  • ご希望の連絡方法

    メールアドレス

    電話番号

    半角
    半角
  • その他ご希望等

ピタットハウスの個人情報の取り扱いについて

ピタットハウスでは信頼されるサイトを目指して、物件情報の精度向上に努めています。
掲載物件に誤りがある場合は こちら からご連絡ください。現状と異なる場合は、現状を優先させていただきます。
取引態様の欄に「媒介」と表示された物件は「仲介物件」です。ご成約の際には仲介手数料を申し受けます。

生活情報

江東区の暮らしデータ

江東区は、1947年に深川・城東の2区が合併し生まれました。現在の江東区は、水辺と緑に恵まれた自然的特性をいかしながら、「みんなでつくる伝統、未来 水彩都市・江東」を目指して、発展しています。中でも、臨海部の発展は著しく、2024年4月には人口54万人を突破しました。2021年開催の東京オリンピック・パラリンピック競技大会では、江東区に多くの競技場が配置され、また、2025年3月には海の森公園が開設する等、更なる大きな発展の可能性を秘めています。

基本データ

市区役所所在地 江東区東陽4-11-28
公式ホームページURL https://www.city.koto.lg.jp/
総人口 524,310人
人口増減率(2015年/2020年) 105.3%
江東区の生活情報を詳しくみる

地域のおすすめ情報ブログ

一覧を見る

住吉駅近隣の駅から探す

江東区の近隣エリアから探す

FAQ

  • A. プライムブリス深川住吉(NA4825634_2)の内見は、見学予約でお問い合わせいただくか、直接住吉店(0037-6001-02071)までご連絡ください。
  • A. 可能です。プライムブリス深川住吉(NA4825634_2)周辺の情報は、ピタットハウスの地域情報ブログ「街ピタ」住みたい街の暮らしデータをご活用ください。
  • A. プライムブリス深川住吉(NA4825634_2)の費用は、こちらよりお問い合わせいただくか、直接住吉店(0037-6001-02071)までご連絡ください。
  • A. はい、可能です。賃貸希望物件リクエストをご利用ください。プライムブリス深川住吉(NA4825634_2)に似た物件も合わせてご紹介させていただきます。