埼玉県内のお部屋探しはピタットハウス与野店にお任せください♪
ピタットハウス与野店は賃貸仲介及び賃貸管理も行っております。ご来店頂いたお客様へはネット未公開のお部屋もご紹介しております! 弊社掲載以外のお部屋もご紹介可能です!お部屋探しはピタットハウス与野店へ♪

お気軽にお問い合わせください!
物件情報・周辺環境・契約手続きについてなどお気軽にお問い合わせください。
設備・条件
|
|
---|---|
|
|
|
|
|
|
|
|
|
|
|
|
|
|
物件概要
物件種別
部屋種別 | マンション | ||
---|---|---|---|
建物名称 | グランカーサ北浦和(504) | ||
所在地 | 埼玉県さいたま市浦和区北浦和3丁目 MAP | ||
築年月 | 2019年6月 | 階数 | 6階建ての5階 |
建物構造 | 鉄筋コンクリート造 | 総戸数 | 53戸 |
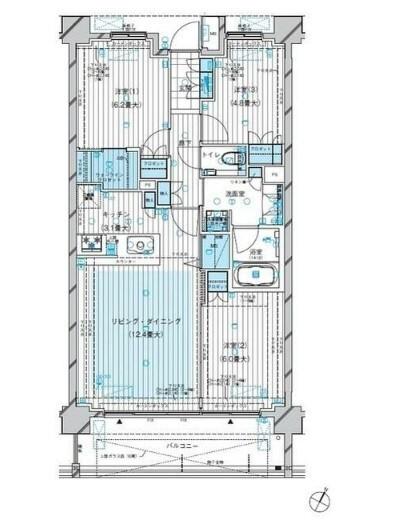
間取り | 3LDK(LDK15.8帖 洋6.2帖 洋6帖 洋4.8帖) | 専有面積 | 73.10㎡ |
向き | 南 | バルコニー面積 | - |
その他 | 管理形態:巡回管理 |
費用
賃料 |
23.8万円
初期費用の確認をする
|
共益費 | 10,000円 |
---|---|---|---|
礼金 | - | 敷金 | 23.8万円 |
保証金 | - | 償却金 | - |
その他一時金 | 鍵交換費用:33000円 / 清掃費:109560円 / エアコン清掃費:38500円 | ||
その他月額費用 | - | ||
住宅保険 | 要加入(2年16550円) | ||
保証会社 | 必須 | ||
保証会社補足 | 総賃料の20%/初回、10000円/年 | ||
更新料 | 更新後賃料:1ヶ月 | 更新事務手数料 | - |
契約条件
貸家契約区分 | 普通賃貸借 | 契約期間 | 2年 |
---|---|---|---|
入居可能日 |
2025年11月30日予定
空室状況を確認をする
|
引渡時期相談内容 | - |
フリーレント | - | ||
クレジットカード決済 | - |
駐車場
駐車場 |
なし
駐車場について質問する
|
||
---|---|---|---|
駐車場契約形態 | - | ||
駐車場備考 | - | ||
バイク置き場 | 有り(無料) | ||
駐輪場 | 有り(無料) |
備考
その他 | ペット飼育時 敷金1ヶ月積増 鍵交換代 33000円 清掃費 109560円 エアコン清掃費 38500円 | ||
---|---|---|---|
関連リンク | |||
取引態様 | 媒介 | 管理コード | 1184561 |
情報登録(更新)日 | 2025年10月11日 | 次回更新予定日 | 2025年10月18日 |
周辺環境
-
マルエツ北浦和東口店:528m
-
伊勢丹浦和店:2437m
-
医療法人社団望星会望星病院:461m
-
北浦和二郵便局:379m
-
北浦和公園:1091m
-
さいたま市役所:2019m
-
浦和警察署:2028m
-
島忠ホームズ与野店:1897m
- コンビニ
-
セブンイレブン針ケ谷店501m
- 買物
-
マルエツ北浦和東口店528m
- ショッピング施設
-
伊勢丹浦和店2437m
- ドラッグストア
-
マツモトキヨシ北浦和駅前店562m
- ホームセンター
-
島忠ホームズ与野店1897m
- 病院
-
医療法人社団望星会望星病院461m
- 役所
-
さいたま市役所2019m
- 郵便局
-
北浦和二郵便局379m
- 図書館
-
さいたま市立北浦和図書館571m
- 交番
-
浦和警察署2028m
- 公園
-
北浦和公園1091m
- 銀行
-
埼玉縣信用金庫北浦和支店592m
- 幼稚園
-
厚徳幼稚園396m
- 小学校
-
さいたま市立常盤北小学校1421m
- 中学校
-
さいたま市立常盤中学校1730m
- 高校
-
埼玉県立浦和高校924m
取扱店舗

ピタットハウス与野店
株式会社彩企
- 交通
- JR京浜東北線「与野」駅 東口徒歩1分 与野駅東口階段を降りると大きな緑の看板が目印です!
- 営業時間
- 10:00 〜 18:00
- 定休日
- 毎週水曜日
ピタットハウスでは信頼されるサイトを目指して、物件情報の精度向上に努めています。
掲載物件に誤りがある場合は
こちら からご連絡ください。現状と異なる場合は、現状を優先させていただきます。
取引態様の欄に「媒介」と表示された物件は「仲介物件」です。ご成約の際には仲介手数料を申し受けます。
その他の取扱店舗
不動産会社毎に募集条件等が異なる場合があります。詳細は各店の物件詳細ページにてご確認ください。- 交通
- JR京浜東北、宇都宮、高崎、湘南新宿ライン「浦和」駅 東口徒歩2分
- 営業時間
- 10:00 〜 19:00
- 定休日
- 毎週水曜日
生活情報
さいたま市の暮らしデータ
さいたま市は、埼玉県の南東部に位置し、都心から20〜30km圏内にある県庁所在地です。2001年5月1日の浦和・大宮・与野の3市合併により誕生したさいたま市は、2003年4月1日に全国で13番目の政令指定都市へと移行し、2005年4月1日には岩槻市との合併を果たしました。そして、2021年には20周年を迎え、現在、人口134万人を超える都市へと成長し、首都圏でも人気の高い都市に名を連ねています。
基本データ
市区役所所在地 | さいたま市浦和区常盤6-4-4 |
---|---|
公式ホームページURL | https://www.city.saitama.lg.jp/ |
総人口 | 1,324,025人 |
人口増減率(2015年/2020年) | 104.8% |
地域のおすすめ情報ブログ
一覧を見る
-
東浦和第七公園今回は「東浦和第七公園」に行ってきました。ブランコや滑り台がある公園です。駅からも近いので小さいお子さんというよりは学生などが多...続きを読む
-
南与野店周辺 アイス屋さんこんにちは!ピタットハウス南与野店です。今回ご紹介するのは、駅をでてすぐの高架下、ブルーシールアイスクリームのご紹介です!沖縄を...続きを読む
-
南与野駅周辺 カフェこんにちは!ピタットハウス南与野店です。今回ご紹介するのは、南与野駅から徒歩6分くらいのコメダ珈琲店です。コメダ珈琲といえば、や...続きを読む
-
南与野駅周辺 ケーキ屋さんこんにちは!ピタットハウス南与野店です。今回ご紹介するのは、おいし〜いケーキ屋さん、パティスリーカシュカシュさんです!駅から徒歩...続きを読む
北浦和駅近隣の駅から探す
さいたま市浦和区の近隣エリアから探す
FAQ
-
A. グランカーサ北浦和(NH1184561_22)の内見は、見学予約でお問い合わせいただくか、直接与野店(0037-6001-00223)までご連絡ください。
-
A. 可能です。グランカーサ北浦和(NH1184561_22)周辺の情報は、ピタットハウスの地域情報ブログ「街ピタ」や住みたい街の暮らしデータをご活用ください。
-
A. グランカーサ北浦和(NH1184561_22)の費用は、こちらよりお問い合わせいただくか、直接与野店(0037-6001-00223)までご連絡ください。
-
A. はい、可能です。賃貸希望物件リクエストをご利用ください。グランカーサ北浦和(NH1184561_22)に似た物件も合わせてご紹介させていただきます。