前へ
次へ
前へ
次へ
マンション

リヴシティ浦和常盤壱番館(401)

NEW
8.4 万円
共益費 10,000
-
8.4万円
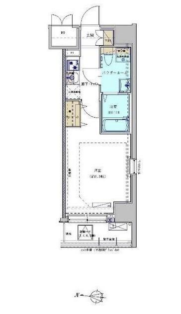
間取り
1K
専有面積
25.62㎡
所在階
9階建ての4階
向き
  • アイコン: 住所 埼玉県さいたま市浦和区常盤5丁目14-8
  • アイコン: 交通 JR京浜東北・根岸線 「北浦和駅」 徒歩10分 / JR京浜東北・根岸線 「浦和駅」 徒歩20分 / JR埼京線 「南与野駅」 徒歩21分
簡単無料
アイコン: お電話 0037-6001-00223
IP電話ご利用のお客様 : 048-826-2620
ピタットハウス
与野店
point!
お部屋探しはピタットハウス与野店・浦和東口店にお任せください
ピタットハウス与野・浦和東口店は賃貸仲介及び賃貸管理も行っております。ご来店頂いたお客様へは未公開のお部屋もご紹介!弊社掲載以外のお部屋もご紹介可能です!お部屋探しはピタットハウス与野店・浦和東口店へ
お気軽にお問い合わせください!
簡単無料
お気軽にお問い合わせください!
物件情報・周辺環境・契約手続きについてなどお気軽にお問い合わせください。

設備・条件

建物・立地
  • 角部屋
  • エレベータ
  • 宅配ボックス
  • 駐輪場
  • 閑静な住宅街
  • 都市ガス
  • 敷地内ごみ置き場
  • 都市ガス給湯
  • ペット専用設備
  • 文教地区
通信
  • インターネット対応
  • インターネット無料
  • BS・CS
セキュリティ
  • オートロック
  • TVモニター付きインターホン
  • 24時間セキュリティー
  • 防犯カメラ
部屋設備
  • フローリング
  • バルコニー
  • 室内洗濯機置場
  • 下駄箱
  • クローゼット
  • 収納スペース
  • 室内物干し
  • 24時間換気システム
  • 全居室洋室
  • 全居室8畳以上
  • 2面採光
  • 通風良好
冷暖房
  • エアコン
キッチン
  • システムキッチン
  • ガスコンロ(2口)
  • ガスレンジ付
バス・トイレ
  • バス・トイレ別
  • 浴室乾燥機
  • 温水洗浄便座
  • シャワー
  • 浴室暖房
  • 洗面所
  • トイレ
  • 洗面台
  • 脱衣所
  • 洗面所にドア
  • 縦型照明付洗面化粧台
特徴
  • ペット相談可
  • 保証会社利用可
  • 二人入居相談
  • 敷金不要
  • 保証人不要

物件概要

物件種別

部屋種別 マンション
建物名称 リヴシティ浦和常盤壱番館(401)
所在地 埼玉県さいたま市浦和区常盤5丁目14-8 MAP
築年月 2022年2月 階数 9階建ての4階
建物構造 鉄筋コンクリート造 総戸数 40戸
間取り 1K(K2帖 洋8帖) 専有面積 25.62㎡
向き バルコニー面積 -
その他 -

費用

賃料 8.4万円 初期費用の確認をする 初期費用の確認をする 共益費 10,000円
礼金 8.4万円 敷金 -
保証金 - 償却金 -
その他一時金 契約事務手数料:5500円 / 室内消毒代:16500円 / 鍵交換費用:38500円
その他月額費用 保険料等:2200円/月
住宅保険 要加入
保証会社 必須
保証会社補足 初回 総賃料の80%〜 月額総賃料の1%〜(決算サービス料)550円/月
更新料 更新後賃料:1.5ヶ月 更新事務手数料 5,500円

契約条件

貸家契約区分 普通賃貸借 契約期間 2年
入居可能日 2026年4月30日予定 空室状況を確認をする 空室状況を確認をする 引渡時期相談内容 -
フリーレント -
クレジットカード決済 -

駐車場

駐車場 なし 駐車場について質問する 駐車場について質問する
駐車場契約形態 -
駐車場備考 -
バイク置き場 -
駐輪場 -

備考

その他 短期解約違約金有 解約予告2カ月前 指定の引越し 電気会社あり ペット可(礼金1ヵ月追加) クリーニング代賃料1ヶ月+消費税 にじいろサポート24(火災保険付き)2200円/月 契約事務手数料5500円 室内消毒代16500円 鍵交換費用38500円
関連リンク
取引態様 媒介 管理コード 3820627
情報登録(更新)日 2026年4月2日 次回更新予定日 2026年4月9日
備考 めやす賃料:

めやす賃料とは賃料、共益費・管理費、敷引金、更新料を含み、賃料等条件の改定がないものと仮定して4年間賃借した場合(定期借家の場合は契約期間)の1ヶ月当たりの金額です。

※敷引金は、敷金の償却、保証金の償却など、預かった金額から必ず引くものをいいます。
※めやす賃料は、消費者に適切な情報を提供するための表示であり事業者に一時金を推奨するものではありません。
※めやす賃料は、実際の総支払額と異なる場合があります。詳しくは不動産会社にご確認ください。  

周辺環境

  • 浦和常盤郵便局:341m
    浦和常盤郵便局:341m
  • さいたま市役所:658m
    さいたま市役所:658m
  • 浦和警察署:469m
    浦和警察署:469m
  • セブンイレブン浦和常盤5丁目店:229m
    セブンイレブン浦和常盤5丁目店:229m
  • いなげや浦和ときわ店:600m
    いなげや浦和ときわ店:600m
  • 常盤緑道:264m
    常盤緑道:264m
  • さいたま市立常盤小学校:684m
    さいたま市立常盤小学校:684m
  • さいたま市立与野南中学校:1156m
    さいたま市立与野南中学校:1156m
コンビニ
セブンイレブン浦和常盤5丁目店
229m
買物
いなげや浦和ときわ店
600m
ショッピング施設
伊勢丹浦和店
1447m
ドラッグストア
トモズ北浦和東口店
1120m
ホームセンター
葉山ガーデン浦和コルソ店
1586m
病院
独立行政法人地域医療機能推進機構
966m
役所
さいたま市役所
658m
郵便局
浦和常盤郵便局
341m
図書館
さいたま市立北浦和図書館
1260m
交番
浦和警察署
469m
公園
常盤緑道
264m
銀行
埼玉りそな銀行さいたま営業部
250m
幼稚園
さいたま市立常盤保育園
219m
小学校
さいたま市立常盤小学校
684m
中学校
さいたま市立与野南中学校
1156m
高校
さいたま市立浦和高校
1652m

取扱店舗

ピタットハウス与野店
ピタットハウス与野店
株式会社彩企
交通
JR京浜東北線「与野」駅 東口徒歩1分 与野駅東口階段を降りると大きな緑の看板が目印です!
営業時間
10:00 〜 18:00
定休日
毎週水曜日・冬季休業:12/27(土)-1/3(土)
  • 近隣駐車場あり
お電話 0037-6001-00223 無料
メール お問い合わせ
  • お問い合わせ区分

  • 内見希望日時

    第一希望

    第二希望

  • お名前

    全角
  • ご希望の連絡方法

    メールアドレス

    電話番号

    半角
    半角
  • その他ご希望等

ピタットハウスの個人情報の取り扱いについて

ピタットハウスでは信頼されるサイトを目指して、物件情報の精度向上に努めています。
掲載物件に誤りがある場合は こちら からご連絡ください。現状と異なる場合は、現状を優先させていただきます。
取引態様の欄に「媒介」と表示された物件は「仲介物件」です。ご成約の際には仲介手数料を申し受けます。

その他の取扱店舗

不動産会社毎に募集条件等が異なる場合があります。詳細は各店の物件詳細ページにてご確認ください。
交通
JR京浜東北、宇都宮、高崎、湘南新宿ライン「浦和」駅 東口徒歩2分
営業時間
10:00 〜 19:00
定休日
毎週水曜日・冬季休業:12/27(土)-1/3(土)
  • 近隣駐車場あり
お電話 0037-6001-01941 無料

生活情報

さいたま市の暮らしデータ

さいたま市は、埼玉県の南東部に位置し、都心から20〜30km圏内にある県庁所在地です。2001年5月1日の浦和・大宮・与野の3市合併により誕生したさいたま市は、2003年4月1日に全国で13番目の政令指定都市へと移行し、2005年4月1日には岩槻市と合併しました。そして、2021年には市誕生20周年を迎え、現在、人口135万人を超える都市へと成長し、発展を続けています。

基本データ

市区役所所在地 さいたま市浦和区常盤6-4-4
公式ホームページURL https://www.city.saitama.lg.jp/
総人口 1,324,025人
人口増減率(2015年/2020年) 104.8%
さいたま市の生活情報を詳しくみる

地域のおすすめ情報ブログ

一覧を見る

北浦和駅近隣の駅から探す

さいたま市浦和区の近隣エリアから探す

FAQ

  • A. リヴシティ浦和常盤壱番館(NH3820627_30)の内見は、見学予約でお問い合わせいただくか、直接与野店(0037-6001-00223)までご連絡ください。
  • A. 可能です。リヴシティ浦和常盤壱番館(NH3820627_30)周辺の情報は、ピタットハウスの地域情報ブログ「街ピタ」住みたい街の暮らしデータをご活用ください。
  • A. リヴシティ浦和常盤壱番館(NH3820627_30)の費用は、こちらよりお問い合わせいただくか、直接与野店(0037-6001-00223)までご連絡ください。
  • A. はい、可能です。賃貸希望物件リクエストをご利用ください。リヴシティ浦和常盤壱番館(NH3820627_30)に似た物件も合わせてご紹介させていただきます。