前へ
次へ
前へ
次へ
マンション
即入居可

リバーポイントタワー(1704)

29.4 万円
共益費 -
29.4万円
29.4万円
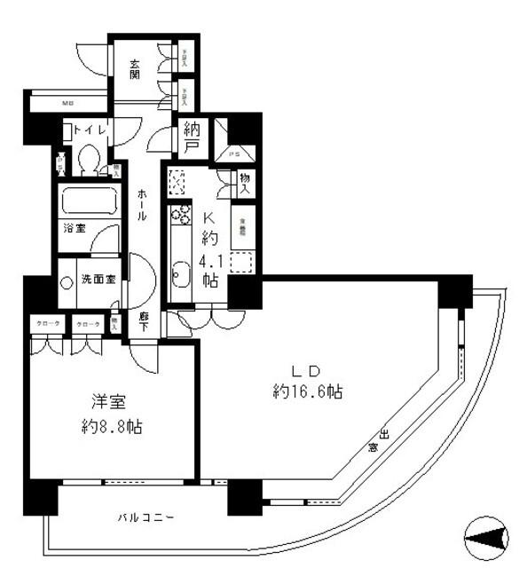
間取り
1LDK
専有面積
58.46㎡
所在階
40階建ての17階
向き
  • アイコン: 住所 東京都中央区佃1丁目
  • アイコン: 交通 東京メトロ有楽町線 「月島駅」 徒歩7分 / JR京葉線 「越中島駅」 徒歩14分 / 東京メトロ日比谷線 「八丁堀駅」 徒歩12分
簡単無料
アイコン: お電話 0037-6001-05750
IP電話ご利用のお客様 : 03-3630-3808
ピタットハウス
木場店
お気軽にお問い合わせください!
簡単無料
お気軽にお問い合わせください!
物件情報・周辺環境・契約手続きについてなどお気軽にお問い合わせください。

設備・条件

建物・立地
  • エレベータ
  • 宅配ボックス
  • フロントサービス
  • 敷地内ごみ置き場
  • 常時ゴミ出し可能
  • タワー型マンション
通信
  • インターネット対応
  • BSアンテナ
  • CSアンテナ
セキュリティ
  • オートロック
  • モニタ付オートロック
部屋設備
  • バルコニー
  • 室内洗濯機置場
冷暖房
  • エアコン
キッチン
  • システムキッチン
  • IHコンロ
  • グリル
バス・トイレ
  • バス・トイレ別
  • 浴室乾燥機
  • 追い焚き風呂
  • 独立洗面台
特徴
  • ピアノ相談可
  • 事務所利用不可

物件概要

物件種別

部屋種別 マンション
建物名称 リバーポイントタワー(1704)
所在地 東京都中央区佃1丁目 MAP
築年月 1989年4月 階数 40階建ての17階
建物構造 鉄骨鉄筋コンクリート造 総戸数 -
間取り 1LDK 専有面積 58.46㎡
向き バルコニー面積 11.00㎡
その他 管理形態:常務管理 

費用

賃料 29.4万円 初期費用の確認をする 初期費用の確認をする 共益費 -
礼金 29.4万円 敷金 29.4万円
保証金 - 償却金 -
その他一時金 室内清掃費:109320円 / 鍵交換費:16500円
その他月額費用 口座振替事務手数料:220円/月
住宅保険 要加入
保証会社 必須
保証会社補足 初回保証委託料(最低20,000円):月額賃料等の50%、 2年目以降:9,600円/年
更新料 更新後賃料:1ヶ月 更新事務手数料 -

契約条件

貸家契約区分 普通賃貸借 契約期間 2年
入居可能日 相談 空室状況を確認をする 空室状況を確認をする 引渡時期相談内容 -
フリーレント -
クレジットカード決済 -

駐車場

駐車場 なし 駐車場について質問する 駐車場について質問する
駐車場契約形態 -
駐車場備考 -
バイク置き場 -
駐輪場 -

備考

その他
関連リンク
取引態様 媒介 管理コード 3571057
情報登録(更新)日 2026年4月29日 次回更新予定日 2026年5月14日
備考 めやす賃料:

めやす賃料とは賃料、共益費・管理費、敷引金、更新料を含み、賃料等条件の改定がないものと仮定して4年間賃借した場合(定期借家の場合は契約期間)の1ヶ月当たりの金額です。

※敷引金は、敷金の償却、保証金の償却など、預かった金額から必ず引くものをいいます。
※めやす賃料は、消費者に適切な情報を提供するための表示であり事業者に一時金を推奨するものではありません。
※めやす賃料は、実際の総支払額と異なる場合があります。詳しくは不動産会社にご確認ください。  

取扱店舗

ピタットハウス木場店
ピタットハウス木場店
株式会社ゼネラル不動産
交通
東京メトロ東西線 木場駅 4A出口 徒歩1分
営業時間
10:00 〜 17:00
定休日
毎週土日・祝祭日
  • 近隣駐車場あり
お電話 0037-6001-05750 無料
メール お問い合わせ
  • お問い合わせ区分

  • 内見希望日時

    第一希望

    第二希望

  • お名前

    全角
  • ご希望の連絡方法

    メールアドレス

    電話番号

    半角
    半角
  • その他ご希望等

ピタットハウスの個人情報の取り扱いについて

ピタットハウスでは信頼されるサイトを目指して、物件情報の精度向上に努めています。
掲載物件に誤りがある場合は こちら からご連絡ください。現状と異なる場合は、現状を優先させていただきます。
取引態様の欄に「媒介」と表示された物件は「仲介物件」です。ご成約の際には仲介手数料を申し受けます。

その他の取扱店舗

不動産会社毎に募集条件等が異なる場合があります。詳細は各店の物件詳細ページにてご確認ください。
交通
JR総武線 亀戸駅
営業時間
10:00 〜 18:00
定休日
毎週水曜日、木曜日・GW休業・夏季休業・年末年始休業・夏季休業:8/10(月)〜8/16(日)
お電話 0037-6001-02650 無料
交通
JR山手線「神田駅」 南口徒歩1分
営業時間
09:30 〜 18:30
定休日
日・祝定休
  • 韓国語対応可
お電話 0037-6001-02964 無料
交通
JR線「新宿」駅西口より徒歩6分、都営大江戸線「新宿西口」駅D5出口より徒歩2分
営業時間
09:30 〜 18:30
定休日
毎週水曜日・GW休暇、5月2日(土)〜5月6日(水)・2月・3月は無休、夏季休暇無し
お電話 0037-6001-05237 無料
交通
JR中央線・東京メトロ東西線中野駅南口より徒歩1分
営業時間
10:00 〜 18:00
定休日
毎週水曜日・GW休業:5/2〜5/6
お電話 0037-6001-06881 無料
交通
JR総武線、総武中央線「錦糸町駅」北口より徒歩約2分 東京メトロ半蔵門線「錦糸町駅」3番出口より徒歩約1分
営業時間
10:00 〜 18:00
定休日
水曜日、第2・3木曜日・GW休業、夏季休業、冬季休業・夏季休業:8/10(月)〜8/16(日)
  • キッズスペースあり
お電話 0037-6001-08978 無料
交通
JR中央線 『武蔵境駅』 南口より 徒歩30秒 駐車場有 
営業時間
10:00 〜 19:00
定休日
毎週水曜日・冬期休業・12/28から1/4まで
  • 近隣駐車場あり/キッズスペースあり
お電話 0037-6001-08163 無料

生活情報

中央区の暮らしデータ

中央区は、江戸以来、400年以上にわたって日本の文化・商業・情報の中心として発展してきた由緒あるまちです。1947年に日本橋区と京橋区が統合され、現在の中央区が誕生しました。面積はわずか約10km2ですが、美しい水辺の景観や全国的に有名な「銀座」「日本橋」「築地」「月島」など魅力的なスポットを擁する、「遊」「職」「住」の三拍子そろった活気と魅力にあふれる都心のまちです。

基本データ

市区役所所在地 中央区築地1-1-1
公式ホームページURL https://www.city.chuo.lg.jp/
総人口 169,179人
人口増減率(2015年/2020年) 119.8%
中央区の生活情報を詳しくみる

地域のおすすめ情報ブログ

一覧を見る

月島駅近隣の駅から探す

中央区の近隣エリアから探す

FAQ

  • A. リバーポイントタワー(PY3571057_814)の内見は、見学予約でお問い合わせいただくか、直接木場店(0037-6001-05750)までご連絡ください。
  • A. 可能です。リバーポイントタワー(PY3571057_814)周辺の情報は、ピタットハウスの地域情報ブログ「街ピタ」住みたい街の暮らしデータをご活用ください。
  • A. リバーポイントタワー(PY3571057_814)の費用は、こちらよりお問い合わせいただくか、直接木場店(0037-6001-05750)までご連絡ください。
  • A. はい、可能です。賃貸希望物件リクエストをご利用ください。リバーポイントタワー(PY3571057_814)に似た物件も合わせてご紹介させていただきます。