前へ
次へ
前へ
次へ
マンション

THE TOKYO TOWERS MIDTOWER(606)

NEW
23.5 万円
共益費 15,000
47万円
23.5万円
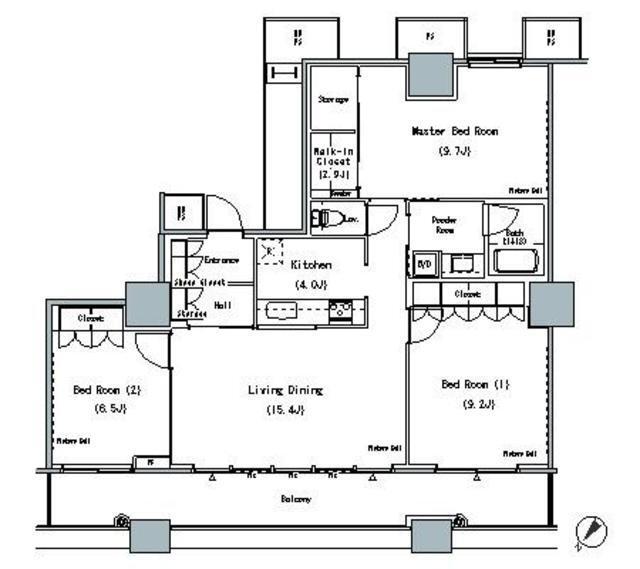
間取り
1LDK
専有面積
52.78㎡
所在階
58階建ての6階
向き
南東
  • アイコン: 住所 東京都中央区勝どき6丁目
  • アイコン: 交通 都営大江戸線 「勝どき駅」 徒歩6分
簡単無料
アイコン: お電話 0037-6001-05750
IP電話ご利用のお客様 : 03-3630-3808
ピタットハウス
木場店
お気軽にお問い合わせください!
簡単無料
お気軽にお問い合わせください!
物件情報・周辺環境・契約手続きについてなどお気軽にお問い合わせください。

設備・条件

建物・立地
  • エレベータ
  • 宅配ボックス
  • フロントサービス
  • 敷地内ごみ置き場
  • 常時ゴミ出し可能
  • タワー型マンション
  • バイク置場
通信
  • インターネット対応
  • CATV
セキュリティ
  • オートロック
部屋設備
  • フローリング
  • バルコニー
  • 室内洗濯機置場
冷暖房
  • エアコン
キッチン
  • システムキッチン
  • グリル
バス・トイレ
  • バス・トイレ別
  • 浴室乾燥機
  • 追い焚き風呂
特徴
  • ペット相談可
  • ピアノ相談可
  • 事務所利用不可

物件概要

物件種別

部屋種別 マンション
建物名称 THE TOKYO TOWERS MIDTOWER(606)
所在地 東京都中央区勝どき6丁目 MAP
築年月 2008年1月 階数 58階建ての6階
建物構造 鉄筋コンクリート造 総戸数 -
間取り 1LDK 専有面積 52.78㎡
向き 南東 バルコニー面積 6.00㎡
その他 管理形態:常務管理 

費用

賃料 23.5万円 初期費用の確認をする 初期費用の確認をする 共益費 15,000円
礼金 23.5万円 敷金 47万円
保証金 - 償却金 -
その他一時金 -
その他月額費用 -
住宅保険 要加入
保証会社 必須/リクルートフォレントインシュア
保証会社補足 初回保証委託料(最低20,000円):月額賃料等の50%、2年目以降:10,000円/年
更新料 更新後賃料:1ヶ月 更新事務手数料 -

契約条件

貸家契約区分 普通賃貸借 契約期間 2年
入居可能日 2026年5月30日予定 空室状況を確認をする 空室状況を確認をする 引渡時期相談内容 -
フリーレント -
クレジットカード決済 -

駐車場

駐車場 なし 駐車場について質問する 駐車場について質問する
駐車場契約形態 -
駐車場備考 -
バイク置き場 -
駐輪場 -

備考

その他
関連リンク
取引態様 媒介 管理コード 3571277
情報登録(更新)日 2026年3月19日 次回更新予定日 2026年3月26日
備考 めやす賃料:

めやす賃料とは賃料、共益費・管理費、敷引金、更新料を含み、賃料等条件の改定がないものと仮定して4年間賃借した場合(定期借家の場合は契約期間)の1ヶ月当たりの金額です。

※敷引金は、敷金の償却、保証金の償却など、預かった金額から必ず引くものをいいます。
※めやす賃料は、消費者に適切な情報を提供するための表示であり事業者に一時金を推奨するものではありません。
※めやす賃料は、実際の総支払額と異なる場合があります。詳しくは不動産会社にご確認ください。  

THE TOKYO TOWERS MIDTOWER の他の空室物件

20
建物の空室物件一覧 次へ

取扱店舗

ピタットハウス木場店
ピタットハウス木場店
株式会社ゼネラル不動産
交通
東京メトロ東西線 木場駅 4A出口 徒歩1分
営業時間
10:00 〜 17:00
定休日
毎週土日・祝祭日
  • 近隣駐車場あり
お電話 0037-6001-05750 無料
メール お問い合わせ
  • お問い合わせ区分

  • 内見希望日時

    第一希望

    第二希望

  • お名前

    全角
  • ご希望の連絡方法

    メールアドレス

    電話番号

    半角
    半角
  • その他ご希望等

ピタットハウスの個人情報の取り扱いについて

ピタットハウスでは信頼されるサイトを目指して、物件情報の精度向上に努めています。
掲載物件に誤りがある場合は こちら からご連絡ください。現状と異なる場合は、現状を優先させていただきます。
取引態様の欄に「媒介」と表示された物件は「仲介物件」です。ご成約の際には仲介手数料を申し受けます。

その他の取扱店舗

不動産会社毎に募集条件等が異なる場合があります。詳細は各店の物件詳細ページにてご確認ください。
交通
JR山手線「新宿」駅徒歩6分都営大江戸線「新宿西口」駅徒歩2分
営業時間
09:30 〜 18:30
定休日
毎週水曜日・2月・3月は無休、夏季休暇無し
お電話 0037-6001-05237 無料

生活情報

中央区の暮らしデータ

中央区は、江戸以来、400年以上にわたって日本の文化・商業・情報の中心として発展してきた由緒あるまちです。1947年に日本橋区と京橋区が統合され、現在の中央区が誕生しました。面積はわずか約10km2ですが、美しい水辺の景観や全国的に有名な「銀座」「日本橋」「築地」「月島」など魅力的なスポットを擁する、「遊」「職」「住」の三拍子そろった活気と魅力にあふれる都心のまちです。

基本データ

市区役所所在地 中央区築地1-1-1
公式ホームページURL https://www.city.chuo.lg.jp/
総人口 169,179人
人口増減率(2015年/2020年) 119.8%
中央区の生活情報を詳しくみる

地域のおすすめ情報ブログ

一覧を見る

勝どき駅近隣の駅から探す

中央区の近隣エリアから探す

FAQ

  • A. THE TOKYO TOWERS MIDTOWER(PY3571277_2573)の内見は、見学予約でお問い合わせいただくか、直接木場店(0037-6001-05750)までご連絡ください。
  • A. 可能です。THE TOKYO TOWERS MIDTOWER(PY3571277_2573)周辺の情報は、ピタットハウスの地域情報ブログ「街ピタ」住みたい街の暮らしデータをご活用ください。
  • A. THE TOKYO TOWERS MIDTOWER(PY3571277_2573)の費用は、こちらよりお問い合わせいただくか、直接木場店(0037-6001-05750)までご連絡ください。
  • A. はい、可能です。賃貸希望物件リクエストをご利用ください。THE TOKYO TOWERS MIDTOWER(PY3571277_2573)に似た物件も合わせてご紹介させていただきます。