前へ
次へ
前へ
次へ
事務所

エムケービル千間台(202)

28.3888 万円
共益費 8,800
77.424万円
28.3888万円
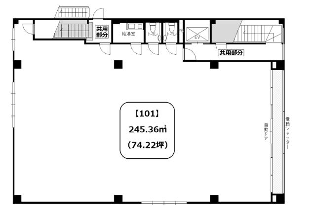
間取り
事務所
専有面積
106.65㎡
所在階
3階建ての2階
  • アイコン: 住所 埼玉県越谷市千間台東1丁目7-25
  • アイコン: 交通 東武伊勢崎・大師線 「せんげん台駅」 徒歩5分 / 東武伊勢崎・大師線 「大袋駅」 徒歩20分 / 東武伊勢崎・大師線 「武里駅」 徒歩20分
簡単無料
アイコン: お電話 0037-6001-02627
IP電話ご利用のお客様 : 048-739-7000
ピタットハウス
春日部店
point!
東武スカイツリーライン『せんげん台駅』東口5分の好立地
2025年10月事務所仕様にリフォーム済み 歯科医院・クリニック・学習塾などにおすすめ 業種ご相談ください★ぜひ室内見学ください (1F、2F一括貸し可能)
お気軽にお問い合わせください!
簡単無料
お気軽にお問い合わせください!
物件情報・周辺環境・契約手続きについてなどお気軽にお問い合わせください。

設備・条件

建物・立地
  • エレベータ
  • 敷地内駐車場
セキュリティ
  • TVモニター付きインターホン
冷暖房
  • エアコン
キッチン
  • IHコンロ
  • キッチン未使用
バス・トイレ
  • 温水洗浄便座
  • トイレ
  • トイレ未使用
特徴
  • 仲介手数料不要

物件概要

物件種別

部屋種別 事務所
建物名称 エムケービル千間台(202)
所在地 埼玉県越谷市千間台東1丁目7-25 MAP
築年月 1986年5月 階数 3階建ての2階
建物構造 重量鉄骨造 総戸数 -
間取り 事務所 専有面積 106.65㎡
その他 -

費用

賃料 28.3888万円 初期費用の確認をする 初期費用の確認をする 共益費 8,800円
礼金 28.3888万円 敷金 77.424万円
保証金 - 償却金 -
その他一時金 -
その他月額費用 水道料金定額※業種によって異なります:5000円/月
住宅保険 要加入(3年)
保証会社 必須
保証会社補足 ※連帯保証人必須  初回保証料総賃料の100%、更新時[1年毎]総賃料10%
更新料 更新後賃料:1ヶ月 更新事務手数料 -

契約条件

貸家契約区分 普通賃貸借 契約期間 3年
入居可能日 相談 空室状況を確認をする 空室状況を確認をする
フリーレント -
クレジットカード決済 -

駐車場

駐車場 有り 月額13,200円 駐車場について質問する 駐車場について質問する
駐車場契約形態 -
駐車場備考 駐車場仲介手数料1.1ヶ月分要※空き要確認
バイク置き場 なし
駐輪場 なし

リフォーム

水回り (2025年10月):キッチン/トイレ/ミニキッチン、トイレ1基 新設
内装 (2025年10月):内装全面/全室クロス

備考

その他 ・動力(電気)使用の際は、借主で申請が必要です・業種相談可[飲食不可] ・退去時のクリーニング、原状回復は借主となります。 ・現在備え付けの諸設備の入居後の保守管理修理は、借主となります。 ・駐車場は、別途契約必須 駐車場仲介手数料1.1ヶ月分要 (駐車場の空きは、確認してください)・水道料金定額5,000円/月額(業種による)・鍵交換(要確認) ・退去通告 借主3ヶ月前
関連リンク
取引態様 貸主 管理コード 2565681
情報登録(更新)日 2025年12月18日 次回更新予定日 2025年12月25日
備考 めやす賃料:

めやす賃料とは賃料、共益費・管理費、敷引金、更新料を含み、賃料等条件の改定がないものと仮定して4年間賃借した場合(定期借家の場合は契約期間)の1ヶ月当たりの金額です。

※敷引金は、敷金の償却、保証金の償却など、預かった金額から必ず引くものをいいます。
※めやす賃料は、消費者に適切な情報を提供するための表示であり事業者に一時金を推奨するものではありません。
※めやす賃料は、実際の総支払額と異なる場合があります。詳しくは不動産会社にご確認ください。  

周辺環境

  • セブンタウンせんげん台:291m
    セブンタウンせんげん台:291m
  • 越谷市立桜井小学校:912m
    越谷市立桜井小学校:912m
  • 越谷市立北中学校:945m
    越谷市立北中学校:945m
  • 越谷千間台東郵便局:608m
    越谷千間台東郵便局:608m
  • 春日部警察署:5038m
    春日部警察署:5038m
  • 順天堂大学医学部附属順天堂越谷病院:1061m
    順天堂大学医学部附属順天堂越谷病院:1061m
  • ニトリデコホームセブンタウンせんげん台店:291m
    ニトリデコホームセブンタウンせんげん台店:291m
コンビニ
セブンイレブン越谷千間台東1丁目店
252m
買物
ヨークフーズせんげん台店
288m
ドラッグストア
マツモトキヨシセブンタウンせんげ
288m
ホームセンター
ニトリデコホームセブンタウンせん
291m
病院
順天堂大学医学部附属順天堂越谷病
1061m
役所
松伏町役場
4653m
郵便局
越谷千間台東郵便局
608m
図書館
春日部市立武里図書館
1205m
交番
春日部警察署
5038m
公園
大枝公園
825m
銀行
栃木銀行せんげん台支店
217m
幼稚園
認定こども園しらこばと幼稚園
1327m
小学校
越谷市立桜井小学校
912m
中学校
越谷市立北中学校
945m
高校
埼玉県立越谷北高校
1311m

取扱店舗

ピタットハウス春日部店
ピタットハウス春日部店
株式会社タカショウ
交通
東武伊勢崎線・東武野田線春日部駅西口徒歩2分
営業時間
09:00 〜 18:00
定休日
第1・3火曜日・毎週水曜日・※10/20(月)営業時間9時〜12時
  • キッズスペースあり
お電話 0037-6001-02627 無料
メール お問い合わせ
  • お問い合わせ区分

  • 内見希望日時

    第一希望

    第二希望

  • お名前

    全角
  • ご希望の連絡方法

    メールアドレス

    電話番号

    半角
    半角
  • その他ご希望等

ピタットハウスの個人情報の取り扱いについて

ピタットハウスでは信頼されるサイトを目指して、物件情報の精度向上に努めています。
掲載物件に誤りがある場合は こちら からご連絡ください。現状と異なる場合は、現状を優先させていただきます。
取引態様の欄に「媒介」と表示された物件は「仲介物件」です。ご成約の際には仲介手数料を申し受けます。

生活情報

越谷市の暮らしデータ

越谷市は、埼玉県の東南部、都心から25km圏内に位置し、面積は60.24km2です。古くから「水郷こしがや」と呼ばれ、東端を大落古利根川と中川、南西端を綾瀬川、中央を元荒川が貫流しているほか、新方川や葛西用水をはじめ、多くの河川や用水が縦横に流れています。

基本データ

市区役所所在地 越谷市越ヶ谷4-2-1
公式ホームページURL https://www.city.koshigaya.saitama.jp/
総人口 341,621人
人口増減率(2015年/2020年) 101.2%
越谷市の生活情報を詳しくみる

地域のおすすめ情報ブログ

一覧を見る

せんげん台駅近隣の駅から探す

越谷市の近隣エリアから探す

FAQ

  • A. エムケービル千間台(PZ2565681_2)の内見は、見学予約でお問い合わせいただくか、直接春日部店(0037-6001-02627)までご連絡ください。
  • A. 可能です。エムケービル千間台(PZ2565681_2)周辺の情報は、ピタットハウスの地域情報ブログ「街ピタ」住みたい街の暮らしデータをご活用ください。
  • A. エムケービル千間台(PZ2565681_2)の費用は、こちらよりお問い合わせいただくか、直接春日部店(0037-6001-02627)までご連絡ください。
  • A. はい、可能です。賃貸希望物件リクエストをご利用ください。エムケービル千間台(PZ2565681_2)に似た物件も合わせてご紹介させていただきます。