前へ
次へ
前へ
次へ
マンション

フェニックス新横濱参番館(401)

8.3 万円
共益費 3,000
8.3万円
8.3万円
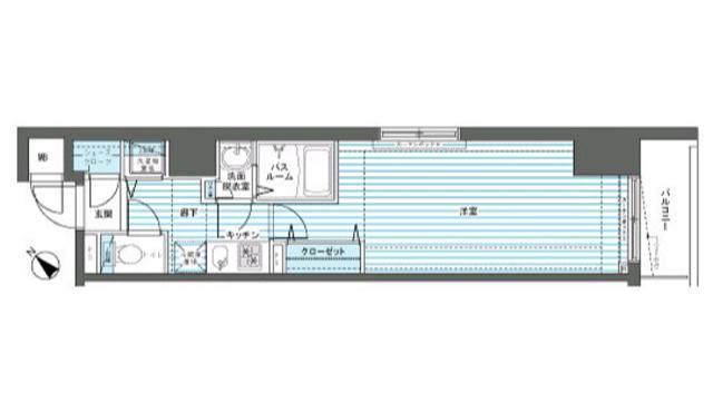
間取り
1K
専有面積
25.02㎡
所在階
11階建ての4階
向き
北東
  • アイコン: 住所 神奈川県横浜市港北区新横浜1丁目19-6
  • アイコン: 交通 JR横浜線 「新横浜駅」 徒歩8分 / 横浜市ブルーライン 「新横浜駅」 徒歩8分
簡単無料
アイコン: お電話 0037-6001-03873
IP電話ご利用のお客様 : 045-477-3450
ピタットハウス
新横浜店
point!
複数路線利用可の新横浜駅徒歩圏内で通勤等便利です☆彡
人気の2面採光角部屋で室内快適に生活できます♪ エアコン付きで家電新調費用が抑えられます★ 宅配ボックス完備で外出中でも荷物の受取りが可能です♪
お気軽にお問い合わせください!
簡単無料
お気軽にお問い合わせください!
物件情報・周辺環境・契約手続きについてなどお気軽にお問い合わせください。

設備・条件

建物・立地
  • 角部屋
  • 分譲マンションタイプ
  • 外壁タイル張り
  • エレベータ
  • 宅配ボックス
  • 駐輪場
  • 都市ガス
通信
  • インターネット対応
  • CATV
  • 光回線
セキュリティ
  • オートロック
  • モニタ付オートロック
部屋設備
  • フローリング
  • バルコニー
  • 室内洗濯機置場
  • 下駄箱
  • クローゼット
  • 収納スペース
  • 2面採光
冷暖房
  • エアコン
キッチン
  • ガスコンロ(2口)
バス・トイレ
  • バス・トイレ別
  • 浴室乾燥機
  • シャワー
  • トイレ
  • 洗面台

物件概要

物件種別

部屋種別 マンション
建物名称 フェニックス新横濱参番館(401)
所在地 神奈川県横浜市港北区新横浜1丁目19-6 MAP
築年月 2008年11月 階数 11階建ての4階
建物構造 鉄筋コンクリート造 総戸数 -
間取り 1K(洋8.6帖) 専有面積 25.02㎡
向き 北東 バルコニー面積 -
その他 -

費用

賃料 8.3万円 初期費用の確認をする 初期費用の確認をする 共益費 3,000円
礼金 8.3万円 敷金 8.3万円
保証金 - 償却金 -
その他一時金 鍵交換費用:27500円
その他月額費用 家財保険+付帯サービス:1735円/月
住宅保険 要加入
保証会社 必須
保証会社補足 初回:賃料等×50%・月額:賃料等×1%
更新料 更新後賃料:1ヶ月 更新事務手数料 -

契約条件

貸家契約区分 普通賃貸借 契約期間 2年
入居可能日 2026年1月20日予定 空室状況を確認をする 空室状況を確認をする 引渡時期相談内容 -
フリーレント -
クレジットカード決済 -

駐車場

駐車場 なし 駐車場について質問する 駐車場について質問する
駐車場契約形態 -
駐車場備考 -
バイク置き場 -
駐輪場 有り 500円/月

備考

その他 ◆契約時:当月分+翌月分の賃料・管理費をお支払い頂きます。 ◆駐輪場:2年分一括払い ※要空き確認 ◆解約時:ルームクリーニング費用及び借主負担分の原状回復費用をお支払い頂きます。
関連リンク
取引態様 媒介 管理コード 2673077
情報登録(更新)日 2025年12月15日 次回更新予定日 2025年12月22日
備考 めやす賃料:

めやす賃料とは賃料、共益費・管理費、敷引金、更新料を含み、賃料等条件の改定がないものと仮定して4年間賃借した場合(定期借家の場合は契約期間)の1ヶ月当たりの金額です。

※敷引金は、敷金の償却、保証金の償却など、預かった金額から必ず引くものをいいます。
※めやす賃料は、消費者に適切な情報を提供するための表示であり事業者に一時金を推奨するものではありません。
※めやす賃料は、実際の総支払額と異なる場合があります。詳しくは不動産会社にご確認ください。  

スタッフコメント

スタッフコメント
  • ◆インターネット:個別契約(詳細要確認)◆民泊利用不可◆外国籍相談可(申込条件:在留カード必須、日本語読み書き出来る方、連帯保証人必須:日本人又は永住者)◆内装は入居までに変更となる場合がございます。◆退去日:2025年12月28日予定

周辺環境

コンビニ
ファミリーマート新横浜店
630m
買物
まいばすけっと新横浜1丁目店
194m
ショッピング施設
横浜タカシマヤ
5653m
ドラッグストア
Fit Care Express
452m
ホームセンター
カリモク家具新横浜ショールーム
612m
病院
独立行政法人労働者健康安全機構横
1029m
役所
横浜市港北区役所
2672m
郵便局
新横浜駅前郵便局
634m
図書館
横浜市港北図書館
2477m
交番
港北警察署
1679m
公園
新横浜駅前緑地
614m
銀行
静岡銀行新横浜支店
449m
幼稚園
ペガサスベビー保育園
247m
小学校
横浜市立篠原西小学校
1247m
中学校
横浜市立篠原中学校
1193m
高校
神奈川県立岸根高校
1246m

取扱店舗

ピタットハウス新横浜店
ピタットハウス新横浜店
株式会社エム・コーポレーション
交通
JR横浜線・市営地下鉄ブルーライン・東急新横浜線「新横浜」駅8番出口より徒歩6分・アイススケート場の隣です
営業時間
10:00 〜 18:00
定休日
毎週火曜日・水曜日・冬季休暇:12/26(金)〜1/7(水)
お電話 0037-6001-03873 無料
メール お問い合わせ
  • お問い合わせ区分

  • 内見希望日時

    第一希望

    第二希望

  • お名前

    全角
  • ご希望の連絡方法

    メールアドレス

    電話番号

    半角
    半角
  • その他ご希望等

ピタットハウスの個人情報の取り扱いについて

ピタットハウスでは信頼されるサイトを目指して、物件情報の精度向上に努めています。
掲載物件に誤りがある場合は こちら からご連絡ください。現状と異なる場合は、現状を優先させていただきます。
取引態様の欄に「媒介」と表示された物件は「仲介物件」です。ご成約の際には仲介手数料を申し受けます。

生活情報

横浜市の暮らしデータ

横浜市は、神奈川県の東端に位置し、東は東京湾、北は川崎市、西は町田市・大和市・藤沢市、南は鎌倉市・逗子市・横須賀市に接しています。横浜市の中心部から東京都心部までは、約30kmです。国を代表する国際貿易港である横浜港を基盤として、首都圏の中核都市としての役割を担っています。総面積は、約435km2で、これは東京23区の約7割にあたります。

基本データ

市区役所所在地 横浜市中区本町6-50-10
公式ホームページURL https://www.city.yokohama.lg.jp/
総人口 3,777,491人
人口増減率(2015年/2020年) 101.4%
横浜市の生活情報を詳しくみる

地域のおすすめ情報ブログ

一覧を見る

新横浜駅近隣の駅から探す

横浜市港北区の近隣エリアから探す

FAQ

  • A. フェニックス新横濱参番館(R0293170_401)の内見は、見学予約でお問い合わせいただくか、直接新横浜店(0037-6001-03873)までご連絡ください。
  • A. 可能です。フェニックス新横濱参番館(R0293170_401)周辺の情報は、ピタットハウスの地域情報ブログ「街ピタ」住みたい街の暮らしデータをご活用ください。
  • A. フェニックス新横濱参番館(R0293170_401)の費用は、こちらよりお問い合わせいただくか、直接新横浜店(0037-6001-03873)までご連絡ください。
  • A. はい、可能です。賃貸希望物件リクエストをご利用ください。フェニックス新横濱参番館(R0293170_401)に似た物件も合わせてご紹介させていただきます。