前へ
次へ
前へ
次へ
マンション

東雲キャナルコートCODAN16号棟(1003)

20.7 万円
共益費 15,000
20.7万円
31.05万円
間取り
1SLDK
専有面積
64.31㎡
所在階
地下1階・地上14階建ての10階
向き
西
  • アイコン: 住所 東京都江東区東雲1丁目
  • アイコン: 交通 東京メトロ有楽町線 「辰巳駅」 徒歩10分 / 東京臨海高速鉄道りんかい線 「東雲駅」 徒歩11分
簡単無料
アイコン: お電話 0037-6001-02650
IP電話ご利用のお客様 : 03-5628-9922
ピタットハウス
亀戸店
point!
3路線3駅利用可能なデザイナーズ賃貸住宅!
お気軽にお問い合わせください!
簡単無料
お気軽にお問い合わせください!
物件情報・周辺環境・契約手続きについてなどお気軽にお問い合わせください。

設備・条件

建物・立地
  • エレベータ
  • 宅配ボックス
  • 駐輪場
  • 都市ガス
  • バイク置場
通信
  • CATV
  • その他インターネット
セキュリティ
  • オートロック
  • TVモニター付きインターホン
部屋設備
  • 室内洗濯機置場
冷暖房
  • エアコン
  • 床暖房
キッチン
  • システムキッチン
バス・トイレ
  • バス・トイレ別
  • 独立洗面台
  • 温水洗浄便座

物件概要

物件種別

部屋種別 マンション
建物名称 東雲キャナルコートCODAN16号棟(1003)
所在地 東京都江東区東雲1丁目
築年月 2004年3月 階数 地下1階・地上14階建ての10階
建物構造 鉄筋コンクリート造 総戸数 170戸
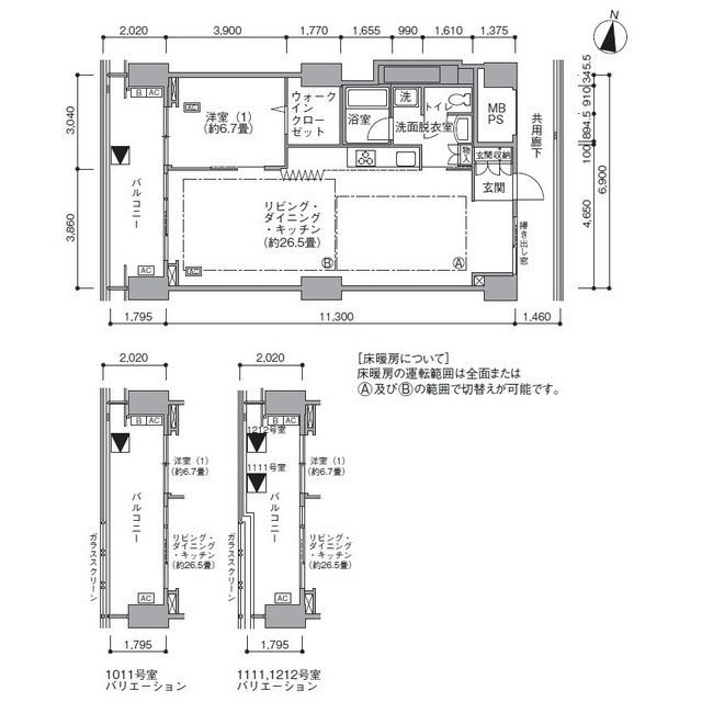
間取り 1SLDK(LDK11.9帖 洋7.3帖 その他3.1帖) 専有面積 64.31㎡
向き 西 バルコニー面積 -
その他 -

費用

賃料 20.7万円 初期費用の確認をする 初期費用の確認をする 共益費 15,000円
礼金 31.05万円 敷金 20.7万円
保証金 - 償却金 -
その他一時金 鍵交換代:33000円 / 清掃費:89320円 / エアコン清掃費:28600円
その他月額費用 -
住宅保険 要加入(2年16550円)
保証会社 必須
保証会社補足 レジデンシャルパートナーズ 保証料:賃料等の50%(最低2万)、月額保証・事務手数料:賃料等の1%(更新料無)
更新料 更新後賃料:1ヶ月 更新事務手数料 -

契約条件

貸家契約区分 普通賃貸借 契約期間 2年
入居可能日 2026年1月31日予定 空室状況を確認をする 空室状況を確認をする 引渡時期相談内容 -
フリーレント -
クレジットカード決済 -

駐車場

駐車場 なし 駐車場について質問する 駐車場について質問する
駐車場契約形態 -
駐車場備考 -
バイク置き場 -
駐輪場 -

備考

その他 指定保証会社利用必須※一部法人契約除く・敷金積増(法人契約等保証会社利用不可の場合:敷金2か月)解約時室内及びエアコンクリーニング費用借主負担、ペット飼育・楽器演奏不可、事務所・SOHO利用不可、付随設備に関する費用・空き状況等は要確認。建物の構造上、ご希望のネット回線が使用できない可能性があります。
関連リンク
取引態様 媒介 管理コード 3614754
情報登録(更新)日 2025年12月1日 次回更新予定日 2025年12月7日
備考 めやす賃料:

めやす賃料とは賃料、共益費・管理費、敷引金、更新料を含み、賃料等条件の改定がないものと仮定して4年間賃借した場合(定期借家の場合は契約期間)の1ヶ月当たりの金額です。

※敷引金は、敷金の償却、保証金の償却など、預かった金額から必ず引くものをいいます。
※めやす賃料は、消費者に適切な情報を提供するための表示であり事業者に一時金を推奨するものではありません。
※めやす賃料は、実際の総支払額と異なる場合があります。詳しくは不動産会社にご確認ください。  

取扱店舗

ピタットハウス亀戸店
ピタットハウス亀戸店
スターツピタットハウス株式会社
交通
JR総武線 亀戸駅
営業時間
10:00 〜 18:00
定休日
毎週水曜日、木曜日・GW休業・夏季休業・年末年始休業・冬季休業:12/28(日)〜1/3(土)
お電話 0037-6001-02650 無料
メール お問い合わせ
  • お問い合わせ区分

  • 内見希望日時

    第一希望

    第二希望

  • お名前

    全角
  • ご希望の連絡方法

    メールアドレス

    電話番号

    半角
    半角
  • その他ご希望等

ピタットハウスの個人情報の取り扱いについて

ピタットハウスでは信頼されるサイトを目指して、物件情報の精度向上に努めています。
掲載物件に誤りがある場合は こちら からご連絡ください。現状と異なる場合は、現状を優先させていただきます。
取引態様の欄に「媒介」と表示された物件は「仲介物件」です。ご成約の際には仲介手数料を申し受けます。

その他の取扱店舗

不動産会社毎に募集条件等が異なる場合があります。詳細は各店の物件詳細ページにてご確認ください。
交通
JR山手線「新宿」駅徒歩6分都営大江戸線「新宿西口」駅徒歩2分
営業時間
09:30 〜 18:30
定休日
毎週水曜日・2月・3月は無休、夏季休暇無し・年末年始
お電話 0037-6001-05237 無料

生活情報

江東区の暮らしデータ

江東区は、1947年に深川・城東の2区が合併し生まれました。現在の江東区は、水辺と緑に恵まれた自然的特性をいかしながら、「みんなでつくる伝統、未来 水彩都市・江東」を目指して、発展しています。中でも、臨海部の発展は著しく、2024年4月には人口54万人を突破しました。また、2021年開催の東京オリンピック・パラリンピック競技大会では、江東区に多くの競技場が配置され、更なる大きな発展の可能性を秘めています。

基本データ

市区役所所在地 江東区東陽4-11-28
公式ホームページURL https://www.city.koto.lg.jp/
総人口 524,310人
人口増減率(2015年/2020年) 105.3%
江東区の生活情報を詳しくみる

地域のおすすめ情報ブログ

一覧を見る

辰巳駅近隣の駅から探す

江東区の近隣エリアから探す

FAQ

  • A. 東雲キャナルコートCODAN16号棟(ST3614754_427)の内見は、見学予約でお問い合わせいただくか、直接亀戸店(0037-6001-02650)までご連絡ください。
  • A. 可能です。東雲キャナルコートCODAN16号棟(ST3614754_427)周辺の情報は、ピタットハウスの地域情報ブログ「街ピタ」住みたい街の暮らしデータをご活用ください。
  • A. 東雲キャナルコートCODAN16号棟(ST3614754_427)の費用は、こちらよりお問い合わせいただくか、直接亀戸店(0037-6001-02650)までご連絡ください。
  • A. はい、可能です。賃貸希望物件リクエストをご利用ください。東雲キャナルコートCODAN16号棟(ST3614754_427)に似た物件も合わせてご紹介させていただきます。