前へ
次へ
前へ
次へ
マンション

パークアクシス東陽町レジデンス(2210)

15.3 万円
共益費 15,000
15.3万円
-
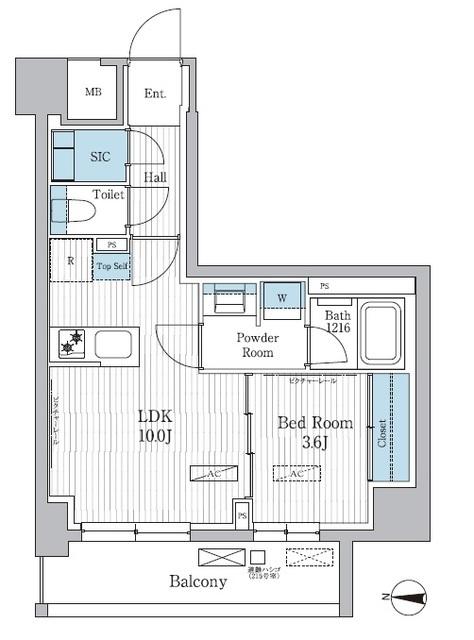
間取り
1DK
専有面積
26.66㎡
所在階
12階建ての2階
向き
  • アイコン: 住所 東京都江東区東陽5丁目
  • アイコン: 交通 東京メトロ東西線 「東陽町駅」 徒歩6分
簡単無料
アイコン: お電話 0037-6001-06249
IP電話ご利用のお客様 : 03-3686-1015
ピタットハウス
西葛西店
お気軽にお問い合わせください!
簡単無料
お気軽にお問い合わせください!
物件情報・周辺環境・契約手続きについてなどお気軽にお問い合わせください。

設備・条件

建物・立地
  • エレベータ
  • 宅配ボックス
  • 敷地内ごみ置き場
  • 常時ゴミ出し可能
  • バイク置場
通信
  • CATV
  • BSアンテナ
  • CSアンテナ
セキュリティ
  • オートロック
  • モニタ付オートロック
部屋設備
  • フローリング
  • バルコニー
  • 室内洗濯機置場
冷暖房
  • エアコン
キッチン
  • システムキッチン
バス・トイレ
  • バス・トイレ別
  • 浴室乾燥機
  • 独立洗面台
特徴
  • ペット相談可
  • ピアノ相談可
  • 事務所利用不可

物件概要

物件種別

部屋種別 マンション
建物名称 パークアクシス東陽町レジデンス(2210)
所在地 東京都江東区東陽5丁目 MAP
築年月 2022年8月 階数 12階建ての2階
建物構造 鉄筋コンクリート造 総戸数 -
間取り 1DK 専有面積 26.66㎡
向き バルコニー面積 4.00㎡
その他 管理形態:日勤管理 

費用

賃料 15.3万円 初期費用の確認をする 初期費用の確認をする 共益費 15,000円
礼金 - 敷金 15.3万円
保証金 - 償却金 -
その他一時金 室内清掃費:55000円 / 鍵交換費:46200円
その他月額費用 口座振替事務手数料:220円/月
住宅保険 要加入
保証会社 必須
保証会社補足 初回保証委託料(最低20,000円):月額賃料等の50%、 2年目以降:9,600円/年
更新料 - 更新事務手数料 -

契約条件

貸家契約区分 定期賃貸借 契約期間 2年
入居可能日 2026年2月20日予定 空室状況を確認をする 空室状況を確認をする 引渡時期相談内容 -
フリーレント -
クレジットカード決済 -

駐車場

駐車場 なし 駐車場について質問する 駐車場について質問する
駐車場契約形態 -
駐車場備考 -
バイク置き場 -
駐輪場 -

備考

その他
関連リンク
取引態様 媒介 管理コード 3948319
情報登録(更新)日 2026年1月31日 次回更新予定日 2026年2月9日
備考 めやす賃料:

めやす賃料とは賃料、共益費・管理費、敷引金、更新料を含み、賃料等条件の改定がないものと仮定して4年間賃借した場合(定期借家の場合は契約期間)の1ヶ月当たりの金額です。

※敷引金は、敷金の償却、保証金の償却など、預かった金額から必ず引くものをいいます。
※めやす賃料は、消費者に適切な情報を提供するための表示であり事業者に一時金を推奨するものではありません。
※めやす賃料は、実際の総支払額と異なる場合があります。詳しくは不動産会社にご確認ください。  

取扱店舗

ピタットハウス西葛西店
ピタットハウス西葛西店
スターツピタットハウス株式会社
交通
東西線西葛西駅南口 徒歩1分
営業時間
10:00 〜 18:00
定休日
毎週水曜日・GW休業・夏季休業・年末年始休業・GW休業:5/3(日)〜5/6(水)
  • キッズスペースあり
お電話 0037-6001-06249 無料
メール お問い合わせ
  • お問い合わせ区分

  • 内見希望日時

    第一希望

    第二希望

  • お名前

    全角
  • ご希望の連絡方法

    メールアドレス

    電話番号

    半角
    半角
  • その他ご希望等

ピタットハウスの個人情報の取り扱いについて

ピタットハウスでは信頼されるサイトを目指して、物件情報の精度向上に努めています。
掲載物件に誤りがある場合は こちら からご連絡ください。現状と異なる場合は、現状を優先させていただきます。
取引態様の欄に「媒介」と表示された物件は「仲介物件」です。ご成約の際には仲介手数料を申し受けます。

その他の取扱店舗

不動産会社毎に募集条件等が異なる場合があります。詳細は各店の物件詳細ページにてご確認ください。
交通
JR山手線「新宿」駅徒歩6分都営大江戸線「新宿西口」駅徒歩2分
営業時間
09:30 〜 18:30
定休日
毎週水曜日・2月・3月は無休、夏季休暇無し
お電話 0037-6001-05237 無料
交通
京急本線平和島駅より徒歩2分。改札を出て左側、第一京浜沿いを150mほど品川方面へお進みください。1階に当店がございます。
営業時間
10:00 〜 18:00
定休日
水曜日(月末、祝日を除く)
お電話 0037-6001-07302 無料
交通
JR中央線 『武蔵境駅』 南口より 徒歩30秒 駐車場有 
営業時間
10:00 〜 19:00
定休日
毎週水曜日・冬期休業・12/28から1/4まで
  • 近隣駐車場あり/キッズスペースあり
お電話 0037-6001-08163 無料
交通
潮見駅西口から徒歩2分の立地にございます。
営業時間
10:00 〜 19:00
定休日
毎週水曜日・GW休業・夏季休業・年末年始休業
  • 駐車場あり/近隣駐車場あり
お電話 0037-6001-06934 無料
交通
JR総武線 亀戸駅
営業時間
10:00 〜 18:00
定休日
毎週水曜日、木曜日・GW休業・夏季休業・年末年始休業・GW休業:5/3(日)〜5/7(木)
お電話 0037-6001-02650 無料
交通
つくばエクスプレス浅草駅A2出口を出まして左隣のビルの1階に店舗ございます。
営業時間
10:00 〜 18:00
定休日
毎週水曜日・日曜日・冬季休業・12/27から1/4
  • 近隣駐車場あり
お電話 0037-6001-04127 無料

生活情報

江東区の暮らしデータ

江東区は、1947年に深川・城東の2区が合併し生まれました。現在の江東区は、水辺と緑に恵まれた自然的特性をいかしながら、「みんなでつくる伝統、未来 水彩都市・江東」を目指して、発展しています。中でも、臨海部の発展は著しく、2024年4月には人口54万人を突破しました。2021年開催の東京オリンピック・パラリンピック競技大会では、江東区に多くの競技場が配置され、また、2025年3月には海の森公園が開設する等、更なる大きな発展の可能性を秘めています。

基本データ

市区役所所在地 江東区東陽4-11-28
公式ホームページURL https://www.city.koto.lg.jp/
総人口 524,310人
人口増減率(2015年/2020年) 105.3%
江東区の生活情報を詳しくみる

地域のおすすめ情報ブログ

一覧を見る

東陽町駅近隣の駅から探す

江東区の近隣エリアから探す

FAQ

  • A. パークアクシス東陽町レジデンス(ST3948319_1710)の内見は、見学予約でお問い合わせいただくか、直接西葛西店(0037-6001-06249)までご連絡ください。
  • A. 可能です。パークアクシス東陽町レジデンス(ST3948319_1710)周辺の情報は、ピタットハウスの地域情報ブログ「街ピタ」住みたい街の暮らしデータをご活用ください。
  • A. パークアクシス東陽町レジデンス(ST3948319_1710)の費用は、こちらよりお問い合わせいただくか、直接西葛西店(0037-6001-06249)までご連絡ください。
  • A. はい、可能です。賃貸希望物件リクエストをご利用ください。パークアクシス東陽町レジデンス(ST3948319_1710)に似た物件も合わせてご紹介させていただきます。