前へ
次へ
前へ
次へ
マンション
即入居可

ビレッジハウス桑折(1-102)

NEW
4.24 万円
共益費 -
-
-
間取り
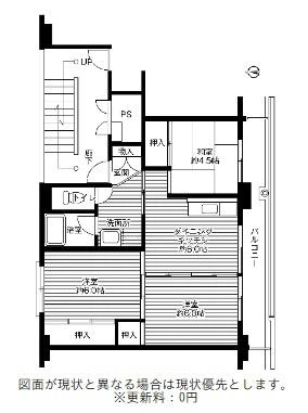
3DK
専有面積
54.68㎡
所在階
5階建ての1階
向き
  • アイコン: 住所 福島県伊達郡桑折町大字上郡字楽
  • アイコン: 交通 JR東北本線 「桑折駅」 徒歩17分 / JR東北本線 「伊達駅」 徒歩54分 / JR東北本線 「藤田駅」 徒歩55分
簡単無料
アイコン: お電話 0037-6001-05326
IP電話ご利用のお客様 : 024-573-1399
ピタットハウス
福島駅前店
point!
敷金・礼金・更新料ゼロ!ペット飼育可です!
国道4号線へのアクセス良好。コンビニ徒歩圏内です。 他階・他賃料のお部屋もあります。ご相談ください。
お気軽にお問い合わせください!
簡単無料
お気軽にお問い合わせください!
物件情報・周辺環境・契約手続きについてなどお気軽にお問い合わせください。

設備・条件

建物・立地
  • 敷地内駐車場
  • 駐車場(2台)
  • プロパンガス
  • 敷地内ごみ置き場
  • プロパンガス給湯
通信
  • インターネット対応
部屋設備
  • バルコニー
  • 室内洗濯機置場
  • 下駄箱
  • 押入
  • 南向き
  • 全居室洋室
冷暖房
  • エアコン
キッチン
  • ガスコンロ設置可
バス・トイレ
  • バス・トイレ別
  • 追い焚き風呂
  • 独立洗面台
  • 温水洗浄便座
  • シャワー
特徴
  • ペット相談可
  • 二人入居可
  • 敷金不要
  • 礼金不要

物件概要

物件種別

部屋種別 マンション
建物名称 ビレッジハウス桑折(1-102)
所在地 福島県伊達郡桑折町大字上郡字楽 MAP
築年月 1982年5月 階数 5階建ての1階
建物構造 鉄筋コンクリート造 総戸数 80戸
間取り 3DK(洋6帖 洋6帖 洋4.5帖 DK6帖) 専有面積 54.68㎡
向き バルコニー面積 -
その他 -

費用

賃料 4.24万円 初期費用の確認をする 初期費用の確認をする 共益費 -
礼金 - 敷金 -
保証金 - 償却金 -
その他一時金 -
その他月額費用 -
住宅保険 要加入(2年10000円)
保証会社 -
保証会社補足 -
更新料 - 更新事務手数料 -

契約条件

貸家契約区分 普通賃貸借 契約期間 2年
入居可能日 即可 空室状況を確認をする 空室状況を確認をする 引渡時期相談内容 -
フリーレント -
クレジットカード決済 -

駐車場

駐車場 有り 月額2,200円 駐車場について質問する 駐車場について質問する
駐車場契約形態 -
駐車場備考 平置駐 / 縦列2台駐車区画3,300円
バイク置き場 -
駐輪場 有り(無料)

備考

その他 ※短期解約時、違約金あり ※退去時クリーニング費用負担有り ※ペット飼育時敷金1か月分
関連リンク
取引態様 媒介 管理コード 2452262
情報登録(更新)日 2026年1月9日 次回更新予定日 2026年1月18日
備考 めやす賃料:

めやす賃料とは賃料、共益費・管理費、敷引金、更新料を含み、賃料等条件の改定がないものと仮定して4年間賃借した場合(定期借家の場合は契約期間)の1ヶ月当たりの金額です。

※敷引金は、敷金の償却、保証金の償却など、預かった金額から必ず引くものをいいます。
※めやす賃料は、消費者に適切な情報を提供するための表示であり事業者に一時金を推奨するものではありません。
※めやす賃料は、実際の総支払額と異なる場合があります。詳しくは不動産会社にご確認ください。  

周辺環境

  • ファミリーマート福島桑折町店:343m
    ファミリーマート福島桑折町店:343m
  • コープマート桑折:932m
    コープマート桑折:932m
  • 桑折町ふれあい公園:200m
    桑折町ふれあい公園:200m
  • 公立藤田総合病院:3654m
    公立藤田総合病院:3654m
  • 福島北警察署桑折分庁舎:1206m
    福島北警察署桑折分庁舎:1206m
  • ダイユーエイト桑折店:1322m
    ダイユーエイト桑折店:1322m
コンビニ
ファミリーマート福島桑折町店
343m
買物
コープマート桑折
932m
ドラッグストア
ウエルシア伊達桑折店
749m
ホームセンター
ダイユーエイト桑折店
1322m
病院
公立藤田総合病院
3654m
役所
桑折町役場
909m
郵便局
桑折郵便局
516m
図書館
伊達市立図書館
4108m
交番
福島北警察署桑折分庁舎
1206m
公園
桑折町ふれあい公園
200m
銀行
福島銀行桑折支店
262m
幼稚園
桑折町立醸芳幼稚園
784m
小学校
桑折町立醸芳小学校
926m
中学校
桑折町立醸芳中学校
450m
高校
私立聖光学院高校
3807m

取扱店舗

ピタットハウス福島駅前店
ピタットハウス福島駅前店
株式会社大樹不動産販売
交通
東北本線福島駅より徒歩3分
営業時間
09:00 〜 18:00
定休日
毎週水曜日・祝日・冬季休業:12/28〜1/4
お電話 0037-6001-05326 無料
メール お問い合わせ
  • お問い合わせ区分

  • 内見希望日時

    第一希望

    第二希望

  • お名前

    全角
  • ご希望の連絡方法

    メールアドレス

    電話番号

    半角
    半角
  • その他ご希望等

ピタットハウスの個人情報の取り扱いについて

ピタットハウスでは信頼されるサイトを目指して、物件情報の精度向上に努めています。
掲載物件に誤りがある場合は こちら からご連絡ください。現状と異なる場合は、現状を優先させていただきます。
取引態様の欄に「媒介」と表示された物件は「仲介物件」です。ご成約の際には仲介手数料を申し受けます。

伊達郡桑折町の近隣エリアから探す

FAQ

  • A. ビレッジハウス桑折(TY2452262_16)の内見は、見学予約でお問い合わせいただくか、直接福島駅前店(0037-6001-05326)までご連絡ください。
  • A. 可能です。ビレッジハウス桑折(TY2452262_16)周辺の情報は、ピタットハウスの地域情報ブログ「街ピタ」住みたい街の暮らしデータをご活用ください。
  • A. ビレッジハウス桑折(TY2452262_16)の費用は、こちらよりお問い合わせいただくか、直接福島駅前店(0037-6001-05326)までご連絡ください。
  • A. はい、可能です。賃貸希望物件リクエストをご利用ください。ビレッジハウス桑折(TY2452262_16)に似た物件も合わせてご紹介させていただきます。